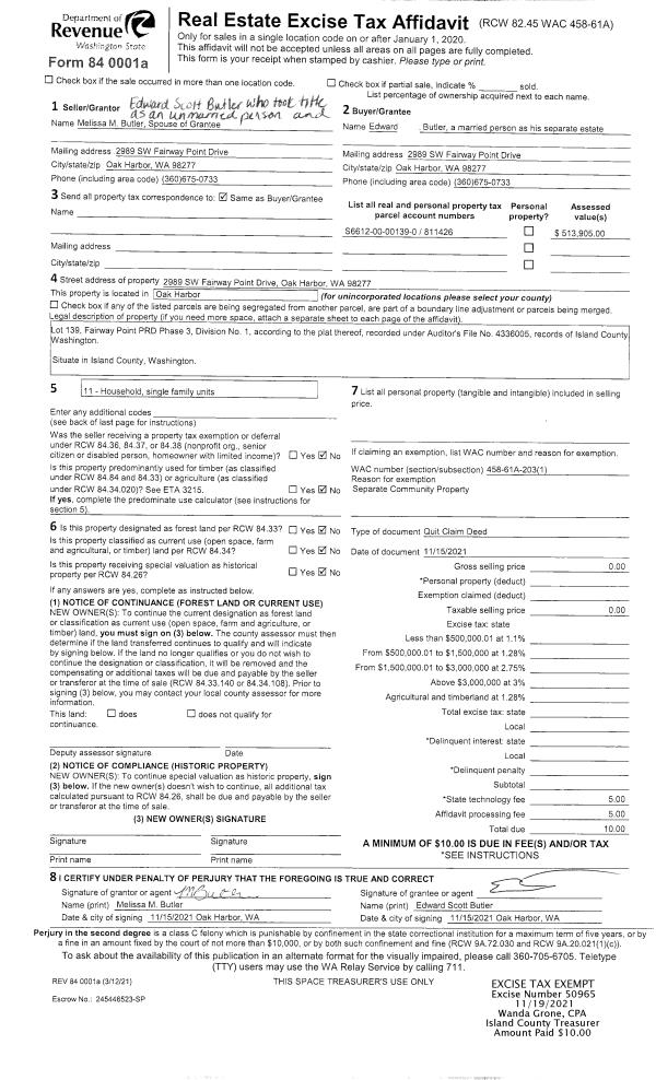
Property
Account |
| Property ID: | 297397 | Abbreviated Legal Description: | LK VU TERR LOT 56 |
| Geographic ID: | S7330-00-00056-0 | Agent Code: | |
| Type: | Real | | |
| Tax Area: | 790 - APPRAISER-S Whid Schl Dist, Special District, improved & less than 1 acre | Land Use Code | 11 |
| Open Space: | N | DFL | N |
| Historic Property: | N | Remodel Property: | N |
| Multi-Family Redevelopment: | N | | |
| Township: | | Section: | |
| Range: | |
Location |
| Address: | 2910 HI CREST RD LANGLEY, WA 98260 | Mapsco: | |
| Neighborhood: | Cycle 4 | Map ID: | 748 |
| Neighborhood CD: | 4 |
Owner |
| Name: | LUDINGTON, DIANE | Owner ID: | 200015 |
| Mailing Address: | 2910 HI CREST RD LANGLEY, WA 98260-9768 | % Ownership: | 100.0000000000% |
| | | Exemptions: | |
Taxes and Assessment Details
Values
| (+) Improvement Homesite Value: | + | $0 | |
| (+) Improvement Non-Homesite Value: | + | $101,876 | |
| (+) Land Homesite Value: | + | $0 | |
| (+) Land Non-Homesite Value: | + | $230,000 | |
| (+) Curr Use (HS): | + | $0 | $0 |
| (+) Curr Use (NHS): | + | $0 | $0 |
| | | -------------------------- | |
| (=) Market Value: | = | $331,876 | |
| (–) Productivity Loss: | – | $0 | |
| | | -------------------------- | |
| (=) Subtotal: | = | $331,876 | |
| (+) Senior Appraised Value: | + | $0 | |
| (+) Non-Senior Appraised Value: | + | $331,876 | |
| | | -------------------------- | |
| (=) Total Appraised Value: | = | $331,876 | |
| (–) Senior Exemption Loss: | – | $0 | |
| (–) Exemption Loss: | – | $0 | |
| | | -------------------------- | |
| (=) Taxable Value: | = | $331,876 | |
Taxing Jurisdiction
| Owner: | LUDINGTON, DIANE | | |
| % Ownership: | 100.0000000000% | | |
| Total Value: | $331,876 | | |
| Tax Area: | 790 - APPRAISER-S Whid Schl Dist, Special District, improved & less than 1 acre |
| CF | Conservation Futures | 0.0316035091 | $331,876 | $331,876 | $10.49 | | |
| FIRE3 | Fire & Rescue Dist #3 S Whidbey GEN | 1.2004855531 | $331,876 | $331,876 | $398.41 | | |
| HOBOND | Hospital BOND | 0.1910887512 | $331,876 | $331,876 | $63.42 | | |
| HOGEN | Hospital GEN | 0.3902502903 | $331,876 | $331,876 | $129.51 | | |
| CE | County Current Expense | 0.3708482477 | $331,876 | $331,876 | $123.08 | | |
| CR | County Roads | 0.4584763726 | $331,876 | $331,876 | $152.16 | | |
| ISLANDEMS | Hospital GEN (EMS) | 0.5000000000 | $331,876 | $331,876 | $165.94 | | |
| LIB | Library Sno-Isle GEN | 0.3153421757 | $331,876 | $331,876 | $104.65 | | |
| PORTWHID | Port of S Whidbey GEN | 0.1094540357 | $331,876 | $331,876 | $36.33 | | |
| SCH206BOND | School 206 BOND | 0.3161759235 | $331,876 | $331,876 | $104.93 | | |
| SCH206MO | School 206 Enrichment | 0.4547169547 | $331,876 | $331,876 | $150.91 | | |
| ST | State School | 1.3035497053 | $331,876 | $331,876 | $432.62 | | |
| ST2 | State School Part 2 | 0.8169543533 | $331,876 | $331,876 | $271.13 | | |
| SWHIDPRBD | P & R S Whidbey BOND | 0.0152817568 | $331,876 | $331,876 | $5.07 | | |
| SWHIDPRBD2 | P & R S Whidbey BOND2 | 0.0138911264 | $331,876 | $331,876 | $4.61 | | |
| SWHIDPRMT | P & R S Whidbey GEN | 0.2053334452 | $331,876 | $331,876 | $68.15 | | |
| | Total Tax Rate: | 6.6934522006 | | | | | |
| | | | | Taxes w/Current Exemptions: | $2,221.41 | | |
| | | | | Taxes w/o Exemptions: | $2,221.41 | | |
Improvement / Building
| Improvement #1: | MANUFACTURED HOME | State Code: | Y | 1404.0 sqft | Value: | $101,876 |
| Bathrooms: | 0 | Bedrooms: | 0 | | Ceiling: | PLASTER PAINTED | Cooling: | EVAP NO DUCT | | Exterior Wall/Cover: | VINYL | Floor Covering: | CARPET 100% | | Floor Structure: | SLAB ON GRADE | Foundation: | SLAB | | Heating: | FHA ELECTRIC | Interior Finish: | PLASTER | | Plumbing Fixture Cnt: | 1 | Roof Slope: | FLAT | | Roof Structure/Cover: | CJ ALUMINIUM HEAVY |   |   |
|
| | Type | Description | Class CD | Sub Class CD | Year Built | Area |
| | BAS | BASE/MAIN FLOOR | 4 | 0 | 1999 | 1404.0 |
| | OWP | OPEN WOOD PORCH W/STEPS | 4 | 0 | 1999 | 48.0 |
| | OWP | OPEN WOOD PORCH W/STEPS | 4 | 0 | 1999 | 192.0 |
Sketch
Property Image
Land
| 1 | 14 | SQ (08001-12000) | 0.0000 | 0.00 | 0.00 | 0.00 | 1.00 | $230,000 | $0 |
Roll Value History
| 2026 | N/A | N/A | N/A | N/A | N/A |
| 2025 | $101,876 | $230,000 | $0 | $331,876 | $331,876 |
| 2024 | $104,962 | $230,000 | $0 | $334,962 | $334,962 |
| 2023 | $93,948 | $230,000 | $0 | $323,948 | $323,948 |
| 2022 | $87,503 | $220,000 | $0 | $307,503 | $307,503 |
| 2021 | $77,148 | $130,000 | $0 | $207,148 | $207,148 |
| 2020 | $76,951 | $120,000 | $0 | $196,951 | $196,951 |
| 2019 | $62,235 | $150,000 | $0 | $212,235 | $212,235 |
| 2018 | $63,852 | $130,000 | $0 | $193,852 | $193,852 |
| 2017 | $65,468 | $110,000 | $0 | $175,468 | $175,468 |
| 2016 | $67,085 | $90,000 | $0 | $157,085 | $157,085 |
| 2015 | $68,701 | $55,000 | $0 | $123,701 | $123,701 |
| 2014 | $74,581 | $72,250 | $0 | $146,831 | $146,831 |
| 2013 | $76,165 | $72,250 | $0 | $148,415 | $148,415 |
| 2012 | $77,749 | $72,250 | $0 | $149,999 | $149,999 |
| 2011 | $79,333 | $85,000 | $0 | $164,333 | $164,333 |
| 2010 | $85,342 | $85,000 | $0 | $170,342 | $170,342 |
| 2009 | $90,442 | $105,000 | $0 | $195,442 | $195,442 |
| 2008 | $100,935 | $120,000 | $0 | $220,935 | $220,935 |
| 2007 | $102,130 | $120,000 | $0 | $222,130 | $222,130 |
Deed and Sales History
| 1 | 06/18/2008 | QCD | Quit Claim Deed | LUDINGTON, DIANE L | LUDINGTON, DIANE | | | $0.00 | 81584 | 4231141 |
| 2 | 12/01/1995 | DECREE | Divorce Decree/Legal Separation | RADOS, JOHN J | LUDINGTON, DIANE L | | | $0.00 | 60541 | 96002915 |
| 3 | 09/01/1989 | WD | Warranty Deed | COOPER, JOHNNY T | RADOS, JOHN J | | | $7,500.00 | 93963 | 89013152 |
| 4 | 04/01/1989 | WD | Warranty Deed | LONE, LAKE P | COOPER, JOHNNY T | | | $900.00 | 93265 | 89010973 |
| 5 | 01/01/1988 | OTHER | Other - Misc. Documents | OLD, STONE B | LONE, LAKE P | | | $0.00 | 62583 | 88000279 |
| 6 | 01/01/1987 | TRUSTEED | Trustee's Deed | PIRIE, JAMES M | OLD, STONE B | | | $0.00 | 70073 | 87000589 |
| 7 | 03/01/1979 | OTHER | Other - Misc. Documents | LUDINGTON, DIANE L | PIRIE, JAMES M | | | $5,040.00 | 92110 | 351972 |
| 8 | 01/01/1900 | PACD | Purchaser's Assignment | Unknown | LUDINGTON, DIANE L | | | $0.00 | 0 | 0 |
Payout Agreement
| No payout information available.. |