Property
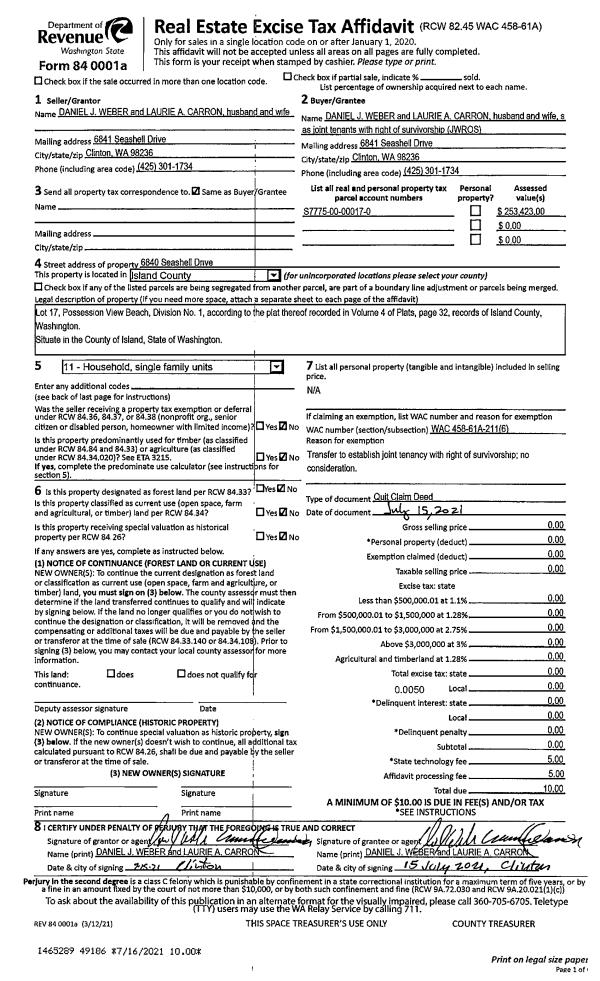
Account |
| Property ID: | 298127 | Abbreviated Legal Description: | LK VU TERR LOT 130 |
| Geographic ID: | S7330-00-00130-0 | Agent Code: | |
| Type: | Real | | |
| Tax Area: | 790 - APPRAISER-S Whid Schl Dist, Special District, improved & less than 1 acre | Land Use Code | 11 |
| Open Space: | N | DFL | N |
| Historic Property: | N | Remodel Property: | N |
| Multi-Family Redevelopment: | N | | |
| Township: | | Section: | |
| Range: | |
Location |
| Address: | 5374 MERCER DR LANGLEY, WA 98260 | Mapsco: | |
| Neighborhood: | Cycle 4 | Map ID: | 748 |
| Neighborhood CD: | 4 |
Owner |
| Name: | VANDE WERHORST, JOSHUA L | Owner ID: | 263722 |
| Mailing Address: | CARRIE R GARRISON 5374 MERCER DR LANGLEY, WA 98260 | % Ownership: | 100.0000000000% |
| | | Exemptions: | |
Taxes and Assessment Details
Values
| (+) Improvement Homesite Value: | + | $0 | |
| (+) Improvement Non-Homesite Value: | + | $255,358 | |
| (+) Land Homesite Value: | + | $0 | |
| (+) Land Non-Homesite Value: | + | $230,000 | |
| (+) Curr Use (HS): | + | $0 | $0 |
| (+) Curr Use (NHS): | + | $0 | $0 |
| | | -------------------------- | |
| (=) Market Value: | = | $485,358 | |
| (–) Productivity Loss: | – | $0 | |
| | | -------------------------- | |
| (=) Subtotal: | = | $485,358 | |
| (+) Senior Appraised Value: | + | $0 | |
| (+) Non-Senior Appraised Value: | + | $485,358 | |
| | | -------------------------- | |
| (=) Total Appraised Value: | = | $485,358 | |
| (–) Senior Exemption Loss: | – | $0 | |
| (–) Exemption Loss: | – | $0 | |
| | | -------------------------- | |
| (=) Taxable Value: | = | $485,358 | |
Taxing Jurisdiction
| Owner: | VANDE WERHORST, JOSHUA L | | |
| % Ownership: | 100.0000000000% | | |
| Total Value: | $485,358 | | |
| Tax Area: | 790 - APPRAISER-S Whid Schl Dist, Special District, improved & less than 1 acre |
| CF | Conservation Futures | 0.0316035091 | $485,358 | $485,358 | $15.34 | | |
| FIRE3 | Fire & Rescue Dist #3 S Whidbey GEN | 1.2004855531 | $485,358 | $485,358 | $582.67 | | |
| HOBOND | Hospital BOND | 0.1910887512 | $485,358 | $485,358 | $92.75 | | |
| HOGEN | Hospital GEN | 0.3902502903 | $485,358 | $485,358 | $189.41 | | |
| CE | County Current Expense | 0.3708482477 | $485,358 | $485,358 | $179.99 | | |
| CR | County Roads | 0.4584763726 | $485,358 | $485,358 | $222.53 | | |
| ISLANDEMS | Hospital GEN (EMS) | 0.5000000000 | $485,358 | $485,358 | $242.68 | | |
| LIB | Library Sno-Isle GEN | 0.3153421757 | $485,358 | $485,358 | $153.05 | | |
| PORTWHID | Port of S Whidbey GEN | 0.1094540357 | $485,358 | $485,358 | $53.12 | | |
| SCH206BOND | School 206 BOND | 0.3161759235 | $485,358 | $485,358 | $153.46 | | |
| SCH206MO | School 206 Enrichment | 0.4547169547 | $485,358 | $485,358 | $220.70 | | |
| ST | State School | 1.3035497053 | $485,358 | $485,358 | $632.69 | | |
| ST2 | State School Part 2 | 0.8169543533 | $485,358 | $485,358 | $396.52 | | |
| SWHIDPRBD | P & R S Whidbey BOND | 0.0152817568 | $485,358 | $485,358 | $7.42 | | |
| SWHIDPRBD2 | P & R S Whidbey BOND2 | 0.0138911264 | $485,358 | $485,358 | $6.74 | | |
| SWHIDPRMT | P & R S Whidbey GEN | 0.2053334452 | $485,358 | $485,358 | $99.66 | | |
| | Total Tax Rate: | 6.6934522006 | | | | | |
| | | | | Taxes w/Current Exemptions: | $3,248.73 | | |
| | | | | Taxes w/o Exemptions: | $3,248.73 | | |
Improvement / Building
| Improvement #1: | RESIDENTIAL | State Code: | Y | 1816.0 sqft | Value: | $255,358 |
| Bathrooms: | 3 | Bedrooms: | 3 | | Ceiling: | DRY WALL SPRAYED | Exterior Wall/Cover: | WOOD SIDING | | Floor Covering: | CARPET/VINYL 80-20 | Floor Structure: | WOOD W/SUBFLOOR | | Foundation: | CONCRETE | Heating: | WALL HEAT ELECTRIC | | Interior Finish: | DRYWALL PAINT | Plumbing Fixture Cnt: | 15 | | Roof Slope: | 4" IN 12" | Roof Structure/Cover: | CJ ASPHALT |
|
| | Type | Description | Class CD | Sub Class CD | Year Built | Area |
| | BAS | BASE/MAIN FLOOR | 3 | 0 | 1990 | 1048.0 |
| | AGR | ATTACHED GARAGE | 3 | 0 | 1990 | 320.0 |
| | OWP | OPEN WOOD PORCH W/STEPS | 3 | 0 | 1990 | 80.0 |
| | OWC | OPEN WOOD PORCH W/STEPS/ROOF/C | 3 | 0 | 1990 | 32.0 |
| | DWN | DOWNSTAIRS LIVING AREA | 3 | 0 | 1990 | 768.0 |
Sketch
Property Image
Land
| 1 | 14 | SQ (08001-12000) | 0.0000 | 0.00 | 0.00 | 0.00 | 1.00 | $230,000 | $0 |
Roll Value History
| 2026 | N/A | N/A | N/A | N/A | N/A |
| 2025 | $255,358 | $230,000 | $0 | $485,358 | $485,358 |
| 2024 | $258,540 | $230,000 | $0 | $488,540 | $488,540 |
| 2023 | $261,721 | $230,000 | $0 | $491,721 | $491,721 |
| 2022 | $239,887 | $220,000 | $0 | $459,887 | $459,887 |
| 2021 | $211,103 | $130,000 | $0 | $341,103 | $341,103 |
| 2020 | $197,833 | $120,000 | $0 | $317,833 | $317,833 |
| 2019 | $142,443 | $150,000 | $0 | $292,443 | $292,443 |
| 2018 | $142,872 | $130,000 | $0 | $272,872 | $272,872 |
| 2017 | $143,727 | $110,000 | $0 | $253,727 | $253,727 |
| 2016 | $145,438 | $90,000 | $0 | $235,438 | $235,438 |
| 2015 | $147,149 | $55,000 | $0 | $202,149 | $202,149 |
| 2014 | $132,943 | $72,250 | $0 | $205,193 | $205,193 |
| 2013 | $134,713 | $72,250 | $0 | $206,963 | $206,963 |
| 2012 | $136,486 | $72,250 | $0 | $208,736 | $208,736 |
| 2011 | $96,782 | $85,000 | $0 | $181,782 | $181,782 |
| 2010 | $99,666 | $85,000 | $0 | $184,666 | $184,666 |
| 2009 | $104,507 | $105,000 | $0 | $209,507 | $209,507 |
| 2008 | $151,006 | $120,000 | $0 | $271,006 | $271,006 |
| 2007 | $152,794 | $120,000 | $0 | $272,794 | $272,794 |
Deed and Sales History
| 1 | 09/16/2013 | WD | Warranty Deed | LEON, MARK A | VANDE WERHORST, JOSHUA L | | | $203,500.00 | 12808 | 4348208 |
| 2 | 04/29/2009 | TRUSTEED | Trustee's Deed | C/O HOME LOAN SERVICES INC, DE | LEON, MARK A | | | $103,500.00 | 91014 | 4250919 |
| 3 | 12/07/2007 | TRUSTEED | Trustee's Deed | MATHIESEN, DENI | C/O HOME LOAN SERVICES INC, DE | | | $201,603.00 | 73974 | 4217765 |
| 4 | 11/04/2005 | ESTSEPPROP | Establish Separate Property | MATHIESEN, DENI | MATHIESEN, DENI | | | $0.00 | 55691 | 4153882 |
| 5 | 11/04/2005 | WD | Warranty Deed | RICH, JAMES D | MATHIESEN, DENI | | | $240,000.00 | 55690 | 4153881 |
| 6 | 06/13/2003 | WD | Warranty Deed | RICH, JAMES D | RICH, JAMES D | | | $154,000.00 | 32650 | 4063630 |
| 7 | 06/12/2003 | ESTSEPPROP | Establish Separate Property | STODDARD, PATRICIA ANN | RICH, JAMES D | | | $0.00 | 32649 | 4063629 |
| 8 | 02/20/2001 | ESTSEPPROP | Establish Separate Property | HAMILTON, RICHARD | STODDARD, PATRICIA ANN | | | $0.00 | 10540 | 20025832 |
| 9 | 09/10/1999 | QCD | Quit Claim Deed | STODDARD, PAT | HAMILTON, RICHARD | | | $0.00 | 93990 | 99022102 |
| 10 | 03/18/1999 | WD | Warranty Deed | HAMILTON, RICHARD C | STODDARD, PAT | | | $120,000.00 | 91186 | 99007739 |
| 11 | 10/01/1995 | REC | Real Estate Contract | SMITH, HENRY A | HAMILTON, RICHARD C | | | $63,092.00 | 53484 | 95015953 |
| 12 | 05/01/1990 | WD | Warranty Deed | RISVOLD, ROBERT D | SMITH, HENRY A | | | $10,000.00 | 2929 | 90009491 |
| 13 | 06/01/1979 | EXECUTORD | Executor Deed | LONE, LAKE P | RISVOLD, ROBERT D | | | $7,000.00 | 93015 | 354398 |
| 14 | 01/01/1900 | OTHER | Other - Misc. Documents | STODDARD, PAT | LONE, LAKE P | | | $0.00 | 0 | 0 |
| 15 | 01/01/1900 | OTHER | Other - Misc. Documents | Unknown | STODDARD, PAT | | | $0.00 | 0 | 0 |
Payout Agreement
| No payout information available.. |