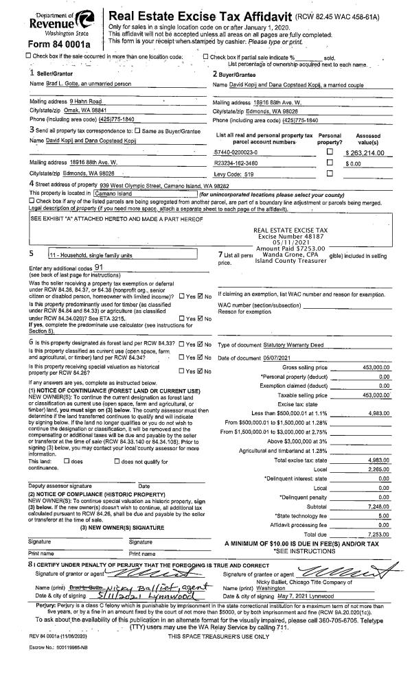
Property
Account |
| Property ID: | 298403 | Abbreviated Legal Description: | LK VU TERR LOT 158 |
| Geographic ID: | S7330-00-00158-0 | Agent Code: | |
| Type: | Real | | |
| Tax Area: | 790 - APPRAISER-S Whid Schl Dist, Special District, improved & less than 1 acre | Land Use Code | 11 |
| Open Space: | N | DFL | N |
| Historic Property: | N | Remodel Property: | N |
| Multi-Family Redevelopment: | N | | |
| Township: | | Section: | |
| Range: | |
Location |
| Address: | 2903 HI CREST RD LANGLEY, WA 98260 | Mapsco: | |
| Neighborhood: | Cycle 4 | Map ID: | 748 |
| Neighborhood CD: | 4 |
Owner |
| Name: | RYAN, RICHARD T | Owner ID: | 289086 |
| Mailing Address: | SUSAN N RYAN 2903 HI CREST RD LANGLEY, WA 98260 | % Ownership: | 100.0000000000% |
| | | Exemptions: | |
Taxes and Assessment Details
Values
| (+) Improvement Homesite Value: | + | $0 | |
| (+) Improvement Non-Homesite Value: | + | $304,648 | |
| (+) Land Homesite Value: | + | $0 | |
| (+) Land Non-Homesite Value: | + | $230,000 | |
| (+) Curr Use (HS): | + | $0 | $0 |
| (+) Curr Use (NHS): | + | $0 | $0 |
| | | -------------------------- | |
| (=) Market Value: | = | $534,648 | |
| (–) Productivity Loss: | – | $0 | |
| | | -------------------------- | |
| (=) Subtotal: | = | $534,648 | |
| (+) Senior Appraised Value: | + | $0 | |
| (+) Non-Senior Appraised Value: | + | $534,648 | |
| | | -------------------------- | |
| (=) Total Appraised Value: | = | $534,648 | |
| (–) Senior Exemption Loss: | – | $0 | |
| (–) Exemption Loss: | – | $0 | |
| | | -------------------------- | |
| (=) Taxable Value: | = | $534,648 | |
Taxing Jurisdiction
| Owner: | RYAN, RICHARD T | | |
| % Ownership: | 100.0000000000% | | |
| Total Value: | $534,648 | | |
| Tax Area: | 790 - APPRAISER-S Whid Schl Dist, Special District, improved & less than 1 acre |
| CF | Conservation Futures | 0.0316035091 | $534,648 | $534,648 | $16.90 | | |
| FIRE3 | Fire & Rescue Dist #3 S Whidbey GEN | 1.2004855531 | $534,648 | $534,648 | $641.84 | | |
| HOBOND | Hospital BOND | 0.1910887512 | $534,648 | $534,648 | $102.17 | | |
| HOGEN | Hospital GEN | 0.3902502903 | $534,648 | $534,648 | $208.65 | | |
| CE | County Current Expense | 0.3708482477 | $534,648 | $534,648 | $198.27 | | |
| CR | County Roads | 0.4584763726 | $534,648 | $534,648 | $245.12 | | |
| ISLANDEMS | Hospital GEN (EMS) | 0.5000000000 | $534,648 | $534,648 | $267.32 | | |
| LIB | Library Sno-Isle GEN | 0.3153421757 | $534,648 | $534,648 | $168.60 | | |
| PORTWHID | Port of S Whidbey GEN | 0.1094540357 | $534,648 | $534,648 | $58.52 | | |
| SCH206BOND | School 206 BOND | 0.3161759235 | $534,648 | $534,648 | $169.04 | | |
| SCH206MO | School 206 Enrichment | 0.4547169547 | $534,648 | $534,648 | $243.11 | | |
| ST | State School | 1.3035497053 | $534,648 | $534,648 | $696.94 | | |
| ST2 | State School Part 2 | 0.8169543533 | $534,648 | $534,648 | $436.78 | | |
| SWHIDPRBD | P & R S Whidbey BOND | 0.0152817568 | $534,648 | $534,648 | $8.17 | | |
| SWHIDPRBD2 | P & R S Whidbey BOND2 | 0.0138911264 | $534,648 | $534,648 | $7.43 | | |
| SWHIDPRMT | P & R S Whidbey GEN | 0.2053334452 | $534,648 | $534,648 | $109.78 | | |
| | Total Tax Rate: | 6.6934522006 | | | | | |
| | | | | Taxes w/Current Exemptions: | $3,578.64 | | |
| | | | | Taxes w/o Exemptions: | $3,578.64 | | |
Improvement / Building
| Improvement #1: | RESIDENTIAL | State Code: | Y | 1448.0 sqft | Value: | $304,648 |
| Bathrooms: | 2 | Bedrooms: | 3 | | Ceiling: | DRYWALL PAINTED | Cooling: | HEAT PUMP/CONV/V | | Exterior Wall/Cover: | CEMENT FIBER | Floor Covering: | VINYL 100% | | Floor Structure: | WOOD W/SUBFLOOR | Foundation: | CONCRETE | | Interior Finish: | DRYWALL PAINT | Plumbing Fixture Cnt: | 9 | | Roof Slope: | 5" IN 12" | Roof Structure/Cover: | CJ ASPHALT |
|
| | Type | Description | Class CD | Sub Class CD | Year Built | Area |
| | BAS | BASE/MAIN FLOOR | 3 | 0 | 2019 | 1448.0 |
| | AGR | ATTACHED GARAGE | 3 | 0 | 2019 | 484.0 |
| | OWP | OPEN WOOD PORCH W/STEPS | 3 | 0 | 2019 | 256.0 |
Sketch
Property Image
Land
| 1 | 15 | SQ (12001-21780) | 0.0000 | 0.00 | 0.00 | 0.00 | 1.00 | $230,000 | $0 |
Roll Value History
| 2026 | N/A | N/A | N/A | N/A | N/A |
| 2025 | $304,648 | $230,000 | $0 | $534,648 | $534,648 |
| 2024 | $307,105 | $230,000 | $0 | $537,105 | $537,105 |
| 2023 | $309,562 | $230,000 | $0 | $539,562 | $539,562 |
| 2022 | $282,538 | $220,000 | $0 | $502,538 | $502,538 |
| 2021 | $248,264 | $130,000 | $0 | $378,264 | $378,264 |
| 2020 | $202,363 | $120,000 | $0 | $322,363 | $322,363 |
| 2019 | $48,766 | $70,000 | $0 | $118,766 | $118,766 |
| 2018 | $0 | $70,000 | $0 | $70,000 | $70,000 |
| 2017 | $0 | $60,000 | $0 | $60,000 | $60,000 |
| 2016 | $0 | $15,000 | $0 | $15,000 | $15,000 |
| 2015 | $0 | $15,000 | $0 | $15,000 | $15,000 |
| 2014 | $0 | $18,000 | $0 | $18,000 | $18,000 |
| 2013 | $0 | $16,250 | $0 | $16,250 | $16,250 |
| 2012 | $0 | $16,250 | $0 | $16,250 | $16,250 |
| 2011 | $0 | $16,250 | $0 | $16,250 | $16,250 |
| 2010 | $0 | $16,250 | $0 | $16,250 | $16,250 |
| 2009 | $0 | $16,250 | $0 | $16,250 | $16,250 |
| 2008 | $0 | $23,750 | $0 | $23,750 | $23,750 |
| 2007 | $0 | $11,000 | $0 | $11,000 | $11,000 |
Deed and Sales History
| 1 | 10/20/2020 | WD | Warranty Deed | HANSON, VICTOR E | RYAN, RICHARD T | | | $409,000.00 | 45506 | 4501122 |
| 2 | 04/17/2006 | WD | Warranty Deed | CARROLL, OMAR | HANSON, VICTOR E | | | $17,500.00 | 61697 | 4168071 |
| 3 | 12/01/1990 | QCD | Quit Claim Deed | CARROLL, JACQUELINE J | CARROLL, OMAR | | | $0.00 | 6746 | 90023518 |
| 4 | 12/01/1990 | WD | Warranty Deed | Unknown | CARROLL, JACQUELINE J | | | $0.00 | 6747 | 90023519 |
Payout Agreement
| No payout information available.. |