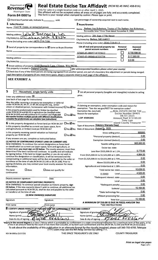
Property
Account |
| Property ID: | 298528 | Abbreviated Legal Description: | LANCASTER HTS LOT 1 |
| Geographic ID: | S7335-00-00001-0 | Agent Code: | |
| Type: | Real | | |
| Tax Area: | 710 - APPRAISER-S Whid Schl Dist, outside Langley, improved & 1 acre or less | Land Use Code | 11 |
| Open Space: | N | DFL | N |
| Historic Property: | N | Remodel Property: | N |
| Multi-Family Redevelopment: | N | | |
| Township: | | Section: | |
| Range: | |
Location |
| Address: | 6005 WHITE DEER LN FREELAND, WA 98249 | Mapsco: | |
| Neighborhood: | Cycle 3 | Map ID: | 340 |
| Neighborhood CD: | 3 |
Owner |
| Name: | KANE, DAVID C | Owner ID: | 315299 |
| Mailing Address: | 6005 SOUTH WHITE DEER LN FREELAND, WA 98249 | % Ownership: | 100.0000000000% |
| | | Exemptions: | |
Taxes and Assessment Details
Values
| (+) Improvement Homesite Value: | + | $0 | |
| (+) Improvement Non-Homesite Value: | + | $231,191 | |
| (+) Land Homesite Value: | + | $0 | |
| (+) Land Non-Homesite Value: | + | $340,000 | |
| (+) Curr Use (HS): | + | $0 | $0 |
| (+) Curr Use (NHS): | + | $0 | $0 |
| | | -------------------------- | |
| (=) Market Value: | = | $571,191 | |
| (–) Productivity Loss: | – | $0 | |
| | | -------------------------- | |
| (=) Subtotal: | = | $571,191 | |
| (+) Senior Appraised Value: | + | $0 | |
| (+) Non-Senior Appraised Value: | + | $571,191 | |
| | | -------------------------- | |
| (=) Total Appraised Value: | = | $571,191 | |
| (–) Senior Exemption Loss: | – | $0 | |
| (–) Exemption Loss: | – | $0 | |
| | | -------------------------- | |
| (=) Taxable Value: | = | $571,191 | |
Taxing Jurisdiction
| Owner: | KANE, DAVID C | | |
| % Ownership: | 100.0000000000% | | |
| Total Value: | $571,191 | | |
| Tax Area: | 710 - APPRAISER-S Whid Schl Dist, outside Langley, improved & 1 acre or less |
| CF | Conservation Futures | 0.0316035091 | $571,191 | $571,191 | $18.05 | | |
| FIRE3 | Fire & Rescue Dist #3 S Whidbey GEN | 1.2004855531 | $571,191 | $571,191 | $685.71 | | |
| HOBOND | Hospital BOND | 0.1910887512 | $571,191 | $571,191 | $109.15 | | |
| HOGEN | Hospital GEN | 0.3902502903 | $571,191 | $571,191 | $222.91 | | |
| CE | County Current Expense | 0.3708482477 | $571,191 | $571,191 | $211.83 | | |
| CR | County Roads | 0.4584763726 | $571,191 | $571,191 | $261.88 | | |
| ISLANDEMS | Hospital GEN (EMS) | 0.5000000000 | $571,191 | $571,191 | $285.60 | | |
| LIB | Library Sno-Isle GEN | 0.3153421757 | $571,191 | $571,191 | $180.12 | | |
| PORTWHID | Port of S Whidbey GEN | 0.1094540357 | $571,191 | $571,191 | $62.52 | | |
| SCH206BOND | School 206 BOND | 0.3161759235 | $571,191 | $571,191 | $180.60 | | |
| SCH206MO | School 206 Enrichment | 0.4547169547 | $571,191 | $571,191 | $259.73 | | |
| ST | State School | 1.3035497053 | $571,191 | $571,191 | $744.58 | | |
| ST2 | State School Part 2 | 0.8169543533 | $571,191 | $571,191 | $466.64 | | |
| SWHIDPRBD | P & R S Whidbey BOND | 0.0152817568 | $571,191 | $571,191 | $8.73 | | |
| SWHIDPRBD2 | P & R S Whidbey BOND2 | 0.0138911264 | $571,191 | $571,191 | $7.93 | | |
| SWHIDPRMT | P & R S Whidbey GEN | 0.2053334452 | $571,191 | $571,191 | $117.28 | | |
| | Total Tax Rate: | 6.6934522006 | | | | | |
| | | | | Taxes w/Current Exemptions: | $3,823.26 | | |
| | | | | Taxes w/o Exemptions: | $3,823.26 | | |
Improvement / Building
| Improvement #1: | RESIDENTIAL | State Code: | Y | 1224.0 sqft | Value: | $231,191 |
| Bathrooms: | 1.5 | Bedrooms: | 2 | | Ceiling: | DRYWALL PAINTED | Exterior Wall/Cover: | WOOD SIDING | | Floor Covering: | CARPET/VINYL 80-20 | Floor Structure: | WOOD W/SUBFLOOR | | Foundation: | CONCRETE | Heating: | HEAT PUMP | | Interior Finish: | DRYWALL PAINT | Plumbing Fixture Cnt: | 8 | | Roof Slope: | 5" IN 12" | Roof Structure/Cover: | CJ ALUMINIUM HEAVY |
|
| | Type | Description | Class CD | Sub Class CD | Year Built | Area |
| | BAS | BASE/MAIN FLOOR | 3 | 0 | 1980 | 1224.0 |
| | OP1 | OPEN PORCH SLAB | 3 | 0 | 1980 | 48.0 |
| | OP1 | OPEN PORCH SLAB | 3 | 0 | 1980 | 207.6 |
| | OP3 | OPEN PORCH W/ROOF | 3 | 0 | 1980 | 80.0 |
| | AGR | ATTACHED GARAGE | 3 | 0 | 1980 | 560.0 |
| | OWP | OPEN WOOD PORCH W/STEPS | 3 | 0 | 1980 | 487.0 |
Sketch
Property Image
Land
| 1 | 15 | SQ (12001-21780) | 0.3000 | 13068.00 | 0.00 | 0.00 | 1.00 | $340,000 | $0 |
Roll Value History
| 2026 | N/A | N/A | N/A | N/A | N/A |
| 2025 | $231,191 | $340,000 | $0 | $571,191 | $571,191 |
| 2024 | $230,487 | $320,000 | $0 | $550,487 | $550,487 |
| 2023 | $233,592 | $300,000 | $0 | $533,592 | $533,592 |
| 2022 | $214,342 | $270,000 | $0 | $484,342 | $484,342 |
| 2021 | $188,820 | $190,000 | $0 | $378,820 | $378,820 |
| 2020 | $184,095 | $170,000 | $0 | $354,095 | $354,095 |
| 2019 | $127,131 | $200,000 | $0 | $327,131 | $327,131 |
| 2018 | $127,548 | $190,000 | $0 | $317,548 | $317,548 |
| 2017 | $128,379 | $175,000 | $0 | $303,379 | $303,379 |
| 2016 | $130,045 | $165,000 | $0 | $295,045 | $295,045 |
| 2015 | $131,712 | $165,000 | $0 | $296,712 | $296,712 |
| 2014 | $133,380 | $165,000 | $0 | $298,380 | $298,380 |
| 2013 | $134,354 | $125,000 | $0 | $259,354 | $259,354 |
| 2012 | $136,188 | $115,000 | $0 | $251,188 | $251,188 |
| 2011 | $138,023 | $115,000 | $0 | $253,023 | $253,023 |
| 2010 | $145,868 | $115,000 | $0 | $260,868 | $260,868 |
| 2009 | $152,172 | $167,040 | $0 | $319,212 | $319,212 |
| 2008 | $154,113 | $174,000 | $0 | $328,113 | $328,113 |
| 2007 | $131,038 | $174,000 | $0 | $305,038 | $305,038 |
Deed and Sales History
| 1 | 01/29/2025 | WD | Warranty Deed | CROWNOVER, DARREN W | KANE, DAVID C | | | $500,000.00 | 62454 | 4581802 |
| 2 | 10/11/2024 | PRD | Personal Representatives Deed | ESTATE OF HARRIET A MCKELVEY | CROWNOVER, DARREN W | | | $0.00 | 61544 | 4578166 |
| 3 | 04/26/2004 | WD | Warranty Deed | HART, JOHN K | MCKELVEY, HARRIET A | | | $254,000.00 | 41733 | 4098805 |
| 4 | 07/25/2001 | TRUSTEED | Trustee's Deed | POIRIER, MARIE A | HART, JOHN K | | | $181,500.00 | 13037 | 20039779 |
| 5 | 09/12/1997 | QCD | Quit Claim Deed | POIRIER, MARIE A | POIRIER, MARIE A | | | $0.00 | 11636 | 20032036 |
| 6 | 12/01/1996 | PRD | Personal Representatives Deed | POIRIER, LOUIS S | POIRIER, MARIE A | | | $0.00 | 64428 | 96021583 |
| 7 | 04/01/1980 | TRUSTEED | Trustee's Deed | PACKARD, MARTIN O | POIRIER, LOUIS S | | | $17,750.00 | 1447 | 368181 |
| 8 | 04/01/1979 | OTHER | Other - Misc. Documents | Unknown | PACKARD, MARTIN O | | | $16,000.00 | 91661 | 350723 |
Payout Agreement
| No payout information available.. |