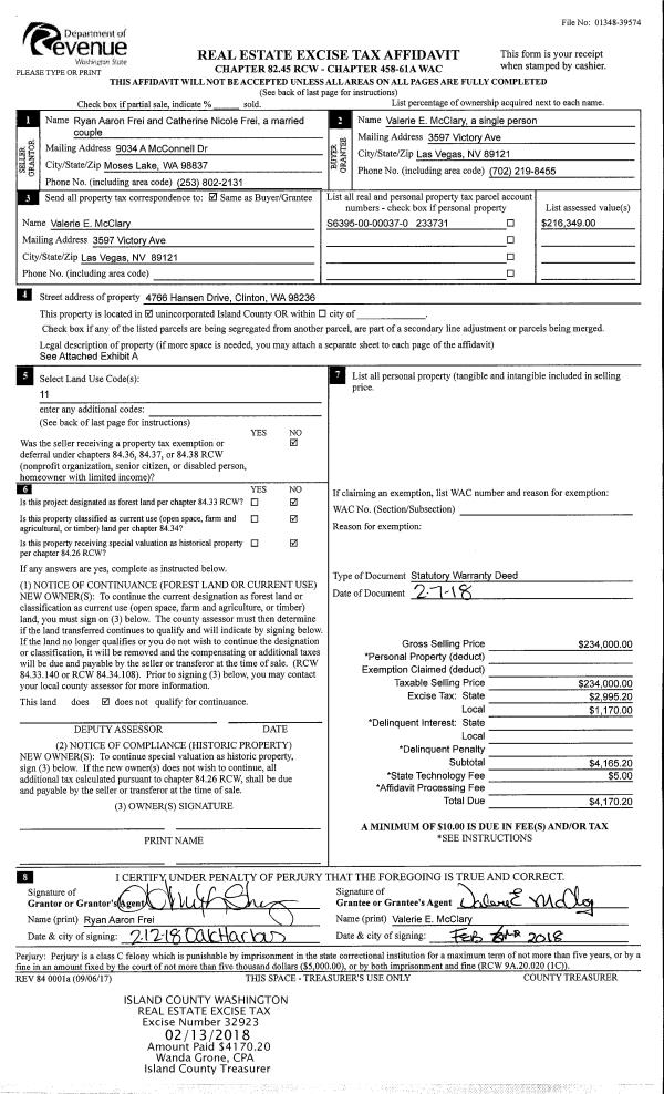
Property
Account |
| Property ID: | 298546 | Abbreviated Legal Description: | LANCASTER HTS LOTS 3 & 4 |
| Geographic ID: | S7335-00-00003-0 | Agent Code: | |
| Type: | Real | | |
| Tax Area: | 710 - APPRAISER-S Whid Schl Dist, outside Langley, improved & 1 acre or less | Land Use Code | 11 |
| Open Space: | N | DFL | N |
| Historic Property: | N | Remodel Property: | N |
| Multi-Family Redevelopment: | N | | |
| Township: | | Section: | |
| Range: | |
Location |
| Address: | 6021 WHITE DEER LN FREELAND, WA 98249 | Mapsco: | |
| Neighborhood: | Cycle 3 | Map ID: | 340 |
| Neighborhood CD: | 3 |
Owner |
| Name: | MCMANAMEN, DONALD JOSEPH | Owner ID: | 314036 |
| Mailing Address: | SUSAN CHARLENE MCMANAMEN 6021 SOUTH WHITE DEER LN FREELAND, WA 98249 | % Ownership: | 100.0000000000% |
| | | Exemptions: | SNR/DSBL |
Taxes and Assessment Details
Values
| (+) Improvement Homesite Value: | + | $0 | |
| (+) Improvement Non-Homesite Value: | + | $463,170 | |
| (+) Land Homesite Value: | + | $0 | |
| (+) Land Non-Homesite Value: | + | $360,000 | |
| (+) Curr Use (HS): | + | $0 | $0 |
| (+) Curr Use (NHS): | + | $0 | $0 |
| | | -------------------------- | |
| (=) Market Value: | = | $823,170 | |
| (–) Productivity Loss: | – | $0 | |
| | | -------------------------- | |
| (=) Subtotal: | = | $823,170 | |
| (+) Senior Appraised Value: | + | $0 | |
| (+) Non-Senior Appraised Value: | + | $823,170 | |
| | | -------------------------- | |
| (=) Total Appraised Value: | = | $823,170 | |
| (–) Senior Exemption Loss: | – | $0 | |
| (–) Exemption Loss: | – | $0 | |
| | | -------------------------- | |
| (=) Taxable Value: | = | $823,170 | |
Taxing Jurisdiction
| Owner: | MCMANAMEN, DONALD JOSEPH | | |
| % Ownership: | 100.0000000000% | | |
| Total Value: | $823,170 | | |
| Tax Area: | 710 - APPRAISER-S Whid Schl Dist, outside Langley, improved & 1 acre or less |
| CF | Conservation Futures | 0.0316035091 | $823,170 | $823,170 | $26.02 | | |
| FIRE3 | Fire & Rescue Dist #3 S Whidbey GEN | 1.2004855531 | $823,170 | $823,170 | $988.20 | | |
| HOBOND | Hospital BOND | 0.0000000000 | $823,170 | $823,170 | $157.30 | | |
| HOGEN | Hospital GEN | 0.3902502903 | $823,170 | $823,170 | $321.24 | | |
| CE | County Current Expense | 0.3708482477 | $823,170 | $823,170 | $305.27 | | |
| CR | County Roads | 0.4584763726 | $823,170 | $823,170 | $377.40 | | |
| ISLANDEMS | Hospital GEN (EMS) | 0.5000000000 | $823,170 | $823,170 | $411.59 | | |
| LIB | Library Sno-Isle GEN | 0.3153421757 | $823,170 | $823,170 | $259.58 | | |
| PORTWHID | Port of S Whidbey GEN | 0.1094540357 | $823,170 | $823,170 | $90.10 | | |
| SCH206BOND | School 206 BOND | 0.3161759235 | $823,170 | $823,170 | $260.27 | | |
| SCH206MO | School 206 Enrichment | 0.0000000000 | $823,170 | $823,170 | $374.31 | | |
| ST | State School | 1.3035497053 | $823,170 | $823,170 | $1,073.04 | | |
| ST2 | State School Part 2 | 0.0000000000 | $823,170 | $823,170 | $672.49 | | |
| SWHIDPRBD | P & R S Whidbey BOND | 0.0000000000 | $823,170 | $823,170 | $12.58 | | |
| SWHIDPRBD2 | P & R S Whidbey BOND2 | 0.0000000000 | $823,170 | $823,170 | $11.43 | | |
| SWHIDPRMT | P & R S Whidbey GEN | 0.2053334452 | $823,170 | $823,170 | $169.02 | | |
| | Total Tax Rate: | 5.2015192582 | | | | | |
| | | | | Taxes w/Current Exemptions: | $5,509.84 | | |
| | | | | Taxes w/o Exemptions: | $5,509.84 | | |
Improvement / Building
| Improvement #1: | RESIDENTIAL | State Code: | Y | 3524.7 sqft | Value: | $463,170 |
| Bathrooms: | 3 | Bedrooms: | 3 | | Ceiling: | DRY WALL SPRAYED | Cooling: | HEAT PUMP/CONV/V | | Exterior Wall/Cover: | WOOD SIDING | Floor Covering: | CARPET/VINYL 60-40 | | Floor Structure: | WOOD W/SUBFLOOR | Foundation: | CONCRETE | | Interior Finish: | DRYWALL PAINT | Plumbing Fixture Cnt: | 13 | | Roof Slope: | FLAT | Roof Structure/Cover: | CJ METAL |
|
| | Type | Description | Class CD | Sub Class CD | Year Built | Area |
| | BAS | BASE/MAIN FLOOR | 3 | 0 | 1975 | 1748.7 |
| | OP1 | OPEN PORCH SLAB | 3 | 0 | 1975 | 252.0 |
| | OP1 | OPEN PORCH SLAB | 3 | 0 | 1975 | 30.0 |
| | OP4 | OPEN PORCH W/CEILING-ROOF | 3 | 0 | 1975 | 36.0 |
| | BGR | BASEMENT GARAGE | 3 | 0 | 1975 | 360.0 |
| | UPS | UPPER STORY | 3 | 0 | 1975 | 440.0 |
| | OWP | OPEN WOOD PORCH W/STEPS | 3 | 0 | 1975 | 210.6 |
| | OWC | OPEN WOOD PORCH W/STEPS/ROOF/C | 3 | 0 | 1975 | 103.7 |
| | DWN | DOWNSTAIRS LIVING AREA | 3 | 0 | 1975 | 1336.0 |
| | oPOL | POLE BARN | 4 | 0 | 1975 | 1156.0 |
Sketch
Property Image
Land
| 1 | 16 | AC (00.51-01.00) | 0.6100 | 26571.60 | 0.00 | 0.00 | 1.00 | $360,000 | $0 |
Roll Value History
| 2026 | N/A | N/A | N/A | N/A | N/A |
| 2025 | $463,170 | $360,000 | $0 | $823,170 | $823,170 |
| 2024 | $399,389 | $320,000 | $0 | $719,389 | $719,389 |
| 2023 | $405,415 | $300,000 | $0 | $705,415 | $705,415 |
| 2022 | $372,580 | $270,000 | $0 | $642,580 | $642,580 |
| 2021 | $328,740 | $190,000 | $0 | $518,740 | $518,740 |
| 2020 | $322,460 | $170,000 | $0 | $492,460 | $492,460 |
| 2019 | $195,524 | $200,000 | $0 | $395,524 | $395,524 |
| 2018 | $196,259 | $190,000 | $0 | $386,259 | $386,259 |
| 2017 | $197,663 | $175,000 | $0 | $372,663 | $372,663 |
| 2016 | $200,603 | $125,000 | $0 | $325,603 | $325,603 |
| 2015 | $203,543 | $125,000 | $0 | $328,543 | $328,543 |
| 2014 | $206,482 | $125,000 | $0 | $331,482 | $331,482 |
| 2013 | $208,350 | $125,000 | $0 | $333,350 | $333,350 |
| 2012 | $211,349 | $115,000 | $0 | $326,349 | $326,349 |
| 2011 | $214,350 | $115,000 | $0 | $329,350 | $329,350 |
| 2010 | $228,592 | $115,000 | $0 | $343,592 | $343,592 |
| 2009 | $239,154 | $168,000 | $0 | $407,154 | $407,154 |
| 2008 | $243,076 | $232,000 | $0 | $475,076 | $475,076 |
| 2007 | $246,632 | $232,000 | $0 | $478,632 | $478,632 |
Deed and Sales History
| 1 | 09/26/2024 | WD | Warranty Deed | KANE, DAVID | MCMANAMEN, DONALD JOSEPH | | | $885,000.00 | 61415 | 4577662 |
| 2 | 04/20/2018 | QCD | Quit Claim Deed | KANE, DAVID C | KANE, DAVID | | | $0.00 | 33804 | 4443170 |
| 3 | 06/18/2013 | PRD | Personal Representatives Deed | JOBSON, ANNA | KANE, DAVID C | | | $300,000.00 | 11745 | 4342477 |
| 4 | 09/29/2011 | | | JOBSON, WILSON T | JOBSON, ANNA | | | | 82163 | |
| 5 | 03/21/2011 | QCD | Quit Claim Deed | JOBSON, WALTER W | JOBSON, WILSON T | | | $0.00 | 3920 | 4292579 |
| 6 | 02/03/2004 | BLA | DNU - Boundary Line Adjustment | JOBSON, WALTER W | JOBSON, WALTER W | | | $0.00 | 70159 | 4072515 |
| 7 | 08/01/1983 | WD | Warranty Deed | JOBSON, WALTER W | JOBSON, WALTER W | | | $0.00 | 32263 | 413347 |
| 8 | 07/01/1983 | WD | Warranty Deed | JAEGER, PETER | JOBSON, WALTER W | | | $158,000.00 | 31991 | 412277 |
| 9 | 01/01/1900 | OTHER | Other - Misc. Documents | Unknown | JAEGER, PETER | | | $0.00 | 0 | 0 |
Payout Agreement
| No payout information available.. |