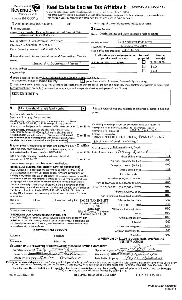
Property
Account |
| Property ID: | 298797 | Abbreviated Legal Description: | LANDS HILL EST LOTS 5 & 6 |
| Geographic ID: | S7340-00-00006-0 | Agent Code: | |
| Type: | Real | | |
| Tax Area: | 580 - APPRAISER-Stan/Cam Schl Dist, Special Dist, improved & less than 1 acre | Land Use Code | 11 |
| Open Space: | N | DFL | N |
| Historic Property: | N | Remodel Property: | N |
| Multi-Family Redevelopment: | N | | |
| Township: | | Section: | |
| Range: | |
Location |
| Address: | 1439 LARKSPUR LN CAMANO ISLAND, WA 98282 | Mapsco: | |
| Neighborhood: | North Camano | Map ID: | 973 |
| Neighborhood CD: | 06-C |
Owner |
| Name: | DAY, SHERYL | Owner ID: | 65144 |
| Mailing Address: | 1439 LARKSPUR LN CAMANO ISLAND, WA 98282 | % Ownership: | 100.0000000000% |
| | | Exemptions: | |
Taxes and Assessment Details
Values
| (+) Improvement Homesite Value: | + | $0 | |
| (+) Improvement Non-Homesite Value: | + | $394,980 | |
| (+) Land Homesite Value: | + | $0 | |
| (+) Land Non-Homesite Value: | + | $380,000 | |
| (+) Curr Use (HS): | + | $0 | $0 |
| (+) Curr Use (NHS): | + | $0 | $0 |
| | | -------------------------- | |
| (=) Market Value: | = | $774,980 | |
| (–) Productivity Loss: | – | $0 | |
| | | -------------------------- | |
| (=) Subtotal: | = | $774,980 | |
| (+) Senior Appraised Value: | + | $0 | |
| (+) Non-Senior Appraised Value: | + | $774,980 | |
| | | -------------------------- | |
| (=) Total Appraised Value: | = | $774,980 | |
| (–) Senior Exemption Loss: | – | $0 | |
| (–) Exemption Loss: | – | $0 | |
| | | -------------------------- | |
| (=) Taxable Value: | = | $774,980 | |
Taxing Jurisdiction
| Owner: | DAY, SHERYL | | |
| % Ownership: | 100.0000000000% | | |
| Total Value: | $774,980 | | |
| Tax Area: | 580 - APPRAISER-Stan/Cam Schl Dist, Special Dist, improved & less than 1 acre |
| CF | Conservation Futures | 0.0316035091 | $774,980 | $774,980 | $24.49 | | |
| EMS1 | Fire & Rescue Dist #1 Camano GEN (EMS) | 0.3677864386 | $774,980 | $774,980 | $285.03 | | |
| FIRE1 | Fire & Rescue Dist #1 Camano GEN | 1.2502910536 | $774,980 | $774,980 | $968.95 | | |
| FIRE1BOND | Fire & Rescue Dist #1 Camano BOND | 0.1570001679 | $774,980 | $774,980 | $121.67 | | |
| CE | County Current Expense | 0.3708482477 | $774,980 | $774,980 | $287.40 | | |
| CR | County Roads | 0.4584763726 | $774,980 | $774,980 | $355.31 | | |
| LCIB | Library Sno-Isle BOND (Camano Island) | 0.0396325772 | $774,980 | $774,980 | $30.71 | | |
| LIB | Library Sno-Isle GEN | 0.3153421757 | $774,980 | $774,980 | $244.38 | | |
| SCH205_401 | School 205-401 Enrichment | 1.2698420524 | $774,980 | $774,980 | $984.10 | | |
| SCH205BOND | School 205-401 BOND | 0.9396497583 | $774,980 | $774,980 | $728.21 | | |
| ST | State School | 1.3035497053 | $774,980 | $774,980 | $1,010.22 | | |
| ST2 | State School Part 2 | 0.8169543533 | $774,980 | $774,980 | $633.12 | | |
| | Total Tax Rate: | 7.3209764117 | | | | | |
| | | | | Taxes w/Current Exemptions: | $5,673.59 | | |
| | | | | Taxes w/o Exemptions: | $5,673.59 | | |
Improvement / Building
| Improvement #1: | RESIDENTIAL | State Code: | Y | 1490.0 sqft | Value: | $394,980 |
| Bathrooms: | 2 | Bedrooms: | 3 | | Ceiling: | DRYWALL PAINTED | Exterior Wall/Cover: | WOOD SIDING | | Floor Covering: | CARPET/VINYL 80-20 | Floor Structure: | WOOD W/SUBFLOOR | | Foundation: | CONCRETE | Heating: | FHA GAS | | Interior Finish: | DRYWALL PAINT | Plumbing Fixture Cnt: | 10 | | Roof Slope: | 5" IN 12" | Roof Structure/Cover: | BEAM ASPHALT |
|
| | Type | Description | Class CD | Sub Class CD | Year Built | Area |
| | BAS | BASE/MAIN FLOOR | 3 | 0 | 1973 | 1490.0 |
| | AGR | ATTACHED GARAGE | 3 | 0 | 1973 | 504.0 |
| | OWP | OPEN WOOD PORCH W/STEPS | 3 | 0 | 1973 | 130.0 |
| | OWP | OPEN WOOD PORCH W/STEPS | 3 | 0 | 1973 | 660.0 |
| | OWC | OPEN WOOD PORCH W/STEPS/ROOF/C | 3 | 0 | 1973 | 80.0 |
| | DGR | DETACHED GARAGE | 3 | 0 | 1973 | 1680.0 |
Sketch
Property Image
Land
| 1 | 16 | AC (00.51-01.00) | 0.0000 | 0.00 | 0.00 | 0.00 | 1.00 | $380,000 | $0 |
Roll Value History
| 2026 | N/A | N/A | N/A | N/A | N/A |
| 2025 | $394,980 | $380,000 | $0 | $774,980 | $774,980 |
| 2024 | $399,900 | $380,000 | $0 | $779,900 | $779,900 |
| 2023 | $404,823 | $380,000 | $0 | $784,823 | $784,823 |
| 2022 | $357,652 | $340,000 | $0 | $697,652 | $697,652 |
| 2021 | $314,867 | $240,000 | $0 | $554,867 | $554,867 |
| 2020 | $306,723 | $200,000 | $0 | $506,723 | $506,723 |
| 2019 | $222,164 | $250,000 | $0 | $472,164 | $472,164 |
| 2018 | $222,831 | $200,000 | $0 | $422,831 | $422,831 |
| 2017 | $224,166 | $150,000 | $0 | $374,166 | $374,166 |
| 2016 | $195,451 | $150,000 | $0 | $345,451 | $345,451 |
| 2015 | $197,572 | $108,000 | $0 | $305,572 | $305,572 |
| 2014 | $199,692 | $108,000 | $0 | $307,692 | $307,692 |
| 2013 | $201,814 | $108,000 | $0 | $309,814 | $309,814 |
| 2012 | $203,935 | $108,000 | $0 | $311,935 | $311,935 |
| 2011 | $206,057 | $150,000 | $0 | $356,057 | $356,057 |
| 2010 | $234,319 | $150,000 | $0 | $384,319 | $384,319 |
| 2009 | $243,408 | $175,000 | $0 | $418,408 | $418,408 |
| 2008 | $247,341 | $175,000 | $0 | $422,341 | $422,341 |
| 2007 | $251,429 | $175,000 | $0 | $426,429 | $426,429 |
Deed and Sales History
| 1 | 07/27/2007 | ESTSEPPROP | Establish Separate Property | DAY, SHERYL | DAY, SHERYL | | | $0.00 | 72611 | 4208528 |
| 2 | 07/26/2007 | WD | Warranty Deed | LYNN SR, MICHAEL J | DAY, SHERYL | | | $428,000.00 | 72610 | 4208527 |
| 3 | 03/17/1999 | WD | Warranty Deed | SHERK, LOIS M | LYNN SR, MICHAEL J | | | $227,500.00 | 91031 | 99007124 |
| 4 | 06/01/1992 | WD | Warranty Deed | SHERK, VIVIAN L | LITTLE, ROY M | | | $141,000.00 | 22464 | 92011942 |
| 5 | 06/01/1992 | OTHER | Other - Misc. Documents | LITTLE, ROY M | SHERK, LOIS M | | | $0.00 | 64881 | 92010557 |
| 6 | 06/01/1992 | OTHER | Other - Misc. Documents | SHERK, LOIS M | SHERK, LOIS M | | | $0.00 | 64880 | 92006654 |
| 7 | 07/01/1982 | OTHER | Other - Misc. Documents | Unknown | SHERK, VIVIAN L | | | $0.00 | 59553 | 0 |
Payout Agreement
| 374 | Active | Bi-Annual Payments | | 8/28/2012 1:57:40 PM | Bi-Annually | 42 | $3,548 |