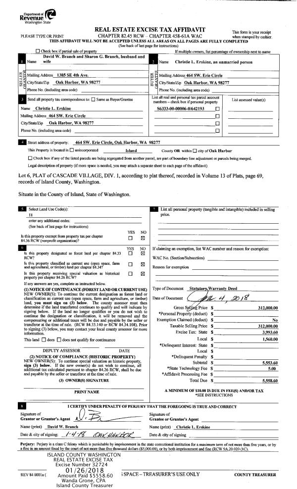
Property
Account |
| Property ID: | 298920 | Abbreviated Legal Description: | LANDS HILL ESTATES LOT 19 |
| Geographic ID: | S7340-00-00019-0 | Agent Code: | |
| Type: | Real | | |
| Tax Area: | 580 - APPRAISER-Stan/Cam Schl Dist, Special Dist, improved & less than 1 acre | Land Use Code | 11 |
| Open Space: | N | DFL | N |
| Historic Property: | N | Remodel Property: | N |
| Multi-Family Redevelopment: | N | | |
| Township: | | Section: | |
| Range: | |
Location |
| Address: | 1470 LARKSPUR LN CAMANO ISLAND, WA 98282 | Mapsco: | |
| Neighborhood: | North Camano | Map ID: | 973 |
| Neighborhood CD: | 06-C |
Owner |
| Name: | STONE, SUSIE | Owner ID: | 283206 |
| Mailing Address: | 1202 FUMI CR KETTLE FALLS, WA 99141 | % Ownership: | 100.0000000000% |
| | | Exemptions: | |
Taxes and Assessment Details
Values
| (+) Improvement Homesite Value: | + | $0 | |
| (+) Improvement Non-Homesite Value: | + | $431,274 | |
| (+) Land Homesite Value: | + | $0 | |
| (+) Land Non-Homesite Value: | + | $310,000 | |
| (+) Curr Use (HS): | + | $0 | $0 |
| (+) Curr Use (NHS): | + | $0 | $0 |
| | | -------------------------- | |
| (=) Market Value: | = | $741,274 | |
| (–) Productivity Loss: | – | $0 | |
| | | -------------------------- | |
| (=) Subtotal: | = | $741,274 | |
| (+) Senior Appraised Value: | + | $0 | |
| (+) Non-Senior Appraised Value: | + | $741,274 | |
| | | -------------------------- | |
| (=) Total Appraised Value: | = | $741,274 | |
| (–) Senior Exemption Loss: | – | $0 | |
| (–) Exemption Loss: | – | $0 | |
| | | -------------------------- | |
| (=) Taxable Value: | = | $741,274 | |
Taxing Jurisdiction
| Owner: | STONE, SUSIE | | |
| % Ownership: | 100.0000000000% | | |
| Total Value: | $741,274 | | |
| Tax Area: | 580 - APPRAISER-Stan/Cam Schl Dist, Special Dist, improved & less than 1 acre |
| CF | Conservation Futures | 0.0316035091 | $741,274 | $741,274 | $23.43 | | |
| EMS1 | Fire & Rescue Dist #1 Camano GEN (EMS) | 0.3677864386 | $741,274 | $741,274 | $272.63 | | |
| FIRE1 | Fire & Rescue Dist #1 Camano GEN | 1.2502910536 | $741,274 | $741,274 | $926.81 | | |
| FIRE1BOND | Fire & Rescue Dist #1 Camano BOND | 0.1570001679 | $741,274 | $741,274 | $116.38 | | |
| CE | County Current Expense | 0.3708482477 | $741,274 | $741,274 | $274.90 | | |
| CR | County Roads | 0.4584763726 | $741,274 | $741,274 | $339.86 | | |
| LCIB | Library Sno-Isle BOND (Camano Island) | 0.0396325772 | $741,274 | $741,274 | $29.38 | | |
| LIB | Library Sno-Isle GEN | 0.3153421757 | $741,274 | $741,274 | $233.75 | | |
| SCH205_401 | School 205-401 Enrichment | 1.2698420524 | $741,274 | $741,274 | $941.30 | | |
| SCH205BOND | School 205-401 BOND | 0.9396497583 | $741,274 | $741,274 | $696.54 | | |
| ST | State School | 1.3035497053 | $741,274 | $741,274 | $966.29 | | |
| ST2 | State School Part 2 | 0.8169543533 | $741,274 | $741,274 | $605.59 | | |
| | Total Tax Rate: | 7.3209764117 | | | | | |
| | | | | Taxes w/Current Exemptions: | $5,426.86 | | |
| | | | | Taxes w/o Exemptions: | $5,426.86 | | |
Improvement / Building
| Improvement #1: | RESIDENTIAL | State Code: | Y | 2010.2 sqft | Value: | $431,274 |
| Bathrooms: | 2 | Bedrooms: | 3 | | Ceiling: | DRYWALL PAINTED | Cooling: | HEAT PUMP/CONV/V | | Exterior Wall/Cover: | CEMENT FIBER | Floor Covering: | HARDWOOD/CARP 20-80 | | Floor Structure: | WOOD ON WOOD JOIST | Foundation: | CONCRETE | | Interior Finish: | DRYWALL PAINT | Plumbing Fixture Cnt: | 11 | | Roof Slope: | 10" IN 12" | Roof Structure/Cover: | CJ ASPHALT |
|
| | Type | Description | Class CD | Sub Class CD | Year Built | Area |
| | BAS | BASE/MAIN FLOOR | 4 | 0 | 2017 | 1354.2 |
| | UPS | UPPER STORY | 4 | 0 | 2017 | 656.0 |
| | AGR | ATTACHED GARAGE | 4 | 0 | 2017 | 671.0 |
| | OWP | OPEN WOOD PORCH W/STEPS | 4 | 0 | 2017 | 26.0 |
| | OP4 | OPEN PORCH W/CEILING-ROOF | 4 | 0 | 2017 | 262.5 |
| | OWC | OPEN WOOD PORCH W/STEPS/ROOF/C | 4 | 0 | 2017 | 144.5 |
| | UTY | STORAGE/UTILITY | 4 | 0 | 2017 | 80.0 |
Sketch
Property Image
Land
| 1 | 15 | SQ (12001-21780) | 0.0000 | 0.00 | 0.00 | 0.00 | 1.00 | $310,000 | $0 |
Roll Value History
| 2026 | N/A | N/A | N/A | N/A | N/A |
| 2025 | $431,274 | $310,000 | $0 | $741,274 | $741,274 |
| 2024 | $434,752 | $310,000 | $0 | $744,752 | $744,752 |
| 2023 | $438,230 | $300,000 | $0 | $738,230 | $738,230 |
| 2022 | $390,318 | $260,000 | $0 | $650,318 | $650,318 |
| 2021 | $342,128 | $180,000 | $0 | $522,128 | $522,128 |
| 2020 | $331,878 | $160,000 | $0 | $491,878 | $491,878 |
| 2019 | $252,674 | $210,000 | $0 | $462,674 | $462,674 |
| 2018 | $253,317 | $180,000 | $0 | $433,317 | $433,317 |
| 2017 | $125,885 | $70,000 | $0 | $195,885 | $195,885 |
| 2016 | $0 | $10,000 | $0 | $10,000 | $10,000 |
| 2015 | $0 | $22,950 | $0 | $22,950 | $22,950 |
| 2014 | $0 | $22,950 | $0 | $22,950 | $22,950 |
| 2013 | $0 | $22,950 | $0 | $22,950 | $22,950 |
| 2012 | $0 | $22,950 | $0 | $22,950 | $22,950 |
| 2011 | $0 | $22,950 | $0 | $22,950 | $22,950 |
| 2010 | $0 | $22,950 | $0 | $22,950 | $22,950 |
| 2009 | $0 | $25,500 | $0 | $25,500 | $25,500 |
| 2008 | $0 | $37,500 | $0 | $37,500 | $37,500 |
| 2007 | $0 | $49,500 | $0 | $49,500 | $49,500 |
Deed and Sales History
| 1 | 12/07/2017 | WD | Warranty Deed | RIVERTOWN HOMES, LLC | STONE, SUSIE | | | $490,000.00 | 32210 | 4435499 |
| 2 | 01/12/2017 | WD | Warranty Deed | LIAN, LARRY | RIVERTOWN HOMES, LLC | | | $100,000.00 | 27816 | 4415628 |
| 3 | 06/17/2008 | QCD | Quit Claim Deed | MESA CAPITAL LLC, | LIAN, LARRY | | | $0.00 | 81592 | 4231177 |
| 4 | 10/18/2005 | WD | Warranty Deed | WELSH, THOMAS L | MESA CAPITAL LLC, | | | $25,000.00 | 55341 | 4151756 |
| 5 | 08/01/1991 | OTHER | Other - Misc. Documents | LAND, EILEEN M | WELSH, THOMAS L | | | $0.00 | 12790 | 0 |
Payout Agreement
| 367 | Active | Bi-Annual Payments | | 8/28/2012 1:57:40 PM | Bi-Annually | 42 | $0 |