Property
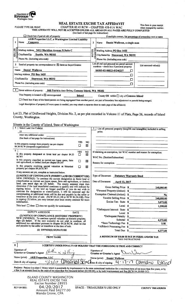
Account |
| Property ID: | 299000 | Abbreviated Legal Description: | LANDS HILL LOT 27: & BG SE CR L27 N53*W79.5' S1*W80 S88*E38' M/L N36*E43' M/L TPB ALSO N/2 LOT 26 & 20' ADJ TO WLN |
| Geographic ID: | S7340-00-00027-0 | Agent Code: | |
| Type: | Real | | |
| Tax Area: | 580 - APPRAISER-Stan/Cam Schl Dist, Special Dist, improved & less than 1 acre | Land Use Code | 11 |
| Open Space: | N | DFL | N |
| Historic Property: | N | Remodel Property: | N |
| Multi-Family Redevelopment: | N | | |
| Township: | | Section: | |
| Range: | |
Location |
| Address: | 1410 LARKSPUR LN CAMANO ISLAND, WA 98282 | Mapsco: | |
| Neighborhood: | North Camano | Map ID: | 973 |
| Neighborhood CD: | 06-C |
Owner |
| Name: | NEVRATAKIS, ROUSSOS | Owner ID: | 297469 |
| Mailing Address: | KARENA J RAINO-NEVRATAKIS 16551 SW JEAN LOUISE RD PORTLAND, OR 97223-0730 | % Ownership: | 100.0000000000% |
| | | Exemptions: | |
Taxes and Assessment Details
Values
| (+) Improvement Homesite Value: | + | $0 | |
| (+) Improvement Non-Homesite Value: | + | $476,377 | |
| (+) Land Homesite Value: | + | $0 | |
| (+) Land Non-Homesite Value: | + | $310,000 | |
| (+) Curr Use (HS): | + | $0 | $0 |
| (+) Curr Use (NHS): | + | $0 | $0 |
| | | -------------------------- | |
| (=) Market Value: | = | $786,377 | |
| (–) Productivity Loss: | – | $0 | |
| | | -------------------------- | |
| (=) Subtotal: | = | $786,377 | |
| (+) Senior Appraised Value: | + | $0 | |
| (+) Non-Senior Appraised Value: | + | $786,377 | |
| | | -------------------------- | |
| (=) Total Appraised Value: | = | $786,377 | |
| (–) Senior Exemption Loss: | – | $0 | |
| (–) Exemption Loss: | – | $0 | |
| | | -------------------------- | |
| (=) Taxable Value: | = | $786,377 | |
Taxing Jurisdiction
| Owner: | NEVRATAKIS, ROUSSOS | | |
| % Ownership: | 100.0000000000% | | |
| Total Value: | $786,377 | | |
| Tax Area: | 580 - APPRAISER-Stan/Cam Schl Dist, Special Dist, improved & less than 1 acre |
| CF | Conservation Futures | 0.0316035091 | $786,377 | $786,377 | $24.85 | | |
| EMS1 | Fire & Rescue Dist #1 Camano GEN (EMS) | 0.3677864386 | $786,377 | $786,377 | $289.22 | | |
| FIRE1 | Fire & Rescue Dist #1 Camano GEN | 1.2502910536 | $786,377 | $786,377 | $983.20 | | |
| FIRE1BOND | Fire & Rescue Dist #1 Camano BOND | 0.1570001679 | $786,377 | $786,377 | $123.46 | | |
| CE | County Current Expense | 0.3708482477 | $786,377 | $786,377 | $291.63 | | |
| CR | County Roads | 0.4584763726 | $786,377 | $786,377 | $360.54 | | |
| LCIB | Library Sno-Isle BOND (Camano Island) | 0.0396325772 | $786,377 | $786,377 | $31.17 | | |
| LIB | Library Sno-Isle GEN | 0.3153421757 | $786,377 | $786,377 | $247.98 | | |
| SCH205_401 | School 205-401 Enrichment | 1.2698420524 | $786,377 | $786,377 | $998.57 | | |
| SCH205BOND | School 205-401 BOND | 0.9396497583 | $786,377 | $786,377 | $738.92 | | |
| ST | State School | 1.3035497053 | $786,377 | $786,377 | $1,025.08 | | |
| ST2 | State School Part 2 | 0.8169543533 | $786,377 | $786,377 | $642.43 | | |
| | Total Tax Rate: | 7.3209764117 | | | | | |
| | | | | Taxes w/Current Exemptions: | $5,757.05 | | |
| | | | | Taxes w/o Exemptions: | $5,757.05 | | |
Improvement / Building
| Improvement #1: | RESIDENTIAL | State Code: | Y | 3100.0 sqft | Value: | $476,377 |
| Bathrooms: | 2.5 | Bedrooms: | 3 | | Ceiling: | TONGUE & GROOVE | Cooling: | HEAT PUMP/CONV/V | | Exterior Wall/Cover: | PLY/HARDBOARD T-111 | Floor Covering: | CERAMIC TILE/HWD 40/60 | | Floor Structure: | WOOD W/SUBFLOOR | Foundation: | CONCRETE | | Interior Finish: | DRYWALL PAINT | Plumbing Fixture Cnt: | 12 | | Roof Slope: | 4" IN 12" | Roof Structure/Cover: | BEAM ASPHALT |
|
| | Type | Description | Class CD | Sub Class CD | Year Built | Area |
| | BAS | BASE/MAIN FLOOR | 3 | 0 | 1969 | 1612.0 |
| | DWN | DOWNSTAIRS LIVING AREA | 3 | 0 | 1969 | 1488.0 |
| | OP1 | OPEN PORCH SLAB | 3 | 0 | 1969 | 468.7 |
| | DGR | DETACHED GARAGE | 3 | 0 | 1969 | 672.0 |
| | OWP | OPEN WOOD PORCH W/STEPS | 3 | 0 | 1969 | 1232.8 |
| | OWP | OPEN WOOD PORCH W/STEPS | 3 | 0 | 1969 | 512.0 |
| | OWP | OPEN WOOD PORCH W/STEPS | 3 | 0 | 1969 | 156.0 |
Sketch
Property Image
Land
| 1 | 15 | SQ (12001-21780) | 0.0000 | 0.00 | 0.00 | 0.00 | 1.00 | $310,000 | $0 |
Roll Value History
| 2026 | N/A | N/A | N/A | N/A | N/A |
| 2025 | $476,377 | $310,000 | $0 | $786,377 | $786,377 |
| 2024 | $482,310 | $310,000 | $0 | $792,310 | $792,310 |
| 2023 | $488,247 | $300,000 | $0 | $788,247 | $788,247 |
| 2022 | $385,834 | $260,000 | $0 | $645,834 | $645,834 |
| 2021 | $339,789 | $180,000 | $0 | $519,789 | $519,789 |
| 2020 | $332,178 | $160,000 | $0 | $492,178 | $492,178 |
| 2019 | $268,639 | $210,000 | $0 | $478,639 | $478,639 |
| 2018 | $269,466 | $180,000 | $0 | $449,466 | $449,466 |
| 2017 | $256,573 | $150,000 | $0 | $406,573 | $406,573 |
| 2016 | $221,127 | $110,000 | $0 | $331,127 | $331,127 |
| 2015 | $224,241 | $108,000 | $0 | $332,241 | $332,241 |
| 2014 | $227,355 | $108,000 | $0 | $335,355 | $335,355 |
| 2013 | $230,470 | $108,000 | $0 | $338,470 | $338,470 |
| 2012 | $233,585 | $108,000 | $0 | $341,585 | $341,585 |
| 2011 | $236,699 | $135,000 | $0 | $371,699 | $371,699 |
| 2010 | $230,464 | $150,000 | $0 | $380,464 | $380,464 |
| 2009 | $240,820 | $175,000 | $0 | $415,820 | $415,820 |
| 2008 | $244,378 | $175,000 | $0 | $419,378 | $419,378 |
| 2007 | $248,015 | $175,000 | $0 | $423,015 | $423,015 |
Deed and Sales History
| 1 | 12/21/2020 | WD | Warranty Deed | BARRON, RUSSELL A | NEVRATAKIS, ROUSSOS | | | $575,000.00 | 46274 | 4506149 |
| 2 | 05/15/2017 | WD | Warranty Deed | BARRON, RUSSELL A | BARRON, RUSSELL A | | | $0.00 | 29431 | 4423132 |
| 3 | 08/01/1977 | TRUSTEED | Trustee's Deed | BARRON, RUSSELL A | BARRON, RUSSELL A | | | $85,000.00 | 73524 | 0 |
| 4 | 01/01/1900 | OTHER | Other - Misc. Documents | Unknown | BARRON, RUSSELL A | | | $0.00 | 0 | 0 |
Payout Agreement
| 377 | Active | Bi-Annual Payments | | 8/28/2012 1:57:40 PM | Bi-Annually | 42 | $0 |