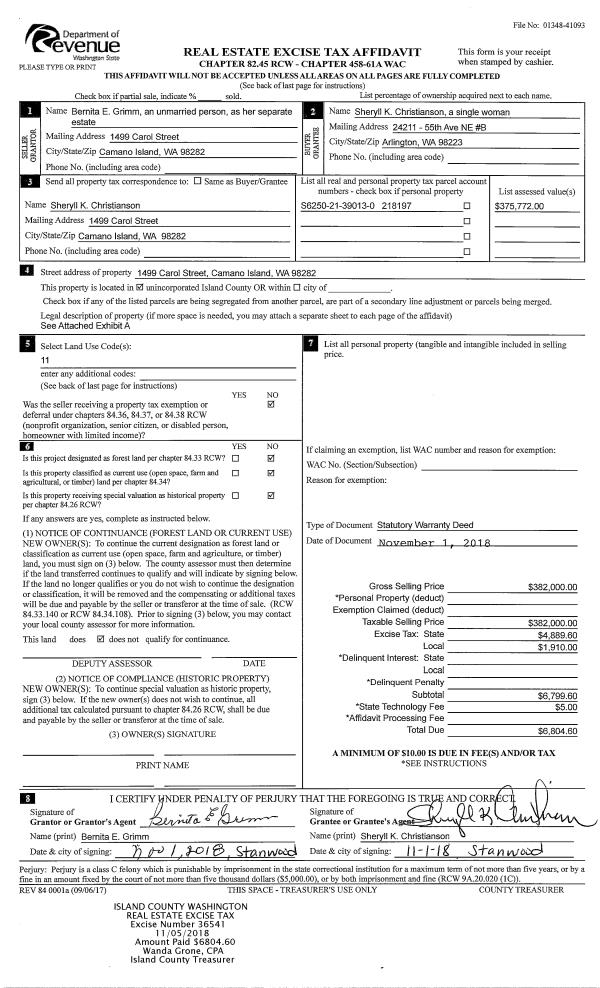
Property
Account |
| Property ID: | 299162 | Abbreviated Legal Description: | LANGLEY LOT 6 BLK 2 |
| Geographic ID: | S7345-00-02006-0 | Agent Code: | |
| Type: | Real | | |
| Tax Area: | 700 - APPRAISER-S Whid Schl Dist, in town of Langley | Land Use Code | 11 |
| Open Space: | N | DFL | N |
| Historic Property: | N | Remodel Property: | N |
| Multi-Family Redevelopment: | N | | |
| Township: | | Section: | |
| Range: | |
Location |
| Address: | 574 3RD ST LANGLEY, WA 98260 | Mapsco: | |
| Neighborhood: | City of Langley | Map ID: | 912 |
| Neighborhood CD: | 04-L |
Owner |
| Name: | JACKSON, JAMES | Owner ID: | 287309 |
| Mailing Address: | CASSANDRA ZOOK 1239 S 15TH ST PHILADELPHIA, PA 19146 | % Ownership: | 100.0000000000% |
| | | Exemptions: | |
Taxes and Assessment Details
Values
| (+) Improvement Homesite Value: | + | $0 | |
| (+) Improvement Non-Homesite Value: | + | $209,108 | |
| (+) Land Homesite Value: | + | $0 | |
| (+) Land Non-Homesite Value: | + | $370,000 | |
| (+) Curr Use (HS): | + | $0 | $0 |
| (+) Curr Use (NHS): | + | $0 | $0 |
| | | -------------------------- | |
| (=) Market Value: | = | $579,108 | |
| (–) Productivity Loss: | – | $0 | |
| | | -------------------------- | |
| (=) Subtotal: | = | $579,108 | |
| (+) Senior Appraised Value: | + | $0 | |
| (+) Non-Senior Appraised Value: | + | $579,108 | |
| | | -------------------------- | |
| (=) Total Appraised Value: | = | $579,108 | |
| (–) Senior Exemption Loss: | – | $0 | |
| (–) Exemption Loss: | – | $0 | |
| | | -------------------------- | |
| (=) Taxable Value: | = | $579,108 | |
Taxing Jurisdiction
| Owner: | JACKSON, JAMES | | |
| % Ownership: | 100.0000000000% | | |
| Total Value: | $579,108 | | |
| Tax Area: | 700 - APPRAISER-S Whid Schl Dist, in town of Langley |
| CF | Conservation Futures | 0.0316035091 | $579,108 | $579,108 | $18.30 | | |
| LANG | City of Langley | 1.0093520762 | $579,108 | $579,108 | $584.52 | | |
| LANGBOND | City of Langley BOND | 1.0326110892 | $579,108 | $579,108 | $597.99 | | |
| FIRE3 | Fire & Rescue Dist #3 S Whidbey GEN | 1.2004855531 | $579,108 | $579,108 | $695.21 | | |
| HOBOND | Hospital BOND | 0.1910887512 | $579,108 | $579,108 | $110.66 | | |
| HOGEN | Hospital GEN | 0.3902502903 | $579,108 | $579,108 | $226.00 | | |
| CE | County Current Expense | 0.3708482477 | $579,108 | $579,108 | $214.76 | | |
| ISLANDEMS | Hospital GEN (EMS) | 0.5000000000 | $579,108 | $579,108 | $289.55 | | |
| LIB | Library Sno-Isle GEN | 0.3153421757 | $579,108 | $579,108 | $182.62 | | |
| PORTWHID | Port of S Whidbey GEN | 0.1094540357 | $579,108 | $579,108 | $63.39 | | |
| SCH206BOND | School 206 BOND | 0.3161759235 | $579,108 | $579,108 | $183.10 | | |
| SCH206MO | School 206 Enrichment | 0.4547169547 | $579,108 | $579,108 | $263.33 | | |
| ST | State School | 1.3035497053 | $579,108 | $579,108 | $754.90 | | |
| ST2 | State School Part 2 | 0.8169543533 | $579,108 | $579,108 | $473.10 | | |
| SWHIDPRBD | P & R S Whidbey BOND | 0.0152817568 | $579,108 | $579,108 | $8.85 | | |
| SWHIDPRBD2 | P & R S Whidbey BOND2 | 0.0138911264 | $579,108 | $579,108 | $8.04 | | |
| SWHIDPRMT | P & R S Whidbey GEN | 0.2053334452 | $579,108 | $579,108 | $118.91 | | |
| | Total Tax Rate: | 8.2769389934 | | | | | |
| | | | | Taxes w/Current Exemptions: | $4,793.23 | | |
| | | | | Taxes w/o Exemptions: | $4,793.23 | | |
Improvement / Building
| Improvement #1: | RESIDENTIAL | State Code: | Y | 1152.0 sqft | Value: | $209,108 |
| Bathrooms: | 1.75 | Bedrooms: | 2 | | Ceiling: | DRY WALL SPRAYED | Exterior Wall/Cover: | PLY/HARDBOARD T-111 | | Floor Covering: | VINYL/HARDWOOD 20-80 | Floor Structure: | WOOD W/SUBFLOOR | | Foundation: | CONCRETE | Heating: | BASEBOARD ELECTRIC | | Interior Finish: | DRYWALL PAINT | Plumbing Fixture Cnt: | 9 | | Roof Slope: | 3" IN 12" | Roof Structure/Cover: | CJ ASPHALT |
|
| | Type | Description | Class CD | Sub Class CD | Year Built | Area |
| | BAS | BASE/MAIN FLOOR | 3 | 0 | 1977 | 1152.0 |
| | OWP | OPEN WOOD PORCH W/STEPS | 3 | 0 | 1977 | 542.0 |
| | oOBD | Out Buildings | 3 | 0 | 1977 | 612.0 |
Sketch
Property Image
Land
| 1 | 14 | SQ (08001-12000) | 0.0000 | 0.00 | 0.00 | 0.00 | 1.00 | $370,000 | $0 |
Roll Value History
| 2026 | N/A | N/A | N/A | N/A | N/A |
| 2025 | $209,108 | $370,000 | $0 | $579,108 | $579,108 |
| 2024 | $214,974 | $370,000 | $0 | $584,974 | $584,974 |
| 2023 | $217,537 | $370,000 | $0 | $587,537 | $587,537 |
| 2022 | $203,085 | $340,000 | $0 | $543,085 | $543,085 |
| 2021 | $183,831 | $285,000 | $0 | $468,831 | $468,831 |
| 2020 | $180,171 | $285,000 | $0 | $465,171 | $465,171 |
| 2019 | $138,644 | $300,000 | $0 | $438,644 | $438,644 |
| 2018 | $138,981 | $260,000 | $0 | $398,981 | $398,981 |
| 2017 | $139,654 | $250,000 | $0 | $389,654 | $389,654 |
| 2016 | $141,001 | $220,000 | $0 | $361,001 | $361,001 |
| 2015 | $142,346 | $220,000 | $0 | $362,346 | $362,346 |
| 2014 | $88,593 | $161,000 | $0 | $249,593 | $249,593 |
| 2013 | $89,890 | $161,000 | $0 | $250,890 | $250,890 |
| 2012 | $91,187 | $161,000 | $0 | $252,187 | $252,187 |
| 2011 | $92,483 | $175,000 | $0 | $267,483 | $267,483 |
| 2010 | $97,696 | $183,000 | $0 | $280,696 | $280,696 |
| 2009 | $102,077 | $200,000 | $0 | $302,077 | $302,077 |
| 2008 | $96,308 | $250,000 | $0 | $346,308 | $346,308 |
| 2007 | $97,618 | $250,000 | $0 | $347,618 | $347,618 |
Deed and Sales History
| 1 | 10/01/2018 | QCD | Quit Claim Deed | JACKSON, JAMES | JACKSON, JAMES | | | $0.00 | 36174 | 4452916 |
| 2 | 10/01/2018 | QCD | Quit Claim Deed | MORASCINI, INGE | JACKSON, JAMES | | | $70,318.00 | 36173 | 4452915 |
| 3 | 06/23/2014 | WD | Warranty Deed | HERSHMAN, CAROL-LEE | MORASCINI, INGE | | | $265,000.00 | 15895 | 4361819 |
| 4 | 07/02/2014 | QCD | Quit Claim Deed | HERSHMAN, CAROL-LEE | HERSHMAN, CAROL-LEE | | | $0.00 | 15894 | 4361821 |
| 5 | 03/27/2013 | QCD | Quit Claim Deed | WILD, KAY-LYNN | HERSHMAN, CAROL-LEE | | | $283,000.00 | 10965 | 4337359 |
| 6 | 06/08/2006 | ESTSEPPROP | Establish Separate Property | WILD, KAY-LYNN | WILD, KAY-LYNN | | | $0.00 | 62561 | 4172990 |
| 7 | 06/08/2006 | WD | Warranty Deed | KUEHN FAMILY LLC, | WILD, KAY-LYNN | | | $325,000.00 | 62560 | 4172989 |
| 8 | 12/02/2004 | PRD | Personal Representatives Deed | KUEHN, MARGARET H | KUEHN FAMILY LLC, | | | $0.00 | 52635 | 4136814 |
| 9 | 09/01/1987 | WD | Warranty Deed | PARKER, DOROTHY M | KUEHN, MARGARET H | | | $52,500.00 | 73501 | 87015284 |
| 10 | 02/01/1977 | TRUSTEED | Trustee's Deed | PARKER, DOROTHY M | PARKER, DOROTHY M | | | $0.00 | 70804 | 0 |
| 11 | 02/01/1977 | CD | DNU - Correction Deed | LANGLEY, PROPERTIES | PARKER, DOROTHY M | | | $0.00 | 70805 | 0 |
| 12 | 01/01/1900 | OTHER | Other - Misc. Documents | Unknown | LANGLEY, PROPERTIES | | | $0.00 | 0 | 0 |
Payout Agreement
| No payout information available.. |