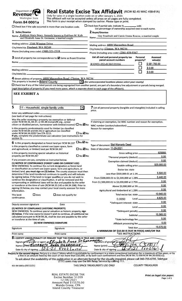
Property
Account |
| Property ID: | 299199 | Abbreviated Legal Description: | LANGLEY LOTS 9 & 10 BLK 2 EX N8' |
| Geographic ID: | S7345-00-02009-0 | Agent Code: | |
| Type: | Real | | |
| Tax Area: | 700 - APPRAISER-S Whid Schl Dist, in town of Langley | Land Use Code | 11 |
| Open Space: | N | DFL | N |
| Historic Property: | N | Remodel Property: | N |
| Multi-Family Redevelopment: | N | | |
| Township: | | Section: | |
| Range: | |
Location |
| Address: | 211 PARK AVE LANGLEY, WA 98260 | Mapsco: | |
| Neighborhood: | City of Langley | Map ID: | 912 |
| Neighborhood CD: | 04-L |
Owner |
| Name: | ELLIOT, PAULINE | Owner ID: | 299605 |
| Mailing Address: | 211 PARK AVE LANGLEY, WA 98260 | % Ownership: | 100.0000000000% |
| | | Exemptions: | |
Taxes and Assessment Details
Values
| (+) Improvement Homesite Value: | + | $0 | |
| (+) Improvement Non-Homesite Value: | + | $419,118 | |
| (+) Land Homesite Value: | + | $0 | |
| (+) Land Non-Homesite Value: | + | $370,000 | |
| (+) Curr Use (HS): | + | $0 | $0 |
| (+) Curr Use (NHS): | + | $0 | $0 |
| | | -------------------------- | |
| (=) Market Value: | = | $789,118 | |
| (–) Productivity Loss: | – | $0 | |
| | | -------------------------- | |
| (=) Subtotal: | = | $789,118 | |
| (+) Senior Appraised Value: | + | $0 | |
| (+) Non-Senior Appraised Value: | + | $789,118 | |
| | | -------------------------- | |
| (=) Total Appraised Value: | = | $789,118 | |
| (–) Senior Exemption Loss: | – | $0 | |
| (–) Exemption Loss: | – | $0 | |
| | | -------------------------- | |
| (=) Taxable Value: | = | $789,118 | |
Taxing Jurisdiction
| Owner: | ELLIOT, PAULINE | | |
| % Ownership: | 100.0000000000% | | |
| Total Value: | $789,118 | | |
| Tax Area: | 700 - APPRAISER-S Whid Schl Dist, in town of Langley |
| CF | Conservation Futures | 0.0316035091 | $789,118 | $789,118 | $24.94 | | |
| LANG | City of Langley | 1.0093520762 | $789,118 | $789,118 | $796.50 | | |
| LANGBOND | City of Langley BOND | 1.0326110892 | $789,118 | $789,118 | $814.85 | | |
| FIRE3 | Fire & Rescue Dist #3 S Whidbey GEN | 1.2004855531 | $789,118 | $789,118 | $947.32 | | |
| HOBOND | Hospital BOND | 0.1910887512 | $789,118 | $789,118 | $150.79 | | |
| HOGEN | Hospital GEN | 0.3902502903 | $789,118 | $789,118 | $307.95 | | |
| CE | County Current Expense | 0.3708482477 | $789,118 | $789,118 | $292.64 | | |
| ISLANDEMS | Hospital GEN (EMS) | 0.5000000000 | $789,118 | $789,118 | $394.56 | | |
| LIB | Library Sno-Isle GEN | 0.3153421757 | $789,118 | $789,118 | $248.84 | | |
| PORTWHID | Port of S Whidbey GEN | 0.1094540357 | $789,118 | $789,118 | $86.37 | | |
| SCH206BOND | School 206 BOND | 0.3161759235 | $789,118 | $789,118 | $249.50 | | |
| SCH206MO | School 206 Enrichment | 0.4547169547 | $789,118 | $789,118 | $358.83 | | |
| ST | State School | 1.3035497053 | $789,118 | $789,118 | $1,028.65 | | |
| ST2 | State School Part 2 | 0.8169543533 | $789,118 | $789,118 | $644.67 | | |
| SWHIDPRBD | P & R S Whidbey BOND | 0.0152817568 | $789,118 | $789,118 | $12.06 | | |
| SWHIDPRBD2 | P & R S Whidbey BOND2 | 0.0138911264 | $789,118 | $789,118 | $10.96 | | |
| SWHIDPRMT | P & R S Whidbey GEN | 0.2053334452 | $789,118 | $789,118 | $162.03 | | |
| | Total Tax Rate: | 8.2769389934 | | | | | |
| | | | | Taxes w/Current Exemptions: | $6,531.46 | | |
| | | | | Taxes w/o Exemptions: | $6,531.46 | | |
Improvement / Building
| Improvement #1: | RESIDENTIAL | State Code: | Y | 1600.0 sqft | Value: | $218,140 |
| Bathrooms: | 1 | Bedrooms: | 0 | | Ceiling: | DRYWALL PAINTED | Exterior Wall/Cover: | WOOD SIDING | | Floor Covering: | HARDWOOD 100% | Floor Structure: | SLAB ON GRADE | | Foundation: | SLAB | Heating: | WALL HEAT ELECTRIC | | Interior Finish: | DRYWALL PAINT | Plumbing Fixture Cnt: | 3 | | Roof Slope: | 4" IN 12" | Roof Structure/Cover: | CJ ASPHALT |
|
| | Type | Description | Class CD | Sub Class CD | Year Built | Area |
| | BAS | BASE/MAIN FLOOR | 3 | 0 | 2003 | 1000.0 |
| | DWN | DOWNSTAIRS LIVING AREA | 3 | 0 | 2003 | 600.0 |
| | OP1 | OPEN PORCH SLAB | 3 | 0 | 2003 | 160.0 |
| | BIG | BUILT IN GARAGE | 3 | 0 | 2003 | 400.0 |
| | OWP | OPEN WOOD PORCH W/STEPS | 3 | 0 | 2003 | 110.0 |
| | ENP | ENCLOSED PORCH | 3 | 0 | 2003 | 160.0 |
| | ENP | ENCLOSED PORCH | 3 | 0 | 2003 | 74.1 |
| Improvement #2: | RESIDENTIAL | State Code: | Y | 1463.0 sqft | Value: | $200,978 |
| Bathrooms: | 2 | Bedrooms: | 3 | | Ceiling: | DRYWALL PAINTED | Exterior Wall/Cover: | WOOD SIDING | | Floor Covering: | VINYL 100% | Floor Structure: | SLAB ON GRADE | | Foundation: | SLAB/CONCRETE | Heating: | WALL HEAT ELECTRIC | | Interior Finish: | DRYWALL PAINT | Plumbing Fixture Cnt: | 9 | | Roof Slope: | 6" IN 12" | Roof Structure/Cover: | CJ ASPHALT |
|
| | Type | Description | Class CD | Sub Class CD | Year Built | Area |
| | BAS | BASE/MAIN FLOOR | 3 | 0 | 1958 | 1463.0 |
| | OP1 | OPEN PORCH SLAB | 3 | 0 | 1958 | 160.0 |
| | OP3 | OPEN PORCH W/ROOF | 3 | 0 | 1958 | 336.0 |
| | OP3 | OPEN PORCH W/ROOF | 3 | 0 | 1958 | 33.0 |
Sketch
Property Image
Land
| 1 | 14 | SQ (08001-12000) | 0.0000 | 0.00 | 0.00 | 0.00 | 1.00 | $370,000 | $0 |
Roll Value History
| 2026 | N/A | N/A | N/A | N/A | N/A |
| 2025 | $419,118 | $370,000 | $0 | $789,118 | $789,118 |
| 2024 | $424,893 | $370,000 | $0 | $794,893 | $794,893 |
| 2023 | $430,671 | $370,000 | $0 | $800,671 | $800,671 |
| 2022 | $395,207 | $340,000 | $0 | $735,207 | $735,207 |
| 2021 | $348,213 | $320,000 | $0 | $668,213 | $668,213 |
| 2020 | $340,394 | $285,000 | $0 | $625,394 | $625,394 |
| 2019 | $251,837 | $300,000 | $0 | $551,837 | $551,837 |
| 2018 | $252,638 | $260,000 | $0 | $512,638 | $512,638 |
| 2017 | $241,984 | $250,000 | $0 | $491,984 | $491,984 |
| 2016 | $245,025 | $220,000 | $0 | $465,025 | $465,025 |
| 2015 | $248,063 | $220,000 | $0 | $468,063 | $468,063 |
| 2014 | $207,070 | $168,360 | $0 | $375,430 | $375,430 |
| 2013 | $209,816 | $168,360 | $0 | $378,176 | $378,176 |
| 2012 | $212,563 | $168,360 | $0 | $380,923 | $380,923 |
| 2011 | $215,309 | $183,000 | $0 | $398,309 | $398,309 |
| 2010 | $222,689 | $183,000 | $0 | $405,689 | $405,689 |
| 2009 | $233,457 | $198,871 | $0 | $432,328 | $432,328 |
| 2008 | $204,425 | $125,000 | $0 | $329,425 | $329,425 |
| 2007 | $206,184 | $125,000 | $0 | $331,184 | $331,184 |
Deed and Sales History
| 1 | 05/28/2021 | QCD | Quit Claim Deed | ELLIOT, PAULINE | ELLIOT, PAULINE | | | $0.00 | 48487 | 4520598 |
| 2 | 05/21/2009 | QCD | Quit Claim Deed | ELLIOT, PAULINE | ELLIOT, PAULINE | | | $0.00 | 91116 | 4251915 |
| 3 | 07/15/2004 | DECREE | Divorce Decree/Legal Separation | ELLIOT, GORDON A/PAULINE | ELLIOT, PAULINE | | | $0.00 | 43375 | 4107949 |
| 4 | 01/27/2003 | BLA | DNU - Boundary Line Adjustment | ELLIOT, GORDON A | ELLIOT, GORDON A/PAULINE | | | $0.00 | 69669 | 4016352 |
| 5 | 08/01/1997 | WD | Warranty Deed | ELLIOT, GORDON A | ELLIOT, GORDON A | | | $160,000.00 | 73038 | 97014325 |
| 6 | 08/01/1997 | WD | Warranty Deed | RALEY, SUSAN E | ELLIOT, GORDON A | | | $0.00 | 73656 | 97017351 |
| 7 | 10/01/1990 | OTHER | Other - Misc. Documents | SAMUELSON, SUSAN E | RALEY, SUSAN E | | | $0.00 | 63863 | 0 |
| 8 | 09/01/1989 | DECREE | Divorce Decree/Legal Separation | SAMUELSON, PAUL O | SAMUELSON, SUSAN E | | | $0.00 | 93773 | 89012694 |
| 9 | 07/01/1986 | PACD | Purchaser's Assignment | VISSER, HERMAN | SAMUELSON, PAUL O | | | $72,500.00 | 61739 | 86008220 |
| 10 | 06/01/1984 | PACD | Purchaser's Assignment | BURLEY, MARK L | VISSER, HERMAN | | | $70,000.00 | 41880 | 84000068 |
| 11 | 09/01/1983 | REC | Real Estate Contract | REILLY, JOHN A | BURLEY, MARK L | | | $62,500.00 | 32723 | 415149 |
| 12 | 01/01/1900 | OTHER | Other - Misc. Documents | Unknown | REILLY, JOHN A | | | $0.00 | 0 | 0 |
Payout Agreement
| No payout information available.. |