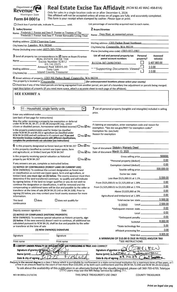
Property
Account |
| Property ID: | 29935 | Abbreviated Legal Description: | 42 KINETH DC - BG INTER WLN SD DC & SLN SEC 35-32-1E N1 *E2640' S88*E1980' S1*W273' TPB S1*W387' S88*E425' N1* E310' N56*W100' N85*W341.54 TPB |
| Geographic ID: | R13235-217-4530 | Agent Code: | |
| Type: | Real | | |
| Tax Area: | 312 - APPRAISER-Cpvl Schl Dist, outside Cpvl, improved, greater than 1 acre | Land Use Code | 11 |
| Open Space: | N | DFL | N |
| Historic Property: | N | Remodel Property: | N |
| Multi-Family Redevelopment: | N | | |
| Township: | 32 | Section: | 35 |
| Range: | R1 |
Location |
| Address: | 440 PLEASANT PLACE COUPEVILLE, WA 98239 | Mapsco: | |
| Neighborhood: | Cycle 2 | Map ID: | 182 |
| Neighborhood CD: | 2 |
Owner |
| Name: | LIERZ, ROCHELLE J | Owner ID: | 313156 |
| Mailing Address: | MARK E KREPPS 440 PLEASANT PL COUPEVILLE, WA 98239 | % Ownership: | 100.0000000000% |
| | | Exemptions: | |
Taxes and Assessment Details
Values
| (+) Improvement Homesite Value: | + | $0 | |
| (+) Improvement Non-Homesite Value: | + | $356,317 | |
| (+) Land Homesite Value: | + | $0 | |
| (+) Land Non-Homesite Value: | + | $324,648 | |
| (+) Curr Use (HS): | + | $0 | $0 |
| (+) Curr Use (NHS): | + | $0 | $0 |
| | | -------------------------- | |
| (=) Market Value: | = | $680,965 | |
| (–) Productivity Loss: | – | $0 | |
| | | -------------------------- | |
| (=) Subtotal: | = | $680,965 | |
| (+) Senior Appraised Value: | + | $0 | |
| (+) Non-Senior Appraised Value: | + | $680,965 | |
| | | -------------------------- | |
| (=) Total Appraised Value: | = | $680,965 | |
| (–) Senior Exemption Loss: | – | $0 | |
| (–) Exemption Loss: | – | $0 | |
| | | -------------------------- | |
| (=) Taxable Value: | = | $680,965 | |
Taxing Jurisdiction
| Owner: | LIERZ, ROCHELLE J | | |
| % Ownership: | 100.0000000000% | | |
| Total Value: | $680,965 | | |
| Tax Area: | 312 - APPRAISER-Cpvl Schl Dist, outside Cpvl, improved, greater than 1 acre |
| CF | Conservation Futures | 0.0316035091 | $680,965 | $680,965 | $21.52 | | |
| CEM2 | Cemetery #2 | 0.0095056933 | $680,965 | $680,965 | $6.47 | | |
| FIRE5 | Fire & Rescue Dist #5 C Whidbey GEN | 1.2008080668 | $680,965 | $680,965 | $817.71 | | |
| FIRE5BOND | Fire & Rescue Dist #5 C Whidbey BOND | 0.1400090713 | $680,965 | $680,965 | $95.34 | | |
| HOBOND | Hospital BOND | 0.1910887512 | $680,965 | $680,965 | $130.12 | | |
| HOGEN | Hospital GEN | 0.3902502903 | $680,965 | $680,965 | $265.75 | | |
| CE | County Current Expense | 0.3708482477 | $680,965 | $680,965 | $252.53 | | |
| CR | County Roads | 0.4584763726 | $680,965 | $680,965 | $312.21 | | |
| ISLANDEMS | Hospital GEN (EMS) | 0.5000000000 | $680,965 | $680,965 | $340.48 | | |
| LIB | Library Sno-Isle GEN | 0.3153421757 | $680,965 | $680,965 | $214.74 | | |
| LIBCAP | Library Sno-Isle BOND (Cap Fac Imp Area) | 0.0543427938 | $680,965 | $680,965 | $37.01 | | |
| POCOUP | Port of Coupeville GEN | 0.1093371703 | $680,965 | $680,965 | $74.45 | | |
| POCOUPIDD | Port of Coupeville IDD | 0.3409740022 | $680,965 | $680,965 | $232.19 | | |
| COUPSDTECH | School 204 CP (TECH) | 0.7545480007 | $680,965 | $680,965 | $513.82 | | |
| SCH204MO | School 204 Enrichment | 0.6716186034 | $680,965 | $680,965 | $457.35 | | |
| ST | State School | 1.3035497053 | $680,965 | $680,965 | $887.67 | | |
| ST2 | State School Part 2 | 0.8169543533 | $680,965 | $680,965 | $556.32 | | |
| | Total Tax Rate: | 7.6592568070 | | | | | |
| | | | | Taxes w/Current Exemptions: | $5,215.68 | | |
| | | | | Taxes w/o Exemptions: | $5,215.68 | | |
Improvement / Building
| Improvement #1: | RESIDENTIAL | State Code: | Y | 2053.5 sqft | Value: | $356,317 |
| Bathrooms: | 2.5 | Bedrooms: | 3 | | Ceiling: | DRY WALL SPRAYED | Cooling: | HEAT PUMP/CONV/V | | Exterior Wall/Cover: | VINYL | Floor Covering: | HARDWOOD/CARP 60-40 | | Floor Structure: | WOOD W/SUBFLOOR | Foundation: | CONCRETE | | Interior Finish: | DRYWALL PAINT | Plumbing Fixture Cnt: | 13 | | Roof Slope: | 4" IN 12" | Roof Structure/Cover: | CJ ASPHALT |
|
| | Type | Description | Class CD | Sub Class CD | Year Built | Area |
| | BAS | BASE/MAIN FLOOR | 3 | 0 | 1977 | 2053.5 |
| | OWR | OPEN WOOD PORCH W/STEPS/ROOF | 3 | 0 | 1977 | 100.0 |
| | OWC | OPEN WOOD PORCH W/STEPS/ROOF/C | 3 | 0 | 1977 | 16.5 |
| | DGR | DETACHED GARAGE | 3 | 0 | 1977 | 624.0 |
| | OWP | OPEN WOOD PORCH W/STEPS | 3 | 0 | 1977 | 208.0 |
Sketch
| No sketches available for this property. |
Property Image
Land
| 1 | HS | HOMESITE | 1.0000 | 43560.00 | 0.00 | 0.00 | 1.00 | $220,000 | $0 |
| 2 | 91 | UNDEVELOPED LAND-METES AND BOUNDS | 2.5400 | 110642.40 | 0.00 | 0.00 | 1.00 | $104,648 | $0 |
Roll Value History
| 2026 | N/A | N/A | N/A | N/A | N/A |
| 2025 | $356,317 | $324,648 | $0 | $680,965 | $680,965 |
| 2024 | $305,525 | $300,000 | $0 | $605,525 | $605,525 |
| 2023 | $309,873 | $280,000 | $0 | $589,873 | $589,873 |
| 2022 | $284,530 | $260,000 | $0 | $544,530 | $544,530 |
| 2021 | $250,847 | $180,000 | $0 | $430,847 | $430,847 |
| 2020 | $245,103 | $160,000 | $0 | $405,103 | $405,103 |
| 2019 | $187,812 | $210,000 | $0 | $397,812 | $397,812 |
| 2018 | $174,874 | $180,000 | $0 | $354,874 | $354,874 |
| 2017 | $176,097 | $130,000 | $0 | $306,097 | $306,097 |
| 2016 | $178,542 | $120,000 | $0 | $298,542 | $298,542 |
| 2015 | $180,989 | $86,022 | $0 | $267,011 | $267,011 |
| 2014 | $183,435 | $86,022 | $0 | $269,457 | $269,457 |
| 2013 | $185,880 | $86,022 | $0 | $271,902 | $271,902 |
| 2012 | $161,342 | $86,022 | $0 | $247,364 | $247,364 |
| 2011 | $163,526 | $95,580 | $0 | $259,106 | $259,106 |
| 2010 | $176,735 | $95,580 | $0 | $272,315 | $272,315 |
| 2009 | $184,073 | $106,200 | $0 | $290,273 | $290,273 |
| 2008 | $186,811 | $162,840 | $0 | $349,651 | $349,651 |
| 2007 | $189,634 | $162,840 | $0 | $352,474 | $352,474 |
Deed and Sales History
| 1 | 07/09/2024 | WD | Warranty Deed | CARPENTER, SCOTT | LIERZ, ROCHELLE J | | | $765,000.00 | 60639 | 4574554 |
| 2 | 08/24/2012 | WD | Warranty Deed | GEARHEART III, EMORY JOSEPH | CARPENTER, SCOTT | | | $300,000.00 | 8732 | 4322363 |
| 3 | 10/04/2011 | WD | Warranty Deed | GEARHART, E JOSEPH | GEARHEART III, EMORY JOSEPH | | | $0.00 | 5757 | 4302453 |
| 4 | 10/01/1986 | WD | Warranty Deed | DONEHOO, BONNIE L | GEARHART, E J | | | $110,000.00 | 62921 | 86013175 |
| 5 | 04/01/1983 | WD | Warranty Deed | CRAIG, ROBERT L | DONEHOO, BONNIE L | | | $125,000.00 | 30988 | 408373 |
| 6 | 11/01/1978 | OTHER | Other - Misc. Documents | Unknown | CRAIG, ROBERT L | | | $2,000.00 | 85919 | 344045 |
Payout Agreement
| No payout information available.. |