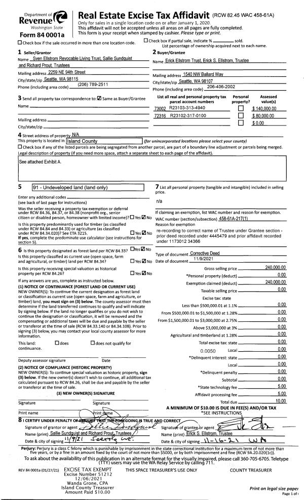
Property
Account |
| Property ID: | 299803 | Abbreviated Legal Description: | LANGLEY LOT 5 & W/2 OF LOT 6 BLK 8 |
| Geographic ID: | S7345-00-08006-0 | Agent Code: | |
| Type: | Real | | |
| Tax Area: | 700 - APPRAISER-S Whid Schl Dist, in town of Langley | Land Use Code | 11 |
| Open Space: | N | DFL | N |
| Historic Property: | N | Remodel Property: | N |
| Multi-Family Redevelopment: | N | | |
| Township: | | Section: | |
| Range: | |
Location |
| Address: | 420 3RD ST LANGLEY, WA 98260 | Mapsco: | |
| Neighborhood: | City of Langley | Map ID: | 912 |
| Neighborhood CD: | 04-L |
Owner |
| Name: | COPELAND, TOYAN | Owner ID: | 280405 |
| Mailing Address: | PO BOX 1436 LANGLEY, WA 98260 | % Ownership: | 100.0000000000% |
| | | Exemptions: | |
Taxes and Assessment Details
Values
| (+) Improvement Homesite Value: | + | $0 | |
| (+) Improvement Non-Homesite Value: | + | $401,777 | |
| (+) Land Homesite Value: | + | $0 | |
| (+) Land Non-Homesite Value: | + | $390,000 | |
| (+) Curr Use (HS): | + | $0 | $0 |
| (+) Curr Use (NHS): | + | $0 | $0 |
| | | -------------------------- | |
| (=) Market Value: | = | $791,777 | |
| (–) Productivity Loss: | – | $0 | |
| | | -------------------------- | |
| (=) Subtotal: | = | $791,777 | |
| (+) Senior Appraised Value: | + | $0 | |
| (+) Non-Senior Appraised Value: | + | $791,777 | |
| | | -------------------------- | |
| (=) Total Appraised Value: | = | $791,777 | |
| (–) Senior Exemption Loss: | – | $0 | |
| (–) Exemption Loss: | – | $0 | |
| | | -------------------------- | |
| (=) Taxable Value: | = | $791,777 | |
Taxing Jurisdiction
| Owner: | COPELAND, TOYAN | | |
| % Ownership: | 100.0000000000% | | |
| Total Value: | $791,777 | | |
| Tax Area: | 700 - APPRAISER-S Whid Schl Dist, in town of Langley |
| CF | Conservation Futures | 0.0316035091 | $791,777 | $791,777 | $25.02 | | |
| LANG | City of Langley | 1.0093520762 | $791,777 | $791,777 | $799.18 | | |
| LANGBOND | City of Langley BOND | 1.0326110892 | $791,777 | $791,777 | $817.60 | | |
| FIRE3 | Fire & Rescue Dist #3 S Whidbey GEN | 1.2004855531 | $791,777 | $791,777 | $950.52 | | |
| HOBOND | Hospital BOND | 0.1910887512 | $791,777 | $791,777 | $151.30 | | |
| HOGEN | Hospital GEN | 0.3902502903 | $791,777 | $791,777 | $308.99 | | |
| CE | County Current Expense | 0.3708482477 | $791,777 | $791,777 | $293.63 | | |
| ISLANDEMS | Hospital GEN (EMS) | 0.5000000000 | $791,777 | $791,777 | $395.89 | | |
| LIB | Library Sno-Isle GEN | 0.3153421757 | $791,777 | $791,777 | $249.68 | | |
| PORTWHID | Port of S Whidbey GEN | 0.1094540357 | $791,777 | $791,777 | $86.66 | | |
| SCH206BOND | School 206 BOND | 0.3161759235 | $791,777 | $791,777 | $250.34 | | |
| SCH206MO | School 206 Enrichment | 0.4547169547 | $791,777 | $791,777 | $360.03 | | |
| ST | State School | 1.3035497053 | $791,777 | $791,777 | $1,032.12 | | |
| ST2 | State School Part 2 | 0.8169543533 | $791,777 | $791,777 | $646.85 | | |
| SWHIDPRBD | P & R S Whidbey BOND | 0.0152817568 | $791,777 | $791,777 | $12.10 | | |
| SWHIDPRBD2 | P & R S Whidbey BOND2 | 0.0138911264 | $791,777 | $791,777 | $11.00 | | |
| SWHIDPRMT | P & R S Whidbey GEN | 0.2053334452 | $791,777 | $791,777 | $162.58 | | |
| | Total Tax Rate: | 8.2769389934 | | | | | |
| | | | | Taxes w/Current Exemptions: | $6,553.49 | | |
| | | | | Taxes w/o Exemptions: | $6,553.49 | | |
Improvement / Building
| Improvement #1: | RESIDENTIAL | State Code: | Y | 2344.0 sqft | Value: | $401,777 |
| Bathrooms: | 2 | Bedrooms: | 3 | | Ceiling: | DRYWALL PAINTED | Cooling: | HEAT PUMP/CONV/V | | Exterior Wall/Cover: | WOOD SIDING | Floor Covering: | HARDWOOD 100% | | Floor Structure: | WOOD W/SUBFLOOR | Foundation: | CONCRETE | | Interior Finish: | DRYWALL PAINT | Plumbing Fixture Cnt: | 9 | | Roof Slope: | 5" IN 12" | Roof Structure/Cover: | CJ ASPHALT |
|
| | Type | Description | Class CD | Sub Class CD | Year Built | Area |
| | BAS | BASE/MAIN FLOOR | 3 | 0 | 1966 | 1930.0 |
| | DWN | DOWNSTAIRS LIVING AREA | 3 | 0 | 1966 | 414.0 |
| | AGR | ATTACHED GARAGE | 3 | 0 | 1966 | 372.0 |
| | BGR | BASEMENT GARAGE | 3 | 0 | 1966 | 558.0 |
Sketch
Property Image
Land
| 1 | 14 | SQ (08001-12000) | 0.0000 | 0.00 | 0.00 | 0.00 | 1.00 | $390,000 | $0 |
Roll Value History
| 2026 | N/A | N/A | N/A | N/A | N/A |
| 2025 | $401,777 | $390,000 | $0 | $791,777 | $791,777 |
| 2024 | $404,875 | $390,000 | $0 | $794,875 | $794,875 |
| 2023 | $408,194 | $390,000 | $0 | $798,194 | $798,194 |
| 2022 | $372,618 | $360,000 | $0 | $732,618 | $732,618 |
| 2021 | $326,633 | $320,000 | $0 | $646,633 | $646,633 |
| 2020 | $304,489 | $320,000 | $0 | $624,489 | $624,489 |
| 2019 | $239,350 | $300,000 | $0 | $539,350 | $539,350 |
| 2018 | $239,992 | $260,000 | $0 | $499,992 | $499,992 |
| 2017 | $171,013 | $250,000 | $0 | $421,013 | $421,013 |
| 2016 | $173,264 | $220,000 | $0 | $393,264 | $393,264 |
| 2015 | $175,513 | $220,000 | $0 | $395,513 | $395,513 |
| 2014 | $132,760 | $183,760 | $0 | $316,520 | $316,520 |
| 2013 | $135,011 | $230,000 | $0 | $365,011 | $365,011 |
| 2012 | $137,261 | $230,000 | $0 | $367,261 | $367,261 |
| 2011 | $139,510 | $250,000 | $0 | $389,510 | $389,510 |
| 2010 | $153,237 | $250,000 | $0 | $403,237 | $403,237 |
| 2009 | $160,116 | $300,000 | $0 | $460,116 | $460,116 |
| 2008 | $164,999 | $300,000 | $0 | $464,999 | $464,999 |
| 2007 | $167,334 | $300,000 | $0 | $467,334 | $467,334 |
Deed and Sales History
| 1 | 05/31/2017 | WD | Warranty Deed | PRIMAVERA, ANNA | COPELAND, TOYAN | | | $449,500.00 | 29751 | 4424310 |
| 2 | 08/01/1986 | PRD | Personal Representatives Deed | PRIMAVERA, VICTOR | PRIMAVERA, ANNA E | | | $0.00 | 62485 | 86011247 |
| 3 | 01/01/1900 | OTHER | Other - Misc. Documents | Unknown | PRIMAVERA, VICTOR | | | $0.00 | 0 | 0 |
Payout Agreement
| No payout information available.. |