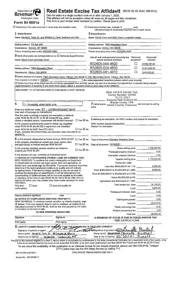
Property
Account |
| Property ID: | 299885 | Abbreviated Legal Description: | LANGLEY LOT 17 BLK 8 |
| Geographic ID: | S7345-00-08017-0 | Agent Code: | |
| Type: | Real | | |
| Tax Area: | 700 - APPRAISER-S Whid Schl Dist, in town of Langley | Land Use Code | 71 |
| Open Space: | N | DFL | N |
| Historic Property: | N | Remodel Property: | N |
| Multi-Family Redevelopment: | N | | |
| Township: | | Section: | |
| Range: | |
Location |
| Address: | 317 2ND ST LANGLEY, WA 98260 | Mapsco: | |
| Neighborhood: | 42cLG-north | Map ID: | 912 |
| Neighborhood CD: | 42cLGnorth |
Owner |
| Name: | MORGAN, DANIEL M | Owner ID: | 273364 |
| Mailing Address: | SUSAN E MORGAN 2374 SOUNDVIEW DR LANGLEY, WA 98260 | % Ownership: | 100.0000000000% |
| | | Exemptions: | |
Taxes and Assessment Details
Values
| (+) Improvement Homesite Value: | + | $0 | |
| (+) Improvement Non-Homesite Value: | + | $181,855 | |
| (+) Land Homesite Value: | + | $0 | |
| (+) Land Non-Homesite Value: | + | $673,133 | |
| (+) Curr Use (HS): | + | $0 | $0 |
| (+) Curr Use (NHS): | + | $0 | $0 |
| | | -------------------------- | |
| (=) Market Value: | = | $854,988 | |
| (–) Productivity Loss: | – | $0 | |
| | | -------------------------- | |
| (=) Subtotal: | = | $854,988 | |
| (+) Senior Appraised Value: | + | $0 | |
| (+) Non-Senior Appraised Value: | + | $854,988 | |
| | | -------------------------- | |
| (=) Total Appraised Value: | = | $854,988 | |
| (–) Senior Exemption Loss: | – | $0 | |
| (–) Exemption Loss: | – | $0 | |
| | | -------------------------- | |
| (=) Taxable Value: | = | $854,988 | |
Taxing Jurisdiction
| Owner: | MORGAN, DANIEL M | | |
| % Ownership: | 100.0000000000% | | |
| Total Value: | $854,988 | | |
| Tax Area: | 700 - APPRAISER-S Whid Schl Dist, in town of Langley |
| CF | Conservation Futures | 0.0316035091 | $854,988 | $854,988 | $27.02 | | |
| LANG | City of Langley | 1.0093520762 | $854,988 | $854,988 | $862.98 | | |
| LANGBOND | City of Langley BOND | 1.0326110892 | $854,988 | $854,988 | $882.87 | | |
| FIRE3 | Fire & Rescue Dist #3 S Whidbey GEN | 1.2004855531 | $854,988 | $854,988 | $1,026.40 | | |
| HOBOND | Hospital BOND | 0.1910887512 | $854,988 | $854,988 | $163.38 | | |
| HOGEN | Hospital GEN | 0.3902502903 | $854,988 | $854,988 | $333.66 | | |
| CE | County Current Expense | 0.3708482477 | $854,988 | $854,988 | $317.07 | | |
| ISLANDEMS | Hospital GEN (EMS) | 0.5000000000 | $854,988 | $854,988 | $427.49 | | |
| LIB | Library Sno-Isle GEN | 0.3153421757 | $854,988 | $854,988 | $269.61 | | |
| PORTWHID | Port of S Whidbey GEN | 0.1094540357 | $854,988 | $854,988 | $93.58 | | |
| SCH206BOND | School 206 BOND | 0.3161759235 | $854,988 | $854,988 | $270.33 | | |
| SCH206MO | School 206 Enrichment | 0.4547169547 | $854,988 | $854,988 | $388.78 | | |
| ST | State School | 1.3035497053 | $854,988 | $854,988 | $1,114.52 | | |
| ST2 | State School Part 2 | 0.8169543533 | $854,988 | $854,988 | $698.49 | | |
| SWHIDPRBD | P & R S Whidbey BOND | 0.0152817568 | $854,988 | $854,988 | $13.07 | | |
| SWHIDPRBD2 | P & R S Whidbey BOND2 | 0.0138911264 | $854,988 | $854,988 | $11.88 | | |
| SWHIDPRMT | P & R S Whidbey GEN | 0.2053334452 | $854,988 | $854,988 | $175.56 | | |
| | Total Tax Rate: | 8.2769389934 | | | | | |
| | | | | Taxes w/Current Exemptions: | $7,076.69 | | |
| | | | | Taxes w/o Exemptions: | $7,076.69 | | |
Improvement / Building
| Improvement #1: | COMMERCIAL | State Code: | Y | 2163.0 sqft | Value: | $181,855 |
| Bathrooms: | 0 | Bedrooms: | 0 | | Ceiling: | DRYWALL PAINTED | Exterior Wall/Cover: | STUCCO | | Floor Covering: | VINYL TILE | Floor Structure: | CONCRETE ON GROUND | | Foundation: | SLAB | Heating: | SPACE HEATERS | | Interior Finish: | RESTAURANT | Plumbing Fixture Cnt: | 10 | | Roof Structure/Cover: | COMP OPEN WOOD |   |   |
|
| | Type | Description | Class CD | Sub Class CD | Year Built | Area |
| | BAS | BASE/MAIN FLOOR | 3 | 0 | 1954 | 2163.0 |
| | OP1 | OPEN PORCH SLAB | 3 | 0 | 1954 | 837.0 |
| | OP3 | OPEN PORCH W/ROOF | 3 | 0 | 1954 | 25.0 |
| | oPV2 | PV/ASPH 3" | 3 | 0 | 1954 | 0.0 |
| | OP4 | OPEN PORCH W/CEILING-ROOF | 3 | 0 | 1954 | 15.0 |
Sketch
Property Image
Land
| 1 | 64 | PERSONAL BUSINESS | 0.1818 | 7919.21 | 0.00 | 0.00 | 1.00 | $673,133 | $0 |
Roll Value History
| 2026 | N/A | N/A | N/A | N/A | N/A |
| 2025 | $181,855 | $673,133 | $0 | $854,988 | $854,988 |
| 2024 | $189,233 | $673,133 | $0 | $862,366 | $862,366 |
| 2023 | $200,215 | $673,133 | $0 | $873,348 | $873,348 |
| 2022 | $163,368 | $475,153 | $0 | $638,521 | $638,521 |
| 2021 | $162,002 | $475,153 | $0 | $637,155 | $637,155 |
| 2020 | $126,847 | $475,153 | $0 | $602,000 | $602,000 |
| 2019 | $139,690 | $475,153 | $0 | $614,843 | $614,843 |
| 2018 | $139,710 | $475,153 | $0 | $614,863 | $614,863 |
| 2017 | $139,750 | $395,961 | $0 | $535,711 | $535,711 |
| 2016 | $139,829 | $395,961 | $0 | $535,790 | $535,790 |
| 2015 | $87,415 | $356,364 | $0 | $443,779 | $443,779 |
| 2014 | $154,837 | $160,459 | $0 | $315,296 | $315,296 |
| 2013 | $154,837 | $160,459 | $0 | $315,296 | $315,296 |
| 2012 | $154,837 | $160,459 | $0 | $315,296 | $315,296 |
| 2011 | $154,837 | $160,459 | $0 | $315,296 | $315,296 |
| 2010 | $142,028 | $160,459 | $0 | $302,487 | $302,487 |
| 2009 | $146,936 | $185,170 | $0 | $332,106 | $332,106 |
| 2008 | $157,690 | $185,170 | $0 | $342,860 | $342,860 |
| 2007 | $162,798 | $185,170 | $0 | $347,968 | $347,968 |
Deed and Sales History
| 1 | 01/06/2016 | WD | Warranty Deed | COOKE, MAUREEN E | MORGAN, DANIEL M | | | $600,000.00 | 22771 | 4392270 |
| 2 | 09/19/2008 | QCD | Quit Claim Deed | COOKE, RAYMOND & | COOKE, MAUREEN E | | | $0.00 | 82497 | 4237081 |
| 3 | 05/01/1997 | WD | Warranty Deed | RIGHT, WORTHY G | COOKE, RAYMOND & | | | $135,000.00 | 71505 | 97006895 |
| 4 | 02/01/1997 | QCD | Quit Claim Deed | RHODODENDRON, REBEKAH L | RIGHT, WORTHY G | | | $0.00 | 70606 | 97002744 |
| 5 | 05/01/1983 | QCD | Quit Claim Deed | SOUTH, WHIDBEY L | RHODODENDRON, REBEKAH L | | | $0.00 | 31290 | 409678 |
| 6 | 01/01/1900 | OTHER | Other - Misc. Documents | Unknown | SOUTH, WHIDBEY L | | | $0.00 | 0 | 0 |
Payout Agreement
| No payout information available.. |