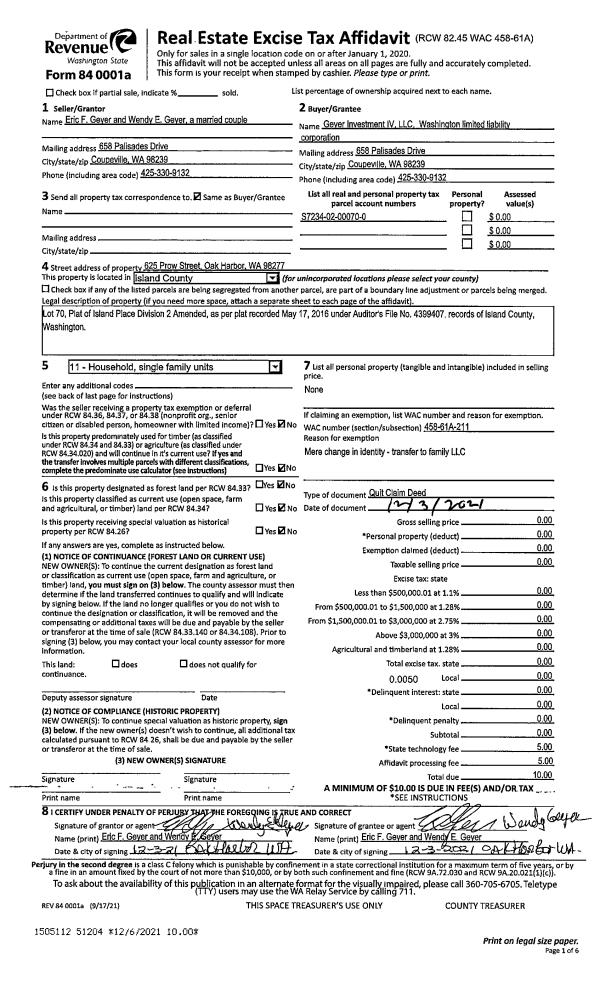
Property
Account |
| Property ID: | 300043 | Abbreviated Legal Description: | LANGLEY LOT 22 BLK 9 TGW & SUB VIEW EZ AF#92020911 |
| Geographic ID: | S7345-00-09022-0 | Agent Code: | |
| Type: | Real | | |
| Tax Area: | 700 - APPRAISER-S Whid Schl Dist, in town of Langley | Land Use Code | 11 |
| Open Space: | N | DFL | N |
| Historic Property: | N | Remodel Property: | N |
| Multi-Family Redevelopment: | N | | |
| Township: | | Section: | |
| Range: | |
Location |
| Address: | 425 3RD ST LANGLEY, WA 98260 | Mapsco: | |
| Neighborhood: | City of Langley | Map ID: | 912 |
| Neighborhood CD: | 04-L |
Owner |
| Name: | BUFF, STEVEN E & JOANN P | Owner ID: | 98642 |
| Mailing Address: | PO BOX 1381 LANGLEY, WA 98260-1381 | % Ownership: | 100.0000000000% |
| | | Exemptions: | |
Taxes and Assessment Details
Values
| (+) Improvement Homesite Value: | + | $0 | |
| (+) Improvement Non-Homesite Value: | + | $384,610 | |
| (+) Land Homesite Value: | + | $0 | |
| (+) Land Non-Homesite Value: | + | $370,000 | |
| (+) Curr Use (HS): | + | $0 | $0 |
| (+) Curr Use (NHS): | + | $0 | $0 |
| | | -------------------------- | |
| (=) Market Value: | = | $754,610 | |
| (–) Productivity Loss: | – | $0 | |
| | | -------------------------- | |
| (=) Subtotal: | = | $754,610 | |
| (+) Senior Appraised Value: | + | $0 | |
| (+) Non-Senior Appraised Value: | + | $754,610 | |
| | | -------------------------- | |
| (=) Total Appraised Value: | = | $754,610 | |
| (–) Senior Exemption Loss: | – | $0 | |
| (–) Exemption Loss: | – | $0 | |
| | | -------------------------- | |
| (=) Taxable Value: | = | $754,610 | |
Taxing Jurisdiction
| Owner: | BUFF, STEVEN E & JOANN P | | |
| % Ownership: | 100.0000000000% | | |
| Total Value: | $754,610 | | |
| Tax Area: | 700 - APPRAISER-S Whid Schl Dist, in town of Langley |
| CF | Conservation Futures | 0.0316035091 | $754,610 | $754,610 | $23.85 | | |
| LANG | City of Langley | 1.0093520762 | $754,610 | $754,610 | $761.67 | | |
| LANGBOND | City of Langley BOND | 1.0326110892 | $754,610 | $754,610 | $779.22 | | |
| FIRE3 | Fire & Rescue Dist #3 S Whidbey GEN | 1.2004855531 | $754,610 | $754,610 | $905.90 | | |
| HOBOND | Hospital BOND | 0.1910887512 | $754,610 | $754,610 | $144.20 | | |
| HOGEN | Hospital GEN | 0.3902502903 | $754,610 | $754,610 | $294.49 | | |
| CE | County Current Expense | 0.3708482477 | $754,610 | $754,610 | $279.85 | | |
| ISLANDEMS | Hospital GEN (EMS) | 0.5000000000 | $754,610 | $754,610 | $377.31 | | |
| LIB | Library Sno-Isle GEN | 0.3153421757 | $754,610 | $754,610 | $237.96 | | |
| PORTWHID | Port of S Whidbey GEN | 0.1094540357 | $754,610 | $754,610 | $82.60 | | |
| SCH206BOND | School 206 BOND | 0.3161759235 | $754,610 | $754,610 | $238.59 | | |
| SCH206MO | School 206 Enrichment | 0.4547169547 | $754,610 | $754,610 | $343.13 | | |
| ST | State School | 1.3035497053 | $754,610 | $754,610 | $983.67 | | |
| ST2 | State School Part 2 | 0.8169543533 | $754,610 | $754,610 | $616.48 | | |
| SWHIDPRBD | P & R S Whidbey BOND | 0.0152817568 | $754,610 | $754,610 | $11.53 | | |
| SWHIDPRBD2 | P & R S Whidbey BOND2 | 0.0138911264 | $754,610 | $754,610 | $10.48 | | |
| SWHIDPRMT | P & R S Whidbey GEN | 0.2053334452 | $754,610 | $754,610 | $154.95 | | |
| | Total Tax Rate: | 8.2769389934 | | | | | |
| | | | | Taxes w/Current Exemptions: | $6,245.88 | | |
| | | | | Taxes w/o Exemptions: | $6,245.88 | | |
Improvement / Building
| Improvement #1: | RESIDENTIAL | State Code: | Y | 1928.0 sqft | Value: | $384,610 |
| Bathrooms: | 2 | Bedrooms: | 3 | | Ceiling: | DRYWALL PAINTED | Cooling: | HEAT PUMP/CONV/V | | Exterior Wall/Cover: | WOOD SIDING | Floor Covering: | CARPET/VINYL 80-20 | | Floor Structure: | WOOD W/SUBFLOOR | Foundation: | CONCRETE | | Interior Finish: | DRYWALL PAINT | Plumbing Fixture Cnt: | 10 | | Roof Slope: | 4" IN 12" | Roof Structure/Cover: | CJ ALUMINIUM HEAVY |
|
| | Type | Description | Class CD | Sub Class CD | Year Built | Area |
| | BAS | BASE/MAIN FLOOR | 4 | 0 | 1938 | 1183.0 |
| | UPS | UPPER STORY | 4 | 0 | 1938 | 745.0 |
| | BAW | BALCONY WOOD RAIL | 4 | 0 | 1938 | 48.0 |
| | OWC | OPEN WOOD PORCH W/STEPS/ROOF/C | 4 | 0 | 1938 | 400.0 |
| | oFN1 | WD FNC 6' | 4 | 0 | 1938 | 0.0 |
Sketch
Property Image
Land
| 1 | 13 | SQ (06001-08000) | 0.0000 | 0.00 | 0.00 | 0.00 | 1.00 | $370,000 | $0 |
Roll Value History
| 2026 | N/A | N/A | N/A | N/A | N/A |
| 2025 | $384,610 | $370,000 | $0 | $754,610 | $754,610 |
| 2024 | $389,287 | $370,000 | $0 | $759,287 | $759,287 |
| 2023 | $393,964 | $370,000 | $0 | $763,964 | $763,964 |
| 2022 | $361,407 | $340,000 | $0 | $701,407 | $701,407 |
| 2021 | $318,558 | $285,000 | $0 | $603,558 | $603,558 |
| 2020 | $268,322 | $285,000 | $0 | $553,322 | $553,322 |
| 2019 | $204,224 | $300,000 | $0 | $504,224 | $504,224 |
| 2018 | $204,846 | $260,000 | $0 | $464,846 | $464,846 |
| 2017 | $206,090 | $250,000 | $0 | $456,090 | $456,090 |
| 2016 | $208,576 | $220,000 | $0 | $428,576 | $428,576 |
| 2015 | $211,065 | $220,000 | $0 | $431,065 | $431,065 |
| 2014 | $209,259 | $170,200 | $0 | $379,459 | $379,459 |
| 2013 | $211,980 | $170,200 | $0 | $382,180 | $382,180 |
| 2012 | $214,703 | $170,200 | $0 | $384,903 | $384,903 |
| 2011 | $217,425 | $185,000 | $0 | $402,425 | $402,425 |
| 2010 | $224,746 | $193,000 | $0 | $417,746 | $417,746 |
| 2009 | $234,640 | $250,000 | $0 | $484,640 | $484,640 |
| 2008 | $177,174 | $300,000 | $0 | $477,174 | $477,174 |
| 2007 | $179,315 | $300,000 | $0 | $479,315 | $479,315 |
Deed and Sales History
| 1 | 06/01/1995 | WD | Warranty Deed | PREBLE, ROBERT J | BUFF, STEVEN E | | | $136,500.00 | 52012 | 95009356 |
| 2 | 10/01/1993 | WD | Warranty Deed | RUSNAK, RONALD & | PREBLE, ROBERT J | | | $123,000.00 | 34261 | 93022149 |
| 3 | 10/01/1992 | WD | Warranty Deed | ADAMS, DEAN J | RUSNAK, RONALD & | | | $79,500.00 | 24302 | 92020909 |
| 4 | 12/01/1989 | WD | Warranty Deed | HEMENWAY, PATRICIA M | ADAMS, DEAN J | | | $41,500.00 | 95820 | 89018681 |
| 5 | 01/01/1900 | OTHER | Other - Misc. Documents | Unknown | HEMENWAY, PATRICIA M | | | $0.00 | 0 | 0 |
Payout Agreement
| No payout information available.. |