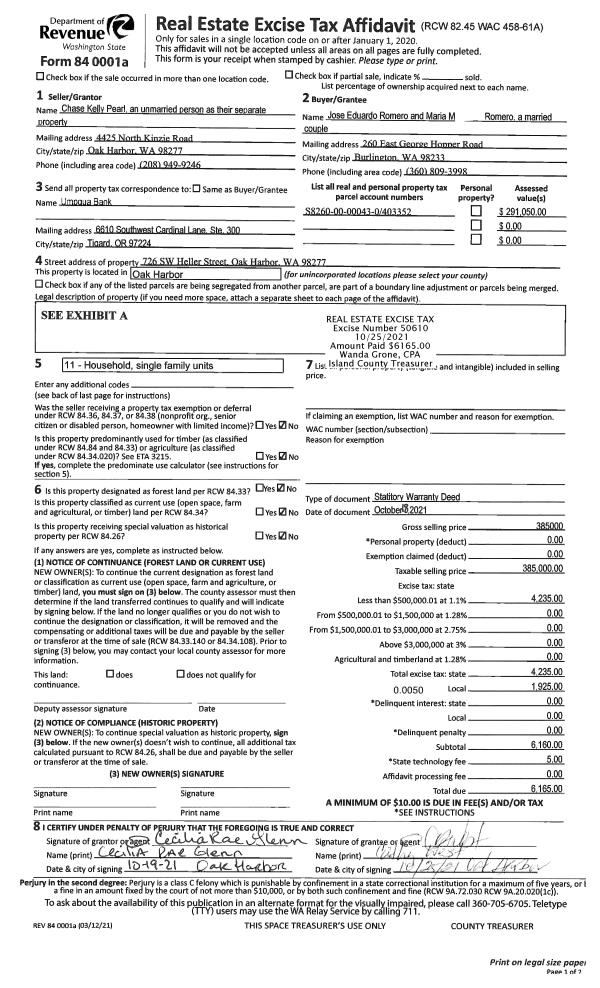
Property
Account |
| Property ID: | 300301 | Abbreviated Legal Description: | LANGLEY LOT 10 & W/2 LOT 11 BLK 12 EX PT TO LANGLEY CITY AF#4394451 |
| Geographic ID: | S7345-00-12010-0 | Agent Code: | |
| Type: | Real | | |
| Tax Area: | 700 - APPRAISER-S Whid Schl Dist, in town of Langley | Land Use Code | 46 |
| Open Space: | N | DFL | N |
| Historic Property: | N | Remodel Property: | N |
| Multi-Family Redevelopment: | N | | |
| Township: | | Section: | |
| Range: | |
Location |
| Address: | 130 2ND ST LANGLEY, WA 98260 | Mapsco: | |
| Neighborhood: | 42cLG-north | Map ID: | 913 |
| Neighborhood CD: | 42cLGnorth |
Owner |
| Name: | THREE OH SEVEN LLC | Owner ID: | 257492 |
| Mailing Address: | PO BOX 307 LANGLEY, WA 98260-0307 | % Ownership: | 100.0000000000% |
| | | Exemptions: | |
Taxes and Assessment Details
Values
| (+) Improvement Homesite Value: | + | $0 | |
| (+) Improvement Non-Homesite Value: | + | $7,776 | |
| (+) Land Homesite Value: | + | $0 | |
| (+) Land Non-Homesite Value: | + | $400,000 | |
| (+) Curr Use (HS): | + | $0 | $0 |
| (+) Curr Use (NHS): | + | $0 | $0 |
| | | -------------------------- | |
| (=) Market Value: | = | $407,776 | |
| (–) Productivity Loss: | – | $0 | |
| | | -------------------------- | |
| (=) Subtotal: | = | $407,776 | |
| (+) Senior Appraised Value: | + | $0 | |
| (+) Non-Senior Appraised Value: | + | $407,776 | |
| | | -------------------------- | |
| (=) Total Appraised Value: | = | $407,776 | |
| (–) Senior Exemption Loss: | – | $0 | |
| (–) Exemption Loss: | – | $0 | |
| | | -------------------------- | |
| (=) Taxable Value: | = | $407,776 | |
Taxing Jurisdiction
| Owner: | THREE OH SEVEN LLC | | |
| % Ownership: | 100.0000000000% | | |
| Total Value: | $407,776 | | |
| Tax Area: | 700 - APPRAISER-S Whid Schl Dist, in town of Langley |
| CF | Conservation Futures | 0.0316035091 | $407,776 | $407,776 | $12.89 | | |
| LANG | City of Langley | 1.0093520762 | $407,776 | $407,776 | $411.59 | | |
| LANGBOND | City of Langley BOND | 1.0326110892 | $407,776 | $407,776 | $421.07 | | |
| FIRE3 | Fire & Rescue Dist #3 S Whidbey GEN | 1.2004855531 | $407,776 | $407,776 | $489.53 | | |
| HOBOND | Hospital BOND | 0.1910887512 | $407,776 | $407,776 | $77.92 | | |
| HOGEN | Hospital GEN | 0.3902502903 | $407,776 | $407,776 | $159.13 | | |
| CE | County Current Expense | 0.3708482477 | $407,776 | $407,776 | $151.22 | | |
| ISLANDEMS | Hospital GEN (EMS) | 0.5000000000 | $407,776 | $407,776 | $203.89 | | |
| LIB | Library Sno-Isle GEN | 0.3153421757 | $407,776 | $407,776 | $128.59 | | |
| PORTWHID | Port of S Whidbey GEN | 0.1094540357 | $407,776 | $407,776 | $44.63 | | |
| SCH206BOND | School 206 BOND | 0.3161759235 | $407,776 | $407,776 | $128.93 | | |
| SCH206MO | School 206 Enrichment | 0.4547169547 | $407,776 | $407,776 | $185.42 | | |
| ST | State School | 1.3035497053 | $407,776 | $407,776 | $531.56 | | |
| ST2 | State School Part 2 | 0.8169543533 | $407,776 | $407,776 | $333.13 | | |
| SWHIDPRBD | P & R S Whidbey BOND | 0.0152817568 | $407,776 | $407,776 | $6.23 | | |
| SWHIDPRBD2 | P & R S Whidbey BOND2 | 0.0138911264 | $407,776 | $407,776 | $5.66 | | |
| SWHIDPRMT | P & R S Whidbey GEN | 0.2053334452 | $407,776 | $407,776 | $83.73 | | |
| | Total Tax Rate: | 8.2769389934 | | | | | |
| | | | | Taxes w/Current Exemptions: | $3,375.12 | | |
| | | | | Taxes w/o Exemptions: | $3,375.12 | | |
Improvement / Building
| Improvement #1: | COMMERCIAL | State Code: | F1 | 0.0 sqft | Value: | $7,776 |
Sketch
| No sketches available for this property. |
Property Image
Land
| 1 | 68 | COMMERCIAL RETAIL | 0.2521 | 10981.48 | 0.00 | 0.00 | 1.00 | $400,000 | $0 |
Roll Value History
| 2026 | N/A | N/A | N/A | N/A | N/A |
| 2025 | $7,776 | $400,000 | $0 | $407,776 | $407,776 |
| 2024 | $7,776 | $400,000 | $0 | $407,776 | $407,776 |
| 2023 | $7,776 | $400,000 | $0 | $407,776 | $407,776 |
| 2022 | $7,776 | $439,259 | $0 | $447,035 | $447,035 |
| 2021 | $7,776 | $439,259 | $0 | $447,035 | $447,035 |
| 2020 | $7,776 | $439,259 | $0 | $447,035 | $447,035 |
| 2019 | $7,776 | $439,259 | $0 | $447,035 | $447,035 |
| 2018 | $7,776 | $439,259 | $0 | $447,035 | $447,035 |
| 2017 | $7,776 | $230,611 | $0 | $238,387 | $238,387 |
| 2016 | $7,776 | $230,611 | $0 | $238,387 | $238,387 |
| 2015 | $7,776 | $230,611 | $0 | $238,387 | $238,387 |
| 2014 | $7,776 | $297,558 | $0 | $305,334 | $305,334 |
| 2013 | $7,776 | $297,558 | $0 | $305,334 | $305,334 |
| 2012 | $7,776 | $297,558 | $0 | $305,334 | $305,334 |
| 2011 | $7,776 | $297,558 | $0 | $305,334 | $305,334 |
| 2010 | $7,776 | $297,558 | $0 | $305,334 | $305,334 |
| 2009 | $7,776 | $346,529 | $0 | $354,305 | $354,305 |
| 2008 | $7,776 | $346,529 | $0 | $354,305 | $354,305 |
| 2007 | $7,776 | $346,529 | $0 | $354,305 | $354,305 |
Deed and Sales History
| 1 | 12/30/2015 | OTHER | Other - Misc. Documents | THREE OH SEVEN LLC | THREE OH SEVEN LLC | | | $10.00 | 23220 | 4394451 |
| 2 | 11/17/2011 | QCD | Quit Claim Deed | FELTON, EUGENE R | THREE OH SEVEN LLC | | | $0.00 | 6188 | 4305098 |
| 3 | 04/01/1994 | OTHER | Other - Misc. Documents | FELTON, EUGENE R | FELTON, EUGENE R | | | $0.00 | 65850 | 94008400 |
| 4 | 05/01/1984 | WD | Warranty Deed | ELLIOTT, DALE W | FELTON, EUGENE R | | | $66,000.00 | 41357 | 424623 |
| 5 | 01/01/1900 | OTHER | Other - Misc. Documents | Unknown | ELLIOTT, DALE W | | | $0.00 | 0 | 0 |
Payout Agreement
| No payout information available.. |