Property
Account |
| Property ID: | 300392 | Abbreviated Legal Description: | LANGLEY W3'OF N49'LOT 21 & LOT 22 EX E3'OF S51'BLK 12 |
| Geographic ID: | S7345-00-12022-0 | Agent Code: | |
| Type: | Real | | |
| Tax Area: | 700 - APPRAISER-S Whid Schl Dist, in town of Langley | Land Use Code | 59 |
| Open Space: | N | DFL | N |
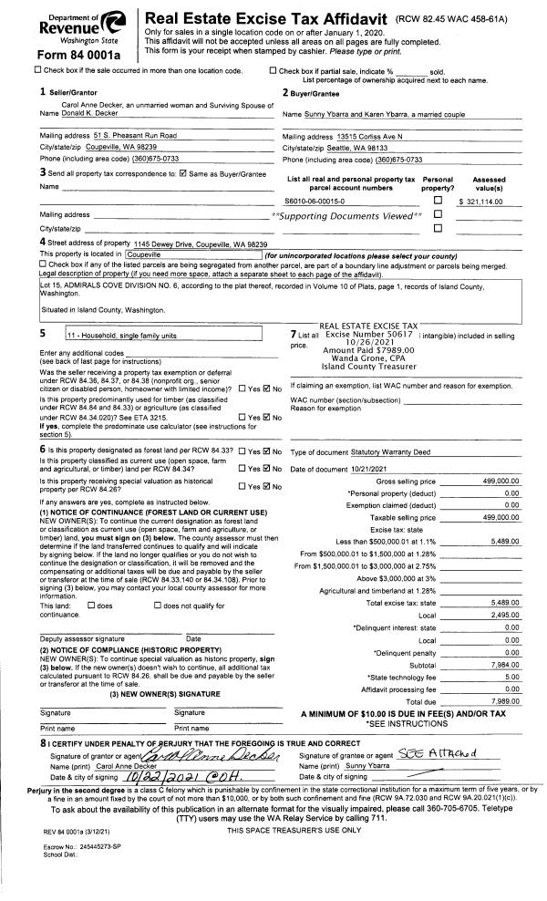
| Historic Property: | N | Remodel Property: | N |
| Multi-Family Redevelopment: | N | | |
| Township: | | Section: | |
| Range: | |
Location |
| Address: | | Mapsco: | |
| Neighborhood: | 42cLG-north | Map ID: | 913 |
| Neighborhood CD: | 42cLGnorth |
Owner |
| Name: | HAUSER TTEE, GLENN T | Owner ID: | 199875 |
| Mailing Address: | JAHALA L HAUSER TTEE 4188 BEACH DR FREELAND, WA 98249-9434 | % Ownership: | 100.0000000000% |
| | | Exemptions: | |
Taxes and Assessment Details
Values
| (+) Improvement Homesite Value: | + | $0 | |
| (+) Improvement Non-Homesite Value: | + | $93,811 | |
| (+) Land Homesite Value: | + | $0 | |
| (+) Land Non-Homesite Value: | + | $453,569 | |
| (+) Curr Use (HS): | + | $0 | $0 |
| (+) Curr Use (NHS): | + | $0 | $0 |
| | | -------------------------- | |
| (=) Market Value: | = | $547,380 | |
| (–) Productivity Loss: | – | $0 | |
| | | -------------------------- | |
| (=) Subtotal: | = | $547,380 | |
| (+) Senior Appraised Value: | + | $0 | |
| (+) Non-Senior Appraised Value: | + | $547,380 | |
| | | -------------------------- | |
| (=) Total Appraised Value: | = | $547,380 | |
| (–) Senior Exemption Loss: | – | $0 | |
| (–) Exemption Loss: | – | $0 | |
| | | -------------------------- | |
| (=) Taxable Value: | = | $547,380 | |
Taxing Jurisdiction
| Owner: | HAUSER TTEE, GLENN T | | |
| % Ownership: | 100.0000000000% | | |
| Total Value: | $547,380 | | |
| Tax Area: | 700 - APPRAISER-S Whid Schl Dist, in town of Langley |
| CF | Conservation Futures | 0.0316035091 | $547,380 | $547,380 | $17.30 | | |
| LANG | City of Langley | 1.0093520762 | $547,380 | $547,380 | $552.50 | | |
| LANGBOND | City of Langley BOND | 1.0326110892 | $547,380 | $547,380 | $565.23 | | |
| FIRE3 | Fire & Rescue Dist #3 S Whidbey GEN | 1.2004855531 | $547,380 | $547,380 | $657.12 | | |
| HOBOND | Hospital BOND | 0.1910887512 | $547,380 | $547,380 | $104.60 | | |
| HOGEN | Hospital GEN | 0.3902502903 | $547,380 | $547,380 | $213.62 | | |
| CE | County Current Expense | 0.3708482477 | $547,380 | $547,380 | $202.99 | | |
| ISLANDEMS | Hospital GEN (EMS) | 0.5000000000 | $547,380 | $547,380 | $273.69 | | |
| LIB | Library Sno-Isle GEN | 0.3153421757 | $547,380 | $547,380 | $172.61 | | |
| PORTWHID | Port of S Whidbey GEN | 0.1094540357 | $547,380 | $547,380 | $59.91 | | |
| SCH206BOND | School 206 BOND | 0.3161759235 | $547,380 | $547,380 | $173.07 | | |
| SCH206MO | School 206 Enrichment | 0.4547169547 | $547,380 | $547,380 | $248.90 | | |
| ST | State School | 1.3035497053 | $547,380 | $547,380 | $713.54 | | |
| ST2 | State School Part 2 | 0.8169543533 | $547,380 | $547,380 | $447.18 | | |
| SWHIDPRBD | P & R S Whidbey BOND | 0.0152817568 | $547,380 | $547,380 | $8.36 | | |
| SWHIDPRBD2 | P & R S Whidbey BOND2 | 0.0138911264 | $547,380 | $547,380 | $7.60 | | |
| SWHIDPRMT | P & R S Whidbey GEN | 0.2053334452 | $547,380 | $547,380 | $112.40 | | |
| | Total Tax Rate: | 8.2769389934 | | | | | |
| | | | | Taxes w/Current Exemptions: | $4,530.62 | | |
| | | | | Taxes w/o Exemptions: | $4,530.62 | | |
Improvement / Building
| Improvement #1: | COMMERCIAL | State Code: | F1 | 2868.0 sqft | Value: | $93,811 |
| Bathrooms: | 0 | Bedrooms: | 0 | | Ceiling: | DRYWALL PAINTED | Exterior Wall/Cover: | 8" CONC BLK/WD FRAME | | Floor Covering: | CARPET 100% | Floor Structure: | WOOD ON WOOD JOIST | | Foundation: | CONCRETE | Heating: | SPACE HEATERS | | Interior Finish: | RETAIL | Plumbing Fixture Cnt: | 1 | | Roof Structure/Cover: | BEAM BUILT-UP ROCK |   |   |
|
| | Type | Description | Class CD | Sub Class CD | Year Built | Area |
| | BAS | BASE/MAIN FLOOR | 2 | 0 | 1974 | 1428.0 |
| | OP3 | OPEN PORCH W/ROOF | 2 | 0 | 1974 | 12.0 |
| | OWP | OPEN WOOD PORCH W/STEPS | 2 | 0 | 1974 | 100.0 |
| | OWR | OPEN WOOD PORCH W/STEPS/ROOF | 2 | 0 | 1974 | 55.0 |
| | UPS | UPPER STORY | 2 | 0 | 1974 | 1440.0 |
Sketch
Property Image
Land
| 1 | 68 | COMMERCIAL RETAIL | 0.0833 | 3628.55 | 0.00 | 0.00 | 1.00 | $453,569 | $0 |
Roll Value History
| 2026 | N/A | N/A | N/A | N/A | N/A |
| 2025 | $93,811 | $453,569 | $0 | $547,380 | $547,380 |
| 2024 | $99,339 | $453,569 | $0 | $552,908 | $552,908 |
| 2023 | $104,966 | $453,569 | $0 | $558,535 | $558,535 |
| 2022 | $87,831 | $435,426 | $0 | $523,257 | $523,257 |
| 2021 | $87,555 | $435,426 | $0 | $522,981 | $522,981 |
| 2020 | $75,700 | $435,426 | $0 | $511,126 | $511,126 |
| 2019 | $83,870 | $435,426 | $0 | $519,296 | $519,296 |
| 2018 | $83,876 | $435,426 | $0 | $519,302 | $519,302 |
| 2017 | $83,889 | $181,428 | $0 | $265,317 | $265,317 |
| 2016 | $83,916 | $181,428 | $0 | $265,344 | $265,344 |
| 2015 | $89,436 | $163,285 | $0 | $252,721 | $252,721 |
| 2014 | $145,694 | $182,166 | $0 | $327,860 | $327,860 |
| 2013 | $145,694 | $182,166 | $0 | $327,860 | $327,860 |
| 2012 | $145,694 | $182,166 | $0 | $327,860 | $327,860 |
| 2011 | $145,694 | $182,166 | $0 | $327,860 | $327,860 |
| 2010 | $82,191 | $242,713 | $0 | $324,904 | $324,904 |
| 2009 | $84,844 | $284,042 | $0 | $368,886 | $368,886 |
| 2008 | $88,171 | $282,585 | $0 | $370,756 | $370,756 |
| 2007 | $90,087 | $282,585 | $0 | $372,672 | $372,672 |
Deed and Sales History
| 1 | 04/14/2008 | QCD | Quit Claim Deed | HAUSER, GLENN T | HAUSER TTEE, GLENN T | | | $0.00 | 81108 | 4227765 |
| 2 | 01/01/1900 | OTHER | Other - Misc. Documents | Unknown | HAUSER, GLENN T | | | $0.00 | 0 | 0 |
Payout Agreement
| No payout information available.. |