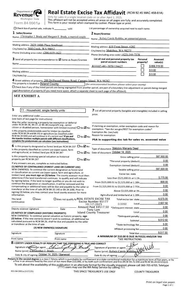
Property
Account |
| Property ID: | 300588 | Abbreviated Legal Description: | LANGLEY LOTS 6, 7 & 8 RES B BLK 6 INCL ADJ TIDES TO MEAN LOW |
| Geographic ID: | S7345-00-6B006-0 | Agent Code: | |
| Type: | Real | | |
| Tax Area: | 700 - APPRAISER-S Whid Schl Dist, in town of Langley | Land Use Code | 11 |
| Open Space: | N | DFL | N |
| Historic Property: | N | Remodel Property: | N |
| Multi-Family Redevelopment: | N | | |
| Township: | | Section: | |
| Range: | |
Location |
| Address: | 402 1ST ST LANGLEY, WA 98260 | Mapsco: | |
| Neighborhood: | City of Langley | Map ID: | 912 |
| Neighborhood CD: | 04-L |
Owner |
| Name: | FROSCH JR, EDWARD C | Owner ID: | 296997 |
| Mailing Address: | ROCHELLE M ROBERTSON 3849 24TH AVE W SEATTLE, WA 98199 | % Ownership: | 100.0000000000% |
| | | Exemptions: | |
Taxes and Assessment Details
Values
| (+) Improvement Homesite Value: | + | $0 | |
| (+) Improvement Non-Homesite Value: | + | $283,169 | |
| (+) Land Homesite Value: | + | $0 | |
| (+) Land Non-Homesite Value: | + | $625,900 | |
| (+) Curr Use (HS): | + | $0 | $0 |
| (+) Curr Use (NHS): | + | $0 | $0 |
| | | -------------------------- | |
| (=) Market Value: | = | $909,069 | |
| (–) Productivity Loss: | – | $0 | |
| | | -------------------------- | |
| (=) Subtotal: | = | $909,069 | |
| (+) Senior Appraised Value: | + | $0 | |
| (+) Non-Senior Appraised Value: | + | $909,069 | |
| | | -------------------------- | |
| (=) Total Appraised Value: | = | $909,069 | |
| (–) Senior Exemption Loss: | – | $0 | |
| (–) Exemption Loss: | – | $0 | |
| | | -------------------------- | |
| (=) Taxable Value: | = | $909,069 | |
Taxing Jurisdiction
| Owner: | FROSCH JR, EDWARD C | | |
| % Ownership: | 100.0000000000% | | |
| Total Value: | $909,069 | | |
| Tax Area: | 700 - APPRAISER-S Whid Schl Dist, in town of Langley |
| CF | Conservation Futures | 0.0316035091 | $909,069 | $909,069 | $28.73 | | |
| LANG | City of Langley | 1.0093520762 | $909,069 | $909,069 | $917.57 | | |
| LANGBOND | City of Langley BOND | 1.0326110892 | $909,069 | $909,069 | $938.71 | | |
| FIRE3 | Fire & Rescue Dist #3 S Whidbey GEN | 1.2004855531 | $909,069 | $909,069 | $1,091.32 | | |
| HOBOND | Hospital BOND | 0.1910887512 | $909,069 | $909,069 | $173.71 | | |
| HOGEN | Hospital GEN | 0.3902502903 | $909,069 | $909,069 | $354.76 | | |
| CE | County Current Expense | 0.3708482477 | $909,069 | $909,069 | $337.13 | | |
| ISLANDEMS | Hospital GEN (EMS) | 0.5000000000 | $909,069 | $909,069 | $454.53 | | |
| LIB | Library Sno-Isle GEN | 0.3153421757 | $909,069 | $909,069 | $286.67 | | |
| PORTWHID | Port of S Whidbey GEN | 0.1094540357 | $909,069 | $909,069 | $99.50 | | |
| SCH206BOND | School 206 BOND | 0.3161759235 | $909,069 | $909,069 | $287.43 | | |
| SCH206MO | School 206 Enrichment | 0.4547169547 | $909,069 | $909,069 | $413.37 | | |
| ST | State School | 1.3035497053 | $909,069 | $909,069 | $1,185.02 | | |
| ST2 | State School Part 2 | 0.8169543533 | $909,069 | $909,069 | $742.67 | | |
| SWHIDPRBD | P & R S Whidbey BOND | 0.0152817568 | $909,069 | $909,069 | $13.89 | | |
| SWHIDPRBD2 | P & R S Whidbey BOND2 | 0.0138911264 | $909,069 | $909,069 | $12.63 | | |
| SWHIDPRMT | P & R S Whidbey GEN | 0.2053334452 | $909,069 | $909,069 | $186.66 | | |
| | Total Tax Rate: | 8.2769389934 | | | | | |
| | | | | Taxes w/Current Exemptions: | $7,524.30 | | |
| | | | | Taxes w/o Exemptions: | $7,524.30 | | |
Improvement / Building
| Improvement #1: | RESIDENTIAL | State Code: | Y | 2080.0 sqft | Value: | $283,169 |
| Bathrooms: | 2 | Bedrooms: | 3 | | Ceiling: | TONGUE & GROOVE | Cooling: | HEAT PUMP/CONV/V | | Exterior Wall/Cover: | SHINGLE | Floor Covering: | LAMINATE/LVP | | Floor Structure: | WOOD W/SUBFLOOR | Foundation: | CONCRETE | | Interior Finish: | DRYWALL PAINT | Plumbing Fixture Cnt: | 10 | | Roof Slope: | 5" IN 12" | Roof Structure/Cover: | CJ ASPHALT |
|
| | Type | Description | Class CD | Sub Class CD | Year Built | Area |
| | BAS | BASE/MAIN FLOOR | 3 | 0 | 1920 | 1040.0 |
| | DWN | DOWNSTAIRS LIVING AREA | 3 | 0 | 1920 | 1040.0 |
| | OP1 | OPEN PORCH SLAB | 3 | 0 | 1920 | 460.0 |
Sketch
Property Image
Land
| 1 | MB | MEDIUM BANK | 0.0000 | 0.00 | 90.00 | 0.00 | 1.00 | $625,000 | $0 |
| 2 | 55 | TIDES | 0.0000 | 0.00 | 90.00 | 0.00 | 1.00 | $900 | $0 |
Roll Value History
| 2026 | N/A | N/A | N/A | N/A | N/A |
| 2025 | $283,169 | $625,900 | $0 | $909,069 | $909,069 |
| 2024 | $272,721 | $625,900 | $0 | $898,621 | $898,621 |
| 2023 | $144,508 | $350,900 | $0 | $495,408 | $495,408 |
| 2022 | $189,487 | $900,900 | $0 | $1,090,387 | $1,090,387 |
| 2021 | $166,983 | $900,900 | $0 | $1,067,883 | $1,067,883 |
| 2020 | $125,876 | $700,900 | $0 | $826,776 | $826,776 |
| 2019 | $91,776 | $600,900 | $0 | $692,676 | $692,676 |
| 2018 | $92,151 | $600,900 | $0 | $693,051 | $693,051 |
| 2017 | $92,901 | $450,900 | $0 | $543,801 | $543,801 |
| 2016 | $94,399 | $450,900 | $0 | $545,299 | $545,299 |
| 2015 | $95,898 | $450,900 | $0 | $546,798 | $546,798 |
| 2014 | $84,125 | $600,900 | $0 | $685,025 | $685,025 |
| 2013 | $85,646 | $540,900 | $0 | $626,546 | $626,546 |
| 2012 | $87,167 | $540,900 | $0 | $628,067 | $628,067 |
| 2011 | $88,688 | $540,900 | $0 | $629,588 | $629,588 |
| 2010 | $96,993 | $593,128 | $0 | $690,121 | $690,121 |
| 2009 | $101,328 | $654,762 | $0 | $756,090 | $756,090 |
| 2008 | $81,657 | $654,762 | $0 | $736,419 | $736,419 |
| 2007 | $82,836 | $423,290 | $0 | $506,126 | $506,126 |
Deed and Sales History
| 1 | 11/30/2020 | WD | Warranty Deed | MIRAGE INVESTMENTS LLC | FROSCH JR, EDWARD C | | | $1,080,000.00 | 45946 | 4503862 |
| 2 | 01/02/2008 | WD | Warranty Deed | KOHLWES, ELIZABETH L | MIRAGE INVESTMENTS LLC, | | | $1,300,000.00 | 80056 | 4219351 |
| 3 | 11/01/1994 | QCD | Quit Claim Deed | KOHLWES, ELIZABETH L | KOHLWES, ELIZABETH L | | | $0.00 | 44583 | 94023585 |
| 4 | 10/01/1992 | QCD | Quit Claim Deed | COOPER, VERA B | KOHLWES, ELIZABETH L | | | $0.00 | 24026 | 92019529 |
| 5 | 01/01/1900 | OTHER | Other - Misc. Documents | Unknown | COOPER, VERA B | | | $0.00 | 0 | 0 |
Payout Agreement
| No payout information available.. |