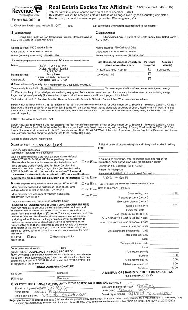
Property
Account |
| Property ID: | 301051 | Abbreviated Legal Description: | LAWANA BCH LOT 13 BLK B |
| Geographic ID: | S7350-00-0B013-0 | Agent Code: | |
| Type: | Real | | |
| Tax Area: | 312 - APPRAISER-Cpvl Schl Dist, outside Cpvl, improved, greater than 1 acre | Land Use Code | 11 |
| Open Space: | N | DFL | N |
| Historic Property: | N | Remodel Property: | N |
| Multi-Family Redevelopment: | N | | |
| Township: | | Section: | |
| Range: | |
Location |
| Address: | 196 HARRINGTON RD COUPEVILLE, WA 98239 | Mapsco: | |
| Neighborhood: | Cycle 2 | Map ID: | 461 |
| Neighborhood CD: | 2 |
Owner |
| Name: | NZENGE, PRISCILLAH | Owner ID: | 316434 |
| Mailing Address: | 196 HARRINGTON RD COUPEVILLE, WA 98239 | % Ownership: | 100.0000000000% |
| | | Exemptions: | |
Taxes and Assessment Details
Values
| (+) Improvement Homesite Value: | + | $0 | |
| (+) Improvement Non-Homesite Value: | + | $271,758 | |
| (+) Land Homesite Value: | + | $0 | |
| (+) Land Non-Homesite Value: | + | $280,000 | |
| (+) Curr Use (HS): | + | $0 | $0 |
| (+) Curr Use (NHS): | + | $0 | $0 |
| | | -------------------------- | |
| (=) Market Value: | = | $551,758 | |
| (–) Productivity Loss: | – | $0 | |
| | | -------------------------- | |
| (=) Subtotal: | = | $551,758 | |
| (+) Senior Appraised Value: | + | $0 | |
| (+) Non-Senior Appraised Value: | + | $551,758 | |
| | | -------------------------- | |
| (=) Total Appraised Value: | = | $551,758 | |
| (–) Senior Exemption Loss: | – | $0 | |
| (–) Exemption Loss: | – | $0 | |
| | | -------------------------- | |
| (=) Taxable Value: | = | $551,758 | |
Taxing Jurisdiction
| Owner: | NZENGE, PRISCILLAH | | |
| % Ownership: | 100.0000000000% | | |
| Total Value: | $551,758 | | |
| Tax Area: | 312 - APPRAISER-Cpvl Schl Dist, outside Cpvl, improved, greater than 1 acre |
| CF | Conservation Futures | 0.0316035091 | $551,758 | $551,758 | $17.44 | | |
| CEM2 | Cemetery #2 | 0.0095056933 | $551,758 | $551,758 | $5.24 | | |
| FIRE5 | Fire & Rescue Dist #5 C Whidbey GEN | 1.2008080668 | $551,758 | $551,758 | $662.56 | | |
| FIRE5BOND | Fire & Rescue Dist #5 C Whidbey BOND | 0.1400090713 | $551,758 | $551,758 | $77.25 | | |
| HOBOND | Hospital BOND | 0.1910887512 | $551,758 | $551,758 | $105.43 | | |
| HOGEN | Hospital GEN | 0.3902502903 | $551,758 | $551,758 | $215.32 | | |
| CE | County Current Expense | 0.3708482477 | $551,758 | $551,758 | $204.62 | | |
| CR | County Roads | 0.4584763726 | $551,758 | $551,758 | $252.97 | | |
| ISLANDEMS | Hospital GEN (EMS) | 0.5000000000 | $551,758 | $551,758 | $275.88 | | |
| LIB | Library Sno-Isle GEN | 0.3153421757 | $551,758 | $551,758 | $173.99 | | |
| LIBCAP | Library Sno-Isle BOND (Cap Fac Imp Area) | 0.0543427938 | $551,758 | $551,758 | $29.98 | | |
| POCOUP | Port of Coupeville GEN | 0.1093371703 | $551,758 | $551,758 | $60.33 | | |
| POCOUPIDD | Port of Coupeville IDD | 0.3409740022 | $551,758 | $551,758 | $188.14 | | |
| COUPSDTECH | School 204 CP (TECH) | 0.7545480007 | $551,758 | $551,758 | $416.33 | | |
| SCH204MO | School 204 Enrichment | 0.6716186034 | $551,758 | $551,758 | $370.57 | | |
| ST | State School | 1.3035497053 | $551,758 | $551,758 | $719.24 | | |
| ST2 | State School Part 2 | 0.8169543533 | $551,758 | $551,758 | $450.76 | | |
| | Total Tax Rate: | 7.6592568070 | | | | | |
| | | | | Taxes w/Current Exemptions: | $4,226.05 | | |
| | | | | Taxes w/o Exemptions: | $4,226.05 | | |
Improvement / Building
| Improvement #1: | MANUFACTURED HOME | State Code: | Y | 1795.5 sqft | Value: | $163,039 |
| Bathrooms: | 0 | Bedrooms: | 0 | | Ceiling: | PLASTER PAINTED | Cooling: | EVAP NO DUCT | | Exterior Wall/Cover: | VINYL | Floor Covering: | CARPET 100% | | Floor Structure: | SLAB ON GRADE | Foundation: | SLAB | | Heating: | FHA ELECTRIC | Interior Finish: | PLASTER | | Plumbing Fixture Cnt: | 1 | Roof Slope: | FLAT | | Roof Structure/Cover: | CJ ALUMINIUM HEAVY |   |   |
|
| | Type | Description | Class CD | Sub Class CD | Year Built | Area |
| | BAS | BASE/MAIN FLOOR | 4 | 0 | 2005 | 1795.5 |
| | OWP | OPEN WOOD PORCH W/STEPS | 4 | 0 | 2005 | 24.0 |
| | OWP | OPEN WOOD PORCH W/STEPS | 4 | 0 | 2005 | 15.0 |
| | OWP | OPEN WOOD PORCH W/STEPS | 4 | 0 | 2005 | 30.0 |
| | OWP | OPEN WOOD PORCH W/STEPS | 4 | 0 | 2005 | 36.0 |
| Improvement #2: | MANUFACTURED HOME | State Code: | Y | 976.0 sqft | Value: | $108,719 |
| Bathrooms: | 0 | Bedrooms: | 0 | | Ceiling: | PLASTER PAINTED | Cooling: | EVAP NO DUCT | | Exterior Wall/Cover: | VINYL | Floor Covering: | CARPET 100% | | Floor Structure: | SLAB ON GRADE | Foundation: | SLAB | | Heating: | FHA ELECTRIC | Interior Finish: | PLASTER | | Plumbing Fixture Cnt: | 1 | Roof Slope: | FLAT | | Roof Structure/Cover: | CJ ALUMINIUM HEAVY |   |   |
|
| | Type | Description | Class CD | Sub Class CD | Year Built | Area |
| | BAS | BASE/MAIN FLOOR | 4 | 0 | 2004 | 976.0 |
| | OWC | OPEN WOOD PORCH W/STEPS/ROOF/C | 4 | 0 | 2004 | 104.0 |
Sketch
Property Image
Land
| 1 | 17 | AC (01.01-02.00) | 1.6000 | 69696.00 | 0.00 | 0.00 | 1.00 | $280,000 | $0 |
Roll Value History
| 2026 | N/A | N/A | N/A | N/A | N/A |
| 2025 | $271,758 | $280,000 | $0 | $551,758 | $551,758 |
| 2024 | $168,279 | $270,000 | $0 | $438,279 | $438,279 |
| 2023 | $171,573 | $260,000 | $0 | $431,573 | $431,573 |
| 2022 | $158,794 | $240,000 | $0 | $398,794 | $398,794 |
| 2021 | $141,805 | $150,000 | $0 | $291,805 | $291,805 |
| 2020 | $141,269 | $150,000 | $0 | $291,269 | $291,269 |
| 2019 | $114,147 | $180,000 | $0 | $294,147 | $294,147 |
| 2018 | $129,445 | $135,000 | $0 | $264,445 | $264,445 |
| 2017 | $132,573 | $125,000 | $0 | $257,573 | $257,573 |
| 2016 | $135,438 | $120,000 | $0 | $255,438 | $255,438 |
| 2015 | $137,012 | $95,000 | $0 | $232,012 | $232,012 |
| 2014 | $140,162 | $95,000 | $0 | $235,162 | $235,162 |
| 2013 | $141,738 | $100,000 | $0 | $241,738 | $241,738 |
| 2012 | $163,157 | $100,000 | $0 | $263,157 | $263,157 |
| 2011 | $164,716 | $100,000 | $0 | $264,716 | $264,716 |
| 2010 | $169,969 | $100,000 | $0 | $269,969 | $269,969 |
| 2009 | $176,422 | $115,000 | $0 | $291,422 | $291,422 |
| 2008 | $178,236 | $115,000 | $0 | $293,236 | $293,236 |
| 2007 | $180,044 | $115,000 | $0 | $295,044 | $295,044 |
Deed and Sales History
| 1 | 05/08/2025 | QCD | Quit Claim Deed | NZENGE, GEORGE | NZENGE, PRISCILLAH | | | $0.00 | 63422 | 4585602 |
| 2 | 04/15/2025 | WD | Warranty Deed | GRIMM, OLIVER | NZENGE, PRISCILLAH | | | $699,000.00 | 63421 | 4585601 |
| 3 | 03/28/2024 | WD | Warranty Deed | OLESEN, JAMES D | GRIMM, OLIVER | | | $332,000.00 | 59562 | 4570864 |
| 4 | 03/28/2024 | QCD | Quit Claim Deed | BUNTIN, JOHN | OLESEN, JAMES D | | | $0.00 | 59561 | 4570862 |
| 5 | 06/23/2015 | QCD | Quit Claim Deed | OLESEN, LINDA E | OLESEN, LINDA F | | | $0.00 | 28875 | 4420732 |
| 6 | 03/31/2011 | QCD | Quit Claim Deed | BUNTIN, LUCY E | OLESEN, LINDA E | | | $0.00 | 4026 | 4293084 |
| 7 | 10/25/2005 | QCD | Quit Claim Deed | BUNTIN TRUSTEE, LUCY E | BUNTIN, LUCY E | | | $0.00 | 55557 | 4152980 |
| 8 | 04/08/2004 | WD | Warranty Deed | BECKER, ROBERT F | BUNTIN TRUSTEE, LUCY E | | | $60,000.00 | 41393 | 4096707 |
| 9 | 04/04/2000 | ESTSEPPROP | Establish Separate Property | BECKER, ROBERT F | BECKER, ROBERT F | | | $0.00 | 1307 | 20006465 |
| 10 | 04/04/2000 | WD | Warranty Deed | DORSEY, FRANK F | BECKER, ROBERT F | | | $25,000.00 | 1305 | 20006463 |
| 11 | 01/01/1900 | OTHER | Other - Misc. Documents | Unknown | DORSEY, FRANK F | | | $0.00 | 0 | 0 |
Payout Agreement
| No payout information available.. |