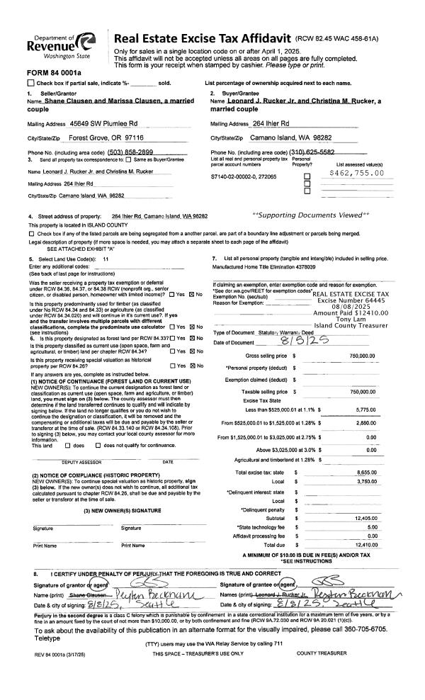
Property
Account |
| Property ID: | 301097 | Abbreviated Legal Description: | LAWANA BCH LOT 17 BLK B |
| Geographic ID: | S7350-00-0B017-0 | Agent Code: | |
| Type: | Real | | |
| Tax Area: | 312 - APPRAISER-Cpvl Schl Dist, outside Cpvl, improved, greater than 1 acre | Land Use Code | 11 |
| Open Space: | N | DFL | N |
| Historic Property: | N | Remodel Property: | N |
| Multi-Family Redevelopment: | N | | |
| Township: | | Section: | |
| Range: | |
Location |
| Address: | 180 S HARRINGTON RD COUPEVILLE, WA 98239 | Mapsco: | |
| Neighborhood: | Cycle 2 | Map ID: | 461 |
| Neighborhood CD: | 2 |
Owner |
| Name: | JORDAN, DOUGLAS S | Owner ID: | 279970 |
| Mailing Address: | 18038 SUNNYSIDE AVE N SHORELINE, WA 98133 | % Ownership: | 100.0000000000% |
| | | Exemptions: | |
Taxes and Assessment Details
Values
| (+) Improvement Homesite Value: | + | $0 | |
| (+) Improvement Non-Homesite Value: | + | $3,682 | |
| (+) Land Homesite Value: | + | $0 | |
| (+) Land Non-Homesite Value: | + | $120,000 | |
| (+) Curr Use (HS): | + | $0 | $0 |
| (+) Curr Use (NHS): | + | $0 | $0 |
| | | -------------------------- | |
| (=) Market Value: | = | $123,682 | |
| (–) Productivity Loss: | – | $0 | |
| | | -------------------------- | |
| (=) Subtotal: | = | $123,682 | |
| (+) Senior Appraised Value: | + | $0 | |
| (+) Non-Senior Appraised Value: | + | $123,682 | |
| | | -------------------------- | |
| (=) Total Appraised Value: | = | $123,682 | |
| (–) Senior Exemption Loss: | – | $0 | |
| (–) Exemption Loss: | – | $0 | |
| | | -------------------------- | |
| (=) Taxable Value: | = | $123,682 | |
Taxing Jurisdiction
| Owner: | JORDAN, DOUGLAS S | | |
| % Ownership: | 100.0000000000% | | |
| Total Value: | $123,682 | | |
| Tax Area: | 312 - APPRAISER-Cpvl Schl Dist, outside Cpvl, improved, greater than 1 acre |
| CF | Conservation Futures | 0.0316035091 | $123,682 | $123,682 | $3.91 | | |
| CEM2 | Cemetery #2 | 0.0095056933 | $123,682 | $123,682 | $1.18 | | |
| FIRE5 | Fire & Rescue Dist #5 C Whidbey GEN | 1.2008080668 | $123,682 | $123,682 | $148.52 | | |
| FIRE5BOND | Fire & Rescue Dist #5 C Whidbey BOND | 0.1400090713 | $123,682 | $123,682 | $17.32 | | |
| HOBOND | Hospital BOND | 0.1910887512 | $123,682 | $123,682 | $23.63 | | |
| HOGEN | Hospital GEN | 0.3902502903 | $123,682 | $123,682 | $48.27 | | |
| CE | County Current Expense | 0.3708482477 | $123,682 | $123,682 | $45.87 | | |
| CR | County Roads | 0.4584763726 | $123,682 | $123,682 | $56.71 | | |
| ISLANDEMS | Hospital GEN (EMS) | 0.5000000000 | $123,682 | $123,682 | $61.84 | | |
| LIB | Library Sno-Isle GEN | 0.3153421757 | $123,682 | $123,682 | $39.00 | | |
| LIBCAP | Library Sno-Isle BOND (Cap Fac Imp Area) | 0.0543427938 | $123,682 | $123,682 | $6.72 | | |
| POCOUP | Port of Coupeville GEN | 0.1093371703 | $123,682 | $123,682 | $13.52 | | |
| POCOUPIDD | Port of Coupeville IDD | 0.3409740022 | $123,682 | $123,682 | $42.17 | | |
| COUPSDTECH | School 204 CP (TECH) | 0.7545480007 | $123,682 | $123,682 | $93.32 | | |
| SCH204MO | School 204 Enrichment | 0.6716186034 | $123,682 | $123,682 | $83.07 | | |
| ST | State School | 1.3035497053 | $123,682 | $123,682 | $161.23 | | |
| ST2 | State School Part 2 | 0.8169543533 | $123,682 | $123,682 | $101.04 | | |
| | Total Tax Rate: | 7.6592568070 | | | | | |
| | | | | Taxes w/Current Exemptions: | $947.32 | | |
| | | | | Taxes w/o Exemptions: | $947.32 | | |
Improvement / Building
| Improvement #1: | MISC | State Code: | Y | 0.0 sqft | Value: | $3,682 |
Sketch
| No sketches available for this property. |
Property Image
Land
| 1 | 17 | AC (01.01-02.00) | 1.9200 | 83635.20 | 0.00 | 0.00 | 1.00 | $120,000 | $0 |
Roll Value History
| 2026 | N/A | N/A | N/A | N/A | N/A |
| 2025 | $3,682 | $120,000 | $0 | $123,682 | $123,682 |
| 2024 | $3,000 | $110,000 | $0 | $113,000 | $113,000 |
| 2023 | $3,000 | $110,000 | $0 | $113,000 | $113,000 |
| 2022 | $3,000 | $80,000 | $0 | $83,000 | $83,000 |
| 2021 | $3,000 | $70,000 | $0 | $73,000 | $73,000 |
| 2020 | $3,000 | $60,000 | $0 | $63,000 | $63,000 |
| 2019 | $3,000 | $60,000 | $0 | $63,000 | $63,000 |
| 2018 | $2,500 | $55,000 | $0 | $57,500 | $57,500 |
| 2017 | $2,500 | $55,000 | $0 | $57,500 | $57,500 |
| 2016 | $2,500 | $70,000 | $0 | $72,500 | $72,500 |
| 2015 | $2,500 | $70,000 | $0 | $72,500 | $72,500 |
| 2014 | $2,500 | $70,000 | $0 | $72,500 | $72,500 |
| 2013 | $2,500 | $95,000 | $0 | $97,500 | $97,500 |
| 2012 | $3,120 | $75,000 | $0 | $78,120 | $78,120 |
| 2011 | $3,120 | $75,000 | $0 | $78,120 | $78,120 |
| 2010 | $3,120 | $75,000 | $0 | $78,120 | $78,120 |
| 2009 | $3,264 | $85,000 | $0 | $88,264 | $88,264 |
| 2008 | $3,408 | $85,000 | $0 | $88,408 | $88,408 |
| 2007 | $3,552 | $85,000 | $0 | $88,552 | $88,552 |
Deed and Sales History
| 1 | 05/22/2017 | QCD | Quit Claim Deed | JORDAN TRUST, DOLORES M | JORDAN, DOUGLAS S | | | $0.00 | 29361 | 4422869 |
| 2 | 12/02/2010 | QCD | Quit Claim Deed | JORDAN, DOLORES M | JORDAN TRUST, DOLORES M | | | $0.00 | 3053 | 4286363 |
| 3 | 09/06/2001 | PRD | Personal Representatives Deed | JORDAN, ROBERT L | JORDAN, DOLORES M | | | $0.00 | 13491 | 20042581 |
| 4 | 12/01/1978 | OTHER | Other - Misc. Documents | Unknown | JORDAN, ROBERT L | | | $10,000.00 | 90329 | 346335 |
Payout Agreement
| No payout information available.. |