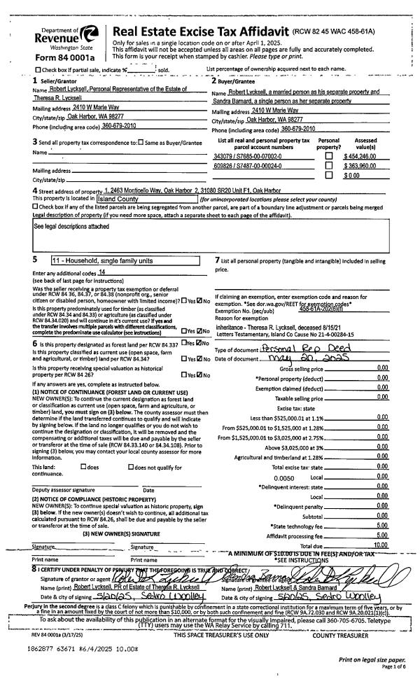
Property
Account |
| Property ID: | 30111 | Abbreviated Legal Description: | 33 KINETH DC: BG INT WLN DC & SLN SEC 35 N2640' E330' TPB E330' N TO SLN RD WLY ALG RD TP N FR TPB S TPB |
| Geographic ID: | R13235-323-2840 | Agent Code: | |
| Type: | Real | | |
| Tax Area: | 312 - APPRAISER-Cpvl Schl Dist, outside Cpvl, improved, greater than 1 acre | Land Use Code | 11 |
| Open Space: | N | DFL | N |
| Historic Property: | N | Remodel Property: | N |
| Multi-Family Redevelopment: | N | | |
| Township: | 32 | Section: | 35 |
| Range: | R1 |
Location |
| Address: | 597 PARKER RD COUPEVILLE, WA 98239 | Mapsco: | |
| Neighborhood: | Cycle 2 | Map ID: | 184 |
| Neighborhood CD: | 2 |
Owner |
| Name: | FOLEY, ARTHUR C | Owner ID: | 256863 |
| Mailing Address: | ELAINA S FOLEY 597 PARKER RD COUPEVILLE, WA 98239-3603 | % Ownership: | 100.0000000000% |
| | | Exemptions: | |
Taxes and Assessment Details
Values
| (+) Improvement Homesite Value: | + | $0 | |
| (+) Improvement Non-Homesite Value: | + | $646,517 | |
| (+) Land Homesite Value: | + | $0 | |
| (+) Land Non-Homesite Value: | + | $348,927 | |
| (+) Curr Use (HS): | + | $0 | $0 |
| (+) Curr Use (NHS): | + | $0 | $0 |
| | | -------------------------- | |
| (=) Market Value: | = | $995,444 | |
| (–) Productivity Loss: | – | $0 | |
| | | -------------------------- | |
| (=) Subtotal: | = | $995,444 | |
| (+) Senior Appraised Value: | + | $0 | |
| (+) Non-Senior Appraised Value: | + | $995,444 | |
| | | -------------------------- | |
| (=) Total Appraised Value: | = | $995,444 | |
| (–) Senior Exemption Loss: | – | $0 | |
| (–) Exemption Loss: | – | $0 | |
| | | -------------------------- | |
| (=) Taxable Value: | = | $995,444 | |
Taxing Jurisdiction
| Owner: | FOLEY, ARTHUR C | | |
| % Ownership: | 100.0000000000% | | |
| Total Value: | $995,444 | | |
| Tax Area: | 312 - APPRAISER-Cpvl Schl Dist, outside Cpvl, improved, greater than 1 acre |
| CF | Conservation Futures | 0.0316035091 | $995,444 | $995,444 | $31.46 | | |
| CEM2 | Cemetery #2 | 0.0095056933 | $995,444 | $995,444 | $9.46 | | |
| FIRE5 | Fire & Rescue Dist #5 C Whidbey GEN | 1.2008080668 | $995,444 | $995,444 | $1,195.34 | | |
| FIRE5BOND | Fire & Rescue Dist #5 C Whidbey BOND | 0.1400090713 | $995,444 | $995,444 | $139.37 | | |
| HOBOND | Hospital BOND | 0.1910887512 | $995,444 | $995,444 | $190.22 | | |
| HOGEN | Hospital GEN | 0.3902502903 | $995,444 | $995,444 | $388.47 | | |
| CE | County Current Expense | 0.3708482477 | $995,444 | $995,444 | $369.16 | | |
| CR | County Roads | 0.4584763726 | $995,444 | $995,444 | $456.39 | | |
| ISLANDEMS | Hospital GEN (EMS) | 0.5000000000 | $995,444 | $995,444 | $497.72 | | |
| LIB | Library Sno-Isle GEN | 0.3153421757 | $995,444 | $995,444 | $313.91 | | |
| LIBCAP | Library Sno-Isle BOND (Cap Fac Imp Area) | 0.0543427938 | $995,444 | $995,444 | $54.10 | | |
| POCOUP | Port of Coupeville GEN | 0.1093371703 | $995,444 | $995,444 | $108.84 | | |
| POCOUPIDD | Port of Coupeville IDD | 0.3409740022 | $995,444 | $995,444 | $339.42 | | |
| COUPSDTECH | School 204 CP (TECH) | 0.7545480007 | $995,444 | $995,444 | $751.11 | | |
| SCH204MO | School 204 Enrichment | 0.6716186034 | $995,444 | $995,444 | $668.56 | | |
| ST | State School | 1.3035497053 | $995,444 | $995,444 | $1,297.61 | | |
| ST2 | State School Part 2 | 0.8169543533 | $995,444 | $995,444 | $813.23 | | |
| | Total Tax Rate: | 7.6592568070 | | | | | |
| | | | | Taxes w/Current Exemptions: | $7,624.37 | | |
| | | | | Taxes w/o Exemptions: | $7,624.37 | | |
Improvement / Building
| Improvement #1: | RESIDENTIAL | State Code: | Y | 2530.0 sqft | Value: | $513,138 |
| Bathrooms: | 3 | Bedrooms: | 3 | | Ceiling: | DRYWALL PAINTED | Exterior Wall/Cover: | CEMENT FIBER | | Floor Covering: | HARDWOOD/CARP 60-40 | Floor Structure: | WOOD W/SUBFLOOR | | Foundation: | CONCRETE | Heating: | FHA ELECTRIC | | Interior Finish: | DRYWALL PAINT | Plumbing Fixture Cnt: | 13 | | Roof Slope: | 6" IN 12" | Roof Structure/Cover: | CJ ASPHALT |
|
| | Type | Description | Class CD | Sub Class CD | Year Built | Area |
| | BAS | BASE/MAIN FLOOR | 4 | 0 | 2015 | 2530.0 |
| | AGR | ATTACHED GARAGE | 4 | 0 | 2015 | 870.0 |
| | OP4 | OPEN PORCH W/CEILING-ROOF | 4 | 0 | 2015 | 60.0 |
| Improvement #2: | RESIDENTIAL | State Code: | Y | 640.0 sqft | Value: | $133,379 |
| Bathrooms: | 1 | Bedrooms: | 1 | | Ceiling: | DRYWALL PAINTED | Exterior Wall/Cover: | CEMENT FIBER | | Floor Covering: | CARPET/VINYL 60-40 | Floor Structure: | WOOD W/SUBFLOOR | | Foundation: | CONCRETE | Heating: | WALL HEAT ELECTRIC | | Interior Finish: | DRYWALL PAINT | Plumbing Fixture Cnt: | 6 | | Roof Slope: | 5" IN 12" | Roof Structure/Cover: | CJ ASPHALT |
|
| | Type | Description | Class CD | Sub Class CD | Year Built | Area |
| | BAS | BASE/MAIN FLOOR | 3 | 0 | 2015 | 640.0 |
| | DGR | DETACHED GARAGE | 3 | 0 | 2015 | 0.0 |
Sketch
Property Image
Land
| 1 | 91 | UNDEVELOPED LAND-METES AND BOUNDS | 8.3000 | 361548.00 | 0.00 | 0.00 | 1.00 | $128,927 | $0 |
| 2 | HS | HOMESITE | 1.0000 | 43560.00 | 0.00 | 0.00 | 1.00 | $220,000 | $0 |
Roll Value History
| 2026 | N/A | N/A | N/A | N/A | N/A |
| 2025 | $646,517 | $348,927 | $0 | $995,444 | $995,444 |
| 2024 | $646,517 | $300,000 | $0 | $946,517 | $946,517 |
| 2023 | $651,500 | $280,000 | $0 | $931,500 | $931,500 |
| 2022 | $594,768 | $260,000 | $0 | $854,768 | $854,768 |
| 2021 | $521,399 | $180,000 | $0 | $701,399 | $701,399 |
| 2020 | $505,882 | $160,000 | $0 | $665,882 | $665,882 |
| 2019 | $377,718 | $230,000 | $0 | $607,718 | $607,718 |
| 2018 | $369,797 | $220,000 | $0 | $589,797 | $589,797 |
| 2017 | $371,713 | $200,000 | $0 | $571,713 | $571,713 |
| 2016 | $354,605 | $150,000 | $0 | $504,605 | $504,605 |
| 2015 | $139,754 | $136,500 | $0 | $276,254 | $276,254 |
| 2014 | $0 | $136,500 | $0 | $136,500 | $136,500 |
| 2013 | $4,000 | $136,500 | $0 | $140,500 | $140,500 |
| 2012 | $0 | $136,500 | $0 | $136,500 | $136,500 |
| 2011 | $0 | $136,500 | $0 | $136,500 | $136,500 |
| 2010 | $0 | $136,500 | $0 | $136,500 | $136,500 |
| 2009 | $0 | $181,800 | $0 | $181,800 | $181,800 |
| 2008 | $0 | $200,400 | $0 | $200,400 | $200,400 |
| 2007 | $0 | $182,500 | $0 | $182,500 | $182,500 |
Deed and Sales History
| 1 | 02/08/2012 | WD | Warranty Deed | WORTMAN, RENEE LE CLAIRE | FOLEY, ARTHUR C | | | $100,000.00 | 6861 | 4309837 |
| 2 | 02/14/2003 | WD | Warranty Deed | LIM, RALPH A | WORTMAN, RENEE LE CLAIRE | | | $99,000.00 | 30704 | 4048844 |
| 3 | 12/01/1990 | QCD | Quit Claim Deed | LIM, RALPH A | LIM, RALPH A | | | $0.00 | 6656 | 90023279 |
| 4 | 11/01/1989 | WD | Warranty Deed | LIM, RALPH A | LIM, RALPH A | | | $30,000.00 | 95323 | 89017114 |
| 5 | 11/01/1989 | WD | Warranty Deed | MOORE, STEPHEN S | LIM, RALPH A | | | $0.00 | 87 | 90000238 |
| 6 | 01/01/1900 | OTHER | Other - Misc. Documents | Unknown | MOORE, STEPHEN S | | | $0.00 | 0 | 0 |
Payout Agreement
| No payout information available.. |