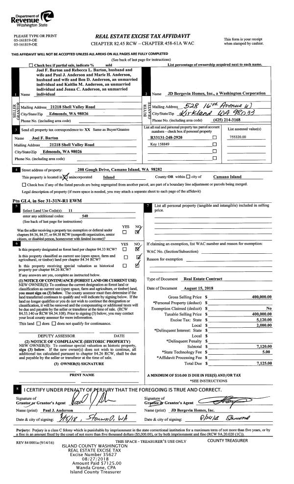
Property
Account |
| Property ID: | 301140 | Abbreviated Legal Description: | LAWANA BCH LOT 22 BLK B |
| Geographic ID: | S7350-00-0B022-0 | Agent Code: | |
| Type: | Real | | |
| Tax Area: | 312 - APPRAISER-Cpvl Schl Dist, outside Cpvl, improved, greater than 1 acre | Land Use Code | 11 |
| Open Space: | N | DFL | N |
| Historic Property: | N | Remodel Property: | N |
| Multi-Family Redevelopment: | N | | |
| Township: | | Section: | |
| Range: | |
Location |
| Address: | 124 HARRINGTON RD COUPEVILLE, WA 98239 | Mapsco: | |
| Neighborhood: | Cycle 2 | Map ID: | 461 |
| Neighborhood CD: | 2 |
Owner |
| Name: | PEREIRA, MICHAEL | Owner ID: | 302800 |
| Mailing Address: | SUZANNA PEREIRA 124 HARRINGTON RD COUPEVILLE, WA 98239 | % Ownership: | 100.0000000000% |
| | | Exemptions: | |
Taxes and Assessment Details
Values
| (+) Improvement Homesite Value: | + | $0 | |
| (+) Improvement Non-Homesite Value: | + | $230,587 | |
| (+) Land Homesite Value: | + | $0 | |
| (+) Land Non-Homesite Value: | + | $280,000 | |
| (+) Curr Use (HS): | + | $0 | $0 |
| (+) Curr Use (NHS): | + | $0 | $0 |
| | | -------------------------- | |
| (=) Market Value: | = | $510,587 | |
| (–) Productivity Loss: | – | $0 | |
| | | -------------------------- | |
| (=) Subtotal: | = | $510,587 | |
| (+) Senior Appraised Value: | + | $0 | |
| (+) Non-Senior Appraised Value: | + | $510,587 | |
| | | -------------------------- | |
| (=) Total Appraised Value: | = | $510,587 | |
| (–) Senior Exemption Loss: | – | $0 | |
| (–) Exemption Loss: | – | $0 | |
| | | -------------------------- | |
| (=) Taxable Value: | = | $510,587 | |
Taxing Jurisdiction
| Owner: | PEREIRA, MICHAEL | | |
| % Ownership: | 100.0000000000% | | |
| Total Value: | $510,587 | | |
| Tax Area: | 312 - APPRAISER-Cpvl Schl Dist, outside Cpvl, improved, greater than 1 acre |
| CF | Conservation Futures | 0.0316035091 | $510,587 | $510,587 | $16.14 | | |
| CEM2 | Cemetery #2 | 0.0095056933 | $510,587 | $510,587 | $4.85 | | |
| FIRE5 | Fire & Rescue Dist #5 C Whidbey GEN | 1.2008080668 | $510,587 | $510,587 | $613.12 | | |
| FIRE5BOND | Fire & Rescue Dist #5 C Whidbey BOND | 0.1400090713 | $510,587 | $510,587 | $71.49 | | |
| HOBOND | Hospital BOND | 0.1910887512 | $510,587 | $510,587 | $97.57 | | |
| HOGEN | Hospital GEN | 0.3902502903 | $510,587 | $510,587 | $199.26 | | |
| CE | County Current Expense | 0.3708482477 | $510,587 | $510,587 | $189.35 | | |
| CR | County Roads | 0.4584763726 | $510,587 | $510,587 | $234.09 | | |
| ISLANDEMS | Hospital GEN (EMS) | 0.5000000000 | $510,587 | $510,587 | $255.29 | | |
| LIB | Library Sno-Isle GEN | 0.3153421757 | $510,587 | $510,587 | $161.01 | | |
| LIBCAP | Library Sno-Isle BOND (Cap Fac Imp Area) | 0.0543427938 | $510,587 | $510,587 | $27.75 | | |
| POCOUP | Port of Coupeville GEN | 0.1093371703 | $510,587 | $510,587 | $55.83 | | |
| POCOUPIDD | Port of Coupeville IDD | 0.3409740022 | $510,587 | $510,587 | $174.10 | | |
| COUPSDTECH | School 204 CP (TECH) | 0.7545480007 | $510,587 | $510,587 | $385.26 | | |
| SCH204MO | School 204 Enrichment | 0.6716186034 | $510,587 | $510,587 | $342.92 | | |
| ST | State School | 1.3035497053 | $510,587 | $510,587 | $665.58 | | |
| ST2 | State School Part 2 | 0.8169543533 | $510,587 | $510,587 | $417.13 | | |
| | Total Tax Rate: | 7.6592568070 | | | | | |
| | | | | Taxes w/Current Exemptions: | $3,910.74 | | |
| | | | | Taxes w/o Exemptions: | $3,910.74 | | |
Improvement / Building
| Improvement #1: | MANUFACTURED HOME | State Code: | Y | 1512.0 sqft | Value: | $230,587 |
| Bathrooms: | 1 | Bedrooms: | 2 | | Ceiling: | PLASTER PAINTED | Cooling: | EVAP NO DUCT | | Exterior Wall/Cover: | VINYL | Floor Covering: | CARPET 100% | | Floor Structure: | SLAB ON GRADE | Foundation: | SLAB | | Heating: | FHA ELECTRIC | Interior Finish: | PLASTER | | Plumbing Fixture Cnt: | 1 | Roof Slope: | FLAT | | Roof Structure/Cover: | CJ ALUMINIUM HEAVY |   |   |
|
| | Type | Description | Class CD | Sub Class CD | Year Built | Area |
| | BAS | BASE/MAIN FLOOR | 4 | 0 | 2021 | 1512.0 |
| | OP2 | OPEN PORCH W/STEPS | 4 | 0 | 2021 | 33.0 |
| | oPOL | POLE BARN | 3 | 0 | 2023 | 864.0 |
| | OP2 | OPEN PORCH W/STEPS | 4 | 0 | 2021 | 192.0 |
| | oCB2 | CABIN FIN | 3 | 0 | 2024 | 200.0 |
| | OP2 | OPEN PORCH W/STEPS | 3 | 0 | 2024 | 160.0 |
Sketch
| No sketches available for this property. |
Property Image
Land
| 1 | 17 | AC (01.01-02.00) | 1.9900 | 86684.40 | 0.00 | 0.00 | 1.00 | $280,000 | $0 |
Roll Value History
| 2026 | N/A | N/A | N/A | N/A | N/A |
| 2025 | $230,587 | $280,000 | $0 | $510,587 | $510,587 |
| 2024 | $191,060 | $270,000 | $0 | $461,060 | $461,060 |
| 2023 | $167,851 | $260,000 | $0 | $427,851 | $427,851 |
| 2022 | $130,049 | $240,000 | $0 | $370,049 | $370,049 |
| 2021 | $20,000 | $70,000 | $0 | $90,000 | $90,000 |
| 2020 | $0 | $60,000 | $0 | $60,000 | $60,000 |
| 2019 | $0 | $60,000 | $0 | $60,000 | $60,000 |
| 2018 | $0 | $55,000 | $0 | $55,000 | $55,000 |
| 2017 | $0 | $55,000 | $0 | $55,000 | $55,000 |
| 2016 | $0 | $70,000 | $0 | $70,000 | $70,000 |
| 2015 | $0 | $70,000 | $0 | $70,000 | $70,000 |
| 2014 | $0 | $70,000 | $0 | $70,000 | $70,000 |
| 2013 | $0 | $70,000 | $0 | $70,000 | $70,000 |
| 2012 | $0 | $75,000 | $0 | $75,000 | $75,000 |
| 2011 | $0 | $75,000 | $0 | $75,000 | $75,000 |
| 2010 | $0 | $75,000 | $0 | $75,000 | $75,000 |
| 2009 | $0 | $125,000 | $0 | $125,000 | $125,000 |
| 2008 | $0 | $125,000 | $0 | $125,000 | $125,000 |
| 2007 | $0 | $112,500 | $0 | $112,500 | $112,500 |
Deed and Sales History
| 1 | 01/18/2022 | WD | Warranty Deed | POPE TTEE, D JEAN | PEREIRA, MICHAEL | | | $515,000.00 | 51799 | 4538717 |
| 2 | 08/31/2018 | WD | Warranty Deed | RUZIC, DANIEL H | POPE TTEE, D JEAN | | | $75,000.00 | 35805 | 4451331 |
| 3 | 03/27/2006 | WD | Warranty Deed | KURTZWEIL, JONATHON P | RUZIC, DANIEL H | | | $120,000.00 | 61452 | 4166648 |
| 4 | 02/08/2005 | WD | Warranty Deed | OLSEN, MICHAEL F | KURTZWEIL, JONATHON P | | | $54,900.00 | 50643 | 4126317 |
| 5 | 01/01/1995 | WD | Warranty Deed | EHRLICH, ROBERT D | OLSEN, MICHAEL F | | | $25,000.00 | 50395 | 95001860 |
| 6 | 04/01/1990 | WD | Warranty Deed | DESMOND, ROBERT F | EHRLICH, ROBERT D | | | $19,500.00 | 2331 | 90007612 |
| 7 | 01/01/1900 | OTHER | Other - Misc. Documents | Unknown | DESMOND, ROBERT F | | | $0.00 | 0 | 0 |
Payout Agreement
| No payout information available.. |