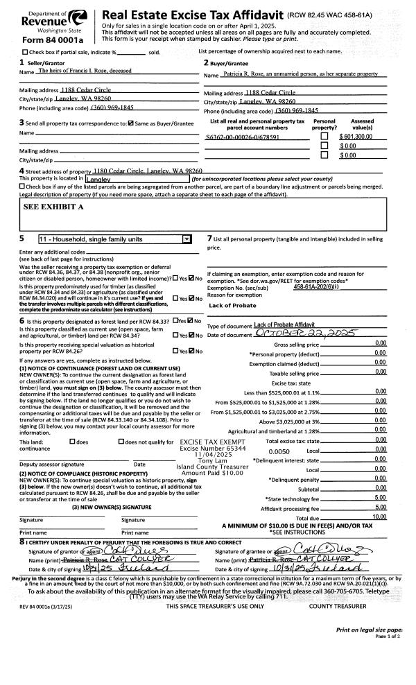
Property
Account |
| Property ID: | 301505 | Abbreviated Legal Description: | LEDGEWD BCH LOT 24 BLK 2 EX 10' SQ IN NECR ENCROACHMENT EZ AF#93013154 |
| Geographic ID: | S7355-00-02024-0 | Agent Code: | |
| Type: | Real | | |
| Tax Area: | 370 - APPRAISER-Cpvl Schl Dist, Special Dist, improved & less than 1 acre | Land Use Code | 11 |
| Open Space: | N | DFL | N |
| Historic Property: | N | Remodel Property: | N |
| Multi-Family Redevelopment: | N | | |
| Township: | | Section: | |
| Range: | |
Location |
| Address: | 1972 FIRCREST AVE COUPEVILLE, WA 98239 | Mapsco: | |
| Neighborhood: | Cycle 2 | Map ID: | 520 |
| Neighborhood CD: | 2 |
Owner |
| Name: | VAIL JR, ROGER A | Owner ID: | 291293 |
| Mailing Address: | 1972 FIRCREST AVE COUPEVILLE, WA 98239 | % Ownership: | 100.0000000000% |
| | | Exemptions: | |
Taxes and Assessment Details
Values
| (+) Improvement Homesite Value: | + | $0 | |
| (+) Improvement Non-Homesite Value: | + | $228,369 | |
| (+) Land Homesite Value: | + | $0 | |
| (+) Land Non-Homesite Value: | + | $320,000 | |
| (+) Curr Use (HS): | + | $0 | $0 |
| (+) Curr Use (NHS): | + | $0 | $0 |
| | | -------------------------- | |
| (=) Market Value: | = | $548,369 | |
| (–) Productivity Loss: | – | $0 | |
| | | -------------------------- | |
| (=) Subtotal: | = | $548,369 | |
| (+) Senior Appraised Value: | + | $0 | |
| (+) Non-Senior Appraised Value: | + | $548,369 | |
| | | -------------------------- | |
| (=) Total Appraised Value: | = | $548,369 | |
| (–) Senior Exemption Loss: | – | $0 | |
| (–) Exemption Loss: | – | $0 | |
| | | -------------------------- | |
| (=) Taxable Value: | = | $548,369 | |
Taxing Jurisdiction
| Owner: | VAIL JR, ROGER A | | |
| % Ownership: | 100.0000000000% | | |
| Total Value: | $548,369 | | |
| Tax Area: | 370 - APPRAISER-Cpvl Schl Dist, Special Dist, improved & less than 1 acre |
| CF | Conservation Futures | 0.0316035091 | $548,369 | $548,369 | $17.33 | | |
| CEM2 | Cemetery #2 | 0.0095056933 | $548,369 | $548,369 | $5.21 | | |
| FIRE5 | Fire & Rescue Dist #5 C Whidbey GEN | 1.2008080668 | $548,369 | $548,369 | $658.49 | | |
| FIRE5BOND | Fire & Rescue Dist #5 C Whidbey BOND | 0.1400090713 | $548,369 | $548,369 | $76.78 | | |
| HOBOND | Hospital BOND | 0.1910887512 | $548,369 | $548,369 | $104.79 | | |
| HOGEN | Hospital GEN | 0.3902502903 | $548,369 | $548,369 | $214.00 | | |
| CE | County Current Expense | 0.3708482477 | $548,369 | $548,369 | $203.36 | | |
| CR | County Roads | 0.4584763726 | $548,369 | $548,369 | $251.41 | | |
| ISLANDEMS | Hospital GEN (EMS) | 0.5000000000 | $548,369 | $548,369 | $274.18 | | |
| LIB | Library Sno-Isle GEN | 0.3153421757 | $548,369 | $548,369 | $172.92 | | |
| LIBCAP | Library Sno-Isle BOND (Cap Fac Imp Area) | 0.0543427938 | $548,369 | $548,369 | $29.80 | | |
| POCOUP | Port of Coupeville GEN | 0.1093371703 | $548,369 | $548,369 | $59.96 | | |
| POCOUPIDD | Port of Coupeville IDD | 0.3409740022 | $548,369 | $548,369 | $186.98 | | |
| COUPSDTECH | School 204 CP (TECH) | 0.7545480007 | $548,369 | $548,369 | $413.77 | | |
| SCH204MO | School 204 Enrichment | 0.6716186034 | $548,369 | $548,369 | $368.29 | | |
| ST | State School | 1.3035497053 | $548,369 | $548,369 | $714.83 | | |
| ST2 | State School Part 2 | 0.8169543533 | $548,369 | $548,369 | $447.99 | | |
| | Total Tax Rate: | 7.6592568070 | | | | | |
| | | | | Taxes w/Current Exemptions: | $4,200.09 | | |
| | | | | Taxes w/o Exemptions: | $4,200.09 | | |
Improvement / Building
| Improvement #1: | RESIDENTIAL | State Code: | Y | 1549.0 sqft | Value: | $228,369 |
| Bathrooms: | 1.75 | Bedrooms: | 2 | | Ceiling: | BEAM PAINTED | Cooling: | HEAT PUMP/CONV/V | | Exterior Wall/Cover: | WOOD SIDING | Floor Covering: | COLORED CONCRETE | | Floor Structure: | SLAB ON GRADE | Foundation: | SLAB | | Interior Finish: | DRYWALL PAINT | Plumbing Fixture Cnt: | 6 | | Roof Slope: | 3" IN 12" | Roof Structure/Cover: | CJ ALUMINIUM HEAVY |
|
| | Type | Description | Class CD | Sub Class CD | Year Built | Area |
| | BAS | BASE/MAIN FLOOR | 3 | 0 | 1957 | 1549.0 |
| | DGR | DETACHED GARAGE | 3 | 0 | 1957 | 480.0 |
| | oCB1 | CABIN UNFI | 3 | 0 | 1957 | 126.0 |
Sketch
Property Image
Land
| 1 | 15 | SQ (12001-21780) | 0.3700 | 16117.20 | 0.00 | 0.00 | 1.00 | $320,000 | $0 |
Roll Value History
| 2026 | N/A | N/A | N/A | N/A | N/A |
| 2025 | $228,369 | $320,000 | $0 | $548,369 | $548,369 |
| 2024 | $232,249 | $300,000 | $0 | $532,249 | $532,249 |
| 2023 | $235,463 | $280,000 | $0 | $515,463 | $515,463 |
| 2022 | $216,120 | $250,000 | $0 | $466,120 | $466,120 |
| 2021 | $190,463 | $200,000 | $0 | $390,463 | $390,463 |
| 2020 | $186,299 | $180,000 | $0 | $366,299 | $366,299 |
| 2019 | $138,205 | $220,000 | $0 | $358,205 | $358,205 |
| 2018 | $132,921 | $200,000 | $0 | $332,921 | $332,921 |
| 2017 | $133,825 | $200,000 | $0 | $333,825 | $333,825 |
| 2016 | $135,634 | $200,000 | $0 | $335,634 | $335,634 |
| 2015 | $137,441 | $200,000 | $0 | $337,441 | $337,441 |
| 2014 | $139,250 | $150,000 | $0 | $289,250 | $289,250 |
| 2013 | $141,058 | $150,000 | $0 | $291,058 | $291,058 |
| 2012 | $156,950 | $170,000 | $0 | $326,950 | $326,950 |
| 2011 | $158,926 | $200,000 | $0 | $358,926 | $358,926 |
| 2010 | $167,068 | $200,000 | $0 | $367,068 | $367,068 |
| 2009 | $174,103 | $200,000 | $0 | $374,103 | $374,103 |
| 2008 | $176,103 | $200,000 | $0 | $376,103 | $376,103 |
| 2007 | $178,103 | $200,000 | $0 | $378,103 | $378,103 |
Deed and Sales History
| 1 | 08/07/2019 | WD | Warranty Deed | MURPHY TRUSTEE 1/2 INT, MARY BRIDGET | VAIL JR, ROGER A | | | $297,500.00 | 39801 | 4469055 |
|   | |
| 2 | 10/18/2000 | PRD | Personal Representatives Deed | BATSON, GERALD W | MURPHY TR, MARY BRIDGET | | | $0.00 | 4017 | 20018437 |
| 3 | 04/01/1990 | WD | Warranty Deed | MURPHY, GERALD P | BATSON, GERALD W | | | $0.00 | 1960 | 90006334 |
| 4 | 04/01/1990 | WD | Warranty Deed | BATSON, GERALD W | MURPHY, GERALD P | | | $140,000.00 | 2882 | 0 |
| 5 | 09/01/1987 | WD | Warranty Deed | GILL, THOMAS H | BATSON, GERALD W | | | $80,000.00 | 72909 | 87013000 |
| 6 | 01/01/1900 | OTHER | Other - Misc. Documents | Unknown | GILL, THOMAS H | | | $0.00 | 0 | 0 |
Payout Agreement
| No payout information available.. |