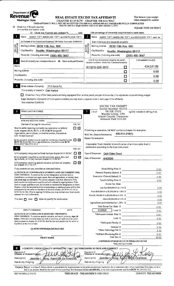
Property
Account |
| Property ID: | 3016 | Abbreviated Legal Description: | 19 - S/2 S/2 NW SE E OF HWY EX TRDESC 99D6 &EX S40' & EZ |
| Geographic ID: | R13103-150-3420 | Agent Code: | |
| Type: | Real | | |
| Tax Area: | 312 - APPRAISER-Cpvl Schl Dist, outside Cpvl, improved, greater than 1 acre | Land Use Code | 11 |
| Open Space: | N | DFL | N |
| Historic Property: | N | Remodel Property: | N |
| Multi-Family Redevelopment: | N | | |
| Township: | 31 | Section: | 03 |
| Range: | R1 |
Location |
| Address: | 279 FORT CASEY RD COUPEVILLE, WA 98239 | Mapsco: | |
| Neighborhood: | Cycle 2 | Map ID: | 26 |
| Neighborhood CD: | 2 |
Owner |
| Name: | SHAMBAUGH, KEVIN | Owner ID: | 317203 |
| Mailing Address: | MARANATHA SHAMBAUGH 10201 1ST DR SE, UNIT B EVERETT, WA 98208 | % Ownership: | 100.0000000000% |
| | | Exemptions: | |
Taxes and Assessment Details
Values
| (+) Improvement Homesite Value: | + | $0 | |
| (+) Improvement Non-Homesite Value: | + | $347,503 | |
| (+) Land Homesite Value: | + | $0 | |
| (+) Land Non-Homesite Value: | + | $346,661 | |
| (+) Curr Use (HS): | + | $0 | $0 |
| (+) Curr Use (NHS): | + | $0 | $0 |
| | | -------------------------- | |
| (=) Market Value: | = | $694,164 | |
| (–) Productivity Loss: | – | $0 | |
| | | -------------------------- | |
| (=) Subtotal: | = | $694,164 | |
| (+) Senior Appraised Value: | + | $0 | |
| (+) Non-Senior Appraised Value: | + | $694,164 | |
| | | -------------------------- | |
| (=) Total Appraised Value: | = | $694,164 | |
| (–) Senior Exemption Loss: | – | $0 | |
| (–) Exemption Loss: | – | $0 | |
| | | -------------------------- | |
| (=) Taxable Value: | = | $694,164 | |
Taxing Jurisdiction
| Owner: | SHAMBAUGH, KEVIN | | |
| % Ownership: | 100.0000000000% | | |
| Total Value: | $694,164 | | |
| Tax Area: | 312 - APPRAISER-Cpvl Schl Dist, outside Cpvl, improved, greater than 1 acre |
| CF | Conservation Futures | 0.0316035091 | $694,164 | $694,164 | $21.94 | | |
| CEM2 | Cemetery #2 | 0.0095056933 | $694,164 | $694,164 | $6.60 | | |
| FIRE5 | Fire & Rescue Dist #5 C Whidbey GEN | 1.2008080668 | $694,164 | $694,164 | $833.56 | | |
| FIRE5BOND | Fire & Rescue Dist #5 C Whidbey BOND | 0.1400090713 | $694,164 | $694,164 | $97.19 | | |
| HOBOND | Hospital BOND | 0.1910887512 | $694,164 | $694,164 | $132.65 | | |
| HOGEN | Hospital GEN | 0.3902502903 | $694,164 | $694,164 | $270.90 | | |
| CE | County Current Expense | 0.3708482477 | $694,164 | $694,164 | $257.43 | | |
| CR | County Roads | 0.4584763726 | $694,164 | $694,164 | $318.26 | | |
| ISLANDEMS | Hospital GEN (EMS) | 0.5000000000 | $694,164 | $694,164 | $347.08 | | |
| LIB | Library Sno-Isle GEN | 0.3153421757 | $694,164 | $694,164 | $218.90 | | |
| LIBCAP | Library Sno-Isle BOND (Cap Fac Imp Area) | 0.0543427938 | $694,164 | $694,164 | $37.72 | | |
| POCOUP | Port of Coupeville GEN | 0.1093371703 | $694,164 | $694,164 | $75.90 | | |
| POCOUPIDD | Port of Coupeville IDD | 0.3409740022 | $694,164 | $694,164 | $236.69 | | |
| COUPSDTECH | School 204 CP (TECH) | 0.7545480007 | $694,164 | $694,164 | $523.78 | | |
| SCH204MO | School 204 Enrichment | 0.6716186034 | $694,164 | $694,164 | $466.21 | | |
| ST | State School | 1.3035497053 | $694,164 | $694,164 | $904.88 | | |
| ST2 | State School Part 2 | 0.8169543533 | $694,164 | $694,164 | $567.10 | | |
| | Total Tax Rate: | 7.6592568070 | | | | | |
| | | | | Taxes w/Current Exemptions: | $5,316.79 | | |
| | | | | Taxes w/o Exemptions: | $5,316.79 | | |
Improvement / Building
| Improvement #1: | RESIDENTIAL | State Code: | Y | 1912.0 sqft | Value: | $347,503 |
| Bathrooms: | 2 | Bedrooms: | 3 | | Ceiling: | DRYWALL PAINTED | Cooling: | HEAT PUMP/CONV/V | | Exterior Wall/Cover: | WOOD SIDING | Floor Covering: | HARDWOOD/CARP 60-40 | | Floor Structure: | WOOD W/SUBFLOOR | Foundation: | CONCRETE BLOCKS | | Interior Finish: | DRYWALL PAINT | Plumbing Fixture Cnt: | 9 | | Roof Slope: | 5" IN 12" | Roof Structure/Cover: | CJ ASPHALT |
|
| | Type | Description | Class CD | Sub Class CD | Year Built | Area |
| | BAS | BASE/MAIN FLOOR | 3 | 0 | 1959 | 1912.0 |
| | DGR | DETACHED GARAGE | 3 | 0 | 1959 | 1440.0 |
| | CPD | OPEN CARPORT DIRT FLOOR | 3 | 0 | 1959 | 480.0 |
Sketch
Property Image
Land
| 1 | HS | HOMESITE | 1.0000 | 43560.00 | 0.00 | 0.00 | 1.00 | $220,000 | $0 |
| 2 | 91 | UNDEVELOPED LAND-METES AND BOUNDS | 7.1800 | 312760.80 | 0.00 | 0.00 | 1.00 | $126,661 | $0 |
Roll Value History
| 2026 | N/A | N/A | N/A | N/A | N/A |
| 2025 | $347,503 | $346,661 | $0 | $694,164 | $694,164 |
| 2024 | $324,025 | $300,000 | $0 | $624,025 | $624,025 |
| 2023 | $328,390 | $280,000 | $0 | $608,390 | $608,390 |
| 2022 | $301,309 | $260,000 | $0 | $561,309 | $561,309 |
| 2021 | $265,447 | $170,000 | $0 | $435,447 | $435,447 |
| 2020 | $259,335 | $160,000 | $0 | $419,335 | $419,335 |
| 2019 | $196,989 | $230,000 | $0 | $426,989 | $426,989 |
| 2018 | $124,176 | $200,000 | $0 | $324,176 | $166,376 |
| 2017 | $125,145 | $200,000 | $0 | $325,145 | $166,376 |
| 2016 | $127,084 | $180,000 | $0 | $307,084 | $158,601 |
| 2015 | $129,022 | $204,500 | $0 | $333,522 | $168,125 |
| 2014 | $130,961 | $204,500 | $0 | $335,461 | $168,125 |
| 2013 | $132,899 | $198,774 | $135,000 | $267,899 | $41,930 |
| 2012 | $134,838 | $198,774 | $135,000 | $269,838 | $41,930 |
| 2011 | $136,776 | $220,860 | $135,000 | $271,776 | $41,930 |
| 2010 | $148,161 | $220,860 | $135,000 | $283,161 | $41,930 |
| 2009 | $154,329 | $245,400 | $150,000 | $304,329 | $41,930 |
| 2008 | $156,818 | $241,310 | $15,300 | $172,118 | $41,930 |
| 2007 | $159,308 | $241,310 | $15,300 | $174,608 | $41,930 |
Deed and Sales History
| 1 | 06/27/2025 | WD | Warranty Deed | BARRETT, COLLIN C | SHAMBAUGH, KEVIN | | | $740,000.00 | 64030 | 4587724 |
| 2 | 11/20/2019 | PRD | Personal Representatives Deed | WEIR, VIVIAN I | BARRETT, COLLIN C | | | $0.00 | 41193 | 4476063 |
| 3 | 06/01/1997 | 5 | DNU - Marriage License/Name Change | BARRETT, VIVIAN I | WEIR, VIVIAN I | | | $0.00 | 67408 | 0 |
| 4 | 02/01/1983 | OTHER | Other - Misc. Documents | BARRETT, VIVIAN I | BARRETT, VIVIAN I | | | $0.00 | 59845 | 0 |
| 5 | 02/01/1978 | OTHER | Other - Misc. Documents | BARRETT, LAWRENCE E | BARRETT, VIVIAN I | | | $0.00 | 59710 | 0 |
| 6 | 01/01/1900 | OTHER | Other - Misc. Documents | Unknown | BARRETT, LAWRENCE E | | | $0.00 | 0 | 0 |
Payout Agreement
| No payout information available.. |