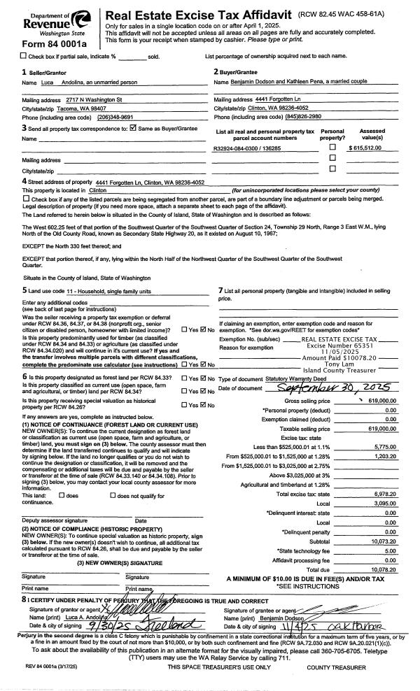
Property
Account |
| Property ID: | 301603 | Abbreviated Legal Description: | LEDGEWD BCH LOT 36 BLK 2 |
| Geographic ID: | S7355-00-02036-0 | Agent Code: | |
| Type: | Real | | |
| Tax Area: | 370 - APPRAISER-Cpvl Schl Dist, Special Dist, improved & less than 1 acre | Land Use Code | 11 |
| Open Space: | N | DFL | N |
| Historic Property: | N | Remodel Property: | N |
| Multi-Family Redevelopment: | N | | |
| Township: | | Section: | |
| Range: | |
Location |
| Address: | 1910 FIRCREST AVE COUPEVILLE, WA 98239 | Mapsco: | |
| Neighborhood: | Cycle 2 | Map ID: | 520 |
| Neighborhood CD: | 2 |
Owner |
| Name: | CANALE, STEVEN | Owner ID: | 269210 |
| Mailing Address: | SHAW L CANALE 1910 FIRCREST AVE COUPEVILLE, WA 98239 | % Ownership: | 100.0000000000% |
| | | Exemptions: | |
Taxes and Assessment Details
Values
| (+) Improvement Homesite Value: | + | $0 | |
| (+) Improvement Non-Homesite Value: | + | $281,409 | |
| (+) Land Homesite Value: | + | $0 | |
| (+) Land Non-Homesite Value: | + | $320,000 | |
| (+) Curr Use (HS): | + | $0 | $0 |
| (+) Curr Use (NHS): | + | $0 | $0 |
| | | -------------------------- | |
| (=) Market Value: | = | $601,409 | |
| (–) Productivity Loss: | – | $0 | |
| | | -------------------------- | |
| (=) Subtotal: | = | $601,409 | |
| (+) Senior Appraised Value: | + | $0 | |
| (+) Non-Senior Appraised Value: | + | $601,409 | |
| | | -------------------------- | |
| (=) Total Appraised Value: | = | $601,409 | |
| (–) Senior Exemption Loss: | – | $0 | |
| (–) Exemption Loss: | – | $0 | |
| | | -------------------------- | |
| (=) Taxable Value: | = | $601,409 | |
Taxing Jurisdiction
| Owner: | CANALE, STEVEN | | |
| % Ownership: | 100.0000000000% | | |
| Total Value: | $601,409 | | |
| Tax Area: | 370 - APPRAISER-Cpvl Schl Dist, Special Dist, improved & less than 1 acre |
| CF | Conservation Futures | 0.0316035091 | $601,409 | $601,409 | $19.01 | | |
| CEM2 | Cemetery #2 | 0.0095056933 | $601,409 | $601,409 | $5.72 | | |
| FIRE5 | Fire & Rescue Dist #5 C Whidbey GEN | 1.2008080668 | $601,409 | $601,409 | $722.18 | | |
| FIRE5BOND | Fire & Rescue Dist #5 C Whidbey BOND | 0.1400090713 | $601,409 | $601,409 | $84.20 | | |
| HOBOND | Hospital BOND | 0.1910887512 | $601,409 | $601,409 | $114.92 | | |
| HOGEN | Hospital GEN | 0.3902502903 | $601,409 | $601,409 | $234.70 | | |
| CE | County Current Expense | 0.3708482477 | $601,409 | $601,409 | $223.03 | | |
| CR | County Roads | 0.4584763726 | $601,409 | $601,409 | $275.73 | | |
| ISLANDEMS | Hospital GEN (EMS) | 0.5000000000 | $601,409 | $601,409 | $300.70 | | |
| LIB | Library Sno-Isle GEN | 0.3153421757 | $601,409 | $601,409 | $189.65 | | |
| LIBCAP | Library Sno-Isle BOND (Cap Fac Imp Area) | 0.0543427938 | $601,409 | $601,409 | $32.68 | | |
| POCOUP | Port of Coupeville GEN | 0.1093371703 | $601,409 | $601,409 | $65.76 | | |
| POCOUPIDD | Port of Coupeville IDD | 0.3409740022 | $601,409 | $601,409 | $205.06 | | |
| COUPSDTECH | School 204 CP (TECH) | 0.7545480007 | $601,409 | $601,409 | $453.79 | | |
| SCH204MO | School 204 Enrichment | 0.6716186034 | $601,409 | $601,409 | $403.92 | | |
| ST | State School | 1.3035497053 | $601,409 | $601,409 | $783.97 | | |
| ST2 | State School Part 2 | 0.8169543533 | $601,409 | $601,409 | $491.32 | | |
| | Total Tax Rate: | 7.6592568070 | | | | | |
| | | | | Taxes w/Current Exemptions: | $4,606.34 | | |
| | | | | Taxes w/o Exemptions: | $4,606.34 | | |
Improvement / Building
| Improvement #1: | RESIDENTIAL | State Code: | Y | 2172.0 sqft | Value: | $281,409 |
| Bathrooms: | 2 | Bedrooms: | 3 | | Ceiling: | DRY WALL SPRAYED | Cooling: | HEAT PUMP/CONV/V | | Exterior Wall/Cover: | PLY/HARDBOARD T-111 | Floor Covering: | CARPET/VINYL 20-80 | | Floor Structure: | WOOD W/SUBFLOOR | Foundation: | CONCRETE | | Interior Finish: | DRYWALL PAINT | Plumbing Fixture Cnt: | 9 | | Roof Slope: | 6" IN 12" | Roof Structure/Cover: | CJ ASPHALT |
|
| | Type | Description | Class CD | Sub Class CD | Year Built | Area |
| | BAS | BASE/MAIN FLOOR | 3 | 0 | 1977 | 1284.0 |
| | OP4 | OPEN PORCH W/CEILING-ROOF | 3 | 0 | 1977 | 34.0 |
| | AGR | ATTACHED GARAGE | 3 | 0 | 1977 | 440.0 |
| | OWP | OPEN WOOD PORCH W/STEPS | 3 | 0 | 1977 | 274.0 |
| | OP4 | OPEN PORCH W/CEILING-ROOF | 3 | 0 | 1977 | 99.0 |
| | DWN | DOWNSTAIRS LIVING AREA | 3 | 0 | 1977 | 888.0 |
| | UB8 | BASEMENT UNFINISHED 8" | 3 | 0 | 1977 | 396.0 |
Sketch
Property Image
Land
| 1 | 15 | SQ (12001-21780) | 0.4000 | 17424.00 | 0.00 | 0.00 | 1.00 | $320,000 | $0 |
Roll Value History
| 2026 | N/A | N/A | N/A | N/A | N/A |
| 2025 | $281,409 | $320,000 | $0 | $601,409 | $601,409 |
| 2024 | $267,568 | $300,000 | $0 | $567,568 | $567,568 |
| 2023 | $271,377 | $280,000 | $0 | $551,377 | $551,377 |
| 2022 | $249,187 | $250,000 | $0 | $499,187 | $499,187 |
| 2021 | $235,677 | $200,000 | $0 | $435,677 | $435,677 |
| 2020 | $229,723 | $180,000 | $0 | $409,723 | $409,723 |
| 2019 | $164,511 | $220,000 | $0 | $384,511 | $384,511 |
| 2018 | $133,057 | $200,000 | $0 | $333,057 | $333,057 |
| 2017 | $134,138 | $200,000 | $0 | $334,138 | $334,138 |
| 2016 | $136,302 | $200,000 | $0 | $336,302 | $336,302 |
| 2015 | $138,465 | $200,000 | $0 | $338,465 | $338,465 |
| 2014 | $185,868 | $150,000 | $0 | $335,868 | $335,868 |
| 2013 | $188,282 | $150,000 | $0 | $338,282 | $338,282 |
| 2012 | $199,218 | $170,000 | $0 | $369,218 | $369,218 |
| 2011 | $201,788 | $200,000 | $0 | $401,788 | $401,788 |
| 2010 | $215,073 | $200,000 | $0 | $415,073 | $415,073 |
| 2009 | $224,061 | $200,000 | $0 | $424,061 | $424,061 |
| 2008 | $226,802 | $200,000 | $0 | $426,802 | $426,802 |
| 2007 | $229,550 | $200,000 | $0 | $429,550 | $429,550 |
Deed and Sales History
| 1 | 02/11/2015 | WD | Warranty Deed | SCHMIDT TRUSTEE, MARTIN R | CANALE, STEVEN | | | $320,000.00 | 18486 | 4373239 |
|   | |
| 2 | 11/07/2013 | OTHER | Other - Misc. Documents | SCHMIDT, MARTIN A | SCHMIDT TRUSTEE, MARTIN R | | | | 82797 | |
| 3 | 02/01/1992 | QCD | Quit Claim Deed | SCHMIDT, MARTIN A | SCHMIDT, MARTIN A | | | $0.00 | 20624 | 92003037 |
| 4 | 09/01/1980 | EXECUTORD | Executor Deed | NEWELL, HAROLD E | SCHMIDT, MARTIN A | | | $127,000.00 | 3109 | 373834 |
| 5 | 01/01/1900 | OTHER | Other - Misc. Documents | Unknown | NEWELL, HAROLD E | | | $0.00 | 0 | 0 |
Payout Agreement
| No payout information available.. |