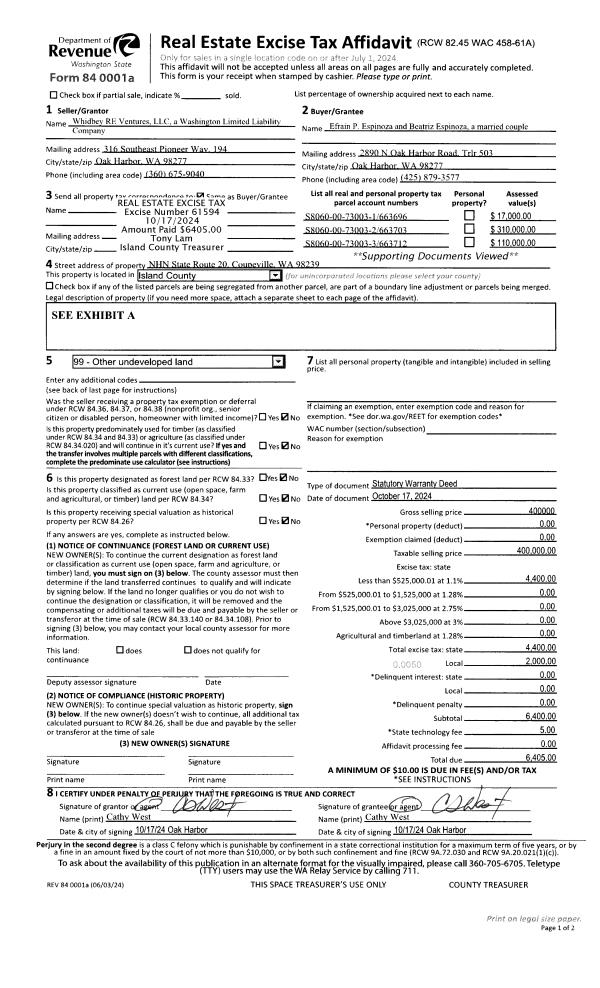
Property
Account |
| Property ID: | 301612 | Abbreviated Legal Description: | LEDGEWD BCH LOT 37 BLK 2 |
| Geographic ID: | S7355-00-02037-0 | Agent Code: | |
| Type: | Real | | |
| Tax Area: | 370 - APPRAISER-Cpvl Schl Dist, Special Dist, improved & less than 1 acre | Land Use Code | 11 |
| Open Space: | N | DFL | N |
| Historic Property: | N | Remodel Property: | N |
| Multi-Family Redevelopment: | N | | |
| Township: | | Section: | |
| Range: | |
Location |
| Address: | 1904 FIRCREST AVE COUPEVILLE, WA 98239 | Mapsco: | |
| Neighborhood: | Cycle 2 | Map ID: | 520 |
| Neighborhood CD: | 2 |
Owner |
| Name: | SIMPSON, KRISTEN NIELSEN | Owner ID: | 315174 |
| Mailing Address: | DEAN KEVIN SIMPSON 1904 S FIRCREST AVE COUPEVILLE, WA 98239 | % Ownership: | 100.0000000000% |
| | | Exemptions: | |
Taxes and Assessment Details
Values
| (+) Improvement Homesite Value: | + | $0 | |
| (+) Improvement Non-Homesite Value: | + | $328,892 | |
| (+) Land Homesite Value: | + | $0 | |
| (+) Land Non-Homesite Value: | + | $320,000 | |
| (+) Curr Use (HS): | + | $0 | $0 |
| (+) Curr Use (NHS): | + | $0 | $0 |
| | | -------------------------- | |
| (=) Market Value: | = | $648,892 | |
| (–) Productivity Loss: | – | $0 | |
| | | -------------------------- | |
| (=) Subtotal: | = | $648,892 | |
| (+) Senior Appraised Value: | + | $0 | |
| (+) Non-Senior Appraised Value: | + | $648,892 | |
| | | -------------------------- | |
| (=) Total Appraised Value: | = | $648,892 | |
| (–) Senior Exemption Loss: | – | $0 | |
| (–) Exemption Loss: | – | $0 | |
| | | -------------------------- | |
| (=) Taxable Value: | = | $648,892 | |
Taxing Jurisdiction
| Owner: | SIMPSON, KRISTEN NIELSEN | | |
| % Ownership: | 100.0000000000% | | |
| Total Value: | $648,892 | | |
| Tax Area: | 370 - APPRAISER-Cpvl Schl Dist, Special Dist, improved & less than 1 acre |
| CF | Conservation Futures | 0.0316035091 | $648,892 | $648,892 | $20.51 | | |
| CEM2 | Cemetery #2 | 0.0095056933 | $648,892 | $648,892 | $6.17 | | |
| FIRE5 | Fire & Rescue Dist #5 C Whidbey GEN | 1.2008080668 | $648,892 | $648,892 | $779.19 | | |
| FIRE5BOND | Fire & Rescue Dist #5 C Whidbey BOND | 0.1400090713 | $648,892 | $648,892 | $90.85 | | |
| HOBOND | Hospital BOND | 0.1910887512 | $648,892 | $648,892 | $124.00 | | |
| HOGEN | Hospital GEN | 0.3902502903 | $648,892 | $648,892 | $253.23 | | |
| CE | County Current Expense | 0.3708482477 | $648,892 | $648,892 | $240.64 | | |
| CR | County Roads | 0.4584763726 | $648,892 | $648,892 | $297.50 | | |
| ISLANDEMS | Hospital GEN (EMS) | 0.5000000000 | $648,892 | $648,892 | $324.45 | | |
| LIB | Library Sno-Isle GEN | 0.3153421757 | $648,892 | $648,892 | $204.62 | | |
| LIBCAP | Library Sno-Isle BOND (Cap Fac Imp Area) | 0.0543427938 | $648,892 | $648,892 | $35.26 | | |
| POCOUP | Port of Coupeville GEN | 0.1093371703 | $648,892 | $648,892 | $70.95 | | |
| POCOUPIDD | Port of Coupeville IDD | 0.3409740022 | $648,892 | $648,892 | $221.26 | | |
| COUPSDTECH | School 204 CP (TECH) | 0.7545480007 | $648,892 | $648,892 | $489.62 | | |
| SCH204MO | School 204 Enrichment | 0.6716186034 | $648,892 | $648,892 | $435.81 | | |
| ST | State School | 1.3035497053 | $648,892 | $648,892 | $845.86 | | |
| ST2 | State School Part 2 | 0.8169543533 | $648,892 | $648,892 | $530.12 | | |
| | Total Tax Rate: | 7.6592568070 | | | | | |
| | | | | Taxes w/Current Exemptions: | $4,970.04 | | |
| | | | | Taxes w/o Exemptions: | $4,970.04 | | |
Improvement / Building
| Improvement #1: | RESIDENTIAL | State Code: | Y | 2802.0 sqft | Value: | $328,892 |
| Bathrooms: | 3 | Bedrooms: | 4 | | Ceiling: | DRYWALL PAINTED | Exterior Wall/Cover: | PLY/HARDBOARD T-111 | | Floor Covering: | CARPET/VINYL 80-20 | Floor Structure: | WOOD W/SUBFLOOR | | Foundation: | CONCRETE | Heating: | FHA ELECTRIC | | Interior Finish: | DRYWALL PAINT | Plumbing Fixture Cnt: | 12 | | Roof Slope: | 4" IN 12" | Roof Structure/Cover: | CJ ASPHALT |
|
| | Type | Description | Class CD | Sub Class CD | Year Built | Area |
| | BAS | BASE/MAIN FLOOR | 3 | 0 | 1978 | 1401.0 |
| | OP4 | OPEN PORCH W/CEILING-ROOF | 3 | 0 | 1978 | 15.0 |
| | OP4 | OPEN PORCH W/CEILING-ROOF | 3 | 0 | 1978 | 352.0 |
| | AGR | ATTACHED GARAGE | 3 | 0 | 1978 | 576.0 |
| | OWP | OPEN WOOD PORCH W/STEPS | 3 | 0 | 1978 | 456.0 |
| | DWN | DOWNSTAIRS LIVING AREA | 3 | 0 | 1978 | 1401.0 |
Sketch
Property Image
Land
| 1 | 15 | SQ (12001-21780) | 0.4100 | 17859.60 | 0.00 | 0.00 | 1.00 | $320,000 | $0 |
Roll Value History
| 2026 | N/A | N/A | N/A | N/A | N/A |
| 2025 | $328,892 | $320,000 | $0 | $648,892 | $648,892 |
| 2024 | $324,521 | $300,000 | $0 | $624,521 | $624,521 |
| 2023 | $328,892 | $280,000 | $0 | $608,892 | $608,892 |
| 2022 | $301,784 | $250,000 | $0 | $551,784 | $551,784 |
| 2021 | $265,864 | $200,000 | $0 | $465,864 | $465,864 |
| 2020 | $259,793 | $180,000 | $0 | $439,793 | $439,793 |
| 2019 | $205,673 | $220,000 | $0 | $425,673 | $425,673 |
| 2018 | $209,763 | $200,000 | $0 | $409,763 | $409,763 |
| 2017 | $211,100 | $200,000 | $0 | $411,100 | $411,100 |
| 2016 | $213,773 | $200,000 | $0 | $413,773 | $413,773 |
| 2015 | $216,444 | $200,000 | $0 | $416,444 | $416,444 |
| 2014 | $219,117 | $150,000 | $0 | $369,117 | $369,117 |
| 2013 | $221,787 | $150,000 | $0 | $371,787 | $371,787 |
| 2012 | $219,348 | $170,000 | $0 | $389,348 | $389,348 |
| 2011 | $222,263 | $200,000 | $0 | $422,263 | $422,263 |
| 2010 | $232,127 | $200,000 | $0 | $432,127 | $432,127 |
| 2009 | $242,020 | $200,000 | $0 | $442,020 | $442,020 |
| 2008 | $244,931 | $200,000 | $0 | $444,931 | $444,931 |
| 2007 | $247,843 | $200,000 | $0 | $447,843 | $447,843 |
Deed and Sales History
| 1 | 01/08/2025 | WD | Warranty Deed | TANGUY, RICHARD W | SIMPSON, KRISTEN NIELSEN | | | $760,000.00 | 62345 | 4581395 |
|   | |
| 2 | 10/06/1998 | WD | Warranty Deed | MARTIN, JOHN G | TANGUY, RICHARD W | | | $213,945.00 | 83994 | 98021508 |
| 3 | 06/01/1987 | WD | Warranty Deed | STRICKLAND, EUGENE H | MARTIN, JOHN G | | | $135,000.00 | 71667 | 87007850 |
| 4 | 01/01/1900 | OTHER | Other - Misc. Documents | Unknown | STRICKLAND, EUGENE H | | | $0.00 | 0 | 0 |
Payout Agreement
| No payout information available.. |