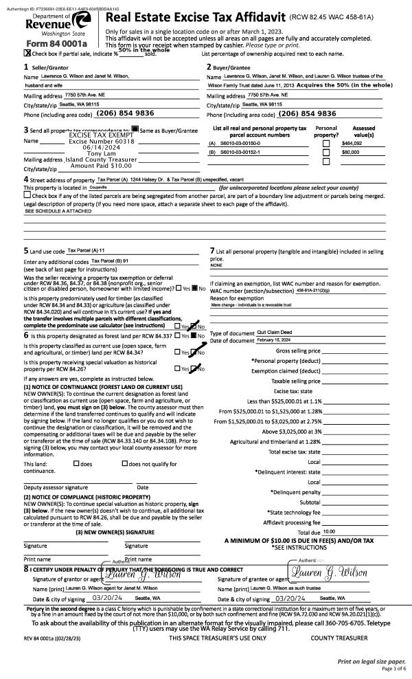
Property
Account |
| Property ID: | 301701 | Abbreviated Legal Description: | LEDGEWD BCH LOT 46 BLK 2 |
| Geographic ID: | S7355-00-02046-0 | Agent Code: | |
| Type: | Real | | |
| Tax Area: | 370 - APPRAISER-Cpvl Schl Dist, Special Dist, improved & less than 1 acre | Land Use Code | 11 |
| Open Space: | N | DFL | N |
| Historic Property: | N | Remodel Property: | N |
| Multi-Family Redevelopment: | N | | |
| Township: | | Section: | |
| Range: | |
Location |
| Address: | 1852 FIRCREST AVE COUPEVILLE, WA 98239 | Mapsco: | |
| Neighborhood: | Cycle 2 | Map ID: | 520 |
| Neighborhood CD: | 2 |
Owner |
| Name: | PHELPS, WALTER A | Owner ID: | 310612 |
| Mailing Address: | KRISTIN J PHELPS 1852 FIRCREST AVE COUPEVILLE, WA 98239 | % Ownership: | 100.0000000000% |
| | | Exemptions: | |
Taxes and Assessment Details
Values
| (+) Improvement Homesite Value: | + | $0 | |
| (+) Improvement Non-Homesite Value: | + | $527,036 | |
| (+) Land Homesite Value: | + | $0 | |
| (+) Land Non-Homesite Value: | + | $320,000 | |
| (+) Curr Use (HS): | + | $0 | $0 |
| (+) Curr Use (NHS): | + | $0 | $0 |
| | | -------------------------- | |
| (=) Market Value: | = | $847,036 | |
| (–) Productivity Loss: | – | $0 | |
| | | -------------------------- | |
| (=) Subtotal: | = | $847,036 | |
| (+) Senior Appraised Value: | + | $0 | |
| (+) Non-Senior Appraised Value: | + | $847,036 | |
| | | -------------------------- | |
| (=) Total Appraised Value: | = | $847,036 | |
| (–) Senior Exemption Loss: | – | $0 | |
| (–) Exemption Loss: | – | $0 | |
| | | -------------------------- | |
| (=) Taxable Value: | = | $847,036 | |
Taxing Jurisdiction
| Owner: | PHELPS, WALTER A | | |
| % Ownership: | 100.0000000000% | | |
| Total Value: | $847,036 | | |
| Tax Area: | 370 - APPRAISER-Cpvl Schl Dist, Special Dist, improved & less than 1 acre |
| CF | Conservation Futures | 0.0316035091 | $847,036 | $847,036 | $26.77 | | |
| CEM2 | Cemetery #2 | 0.0095056933 | $847,036 | $847,036 | $8.05 | | |
| FIRE5 | Fire & Rescue Dist #5 C Whidbey GEN | 1.2008080668 | $847,036 | $847,036 | $1,017.13 | | |
| FIRE5BOND | Fire & Rescue Dist #5 C Whidbey BOND | 0.1400090713 | $847,036 | $847,036 | $118.59 | | |
| HOBOND | Hospital BOND | 0.1910887512 | $847,036 | $847,036 | $161.86 | | |
| HOGEN | Hospital GEN | 0.3902502903 | $847,036 | $847,036 | $330.56 | | |
| CE | County Current Expense | 0.3708482477 | $847,036 | $847,036 | $314.12 | | |
| CR | County Roads | 0.4584763726 | $847,036 | $847,036 | $388.35 | | |
| ISLANDEMS | Hospital GEN (EMS) | 0.5000000000 | $847,036 | $847,036 | $423.52 | | |
| LIB | Library Sno-Isle GEN | 0.3153421757 | $847,036 | $847,036 | $267.11 | | |
| LIBCAP | Library Sno-Isle BOND (Cap Fac Imp Area) | 0.0543427938 | $847,036 | $847,036 | $46.03 | | |
| POCOUP | Port of Coupeville GEN | 0.1093371703 | $847,036 | $847,036 | $92.61 | | |
| POCOUPIDD | Port of Coupeville IDD | 0.3409740022 | $847,036 | $847,036 | $288.82 | | |
| COUPSDTECH | School 204 CP (TECH) | 0.7545480007 | $847,036 | $847,036 | $639.13 | | |
| SCH204MO | School 204 Enrichment | 0.6716186034 | $847,036 | $847,036 | $568.89 | | |
| ST | State School | 1.3035497053 | $847,036 | $847,036 | $1,104.15 | | |
| ST2 | State School Part 2 | 0.8169543533 | $847,036 | $847,036 | $691.99 | | |
| | Total Tax Rate: | 7.6592568070 | | | | | |
| | | | | Taxes w/Current Exemptions: | $6,487.68 | | |
| | | | | Taxes w/o Exemptions: | $6,487.68 | | |
Improvement / Building
| Improvement #1: | RESIDENTIAL | State Code: | Y | 2485.3 sqft | Value: | $527,036 |
| Bathrooms: | 2.5 | Bedrooms: | 2 | | Ceiling: | DRYWALL PAINTED | Cooling: | HEAT PUMP/CONV/V | | Exterior Wall/Cover: | WOOD SIDING | Floor Covering: | HARDWOOD/CARP 60-40 | | Floor Structure: | WOOD W/SUBFLOOR | Foundation: | CONCRETE | | Interior Finish: | DRYWALL PAINT | Plumbing Fixture Cnt: | 14 | | Roof Slope: | 6" IN 12" | Roof Structure/Cover: | CJ ALUMINIUM HEAVY |
|
| | Type | Description | Class CD | Sub Class CD | Year Built | Area |
| | BAS | BASE/MAIN FLOOR | 4 | 0 | 1996 | 1748.0 |
| | UB8 | BASEMENT UNFINISHED 8" | 4 | 0 | 1996 | 365.8 |
| | UB8 | BASEMENT UNFINISHED 8" | 4 | 0 | 1996 | 448.5 |
| | OP4 | OPEN PORCH W/CEILING-ROOF | 4 | 0 | 1996 | 56.0 |
| | AGR | ATTACHED GARAGE | 4 | 0 | 1996 | 637.0 |
| | OWP | OPEN WOOD PORCH W/STEPS | 4 | 0 | 1996 | 24.0 |
| | OWP | OPEN WOOD PORCH W/STEPS | 4 | 0 | 1996 | 606.0 |
| | OWR | OPEN WOOD PORCH W/STEPS/ROOF | 4 | 0 | 1996 | 69.0 |
| | OWC | OPEN WOOD PORCH W/STEPS/ROOF/C | 4 | 0 | 1996 | 64.5 |
| | DWN | DOWNSTAIRS LIVING AREA | 4 | 0 | 1996 | 737.3 |
Sketch
Property Image
Land
| 1 | 15 | SQ (12001-21780) | 0.5000 | 21780.00 | 0.00 | 0.00 | 1.00 | $320,000 | $0 |
Roll Value History
| 2026 | N/A | N/A | N/A | N/A | N/A |
| 2025 | $527,036 | $320,000 | $0 | $847,036 | $847,036 |
| 2024 | $512,868 | $300,000 | $0 | $812,868 | $812,868 |
| 2023 | $519,259 | $280,000 | $0 | $799,259 | $799,259 |
| 2022 | $475,971 | $250,000 | $0 | $725,971 | $725,971 |
| 2021 | $418,932 | $200,000 | $0 | $618,932 | $618,932 |
| 2020 | $408,237 | $180,000 | $0 | $588,237 | $588,237 |
| 2019 | $302,990 | $220,000 | $0 | $522,990 | $522,990 |
| 2018 | $267,522 | $200,000 | $0 | $467,522 | $467,522 |
| 2017 | $269,062 | $200,000 | $0 | $469,062 | $469,062 |
| 2016 | $272,265 | $200,000 | $0 | $472,265 | $472,265 |
| 2015 | $275,469 | $200,000 | $0 | $475,469 | $475,469 |
| 2014 | $278,671 | $150,000 | $0 | $428,671 | $428,671 |
| 2013 | $281,876 | $150,000 | $0 | $431,876 | $431,876 |
| 2012 | $316,034 | $170,000 | $0 | $486,034 | $486,034 |
| 2011 | $319,775 | $200,000 | $0 | $519,775 | $519,775 |
| 2010 | $337,065 | $200,000 | $0 | $537,065 | $537,065 |
| 2009 | $352,162 | $200,000 | $0 | $552,162 | $552,162 |
| 2008 | $370,007 | $200,000 | $0 | $570,007 | $570,007 |
| 2007 | $375,200 | $200,000 | $0 | $575,200 | $575,200 |
Deed and Sales History
| 1 | 10/30/2023 | WD | Warranty Deed | COWELL, ROGER W & CARRELL D | PHELPS, WALTER A | | | $998,000.00 | 58457 | 4566539 |
| 2 | 08/01/1995 | WD | Warranty Deed | LACHMANN, SAMUEL G | COWELL, ROGER W | | | $92,000.00 | 53030 | 95014053 |
| 3 | 05/01/1991 | QCD | Quit Claim Deed | LACHMANN, SAMUEL G | LACHMANN, SAMUEL G | | | $0.00 | 12052 | 91008694 |
| 4 | 02/01/1986 | WD | Warranty Deed | SMITH, CHAS & | LACHMANN, SAMUEL G | | | $28,000.00 | 60452 | 86002225 |
| 5 | 04/01/1980 | CD | DNU - Correction Deed | SMITH, CHARLES V | SMITH, CHAS & | | | $0.00 | 2211 | 370626 |
| 6 | 01/01/1900 | OTHER | Other - Misc. Documents | Unknown | SMITH, CHARLES V | | | $0.00 | 0 | 0 |
Payout Agreement
| No payout information available.. |