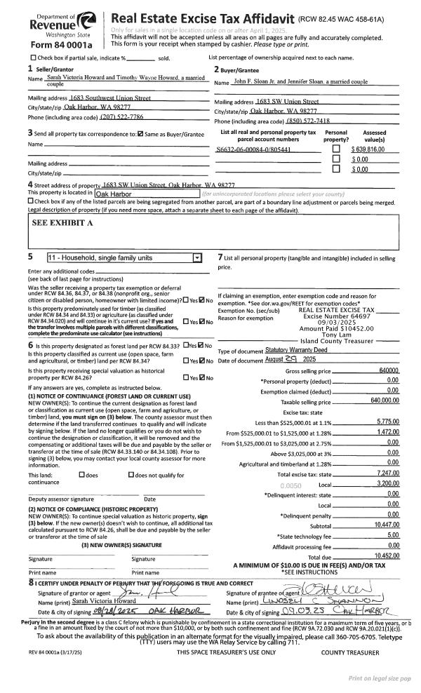
Property
Account |
| Property ID: | 302862 | Abbreviated Legal Description: | LEDGEWD BCH 2 LOT 5 BLK 8 |
| Geographic ID: | S7355-02-08005-0 | Agent Code: | |
| Type: | Real | | |
| Tax Area: | 379 - APPRAISER-Cpvl Schl Dist, Special Dist, vacant & 50 acres or less | Land Use Code | 99 |
| Open Space: | N | DFL | N |
| Historic Property: | N | Remodel Property: | N |
| Multi-Family Redevelopment: | N | | |
| Township: | | Section: | |
| Range: | |
Location |
| Address: | | Mapsco: | |
| Neighborhood: | Cycle 2 | Map ID: | 520 |
| Neighborhood CD: | 2 |
Owner |
| Name: | PETRILLO, GREGORY H | Owner ID: | 281615 |
| Mailing Address: | LINDA P PETRILLO DANIEL M JORDAN CHRISTINE J JORDAN 1924 FIRCREST AVE COUPEVILLE, WA 98239 | % Ownership: | 100.0000000000% |
| | | Exemptions: | U500 |
Taxes and Assessment Details
Values
| (+) Improvement Homesite Value: | + | $0 | |
| (+) Improvement Non-Homesite Value: | + | $0 | |
| (+) Land Homesite Value: | + | $0 | |
| (+) Land Non-Homesite Value: | + | $450 | |
| (+) Curr Use (HS): | + | $0 | $0 |
| (+) Curr Use (NHS): | + | $0 | $0 |
| | | -------------------------- | |
| (=) Market Value: | = | $450 | |
| (–) Productivity Loss: | – | $0 | |
| | | -------------------------- | |
| (=) Subtotal: | = | $450 | |
| (+) Senior Appraised Value: | + | $0 | |
| (+) Non-Senior Appraised Value: | + | $450 | |
| | | -------------------------- | |
| (=) Total Appraised Value: | = | $450 | |
| (–) Senior Exemption Loss: | – | $0 | |
| (–) Exemption Loss: | – | $450 | |
| | | -------------------------- | |
| (=) Taxable Value: | = | $0 | |
Taxing Jurisdiction
| Owner: | PETRILLO, GREGORY H | | |
| % Ownership: | 100.0000000000% | | |
| Total Value: | $450 | | |
| Tax Area: | 379 - APPRAISER-Cpvl Schl Dist, Special Dist, vacant & 50 acres or less |
| CF | Conservation Futures | 0.0316035091 | $450 | $0 | $0.00 | | |
| CEM2 | Cemetery #2 | 0.0095056933 | $450 | $0 | $0.00 | | |
| HOBOND | Hospital BOND | 0.1910887512 | $450 | $0 | $0.00 | | |
| HOGEN | Hospital GEN | 0.3902502903 | $450 | $0 | $0.00 | | |
| CE | County Current Expense | 0.3708482477 | $450 | $0 | $0.00 | | |
| CR | County Roads | 0.4584763726 | $450 | $0 | $0.00 | | |
| ISLANDEMS | Hospital GEN (EMS) | 0.5000000000 | $450 | $0 | $0.00 | | |
| LIB | Library Sno-Isle GEN | 0.3153421757 | $450 | $0 | $0.00 | | |
| LIBCAP | Library Sno-Isle BOND (Cap Fac Imp Area) | 0.0543427938 | $450 | $0 | $0.00 | | |
| POCOUP | Port of Coupeville GEN | 0.1093371703 | $450 | $0 | $0.00 | | |
| POCOUPIDD | Port of Coupeville IDD | 0.3409740022 | $450 | $0 | $0.00 | | |
| COUPSDTECH | School 204 CP (TECH) | 0.7545480007 | $450 | $0 | $0.00 | | |
| SCH204MO | School 204 Enrichment | 0.6716186034 | $450 | $0 | $0.00 | | |
| ST | State School | 1.3035497053 | $450 | $0 | $0.00 | | |
| ST2 | State School Part 2 | 0.8169543533 | $450 | $0 | $0.00 | | |
| | Total Tax Rate: | 6.3184396689 | | | | | |
| | | | | Taxes w/Current Exemptions: | $0.00 | | |
| | | | | Taxes w/o Exemptions: | $2.85 | | |
Improvement / Building
Sketch
| No sketches available for this property. |
Property Image
Land
| 1 | 54 | WASTE LAND | 0.0000 | 0.00 | 0.00 | 0.00 | 1.00 | $450 | $0 |
Roll Value History
| 2026 | N/A | N/A | N/A | N/A | N/A |
| 2025 | $0 | $450 | $0 | $450 | $0 |
| 2024 | $0 | $450 | $0 | $450 | $0 |
| 2023 | $0 | $450 | $0 | $450 | $0 |
| 2022 | $0 | $450 | $0 | $450 | $0 |
| 2021 | $0 | $10 | $0 | $10 | $0 |
| 2020 | $0 | $10 | $0 | $10 | $0 |
| 2019 | $0 | $10 | $0 | $10 | $0 |
| 2018 | $0 | $10 | $0 | $10 | $0 |
| 2017 | $0 | $10 | $0 | $10 | $0 |
| 2016 | $0 | $10 | $0 | $10 | $0 |
| 2015 | $0 | $10 | $0 | $10 | $0 |
| 2014 | $0 | $450 | $0 | $450 | $0 |
| 2013 | $0 | $450 | $0 | $450 | $0 |
| 2012 | $0 | $450 | $0 | $450 | $450 |
| 2011 | $0 | $1,300 | $0 | $1,300 | $1,300 |
| 2010 | $0 | $1,300 | $0 | $1,300 | $1,300 |
| 2009 | $0 | $1,800 | $0 | $1,800 | $1,800 |
| 2008 | $0 | $1,800 | $0 | $1,800 | $1,800 |
| 2007 | $0 | $1,800 | $0 | $1,800 | $1,800 |
Deed and Sales History
| 1 | 08/23/2017 | WD | Warranty Deed | GLADHART, CHADWICK | PETRILLO, GREGORY H | | | $10.00 | 30814 | 4428952 |
| 2 | 10/27/2011 | WD | Warranty Deed | NEWELL, HUGH H | GLADHART, CHADWICK | | | $425,000.00 | 5988 | 4303664 |
|   | |
| 3 | 01/21/2005 | 5 | DNU - Marriage License/Name Change | NEWELL, HUGH H | NEWELL, HUGH H | | | $0.00 | 70465 | 0 |
| 4 | 10/01/1991 | WD | Warranty Deed | HANSSON, ROBERT O | NEWELL, HUGH H | | | $5,000.00 | 13706 | 91015904 |
| 5 | 06/01/1967 | EXECUTORD | Executor Deed | KEITH, ROBERT O | HANSSON, ROBERT O | | | $0.00 | 26575 | 0 |
| 6 | 01/01/1900 | OTHER | Other - Misc. Documents | Unknown | KEITH, ROBERT O | | | $0.00 | 0 | 0 |
Payout Agreement
| No payout information available.. |