Property
Account |
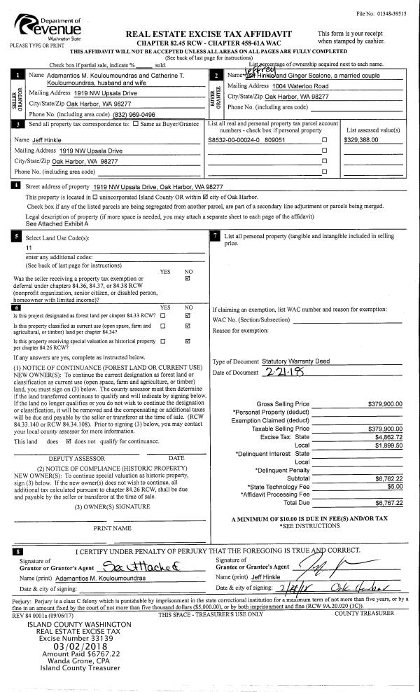
| Property ID: | 303031 | Abbreviated Legal Description: | LEDGEWD BCH 3 LOT 3 BLK 9 TGW EZ AF#95011222 |
| Geographic ID: | S7355-03-09003-0 | Agent Code: | |
| Type: | Real | | |
| Tax Area: | 370 - APPRAISER-Cpvl Schl Dist, Special Dist, improved & less than 1 acre | Land Use Code | 11 |
| Open Space: | N | DFL | N |
| Historic Property: | N | Remodel Property: | N |
| Multi-Family Redevelopment: | N | | |
| Township: | | Section: | |
| Range: | |
Location |
| Address: | 1762 FIRCREST AVE COUPEVILLE, WA 98239 | Mapsco: | |
| Neighborhood: | Cycle 2 | Map ID: | 522 |
| Neighborhood CD: | 2 |
Owner |
| Name: | KLOSTERMAN TTEE, ERIC S | Owner ID: | 299341 |
| Mailing Address: | AMY G WELLS 1410 STRATFORD AVE S PASADENA, CA 91030 | % Ownership: | 100.0000000000% |
| | | Exemptions: | |
Taxes and Assessment Details
Values
| (+) Improvement Homesite Value: | + | $0 | |
| (+) Improvement Non-Homesite Value: | + | $467,970 | |
| (+) Land Homesite Value: | + | $0 | |
| (+) Land Non-Homesite Value: | + | $280,000 | |
| (+) Curr Use (HS): | + | $0 | $0 |
| (+) Curr Use (NHS): | + | $0 | $0 |
| | | -------------------------- | |
| (=) Market Value: | = | $747,970 | |
| (–) Productivity Loss: | – | $0 | |
| | | -------------------------- | |
| (=) Subtotal: | = | $747,970 | |
| (+) Senior Appraised Value: | + | $0 | |
| (+) Non-Senior Appraised Value: | + | $747,970 | |
| | | -------------------------- | |
| (=) Total Appraised Value: | = | $747,970 | |
| (–) Senior Exemption Loss: | – | $0 | |
| (–) Exemption Loss: | – | $0 | |
| | | -------------------------- | |
| (=) Taxable Value: | = | $747,970 | |
Taxing Jurisdiction
| Owner: | KLOSTERMAN TTEE, ERIC S | | |
| % Ownership: | 100.0000000000% | | |
| Total Value: | $747,970 | | |
| Tax Area: | 370 - APPRAISER-Cpvl Schl Dist, Special Dist, improved & less than 1 acre |
| CF | Conservation Futures | 0.0316035091 | $747,970 | $747,970 | $23.64 | | |
| CEM2 | Cemetery #2 | 0.0095056933 | $747,970 | $747,970 | $7.11 | | |
| FIRE5 | Fire & Rescue Dist #5 C Whidbey GEN | 1.2008080668 | $747,970 | $747,970 | $898.17 | | |
| FIRE5BOND | Fire & Rescue Dist #5 C Whidbey BOND | 0.1400090713 | $747,970 | $747,970 | $104.72 | | |
| HOBOND | Hospital BOND | 0.1910887512 | $747,970 | $747,970 | $142.93 | | |
| HOGEN | Hospital GEN | 0.3902502903 | $747,970 | $747,970 | $291.90 | | |
| CE | County Current Expense | 0.3708482477 | $747,970 | $747,970 | $277.38 | | |
| CR | County Roads | 0.4584763726 | $747,970 | $747,970 | $342.93 | | |
| ISLANDEMS | Hospital GEN (EMS) | 0.5000000000 | $747,970 | $747,970 | $373.99 | | |
| LIB | Library Sno-Isle GEN | 0.3153421757 | $747,970 | $747,970 | $235.87 | | |
| LIBCAP | Library Sno-Isle BOND (Cap Fac Imp Area) | 0.0543427938 | $747,970 | $747,970 | $40.65 | | |
| POCOUP | Port of Coupeville GEN | 0.1093371703 | $747,970 | $747,970 | $81.78 | | |
| POCOUPIDD | Port of Coupeville IDD | 0.3409740022 | $747,970 | $747,970 | $255.04 | | |
| COUPSDTECH | School 204 CP (TECH) | 0.7545480007 | $747,970 | $747,970 | $564.38 | | |
| SCH204MO | School 204 Enrichment | 0.6716186034 | $747,970 | $747,970 | $502.35 | | |
| ST | State School | 1.3035497053 | $747,970 | $747,970 | $975.02 | | |
| ST2 | State School Part 2 | 0.8169543533 | $747,970 | $747,970 | $611.06 | | |
| | Total Tax Rate: | 7.6592568070 | | | | | |
| | | | | Taxes w/Current Exemptions: | $5,728.92 | | |
| | | | | Taxes w/o Exemptions: | $5,728.92 | | |
Improvement / Building
| Improvement #1: | RESIDENTIAL | State Code: | Y | 3193.5 sqft | Value: | $467,970 |
| Bathrooms: | 2.75 | Bedrooms: | 3 | | Ceiling: | DRYWALL PAINTED | Exterior Wall/Cover: | PLY/HARDBOARD T-111 | | Floor Covering: | HARDWOOD 100% | Floor Structure: | WOOD W/SUBFLOOR | | Foundation: | CONCRETE | Heating: | FHA ELECTRIC | | Interior Finish: | DRYWALL PAINT | Plumbing Fixture Cnt: | 13 | | Roof Slope: | 4" IN 12" | Roof Structure/Cover: | BEAM ASPHALT |
|
| | Type | Description | Class CD | Sub Class CD | Year Built | Area |
| | BAS | BASE/MAIN FLOOR | 3 | 0 | 1977 | 1639.5 |
| | OP3 | OPEN PORCH W/ROOF | 3 | 0 | 1977 | 24.0 |
| | AGR | ATTACHED GARAGE | 3 | 0 | 1977 | 484.0 |
| | OWP | OPEN WOOD PORCH W/STEPS | 3 | 0 | 1977 | 380.5 |
| | ENP | ENCLOSED PORCH | 3 | 0 | 1977 | 136.0 |
| | DWN | DOWNSTAIRS LIVING AREA | 3 | 0 | 1977 | 1554.0 |
Sketch
Property Image
Land
| 1 | 14 | SQ (08001-12000) | 0.2500 | 10890.00 | 0.00 | 0.00 | 1.00 | $280,000 | $0 |
Roll Value History
| 2026 | N/A | N/A | N/A | N/A | N/A |
| 2025 | $467,970 | $280,000 | $0 | $747,970 | $747,970 |
| 2024 | $473,590 | $250,000 | $0 | $723,590 | $723,590 |
| 2023 | $479,211 | $230,000 | $0 | $709,211 | $709,211 |
| 2022 | $439,026 | $220,000 | $0 | $659,026 | $659,026 |
| 2021 | $386,188 | $130,000 | $0 | $516,188 | $516,188 |
| 2020 | $377,126 | $110,000 | $0 | $487,126 | $487,126 |
| 2019 | $305,944 | $180,000 | $0 | $485,944 | $485,944 |
| 2018 | $305,793 | $160,000 | $0 | $465,793 | $465,793 |
| 2017 | $280,146 | $160,000 | $0 | $440,146 | $440,146 |
| 2016 | $249,495 | $125,000 | $0 | $374,495 | $374,495 |
| 2015 | $252,575 | $115,000 | $0 | $367,575 | $367,575 |
| 2014 | $255,655 | $100,000 | $0 | $355,655 | $355,655 |
| 2013 | $258,735 | $100,000 | $0 | $358,735 | $358,735 |
| 2012 | $268,120 | $100,000 | $0 | $368,120 | $368,120 |
| 2011 | $271,266 | $110,000 | $0 | $381,266 | $381,266 |
| 2010 | $283,174 | $110,000 | $0 | $393,174 | $393,174 |
| 2009 | $294,940 | $125,000 | $0 | $419,940 | $419,940 |
| 2008 | $296,078 | $135,000 | $0 | $431,078 | $431,078 |
| 2007 | $218,246 | $135,000 | $0 | $353,246 | $353,246 |
Deed and Sales History
| 1 | 04/29/2021 | QCD | Quit Claim Deed | KLOSTERMAN, ERIC S | KLOSTERMAN TTEE, ERIC S | | | $0.00 | 48217 | 4519086 |
| 2 | 01/29/2020 | WD | Warranty Deed | TOMCZAK, JOHN M | KLOSTERMAN, ERIC S | | | $599,900.00 | 41981 | 4480595 |
| 3 | 02/01/2018 | WD | Warranty Deed | TRUSCAN, VICKI | TOMCZAK, JOHN M | | | $540,000.00 | 32863 | 4438686 |
| 4 | 12/29/2016 | WD | Warranty Deed | HODSON, JULIA L | TRUSCAN, VICKI | | | $440,000.00 | 27567 | 4414350 |
| 5 | 12/01/1988 | WD | Warranty Deed | CARDINALE, MICHAEL A | HODSON, JULIA L | | | $87,000.00 | 84439 | 88016453 |
| 6 | 07/01/1981 | TRUSTEED | Trustee's Deed | KUHLMAN, OTIS H | CARDINALE, MICHAEL A | | | $105,000.00 | 12290 | 385887 |
Payout Agreement
| No payout information available.. |