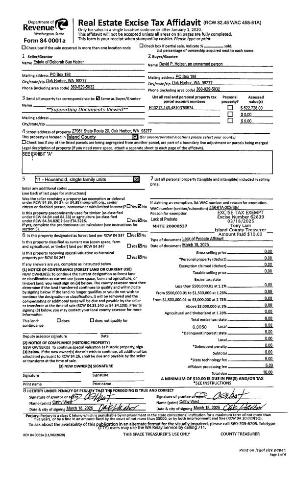
Property
Account |
| Property ID: | 303148 | Abbreviated Legal Description: | LEDGEWD BCH 3 LOT 14 BLK 9 |
| Geographic ID: | S7355-03-09014-0 | Agent Code: | |
| Type: | Real | | |
| Tax Area: | 370 - APPRAISER-Cpvl Schl Dist, Special Dist, improved & less than 1 acre | Land Use Code | 11 |
| Open Space: | N | DFL | N |
| Historic Property: | N | Remodel Property: | N |
| Multi-Family Redevelopment: | N | | |
| Township: | | Section: | |
| Range: | |
Location |
| Address: | 1822 FIRCREST AVE COUPEVILLE, WA 98239 | Mapsco: | |
| Neighborhood: | Cycle 2 | Map ID: | 520 |
| Neighborhood CD: | 2 |
Owner |
| Name: | HENDRIE, PAUL C | Owner ID: | 301600 |
| Mailing Address: | JENNIE G HENDRIE 27832 38TH PL S AUBURN, WA 98001 | % Ownership: | 100.0000000000% |
| | | Exemptions: | |
Taxes and Assessment Details
Values
| (+) Improvement Homesite Value: | + | $0 | |
| (+) Improvement Non-Homesite Value: | + | $472,620 | |
| (+) Land Homesite Value: | + | $0 | |
| (+) Land Non-Homesite Value: | + | $280,000 | |
| (+) Curr Use (HS): | + | $0 | $0 |
| (+) Curr Use (NHS): | + | $0 | $0 |
| | | -------------------------- | |
| (=) Market Value: | = | $752,620 | |
| (–) Productivity Loss: | – | $0 | |
| | | -------------------------- | |
| (=) Subtotal: | = | $752,620 | |
| (+) Senior Appraised Value: | + | $0 | |
| (+) Non-Senior Appraised Value: | + | $752,620 | |
| | | -------------------------- | |
| (=) Total Appraised Value: | = | $752,620 | |
| (–) Senior Exemption Loss: | – | $0 | |
| (–) Exemption Loss: | – | $0 | |
| | | -------------------------- | |
| (=) Taxable Value: | = | $752,620 | |
Taxing Jurisdiction
| Owner: | HENDRIE, PAUL C | | |
| % Ownership: | 100.0000000000% | | |
| Total Value: | $752,620 | | |
| Tax Area: | 370 - APPRAISER-Cpvl Schl Dist, Special Dist, improved & less than 1 acre |
| CF | Conservation Futures | 0.0316035091 | $752,620 | $752,620 | $23.79 | | |
| CEM2 | Cemetery #2 | 0.0095056933 | $752,620 | $752,620 | $7.15 | | |
| FIRE5 | Fire & Rescue Dist #5 C Whidbey GEN | 1.2008080668 | $752,620 | $752,620 | $903.75 | | |
| FIRE5BOND | Fire & Rescue Dist #5 C Whidbey BOND | 0.1400090713 | $752,620 | $752,620 | $105.37 | | |
| HOBOND | Hospital BOND | 0.1910887512 | $752,620 | $752,620 | $143.82 | | |
| HOGEN | Hospital GEN | 0.3902502903 | $752,620 | $752,620 | $293.71 | | |
| CE | County Current Expense | 0.3708482477 | $752,620 | $752,620 | $279.11 | | |
| CR | County Roads | 0.4584763726 | $752,620 | $752,620 | $345.06 | | |
| ISLANDEMS | Hospital GEN (EMS) | 0.5000000000 | $752,620 | $752,620 | $376.31 | | |
| LIB | Library Sno-Isle GEN | 0.3153421757 | $752,620 | $752,620 | $237.33 | | |
| LIBCAP | Library Sno-Isle BOND (Cap Fac Imp Area) | 0.0543427938 | $752,620 | $752,620 | $40.90 | | |
| POCOUP | Port of Coupeville GEN | 0.1093371703 | $752,620 | $752,620 | $82.29 | | |
| POCOUPIDD | Port of Coupeville IDD | 0.3409740022 | $752,620 | $752,620 | $256.62 | | |
| COUPSDTECH | School 204 CP (TECH) | 0.7545480007 | $752,620 | $752,620 | $567.89 | | |
| SCH204MO | School 204 Enrichment | 0.6716186034 | $752,620 | $752,620 | $505.47 | | |
| ST | State School | 1.3035497053 | $752,620 | $752,620 | $981.08 | | |
| ST2 | State School Part 2 | 0.8169543533 | $752,620 | $752,620 | $614.86 | | |
| | Total Tax Rate: | 7.6592568070 | | | | | |
| | | | | Taxes w/Current Exemptions: | $5,764.51 | | |
| | | | | Taxes w/o Exemptions: | $5,764.51 | | |
Improvement / Building
| Improvement #1: | RESIDENTIAL | State Code: | Y | 2115.1 sqft | Value: | $472,620 |
| Bathrooms: | 2.5 | Bedrooms: | 2 | | Ceiling: | DRYWALL PAINTED | Exterior Wall/Cover: | STUCCO | | Floor Covering: | CERAMIC TILE/CPT 40-60 | Floor Structure: | SLAB ON GRADE | | Foundation: | SLAB | Heating: | RAD HOT WATER-GAS | | Interior Finish: | DRYWALL PAINT | Plumbing Fixture Cnt: | 12 | | Roof Slope: | FLAT | Roof Structure/Cover: | CJ BUILT-UP ROCK |
|
| | Type | Description | Class CD | Sub Class CD | Year Built | Area |
| | BAS | BASE/MAIN FLOOR | 5 | 0 | 1999 | 916.0 |
| | DGR | DETACHED GARAGE | 5 | 0 | 1999 | 308.0 |
| | UPS | UPPER STORY | 5 | 0 | 1999 | 1101.6 |
| | OWP | OPEN WOOD PORCH W/STEPS | 5 | 0 | 1999 | 318.0 |
| | OWC | OPEN WOOD PORCH W/STEPS/ROOF/C | 5 | 0 | 1999 | 96.0 |
| | LOF | LOFT | 5 | 0 | 1999 | 97.5 |
Sketch
Property Image
Land
| 1 | 15 | SQ (12001-21780) | 0.2900 | 12632.40 | 0.00 | 0.00 | 1.00 | $280,000 | $0 |
Roll Value History
| 2026 | N/A | N/A | N/A | N/A | N/A |
| 2025 | $472,620 | $280,000 | $0 | $752,620 | $752,620 |
| 2024 | $455,988 | $250,000 | $0 | $705,988 | $705,988 |
| 2023 | $461,532 | $230,000 | $0 | $691,532 | $691,532 |
| 2022 | $422,956 | $220,000 | $0 | $642,956 | $642,956 |
| 2021 | $351,802 | $130,000 | $0 | $481,802 | $481,802 |
| 2020 | $342,543 | $110,000 | $0 | $452,543 | $452,543 |
| 2019 | $255,888 | $180,000 | $0 | $435,888 | $435,888 |
| 2018 | $262,761 | $160,000 | $0 | $422,761 | $422,761 |
| 2017 | $264,255 | $160,000 | $0 | $424,255 | $424,255 |
| 2016 | $267,256 | $125,000 | $0 | $392,256 | $392,256 |
| 2015 | $270,259 | $115,000 | $0 | $385,259 | $385,259 |
| 2014 | $273,263 | $100,000 | $0 | $373,263 | $373,263 |
| 2013 | $276,264 | $100,000 | $0 | $376,264 | $376,264 |
| 2012 | $274,979 | $127,500 | $0 | $402,479 | $402,479 |
| 2011 | $277,980 | $150,000 | $0 | $427,980 | $427,980 |
| 2010 | $287,483 | $150,000 | $0 | $437,483 | $437,483 |
| 2009 | $302,813 | $150,000 | $0 | $452,813 | $452,813 |
| 2008 | $303,568 | $150,000 | $0 | $453,568 | $453,568 |
Deed and Sales History
| 1 | 10/13/2021 | WD | Warranty Deed | HOLMSTROM, DARLENE | HENDRIE, PAUL C | | | $813,500.00 | 50498 | 4531529 |
|   | |
| 2 | 06/20/2019 | WD | Warranty Deed | SLOAN, CLINT EDWARD | HOLMSTROM, DARLENE | | | $600,000.00 | 39164 | 4466239 |
|   | |
| 3 | 08/20/2008 | QCD | Quit Claim Deed | BULLER, RUTH E | SLOAN, CLINT EDWARD | | | $0.00 | 82306 | 4235985 |
| 4 | 12/04/2006 | OTHER | Other - Misc. Documents | SLOAN JTWROS, CLINT EDWIN | BULLER, RUTH E | | | $0.00 | 80087 | 0 |
| 5 | 09/08/2006 | 5 | DNU - Marriage License/Name Change | SLOAN, CLINT EDWIN | SLOAN JTWROS, CLINT EDWIN | | | $0.00 | 63932 | 4181505 |
| 6 | 04/30/1998 | WD | Warranty Deed | MATSON, ELEANOR G | SLOAN, CLINT EDWIN | | | $13,000.00 | 81602 | 98008555 |
| 7 | 01/01/1900 | OTHER | Other - Misc. Documents | Unknown | MATSON, ELEANOR G | | | $0.00 | 0 | 0 |
| 8 | 01/01/1900 | OTHER | Other - Misc. Documents | MATSON, ELEANOR G | SLOAN, CLINT E | | | $0.00 | 81602 | 98008555 |
| 9 | 01/01/1900 | OTHER | Other - Misc. Documents | SLOAN, CLINT E | MATSON, ELEANOR G | | | $0.00 | 0 | 0 |
Payout Agreement
| No payout information available.. |