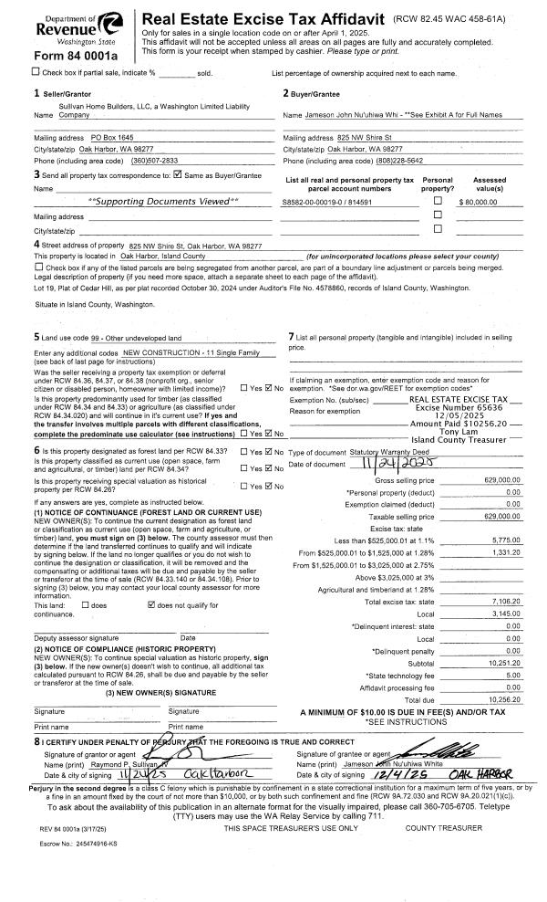
Property
Account |
| Property ID: | 303308 | Abbreviated Legal Description: | LEDGEWD BCH 3 LOT 32 BLK 9 |
| Geographic ID: | S7355-03-09032-0 | Agent Code: | |
| Type: | Real | | |
| Tax Area: | 370 - APPRAISER-Cpvl Schl Dist, Special Dist, improved & less than 1 acre | Land Use Code | 11 |
| Open Space: | N | DFL | N |
| Historic Property: | N | Remodel Property: | N |
| Multi-Family Redevelopment: | N | | |
| Township: | | Section: | |
| Range: | |
Location |
| Address: | 1770 SEAVIEW AVE COUPEVILLE, WA 98239 | Mapsco: | |
| Neighborhood: | Cycle 2 | Map ID: | 522 |
| Neighborhood CD: | 2 |
Owner |
| Name: | ROSS, MATTHEW C | Owner ID: | 309353 |
| Mailing Address: | DEBBIE L SANDERS 11700 MUKILTEO SPEEDWAY STE 201 4003 MUKILTEO, WA 98275 | % Ownership: | 100.0000000000% |
| | | Exemptions: | |
Taxes and Assessment Details
Values
| (+) Improvement Homesite Value: | + | $0 | |
| (+) Improvement Non-Homesite Value: | + | $331,646 | |
| (+) Land Homesite Value: | + | $0 | |
| (+) Land Non-Homesite Value: | + | $320,000 | |
| (+) Curr Use (HS): | + | $0 | $0 |
| (+) Curr Use (NHS): | + | $0 | $0 |
| | | -------------------------- | |
| (=) Market Value: | = | $651,646 | |
| (–) Productivity Loss: | – | $0 | |
| | | -------------------------- | |
| (=) Subtotal: | = | $651,646 | |
| (+) Senior Appraised Value: | + | $0 | |
| (+) Non-Senior Appraised Value: | + | $651,646 | |
| | | -------------------------- | |
| (=) Total Appraised Value: | = | $651,646 | |
| (–) Senior Exemption Loss: | – | $0 | |
| (–) Exemption Loss: | – | $0 | |
| | | -------------------------- | |
| (=) Taxable Value: | = | $651,646 | |
Taxing Jurisdiction
| Owner: | ROSS, MATTHEW C | | |
| % Ownership: | 100.0000000000% | | |
| Total Value: | $651,646 | | |
| Tax Area: | 370 - APPRAISER-Cpvl Schl Dist, Special Dist, improved & less than 1 acre |
| CF | Conservation Futures | 0.0316035091 | $651,646 | $651,646 | $20.59 | | |
| CEM2 | Cemetery #2 | 0.0095056933 | $651,646 | $651,646 | $6.19 | | |
| FIRE5 | Fire & Rescue Dist #5 C Whidbey GEN | 1.2008080668 | $651,646 | $651,646 | $782.50 | | |
| FIRE5BOND | Fire & Rescue Dist #5 C Whidbey BOND | 0.1400090713 | $651,646 | $651,646 | $91.24 | | |
| HOBOND | Hospital BOND | 0.1910887512 | $651,646 | $651,646 | $124.52 | | |
| HOGEN | Hospital GEN | 0.3902502903 | $651,646 | $651,646 | $254.31 | | |
| CE | County Current Expense | 0.3708482477 | $651,646 | $651,646 | $241.66 | | |
| CR | County Roads | 0.4584763726 | $651,646 | $651,646 | $298.76 | | |
| ISLANDEMS | Hospital GEN (EMS) | 0.5000000000 | $651,646 | $651,646 | $325.82 | | |
| LIB | Library Sno-Isle GEN | 0.3153421757 | $651,646 | $651,646 | $205.49 | | |
| LIBCAP | Library Sno-Isle BOND (Cap Fac Imp Area) | 0.0543427938 | $651,646 | $651,646 | $35.41 | | |
| POCOUP | Port of Coupeville GEN | 0.1093371703 | $651,646 | $651,646 | $71.25 | | |
| POCOUPIDD | Port of Coupeville IDD | 0.3409740022 | $651,646 | $651,646 | $222.19 | | |
| COUPSDTECH | School 204 CP (TECH) | 0.7545480007 | $651,646 | $651,646 | $491.70 | | |
| SCH204MO | School 204 Enrichment | 0.6716186034 | $651,646 | $651,646 | $437.66 | | |
| ST | State School | 1.3035497053 | $651,646 | $651,646 | $849.45 | | |
| ST2 | State School Part 2 | 0.8169543533 | $651,646 | $651,646 | $532.37 | | |
| | Total Tax Rate: | 7.6592568070 | | | | | |
| | | | | Taxes w/Current Exemptions: | $4,991.11 | | |
| | | | | Taxes w/o Exemptions: | $4,991.11 | | |
Improvement / Building
| Improvement #1: | RESIDENTIAL | State Code: | Y | 1672.0 sqft | Value: | $331,646 |
| Bathrooms: | 2 | Bedrooms: | 3 | | Ceiling: | DRYWALL PAINTED | Cooling: | HEAT PUMP/CONV/V | | Exterior Wall/Cover: | WOOD SIDING | Floor Covering: | HARDWOOD/CARP 60-40 | | Floor Structure: | WOOD W/SUBFLOOR | Foundation: | CONCRETE | | Interior Finish: | DRYWALL PAINT | Plumbing Fixture Cnt: | 12 | | Roof Slope: | 4" IN 12" | Roof Structure/Cover: | BEAM ASPHALT |
|
| | Type | Description | Class CD | Sub Class CD | Year Built | Area |
| | BAS | BASE/MAIN FLOOR | 3 | 0 | 1975 | 1672.0 |
| | OP3 | OPEN PORCH W/ROOF | 3 | 0 | 1975 | 24.0 |
| | AGR | ATTACHED GARAGE | 3 | 0 | 1975 | 360.0 |
| | OWP | OPEN WOOD PORCH W/STEPS | 3 | 0 | 1975 | 545.0 |
Sketch
Property Image
Land
| 1 | 15 | SQ (12001-21780) | 0.2900 | 12632.40 | 0.00 | 0.00 | 1.00 | $320,000 | $0 |
Roll Value History
| 2026 | N/A | N/A | N/A | N/A | N/A |
| 2025 | $331,646 | $320,000 | $0 | $651,646 | $651,646 |
| 2024 | $335,940 | $300,000 | $0 | $635,940 | $635,940 |
| 2023 | $319,460 | $280,000 | $0 | $599,460 | $599,460 |
| 2022 | $293,121 | $250,000 | $0 | $543,121 | $543,121 |
| 2021 | $258,236 | $200,000 | $0 | $458,236 | $458,236 |
| 2020 | $251,646 | $180,000 | $0 | $431,646 | $431,646 |
| 2019 | $183,328 | $220,000 | $0 | $403,328 | $403,328 |
| 2018 | $172,272 | $200,000 | $0 | $372,272 | $372,272 |
| 2017 | $173,412 | $200,000 | $0 | $373,412 | $373,412 |
| 2016 | $175,694 | $200,000 | $0 | $375,694 | $375,694 |
| 2015 | $177,976 | $200,000 | $0 | $377,976 | $377,976 |
| 2014 | $180,257 | $150,000 | $0 | $330,257 | $330,257 |
| 2013 | $182,539 | $150,000 | $0 | $332,539 | $332,539 |
| 2012 | $175,859 | $170,000 | $0 | $345,859 | $345,859 |
| 2011 | $178,085 | $200,000 | $0 | $378,085 | $378,085 |
| 2010 | $188,124 | $200,000 | $0 | $388,124 | $388,124 |
| 2009 | $196,085 | $200,000 | $0 | $396,085 | $396,085 |
| 2008 | $198,525 | $200,000 | $0 | $398,525 | $398,525 |
| 2007 | $200,917 | $200,000 | $0 | $400,917 | $400,917 |
Deed and Sales History
| 1 | 07/15/2023 | WD | Warranty Deed | SMITH TTEE, TRACY L | ROSS, MATTHEW C | | | $700,000.00 | 57346 | 4562431 |
| 2 | 04/01/2023 | QCD | Quit Claim Deed | COPELAND TTEE, CLINTON CHARLES | SMITH TTEE, TRACY L | | | $0.00 | 56470 | 4559061 |
| 3 | 08/23/2019 | QCD | Quit Claim Deed | COPELAND, CLINTON C | COPELAND TTEE, CLINTON CHARLES | | | $0.00 | 40001 | 4470118 |
| 4 | 08/11/2018 | QCD | Quit Claim Deed | COPELAND, CLINTON C | COPELAND TTEE, CLINTON CHARLES | | | $0.00 | 35497 | 4450042 |
| 5 | 04/01/1992 | WD | Warranty Deed | FOWLER, RALPH | COPELAND, CLINTON C | | | $183,000.00 | 21549 | 92007464 |
| 6 | 01/01/1900 | OTHER | Other - Misc. Documents | Unknown | FOWLER, RALPH | | | $0.00 | 0 | 0 |
Payout Agreement
| No payout information available.. |