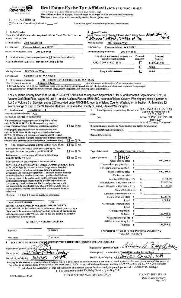
Property
Account |
| Property ID: | 303353 | Abbreviated Legal Description: | LEDGEWD BCH 3 LOT 37 BLK 9 & PT S/2 SW NE SEC 30-31-2E LY S OF NLY LOT LN LOT 37 BLK 9 LEDGEWOOD BCH #3 EXT WLY TO ELN OF HOVIS TR AF#257257 |
| Geographic ID: | S7355-03-09037-0 | Agent Code: | |
| Type: | Real | | |
| Tax Area: | 370 - APPRAISER-Cpvl Schl Dist, Special Dist, improved & less than 1 acre | Land Use Code | 11 |
| Open Space: | N | DFL | N |
| Historic Property: | N | Remodel Property: | N |
| Multi-Family Redevelopment: | N | | |
| Township: | | Section: | |
| Range: | |
Location |
| Address: | 1796 SEAVIEW AVE COUPEVILLE, WA 98239 | Mapsco: | |
| Neighborhood: | Cycle 2 | Map ID: | 522 |
| Neighborhood CD: | 2 |
Owner |
| Name: | COFFMAN, BRIAN W | Owner ID: | 305424 |
| Mailing Address: | MARYANNE E COFFMAN 9606 146TH PL SE SNOHOMISH, WA 98296 | % Ownership: | 100.0000000000% |
| | | Exemptions: | |
Taxes and Assessment Details
Values
| (+) Improvement Homesite Value: | + | $0 | |
| (+) Improvement Non-Homesite Value: | + | $399,151 | |
| (+) Land Homesite Value: | + | $0 | |
| (+) Land Non-Homesite Value: | + | $320,000 | |
| (+) Curr Use (HS): | + | $0 | $0 |
| (+) Curr Use (NHS): | + | $0 | $0 |
| | | -------------------------- | |
| (=) Market Value: | = | $719,151 | |
| (–) Productivity Loss: | – | $0 | |
| | | -------------------------- | |
| (=) Subtotal: | = | $719,151 | |
| (+) Senior Appraised Value: | + | $0 | |
| (+) Non-Senior Appraised Value: | + | $719,151 | |
| | | -------------------------- | |
| (=) Total Appraised Value: | = | $719,151 | |
| (–) Senior Exemption Loss: | – | $0 | |
| (–) Exemption Loss: | – | $0 | |
| | | -------------------------- | |
| (=) Taxable Value: | = | $719,151 | |
Taxing Jurisdiction
| Owner: | COFFMAN, BRIAN W | | |
| % Ownership: | 100.0000000000% | | |
| Total Value: | $719,151 | | |
| Tax Area: | 370 - APPRAISER-Cpvl Schl Dist, Special Dist, improved & less than 1 acre |
| CF | Conservation Futures | 0.0316035091 | $719,151 | $719,151 | $22.73 | | |
| CEM2 | Cemetery #2 | 0.0095056933 | $719,151 | $719,151 | $6.84 | | |
| FIRE5 | Fire & Rescue Dist #5 C Whidbey GEN | 1.2008080668 | $719,151 | $719,151 | $863.56 | | |
| FIRE5BOND | Fire & Rescue Dist #5 C Whidbey BOND | 0.1400090713 | $719,151 | $719,151 | $100.69 | | |
| HOBOND | Hospital BOND | 0.1910887512 | $719,151 | $719,151 | $137.42 | | |
| HOGEN | Hospital GEN | 0.3902502903 | $719,151 | $719,151 | $280.65 | | |
| CE | County Current Expense | 0.3708482477 | $719,151 | $719,151 | $266.70 | | |
| CR | County Roads | 0.4584763726 | $719,151 | $719,151 | $329.71 | | |
| ISLANDEMS | Hospital GEN (EMS) | 0.5000000000 | $719,151 | $719,151 | $359.58 | | |
| LIB | Library Sno-Isle GEN | 0.3153421757 | $719,151 | $719,151 | $226.78 | | |
| LIBCAP | Library Sno-Isle BOND (Cap Fac Imp Area) | 0.0543427938 | $719,151 | $719,151 | $39.08 | | |
| POCOUP | Port of Coupeville GEN | 0.1093371703 | $719,151 | $719,151 | $78.63 | | |
| POCOUPIDD | Port of Coupeville IDD | 0.3409740022 | $719,151 | $719,151 | $245.21 | | |
| COUPSDTECH | School 204 CP (TECH) | 0.7545480007 | $719,151 | $719,151 | $542.63 | | |
| SCH204MO | School 204 Enrichment | 0.6716186034 | $719,151 | $719,151 | $483.00 | | |
| ST | State School | 1.3035497053 | $719,151 | $719,151 | $937.45 | | |
| ST2 | State School Part 2 | 0.8169543533 | $719,151 | $719,151 | $587.51 | | |
| | Total Tax Rate: | 7.6592568070 | | | | | |
| | | | | Taxes w/Current Exemptions: | $5,508.17 | | |
| | | | | Taxes w/o Exemptions: | $5,508.17 | | |
Improvement / Building
| Improvement #1: | RESIDENTIAL | State Code: | Y | 2698.0 sqft | Value: | $399,151 |
| Bathrooms: | 3 | Bedrooms: | 4 | | Ceiling: | DRYWALL PAINTED | Cooling: | HEAT PUMP/CONV/V | | Exterior Wall/Cover: | PLY/HARDBOARD T-111 | Floor Covering: | CERAMIC TILE/CPT 40-60 | | Floor Structure: | WOOD W/SUBFLOOR | Foundation: | CONCRETE | | Interior Finish: | DRYWALL PAINT | Plumbing Fixture Cnt: | 12 | | Roof Slope: | 4" IN 12" | Roof Structure/Cover: | BEAM ASPHALT |
|
| | Type | Description | Class CD | Sub Class CD | Year Built | Area |
| | BAS | BASE/MAIN FLOOR | 3 | 0 | 1974 | 1582.0 |
| | UB8 | BASEMENT UNFINISHED 8" | 3 | 0 | 1974 | 192.0 |
| | OP3 | OPEN PORCH W/ROOF | 3 | 0 | 1974 | 20.0 |
| | AGR | ATTACHED GARAGE | 3 | 0 | 1974 | 528.0 |
| | OWR | OPEN WOOD PORCH W/STEPS/ROOF | 3 | 0 | 1974 | 172.2 |
| | DWN | DOWNSTAIRS LIVING AREA | 3 | 0 | 1974 | 1116.0 |
Sketch
| No sketches available for this property. |
Property Image
Land
| 1 | 15 | SQ (12001-21780) | 0.4800 | 20908.80 | 0.00 | 0.00 | 1.00 | $320,000 | $0 |
Roll Value History
| 2026 | N/A | N/A | N/A | N/A | N/A |
| 2025 | $399,151 | $320,000 | $0 | $719,151 | $719,151 |
| 2024 | $383,000 | $300,000 | $0 | $683,000 | $683,000 |
| 2023 | $388,160 | $280,000 | $0 | $668,160 | $668,160 |
| 2022 | $356,145 | $250,000 | $0 | $606,145 | $606,145 |
| 2021 | $313,766 | $200,000 | $0 | $513,766 | $513,766 |
| 2020 | $306,586 | $180,000 | $0 | $486,586 | $486,586 |
| 2019 | $240,316 | $220,000 | $0 | $460,316 | $460,316 |
| 2018 | $206,931 | $200,000 | $0 | $406,931 | $406,931 |
| 2017 | $208,422 | $200,000 | $0 | $408,422 | $408,422 |
| 2016 | $211,399 | $200,000 | $0 | $411,399 | $411,399 |
| 2015 | $214,375 | $200,000 | $0 | $414,375 | $414,375 |
| 2014 | $217,354 | $150,000 | $0 | $367,354 | $367,354 |
| 2013 | $220,332 | $150,000 | $0 | $370,332 | $370,332 |
| 2012 | $221,317 | $170,000 | $0 | $391,317 | $391,317 |
| 2011 | $224,346 | $200,000 | $0 | $424,346 | $424,346 |
| 2010 | $235,318 | $200,000 | $0 | $435,318 | $435,318 |
| 2009 | $245,481 | $200,000 | $0 | $445,481 | $445,481 |
| 2008 | $248,546 | $200,000 | $0 | $448,546 | $448,546 |
| 2007 | $251,607 | $200,000 | $0 | $451,607 | $451,607 |
Deed and Sales History
| 1 | 08/09/2022 | WD | Warranty Deed | ROOT, BURTON L | COFFMAN, BRIAN W | | | $853,125.00 | 54107 | 4549487 |
| 2 | 06/24/1999 | WD | Warranty Deed | ROOT, BURTON L | ROOT, BURTON L | | | $0.00 | 92663 | 99015938 |
| 3 | 06/24/1999 | WD | Warranty Deed | MCINTIRE, HOMER E | ROOT, BURTON L | | | $257,750.00 | 92606 | 99015613 |
| 4 | 04/01/1995 | WD | Warranty Deed | MCINTIRE, PATRICIA L | MCINTIRE, HOMER E | | | $0.00 | 51207 | 95005713 |
| 5 | 12/01/1992 | QCD | Quit Claim Deed | MCINTIRE, PATRICIA L | MCINTIRE, PATRICIA L | | | $0.00 | 25005 | 92024710 |
| 6 | 11/01/1985 | WD | Warranty Deed | MENZIES, JAMES R | MCINTIRE, PATRICIA L | | | $140,000.00 | 53328 | 85013157 |
| 7 | 10/01/1980 | CD | DNU - Correction Deed | MENZIES, JAMES R | MENZIES, JAMES R | | | $0.00 | 3676 | 375859 |
| 8 | 01/01/1900 | OTHER | Other - Misc. Documents | Unknown | MENZIES, JAMES R | | | $0.00 | 0 | 0 |
Payout Agreement
| No payout information available.. |