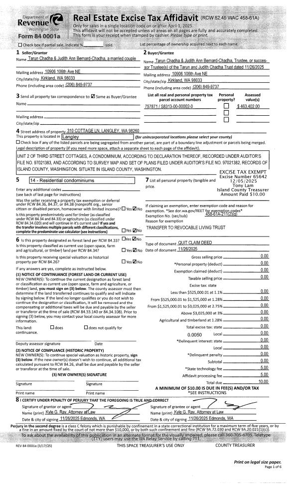
Property
Account |
| Property ID: | 303362 | Abbreviated Legal Description: | LEDGEWD BCH 3 LOT 38 BLK 9 & PT N 15AC GL3 SEC 30-31-2E LY BET NLY & SLY LOT LINES L38 B9 LEDGEWD BCH 3 EXT WLY TO ELN OF TR DESC AF#256979 FR 251-1500 |
| Geographic ID: | S7355-03-09038-0 | Agent Code: | |
| Type: | Real | | |
| Tax Area: | 370 - APPRAISER-Cpvl Schl Dist, Special Dist, improved & less than 1 acre | Land Use Code | 11 |
| Open Space: | N | DFL | N |
| Historic Property: | N | Remodel Property: | N |
| Multi-Family Redevelopment: | N | | |
| Township: | | Section: | |
| Range: | |
Location |
| Address: | 1802 SEAVIEW AVE COUPEVILLE, WA 98239 | Mapsco: | |
| Neighborhood: | Cycle 2 | Map ID: | 520 |
| Neighborhood CD: | 2 |
Owner |
| Name: | THE HAMMETT FAMILY TRUST | Owner ID: | 268095 |
| Mailing Address: | 416 TABLE ROCK BEAUMONT, CA 92223 | % Ownership: | 100.0000000000% |
| | | Exemptions: | |
Taxes and Assessment Details
Values
| (+) Improvement Homesite Value: | + | $0 | |
| (+) Improvement Non-Homesite Value: | + | $377,968 | |
| (+) Land Homesite Value: | + | $0 | |
| (+) Land Non-Homesite Value: | + | $320,000 | |
| (+) Curr Use (HS): | + | $0 | $0 |
| (+) Curr Use (NHS): | + | $0 | $0 |
| | | -------------------------- | |
| (=) Market Value: | = | $697,968 | |
| (–) Productivity Loss: | – | $0 | |
| | | -------------------------- | |
| (=) Subtotal: | = | $697,968 | |
| (+) Senior Appraised Value: | + | $0 | |
| (+) Non-Senior Appraised Value: | + | $697,968 | |
| | | -------------------------- | |
| (=) Total Appraised Value: | = | $697,968 | |
| (–) Senior Exemption Loss: | – | $0 | |
| (–) Exemption Loss: | – | $0 | |
| | | -------------------------- | |
| (=) Taxable Value: | = | $697,968 | |
Taxing Jurisdiction
| Owner: | THE HAMMETT FAMILY TRUST | | |
| % Ownership: | 100.0000000000% | | |
| Total Value: | $697,968 | | |
| Tax Area: | 370 - APPRAISER-Cpvl Schl Dist, Special Dist, improved & less than 1 acre |
| CF | Conservation Futures | 0.0316035091 | $697,968 | $697,968 | $22.06 | | |
| CEM2 | Cemetery #2 | 0.0095056933 | $697,968 | $697,968 | $6.63 | | |
| FIRE5 | Fire & Rescue Dist #5 C Whidbey GEN | 1.2008080668 | $697,968 | $697,968 | $838.13 | | |
| FIRE5BOND | Fire & Rescue Dist #5 C Whidbey BOND | 0.1400090713 | $697,968 | $697,968 | $97.72 | | |
| HOBOND | Hospital BOND | 0.1910887512 | $697,968 | $697,968 | $133.37 | | |
| HOGEN | Hospital GEN | 0.3902502903 | $697,968 | $697,968 | $272.38 | | |
| CE | County Current Expense | 0.3708482477 | $697,968 | $697,968 | $258.84 | | |
| CR | County Roads | 0.4584763726 | $697,968 | $697,968 | $320.00 | | |
| ISLANDEMS | Hospital GEN (EMS) | 0.5000000000 | $697,968 | $697,968 | $348.98 | | |
| LIB | Library Sno-Isle GEN | 0.3153421757 | $697,968 | $697,968 | $220.10 | | |
| LIBCAP | Library Sno-Isle BOND (Cap Fac Imp Area) | 0.0543427938 | $697,968 | $697,968 | $37.93 | | |
| POCOUP | Port of Coupeville GEN | 0.1093371703 | $697,968 | $697,968 | $76.31 | | |
| POCOUPIDD | Port of Coupeville IDD | 0.3409740022 | $697,968 | $697,968 | $237.99 | | |
| COUPSDTECH | School 204 CP (TECH) | 0.7545480007 | $697,968 | $697,968 | $526.65 | | |
| SCH204MO | School 204 Enrichment | 0.6716186034 | $697,968 | $697,968 | $468.77 | | |
| ST | State School | 1.3035497053 | $697,968 | $697,968 | $909.84 | | |
| ST2 | State School Part 2 | 0.8169543533 | $697,968 | $697,968 | $570.21 | | |
| | Total Tax Rate: | 7.6592568070 | | | | | |
| | | | | Taxes w/Current Exemptions: | $5,345.91 | | |
| | | | | Taxes w/o Exemptions: | $5,345.91 | | |
Improvement / Building
| Improvement #1: | RESIDENTIAL | State Code: | Y | 2810.0 sqft | Value: | $377,968 |
| Bathrooms: | 3 | Bedrooms: | 2 | | Ceiling: | DRYWALL PAINTED | Cooling: | HEAT PUMP/CONV/V | | Exterior Wall/Cover: | PLY/HARDBOARD T-111 | Floor Covering: | HARDWOOD/CARP 20-80 | | Floor Structure: | WOOD W/SUBFLOOR | Foundation: | CONCRETE | | Interior Finish: | DRYWALL PAINT | Plumbing Fixture Cnt: | 12 | | Roof Slope: | 4" IN 12" | Roof Structure/Cover: | BEAM ASPHALT |
|
| | Type | Description | Class CD | Sub Class CD | Year Built | Area |
| | BAS | BASE/MAIN FLOOR | 3 | 0 | 1975 | 1479.0 |
| | OP3 | OPEN PORCH W/ROOF | 3 | 0 | 1975 | 160.0 |
| | AGR | ATTACHED GARAGE | 3 | 0 | 1975 | 480.0 |
| | OWP | OPEN WOOD PORCH W/STEPS | 3 | 0 | 1975 | 42.0 |
| | OWP | OPEN WOOD PORCH W/STEPS | 3 | 0 | 1975 | 225.0 |
| | OWR | OPEN WOOD PORCH W/STEPS/ROOF | 3 | 0 | 1975 | 308.0 |
| | DWN | DOWNSTAIRS LIVING AREA | 3 | 0 | 1975 | 1331.0 |
Sketch
Property Image
Land
| 1 | 15 | SQ (12001-21780) | 0.3200 | 13939.20 | 0.00 | 0.00 | 1.00 | $320,000 | $0 |
Roll Value History
| 2026 | N/A | N/A | N/A | N/A | N/A |
| 2025 | $377,968 | $320,000 | $0 | $697,968 | $697,968 |
| 2024 | $372,808 | $300,000 | $0 | $672,808 | $672,808 |
| 2023 | $359,436 | $280,000 | $0 | $639,436 | $639,436 |
| 2022 | $329,919 | $250,000 | $0 | $579,919 | $579,919 |
| 2021 | $290,757 | $200,000 | $0 | $490,757 | $490,757 |
| 2020 | $284,241 | $180,000 | $0 | $464,241 | $464,241 |
| 2019 | $225,494 | $220,000 | $0 | $445,494 | $445,494 |
| 2018 | $206,973 | $200,000 | $0 | $406,973 | $406,973 |
| 2017 | $208,421 | $200,000 | $0 | $408,421 | $408,421 |
| 2016 | $211,314 | $200,000 | $0 | $411,314 | $411,314 |
| 2015 | $214,210 | $200,000 | $0 | $414,210 | $414,210 |
| 2014 | $217,105 | $150,000 | $0 | $367,105 | $367,105 |
| 2013 | $219,998 | $150,000 | $0 | $369,998 | $369,998 |
| 2012 | $237,548 | $170,000 | $0 | $407,548 | $407,548 |
| 2011 | $240,629 | $200,000 | $0 | $440,629 | $440,629 |
| 2010 | $249,341 | $200,000 | $0 | $449,341 | $449,341 |
| 2009 | $259,961 | $200,000 | $0 | $459,961 | $459,961 |
| 2008 | $263,054 | $200,000 | $0 | $463,054 | $463,054 |
| 2007 | $266,142 | $200,000 | $0 | $466,142 | $466,142 |
Deed and Sales History
| 1 | 08/23/2014 | QCD | Quit Claim Deed | HAMMETT JR, GEORGE F | THE HAMMETT FAMILY TRUST | | | $0.00 | 17233 | 4367203 |
| 2 | 06/27/2001 | PRD | Personal Representatives Deed | HAMMETT, GEORGE F | HAMMETT JR, GEORGE F | | | $0.00 | 12364 | 20035824 |
| 3 | 06/01/1983 | REC | Real Estate Contract | STOCK, FREDRICK H | HAMMETT, GEORGE F | | | $145,000.00 | 31676 | 411226 |
| 4 | 10/01/1980 | CD | DNU - Correction Deed | STOCK, FREDRICK H | STOCK, FREDRICK H | | | $0.00 | 3675 | 375858 |
| 5 | 01/01/1900 | OTHER | Other - Misc. Documents | Unknown | STOCK, FREDRICK H | | | $0.00 | 0 | 0 |
Payout Agreement
| No payout information available.. |