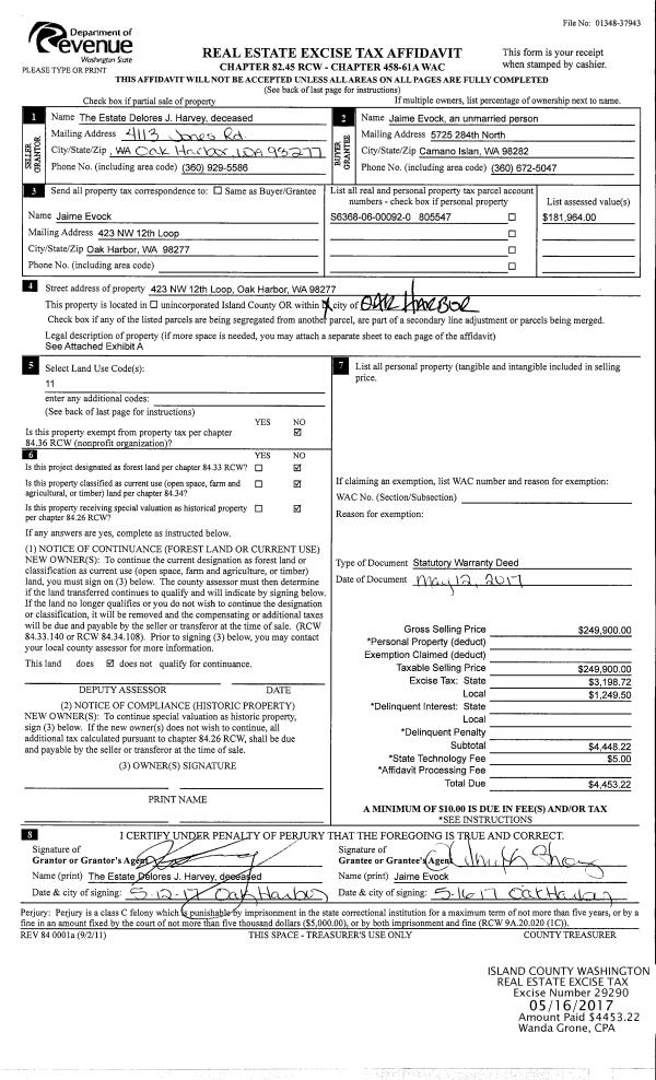
Property
Account |
| Property ID: | 304174 | Abbreviated Legal Description: | LEITCHS ADD BG N MST CR LOT 14 S21*E84 .24' ALG NELY LN LOT 14 TPB S21*E84.24' TP ON NELY LN LOT 15 S68*W146.90' N12*W60 .20' N58*E139.59' TPB INCL INT IN COMMUNITY LOT |
| Geographic ID: | S7365-00-00015-1 | Agent Code: | |
| Type: | Real | | |
| Tax Area: | 310 - APPRAISER-Cpvl Schl Dist, outside Cpvl, improved & 1 acre or less | Land Use Code | 11 |
| Open Space: | N | DFL | N |
| Historic Property: | N | Remodel Property: | N |
| Multi-Family Redevelopment: | N | | |
| Township: | | Section: | |
| Range: | |
Location |
| Address: | 58 N HARRINGTON LAGOON RD COUPEVILLE, WA 98239 | Mapsco: | |
| Neighborhood: | Cycle 2 | Map ID: | 572 |
| Neighborhood CD: | 2 |
Owner |
| Name: | SUNNY BY THE SOUND LLC | Owner ID: | 308952 |
| Mailing Address: | 1776 CASCADE VIEW DR CAMANO ISLAND, WA 98282 | % Ownership: | 100.0000000000% |
| | | Exemptions: | |
Taxes and Assessment Details
Values
| (+) Improvement Homesite Value: | + | $0 | |
| (+) Improvement Non-Homesite Value: | + | $107,619 | |
| (+) Land Homesite Value: | + | $0 | |
| (+) Land Non-Homesite Value: | + | $190,000 | |
| (+) Curr Use (HS): | + | $0 | $0 |
| (+) Curr Use (NHS): | + | $0 | $0 |
| | | -------------------------- | |
| (=) Market Value: | = | $297,619 | |
| (–) Productivity Loss: | – | $0 | |
| | | -------------------------- | |
| (=) Subtotal: | = | $297,619 | |
| (+) Senior Appraised Value: | + | $0 | |
| (+) Non-Senior Appraised Value: | + | $297,619 | |
| | | -------------------------- | |
| (=) Total Appraised Value: | = | $297,619 | |
| (–) Senior Exemption Loss: | – | $0 | |
| (–) Exemption Loss: | – | $0 | |
| | | -------------------------- | |
| (=) Taxable Value: | = | $297,619 | |
Taxing Jurisdiction
| Owner: | SUNNY BY THE SOUND LLC | | |
| % Ownership: | 100.0000000000% | | |
| Total Value: | $297,619 | | |
| Tax Area: | 310 - APPRAISER-Cpvl Schl Dist, outside Cpvl, improved & 1 acre or less |
| CF | Conservation Futures | 0.0316035091 | $297,619 | $297,619 | $9.41 | | |
| CEM2 | Cemetery #2 | 0.0095056933 | $297,619 | $297,619 | $2.83 | | |
| FIRE5 | Fire & Rescue Dist #5 C Whidbey GEN | 1.2008080668 | $297,619 | $297,619 | $357.38 | | |
| FIRE5BOND | Fire & Rescue Dist #5 C Whidbey BOND | 0.1400090713 | $297,619 | $297,619 | $41.67 | | |
| HOBOND | Hospital BOND | 0.1910887512 | $297,619 | $297,619 | $56.87 | | |
| HOGEN | Hospital GEN | 0.3902502903 | $297,619 | $297,619 | $116.15 | | |
| CE | County Current Expense | 0.3708482477 | $297,619 | $297,619 | $110.37 | | |
| CR | County Roads | 0.4584763726 | $297,619 | $297,619 | $136.45 | | |
| ISLANDEMS | Hospital GEN (EMS) | 0.5000000000 | $297,619 | $297,619 | $148.81 | | |
| LIB | Library Sno-Isle GEN | 0.3153421757 | $297,619 | $297,619 | $93.85 | | |
| LIBCAP | Library Sno-Isle BOND (Cap Fac Imp Area) | 0.0543427938 | $297,619 | $297,619 | $16.17 | | |
| POCOUP | Port of Coupeville GEN | 0.1093371703 | $297,619 | $297,619 | $32.54 | | |
| POCOUPIDD | Port of Coupeville IDD | 0.3409740022 | $297,619 | $297,619 | $101.48 | | |
| COUPSDTECH | School 204 CP (TECH) | 0.7545480007 | $297,619 | $297,619 | $224.57 | | |
| SCH204MO | School 204 Enrichment | 0.6716186034 | $297,619 | $297,619 | $199.89 | | |
| ST | State School | 1.3035497053 | $297,619 | $297,619 | $387.96 | | |
| ST2 | State School Part 2 | 0.8169543533 | $297,619 | $297,619 | $243.14 | | |
| | Total Tax Rate: | 7.6592568070 | | | | | |
| | | | | Taxes w/Current Exemptions: | $2,279.54 | | |
| | | | | Taxes w/o Exemptions: | $2,279.54 | | |
Improvement / Building
| Improvement #1: | MANUFACTURED HOME | State Code: | Y | 1782.0 sqft | Value: | $107,619 |
| Bathrooms: | 0 | Bedrooms: | 0 | | Ceiling: | PLASTER PAINTED | Cooling: | EVAP NO DUCT | | Exterior Wall/Cover: | VINYL | Floor Covering: | CARPET 100% | | Floor Structure: | SLAB ON GRADE | Foundation: | SLAB | | Heating: | FHA ELECTRIC | Interior Finish: | PLASTER | | Plumbing Fixture Cnt: | 1 | Roof Slope: | FLAT | | Roof Structure/Cover: | CJ ALUMINIUM HEAVY |   |   |
|
| | Type | Description | Class CD | Sub Class CD | Year Built | Area |
| | BAS | BASE/MAIN FLOOR | 4 | 0 | 1988 | 1782.0 |
| | OWP | OPEN WOOD PORCH W/STEPS | 4 | 0 | 1988 | 48.0 |
| | OWP | OPEN WOOD PORCH W/STEPS | 4 | 0 | 1988 | 30.0 |
| | OWP | OPEN WOOD PORCH W/STEPS | 4 | 0 | 1988 | 95.0 |
| | OWC | OPEN WOOD PORCH W/STEPS/ROOF/C | 4 | 0 | 1988 | 25.0 |
Sketch
| No sketches available for this property. |
Property Image
Land
| 1 | 14 | SQ (08001-12000) | 0.2321 | 10110.28 | 0.00 | 0.00 | 1.00 | $190,000 | $0 |
Roll Value History
| 2026 | N/A | N/A | N/A | N/A | N/A |
| 2025 | $107,619 | $190,000 | $0 | $297,619 | $297,619 |
| 2024 | $55,082 | $180,000 | $0 | $235,082 | $235,082 |
| 2023 | $57,835 | $170,000 | $0 | $227,835 | $227,835 |
| 2022 | $54,865 | $160,000 | $0 | $214,865 | $214,865 |
| 2021 | $49,879 | $130,000 | $0 | $179,879 | $179,879 |
| 2020 | $50,523 | $120,000 | $0 | $170,523 | $170,523 |
| 2019 | $42,292 | $175,000 | $0 | $217,292 | $217,292 |
| 2018 | $38,868 | $135,000 | $0 | $173,868 | $173,868 |
| 2017 | $41,297 | $100,000 | $0 | $141,297 | $141,297 |
| 2016 | $42,916 | $115,000 | $0 | $157,916 | $157,916 |
| 2015 | $44,536 | $90,000 | $0 | $134,536 | $134,536 |
| 2014 | $46,155 | $95,000 | $0 | $141,155 | $141,155 |
| 2013 | $48,584 | $95,000 | $0 | $143,584 | $143,584 |
| 2012 | $53,748 | $106,250 | $0 | $159,998 | $159,998 |
| 2011 | $55,260 | $125,000 | $0 | $180,260 | $180,260 |
| 2010 | $49,511 | $125,000 | $0 | $174,511 | $174,511 |
| 2009 | $52,396 | $125,000 | $0 | $177,396 | $177,396 |
| 2008 | $53,230 | $133,000 | $0 | $186,230 | $186,230 |
| 2007 | $54,840 | $133,000 | $0 | $187,840 | $187,840 |
Deed and Sales History
| 1 | 04/03/2023 | MANHOME | Manufactured Home | ROSS, TAMARA D | SUNNY BY THE SOUND LLC | | | $0.00 | 56986 | |
| 2 | 03/16/2023 | QCD | Quit Claim Deed | ROSS, TAMARA D | SUNNY BY THE SOUND LLC | | | $0.00 | 56985 | 4560950 |
| 3 | 04/23/2020 | QCD | Quit Claim Deed | MCELRATH, PATRICK | MCELRATH, RENEE | | | $0.00 | 43253 | 4488290 |
| 4 | 06/04/2020 | WD | Warranty Deed | VERELLEN, PATRICIA A E | ROSS, TAMARA D | | | $180,000.00 | 43252 | 4488289 |
| 5 | 09/07/2018 | PRD | Personal Representatives Deed | MCENTEE, MARIA T | VERELLEN, PATRICIA A E | | | $0.00 | 35823 | 4451455 |
| 6 | 05/01/1996 | QCD | Quit Claim Deed | MCENTEE, MARIA T | MCENTEE, MARIA T | | | $0.00 | 61502 | 96007517 |
| 7 | 09/01/1995 | QCD | Quit Claim Deed | BARDZIK, MARY L | MCENTEE, MARIA T | | | $20,000.00 | 53265 | 95015002 |
| 8 | 03/01/1977 | EXECUTORD | Executor Deed | BARDZIK, MARY L | BARDZIK, MARY L | | | $8,000.00 | 70854 | 0 |
| 9 | 01/01/1900 | OTHER | Other - Misc. Documents | Unknown | BARDZIK, MARY L | | | $0.00 | 0 | 0 |
Payout Agreement
| No payout information available.. |