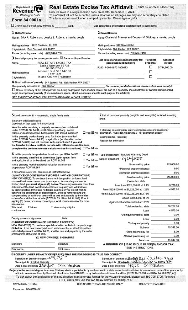
Property
Account |
| Property ID: | 30424 | Abbreviated Legal Description: | 14 - IN GL5:BG SE CR SEC 36 N1*E73.69' TPB N1*E180' N88 W647.76' S26*W62.03' S63* W252.3' S26*E621' S88*E894. 53' TPB TGW SUB TO EZ SP 75-62 LOT 32 |
| Geographic ID: | R13236-017-4920 | Agent Code: | |
| Type: | Real | | |
| Tax Area: | 312 - APPRAISER-Cpvl Schl Dist, outside Cpvl, improved, greater than 1 acre | Land Use Code | 11 |
| Open Space: | N | DFL | N |
| Historic Property: | N | Remodel Property: | N |
| Multi-Family Redevelopment: | N | | |
| Township: | 32 | Section: | 36 |
| Range: | R1 |
Location |
| Address: | 10 FAWN RUN PLACE COUPEVILLE, WA 98239 | Mapsco: | |
| Neighborhood: | Cycle 2 | Map ID: | 186 |
| Neighborhood CD: | 2 |
Owner |
| Name: | DOVER, RENNIE WILLIAM | Owner ID: | 313913 |
| Mailing Address: | CHERYL A DOVER 10 FAWN RUN PL COUPEVILLE, WA 98239 | % Ownership: | 100.0000000000% |
| | | Exemptions: | |
Taxes and Assessment Details
Values
| (+) Improvement Homesite Value: | + | $0 | |
| (+) Improvement Non-Homesite Value: | + | $542,025 | |
| (+) Land Homesite Value: | + | $0 | |
| (+) Land Non-Homesite Value: | + | $319,600 | |
| (+) Curr Use (HS): | + | $0 | $0 |
| (+) Curr Use (NHS): | + | $0 | $0 |
| | | -------------------------- | |
| (=) Market Value: | = | $861,625 | |
| (–) Productivity Loss: | – | $0 | |
| | | -------------------------- | |
| (=) Subtotal: | = | $861,625 | |
| (+) Senior Appraised Value: | + | $0 | |
| (+) Non-Senior Appraised Value: | + | $861,625 | |
| | | -------------------------- | |
| (=) Total Appraised Value: | = | $861,625 | |
| (–) Senior Exemption Loss: | – | $0 | |
| (–) Exemption Loss: | – | $0 | |
| | | -------------------------- | |
| (=) Taxable Value: | = | $861,625 | |
Taxing Jurisdiction
| Owner: | DOVER, RENNIE WILLIAM | | |
| % Ownership: | 100.0000000000% | | |
| Total Value: | $861,625 | | |
| Tax Area: | 312 - APPRAISER-Cpvl Schl Dist, outside Cpvl, improved, greater than 1 acre |
| CF | Conservation Futures | 0.0316035091 | $861,625 | $861,625 | $27.23 | | |
| CEM2 | Cemetery #2 | 0.0095056933 | $861,625 | $861,625 | $8.19 | | |
| FIRE5 | Fire & Rescue Dist #5 C Whidbey GEN | 1.2008080668 | $861,625 | $861,625 | $1,034.65 | | |
| FIRE5BOND | Fire & Rescue Dist #5 C Whidbey BOND | 0.1400090713 | $861,625 | $861,625 | $120.64 | | |
| HOBOND | Hospital BOND | 0.1910887512 | $861,625 | $861,625 | $164.65 | | |
| HOGEN | Hospital GEN | 0.3902502903 | $861,625 | $861,625 | $336.25 | | |
| CE | County Current Expense | 0.3708482477 | $861,625 | $861,625 | $319.53 | | |
| CR | County Roads | 0.4584763726 | $861,625 | $861,625 | $395.03 | | |
| ISLANDEMS | Hospital GEN (EMS) | 0.5000000000 | $861,625 | $861,625 | $430.81 | | |
| LIB | Library Sno-Isle GEN | 0.3153421757 | $861,625 | $861,625 | $271.71 | | |
| LIBCAP | Library Sno-Isle BOND (Cap Fac Imp Area) | 0.0543427938 | $861,625 | $861,625 | $46.82 | | |
| POCOUP | Port of Coupeville GEN | 0.1093371703 | $861,625 | $861,625 | $94.21 | | |
| POCOUPIDD | Port of Coupeville IDD | 0.3409740022 | $861,625 | $861,625 | $293.79 | | |
| COUPSDTECH | School 204 CP (TECH) | 0.7545480007 | $861,625 | $861,625 | $650.14 | | |
| SCH204MO | School 204 Enrichment | 0.6716186034 | $861,625 | $861,625 | $578.68 | | |
| ST | State School | 1.3035497053 | $861,625 | $861,625 | $1,123.17 | | |
| ST2 | State School Part 2 | 0.8169543533 | $861,625 | $861,625 | $703.91 | | |
| | Total Tax Rate: | 7.6592568070 | | | | | |
| | | | | Taxes w/Current Exemptions: | $6,599.41 | | |
| | | | | Taxes w/o Exemptions: | $6,599.41 | | |
Improvement / Building
| Improvement #1: | RESIDENTIAL | State Code: | Y | 3012.0 sqft | Value: | $542,025 |
| Bathrooms: | 3 | Bedrooms: | 3 | | Ceiling: | DRY WALL SPRAYED | Cooling: | HEAT PUMP/CONV/V | | Exterior Wall/Cover: | WOOD SIDING | Floor Covering: | CARPET/VINYL 80-20 | | Floor Structure: | WOOD W/SUBFLOOR | Foundation: | CONCRETE | | Interior Finish: | DRYWALL PAINT | Plumbing Fixture Cnt: | 13 | | Roof Slope: | 5" IN 12" | Roof Structure/Cover: | CJ ASPHALT |
|
| | Type | Description | Class CD | Sub Class CD | Year Built | Area |
| | BAS | BASE/MAIN FLOOR | 4 | 0 | 1976 | 3012.0 |
| | OP4 | OPEN PORCH W/CEILING-ROOF | 4 | 0 | 1976 | 180.0 |
| | AGR | ATTACHED GARAGE | 4 | 0 | 1976 | 576.0 |
| | OWP | OPEN WOOD PORCH W/STEPS | 4 | 0 | 1976 | 458.2 |
| | ENP | ENCLOSED PORCH | 4 | 0 | 1976 | 260.0 |
Sketch
Property Image
Land
| 1 | HS | HOMESITE | 1.0000 | 43560.00 | 0.00 | 0.00 | 1.00 | $270,000 | $0 |
| 2 | 91 | UNDEVELOPED LAND-METES AND BOUNDS | 2.0000 | 87120.00 | 0.00 | 0.00 | 1.00 | $49,600 | $0 |
Roll Value History
| 2026 | N/A | N/A | N/A | N/A | N/A |
| 2025 | $542,025 | $319,600 | $0 | $861,625 | $861,625 |
| 2024 | $548,778 | $340,000 | $0 | $888,778 | $888,778 |
| 2023 | $555,534 | $360,000 | $0 | $915,534 | $915,534 |
| 2022 | $509,175 | $280,000 | $0 | $789,175 | $789,175 |
| 2021 | $448,061 | $190,000 | $0 | $638,061 | $638,061 |
| 2020 | $437,297 | $170,000 | $0 | $607,297 | $607,297 |
| 2019 | $344,743 | $230,000 | $0 | $574,743 | $574,743 |
| 2018 | $340,349 | $230,000 | $0 | $570,349 | $570,349 |
| 2017 | $248,808 | $125,000 | $0 | $373,808 | $373,808 |
| 2016 | $252,467 | $120,000 | $0 | $372,467 | $372,467 |
| 2015 | $256,126 | $95,000 | $0 | $351,126 | $351,126 |
| 2014 | $259,784 | $95,000 | $0 | $354,784 | $354,784 |
| 2013 | $263,443 | $95,000 | $0 | $358,443 | $358,443 |
| 2012 | $252,467 | $123,250 | $0 | $375,717 | $375,717 |
| 2011 | $256,126 | $145,000 | $0 | $401,126 | $401,126 |
| 2010 | $271,258 | $145,000 | $0 | $416,258 | $416,258 |
| 2009 | $283,257 | $160,000 | $0 | $443,257 | $443,257 |
| 2008 | $287,033 | $160,000 | $0 | $447,033 | $447,033 |
| 2007 | $290,805 | $160,000 | $0 | $450,805 | $450,805 |
Deed and Sales History
| 1 | 09/09/2024 | WD | Warranty Deed | RHODES, PAUL | DOVER, RENNIE WILLIAM | | | $780,000.00 | 61293 | 4577191 |
| 2 | 09/13/2017 | WD | Warranty Deed | SCHWALIER, CHARLES D | RHODES, PAUL | | | $605,000.00 | 31070 | 4430116 |
| 3 | 12/08/2008 | WD | Warranty Deed | SCHWALIER, CHARLES D | SCHWALIER, CHARLES D | | | $0.00 | 83103 | 4241100 |
| 4 | 01/01/1900 | OTHER | Other - Misc. Documents | Unknown | SCHWALIER, CHARLES D | | | $0.00 | 57827 | 0 |
Payout Agreement
| No payout information available.. |