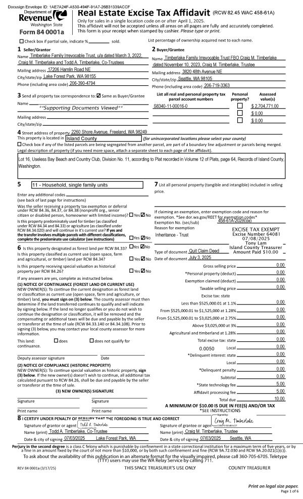
Property
Account |
| Property ID: | 30433 | Abbreviated Legal Description: | 15 - IN GL5: BG SECR SEC 36 N1*E253.69' TPB N88*W647.76 N26*E126.24' N16*W16.59' N83*E603.73' S1*W211.66' TPB TGW SUB EZ SP 75-62 LOT 33 |
| Geographic ID: | R13236-034-4980 | Agent Code: | |
| Type: | Real | | |
| Tax Area: | 312 - APPRAISER-Cpvl Schl Dist, outside Cpvl, improved, greater than 1 acre | Land Use Code | 11 |
| Open Space: | N | DFL | N |
| Historic Property: | N | Remodel Property: | N |
| Multi-Family Redevelopment: | N | | |
| Township: | 32 | Section: | 36 |
| Range: | R1 |
Location |
| Address: | 26 FAWN RUN PLACE COUPEVILLE, WA 98239 | Mapsco: | |
| Neighborhood: | Cycle 2 | Map ID: | 186 |
| Neighborhood CD: | 2 |
Owner |
| Name: | RIX, BARRY C & KATHRYN M | Owner ID: | 52240 |
| Mailing Address: | 26 FAWN RUN PLACE COUPEVILLE, WA 98239-9530 | % Ownership: | 100.0000000000% |
| | | Exemptions: | |
Taxes and Assessment Details
Values
| (+) Improvement Homesite Value: | + | $0 | |
| (+) Improvement Non-Homesite Value: | + | $816,789 | |
| (+) Land Homesite Value: | + | $0 | |
| (+) Land Non-Homesite Value: | + | $300,688 | |
| (+) Curr Use (HS): | + | $0 | $0 |
| (+) Curr Use (NHS): | + | $0 | $0 |
| | | -------------------------- | |
| (=) Market Value: | = | $1,117,477 | |
| (–) Productivity Loss: | – | $0 | |
| | | -------------------------- | |
| (=) Subtotal: | = | $1,117,477 | |
| (+) Senior Appraised Value: | + | $0 | |
| (+) Non-Senior Appraised Value: | + | $1,117,477 | |
| | | -------------------------- | |
| (=) Total Appraised Value: | = | $1,117,477 | |
| (–) Senior Exemption Loss: | – | $0 | |
| (–) Exemption Loss: | – | $0 | |
| | | -------------------------- | |
| (=) Taxable Value: | = | $1,117,477 | |
Taxing Jurisdiction
| Owner: | RIX, BARRY C & KATHRYN M | | |
| % Ownership: | 100.0000000000% | | |
| Total Value: | $1,117,477 | | |
| Tax Area: | 312 - APPRAISER-Cpvl Schl Dist, outside Cpvl, improved, greater than 1 acre |
| CF | Conservation Futures | 0.0316035091 | $1,117,477 | $1,117,477 | $35.32 | | |
| CEM2 | Cemetery #2 | 0.0095056933 | $1,117,477 | $1,117,477 | $10.62 | | |
| FIRE5 | Fire & Rescue Dist #5 C Whidbey GEN | 1.2008080668 | $1,117,477 | $1,117,477 | $1,341.88 | | |
| FIRE5BOND | Fire & Rescue Dist #5 C Whidbey BOND | 0.1400090713 | $1,117,477 | $1,117,477 | $156.46 | | |
| HOBOND | Hospital BOND | 0.1910887512 | $1,117,477 | $1,117,477 | $213.54 | | |
| HOGEN | Hospital GEN | 0.3902502903 | $1,117,477 | $1,117,477 | $436.10 | | |
| CE | County Current Expense | 0.3708482477 | $1,117,477 | $1,117,477 | $414.41 | | |
| CR | County Roads | 0.4584763726 | $1,117,477 | $1,117,477 | $512.34 | | |
| ISLANDEMS | Hospital GEN (EMS) | 0.5000000000 | $1,117,477 | $1,117,477 | $558.74 | | |
| LIB | Library Sno-Isle GEN | 0.3153421757 | $1,117,477 | $1,117,477 | $352.39 | | |
| LIBCAP | Library Sno-Isle BOND (Cap Fac Imp Area) | 0.0543427938 | $1,117,477 | $1,117,477 | $60.73 | | |
| POCOUP | Port of Coupeville GEN | 0.1093371703 | $1,117,477 | $1,117,477 | $122.18 | | |
| POCOUPIDD | Port of Coupeville IDD | 0.3409740022 | $1,117,477 | $1,117,477 | $381.03 | | |
| COUPSDTECH | School 204 CP (TECH) | 0.7545480007 | $1,117,477 | $1,117,477 | $843.19 | | |
| SCH204MO | School 204 Enrichment | 0.6716186034 | $1,117,477 | $1,117,477 | $750.52 | | |
| ST | State School | 1.3035497053 | $1,117,477 | $1,117,477 | $1,456.69 | | |
| ST2 | State School Part 2 | 0.8169543533 | $1,117,477 | $1,117,477 | $912.93 | | |
| | Total Tax Rate: | 7.6592568070 | | | | | |
| | | | | Taxes w/Current Exemptions: | $8,559.07 | | |
| | | | | Taxes w/o Exemptions: | $8,559.07 | | |
Improvement / Building
| Improvement #1: | RESIDENTIAL | State Code: | Y | 3837.5 sqft | Value: | $816,789 |
| Bathrooms: | 2.5 | Bedrooms: | 2 | | Ceiling: | BEAM PAINTED | Exterior Wall/Cover: | STUCCO | | Floor Covering: | TILE CERAMIC | Floor Structure: | WOOD W/SUBFLOOR | | Foundation: | CONCRETE | Heating: | RADIANT FLOOR | | Interior Finish: | DRYWALL PAINT | Plumbing Fixture Cnt: | 14 | | Roof Slope: | 6" IN 12" | Roof Structure/Cover: | BEAM ASPHALT |
|
| | Type | Description | Class CD | Sub Class CD | Year Built | Area |
| | BAS | BASE/MAIN FLOOR | 4 | 0 | 2002 | 3612.5 |
| | OP1 | OPEN PORCH SLAB | 4 | 0 | 2002 | 168.0 |
| | ENP | ENCLOSED PORCH | 4 | 0 | 2002 | 160.0 |
| | AGR | ATTACHED GARAGE | 4 | 0 | 2002 | 1668.0 |
| | UPS | UPPER STORY | 4 | 0 | 2002 | 225.0 |
| | OWP | OPEN WOOD PORCH W/STEPS | 4 | 0 | 2002 | 879.7 |
| | ENP | ENCLOSED PORCH | 4 | 0 | 2002 | 196.0 |
| | UTY | STORAGE/UTILITY | 4 | 0 | 2002 | 68.0 |
| | UTY | STORAGE/UTILITY | 4 | 0 | 2002 | 108.0 |
Sketch
| No sketches available for this property. |
Property Image
Land
| 1 | HS | HOMESITE | 1.0000 | 43560.00 | 0.00 | 0.00 | 1.00 | $270,000 | $0 |
| 2 | 91 | UNDEVELOPED LAND-METES AND BOUNDS | 1.4000 | 60984.00 | 0.00 | 0.00 | 1.00 | $30,688 | $0 |
Roll Value History
| 2026 | N/A | N/A | N/A | N/A | N/A |
| 2025 | $816,789 | $300,688 | $0 | $1,117,477 | $1,117,477 |
| 2024 | $793,196 | $340,000 | $0 | $1,133,196 | $1,133,196 |
| 2023 | $802,842 | $360,000 | $0 | $1,162,842 | $1,162,842 |
| 2022 | $735,675 | $280,000 | $0 | $1,015,675 | $1,015,675 |
| 2021 | $647,312 | $190,000 | $0 | $837,312 | $837,312 |
| 2020 | $632,585 | $170,000 | $0 | $802,585 | $802,585 |
| 2019 | $520,757 | $230,000 | $0 | $750,757 | $750,757 |
| 2018 | $497,782 | $230,000 | $0 | $727,782 | $727,782 |
| 2017 | $500,762 | $175,000 | $0 | $675,762 | $675,762 |
| 2016 | $506,725 | $150,000 | $0 | $656,725 | $656,725 |
| 2015 | $512,686 | $120,000 | $0 | $632,686 | $632,686 |
| 2014 | $518,647 | $120,000 | $0 | $638,647 | $638,647 |
| 2013 | $524,610 | $120,000 | $0 | $644,610 | $644,610 |
| 2012 | $540,199 | $123,250 | $0 | $663,449 | $663,449 |
| 2011 | $546,211 | $145,000 | $0 | $691,211 | $691,211 |
| 2010 | $573,623 | $145,000 | $0 | $718,623 | $718,623 |
| 2009 | $591,688 | $160,000 | $0 | $751,688 | $751,688 |
| 2008 | $598,592 | $160,000 | $0 | $758,592 | $758,592 |
| 2007 | $611,564 | $160,000 | $0 | $771,564 | $771,564 |
Deed and Sales History
| 1 | 03/01/1993 | WD | Warranty Deed | RIX, BARRY C | RIX, BARRY C | | | $0.00 | 30939 | 93004949 |
| 2 | 06/01/1992 | WD | Warranty Deed | SMITH, ARNOLD J | RIX, BARRY C | | | $74,000.00 | 22348 | 92011369 |
| 3 | 01/01/1900 | OTHER | Other - Misc. Documents | Unknown | SMITH, ARNOLD J | | | $0.00 | 57281 | 0 |
Payout Agreement
| No payout information available.. |