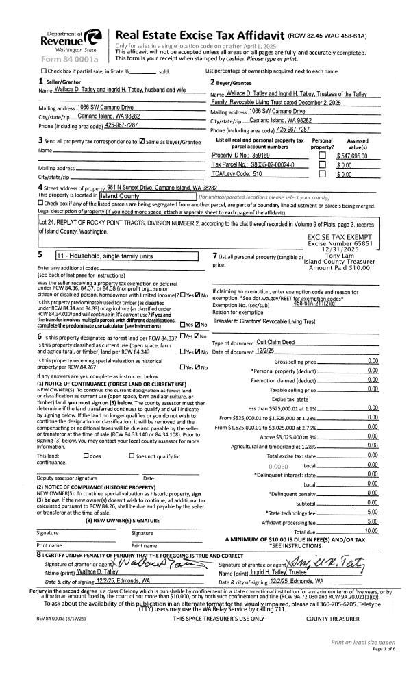
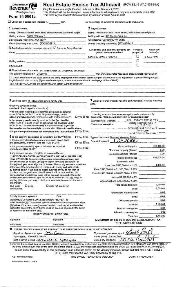
Property
Account |
| Property ID: | 304469 | Abbreviated Legal Description: | LIGHTHSE SH LOT 22 BLK 1 & N1/2 LOT 23 BLK 1 1/124 INT IN RES A LHS 2 & 3 |
| Geographic ID: | S7375-00-01022-0 | Agent Code: | |
| Type: | Real | | |
| Tax Area: | 710 - APPRAISER-S Whid Schl Dist, outside Langley, improved & 1 acre or less | Land Use Code | 11 |
| Open Space: | N | DFL | N |
| Historic Property: | N | Remodel Property: | N |
| Multi-Family Redevelopment: | N | | |
| Township: | | Section: | |
| Range: | |
Location |
| Address: | 4965 POINTE PLACE FREELAND, WA 98249 | Mapsco: | |
| Neighborhood: | Cycle 3 | Map ID: | 300 |
| Neighborhood CD: | 3 |
Owner |
| Name: | MARTIN, LEAH JEAN | Owner ID: | 314777 |
| Mailing Address: | MELISSA ANNE LESCHUCK MATTHEW CLAYTON LESCHUCK 6029 CENTRAL DR MUKILTEO, WA 98275 | % Ownership: | 100.0000000000% |
| | | Exemptions: | |
Taxes and Assessment Details
Values
| (+) Improvement Homesite Value: | + | $0 | |
| (+) Improvement Non-Homesite Value: | + | $133,159 | |
| (+) Land Homesite Value: | + | $0 | |
| (+) Land Non-Homesite Value: | + | $290,000 | |
| (+) Curr Use (HS): | + | $0 | $0 |
| (+) Curr Use (NHS): | + | $0 | $0 |
| | | -------------------------- | |
| (=) Market Value: | = | $423,159 | |
| (–) Productivity Loss: | – | $0 | |
| | | -------------------------- | |
| (=) Subtotal: | = | $423,159 | |
| (+) Senior Appraised Value: | + | $0 | |
| (+) Non-Senior Appraised Value: | + | $423,159 | |
| | | -------------------------- | |
| (=) Total Appraised Value: | = | $423,159 | |
| (–) Senior Exemption Loss: | – | $0 | |
| (–) Exemption Loss: | – | $0 | |
| | | -------------------------- | |
| (=) Taxable Value: | = | $423,159 | |
Taxing Jurisdiction
| Owner: | MARTIN, LEAH JEAN | | |
| % Ownership: | 100.0000000000% | | |
| Total Value: | $423,159 | | |
| Tax Area: | 710 - APPRAISER-S Whid Schl Dist, outside Langley, improved & 1 acre or less |
| CF | Conservation Futures | 0.0316035091 | $423,159 | $423,159 | $13.37 | | |
| FIRE3 | Fire & Rescue Dist #3 S Whidbey GEN | 1.2004855531 | $423,159 | $423,159 | $508.00 | | |
| HOBOND | Hospital BOND | 0.1910887512 | $423,159 | $423,159 | $80.86 | | |
| HOGEN | Hospital GEN | 0.3902502903 | $423,159 | $423,159 | $165.14 | | |
| CE | County Current Expense | 0.3708482477 | $423,159 | $423,159 | $156.93 | | |
| CR | County Roads | 0.4584763726 | $423,159 | $423,159 | $194.01 | | |
| ISLANDEMS | Hospital GEN (EMS) | 0.5000000000 | $423,159 | $423,159 | $211.58 | | |
| LIB | Library Sno-Isle GEN | 0.3153421757 | $423,159 | $423,159 | $133.44 | | |
| PORTWHID | Port of S Whidbey GEN | 0.1094540357 | $423,159 | $423,159 | $46.32 | | |
| SCH206BOND | School 206 BOND | 0.3161759235 | $423,159 | $423,159 | $133.79 | | |
| SCH206MO | School 206 Enrichment | 0.4547169547 | $423,159 | $423,159 | $192.42 | | |
| ST | State School | 1.3035497053 | $423,159 | $423,159 | $551.61 | | |
| ST2 | State School Part 2 | 0.8169543533 | $423,159 | $423,159 | $345.70 | | |
| SWHIDPRBD | P & R S Whidbey BOND | 0.0152817568 | $423,159 | $423,159 | $6.47 | | |
| SWHIDPRBD2 | P & R S Whidbey BOND2 | 0.0138911264 | $423,159 | $423,159 | $5.88 | | |
| SWHIDPRMT | P & R S Whidbey GEN | 0.2053334452 | $423,159 | $423,159 | $86.89 | | |
| | Total Tax Rate: | 6.6934522006 | | | | | |
| | | | | Taxes w/Current Exemptions: | $2,832.41 | | |
| | | | | Taxes w/o Exemptions: | $2,832.41 | | |
Improvement / Building
| Improvement #1: | RESIDENTIAL | State Code: | Y | 965.9 sqft | Value: | $133,159 |
| Bathrooms: | 1 | Bedrooms: | 1 | | Ceiling: | DRY WALL SPRAYED | Exterior Wall/Cover: | VINYL | | Floor Covering: | CARPET/VINYL 80-20 | Floor Structure: | WOOD W/SUBFLOOR | | Foundation: | CONCRETE BLOCKS | Heating: | BASEBOARD ELECTRIC | | Interior Finish: | DRYWALL PAINT | Plumbing Fixture Cnt: | 6 | | Roof Slope: | 3" IN 12" | Roof Structure/Cover: | CJ BUILT-UP ROCK |
|
| | Type | Description | Class CD | Sub Class CD | Year Built | Area |
| | BAS | BASE/MAIN FLOOR | 3 | 0 | 1963 | 965.9 |
| | DGR | DETACHED GARAGE | 3 | 0 | 1963 | 280.0 |
| | OCP | OPEN CARPORT | 3 | 0 | 1963 | 220.0 |
| | OWP | OPEN WOOD PORCH W/STEPS | 3 | 0 | 1963 | 205.3 |
Sketch
Property Image
Land
| 1 | 13 | SQ (06001-08000) | 0.0000 | 0.00 | 0.00 | 0.00 | 1.00 | $290,000 | $0 |
Roll Value History
| 2026 | N/A | N/A | N/A | N/A | N/A |
| 2025 | $133,159 | $290,000 | $0 | $423,159 | $423,159 |
| 2024 | $138,280 | $260,000 | $0 | $398,280 | $398,280 |
| 2023 | $140,575 | $260,000 | $0 | $400,575 | $400,575 |
| 2022 | $129,375 | $210,000 | $0 | $339,375 | $339,375 |
| 2021 | $114,304 | $170,000 | $0 | $284,304 | $284,304 |
| 2020 | $111,744 | $170,000 | $0 | $281,744 | $281,744 |
| 2019 | $60,785 | $200,000 | $0 | $260,785 | $260,785 |
| 2018 | $61,055 | $150,000 | $0 | $211,055 | $211,055 |
| 2017 | $61,595 | $150,000 | $0 | $211,595 | $211,595 |
| 2016 | $62,675 | $150,000 | $0 | $212,675 | $212,675 |
| 2015 | $63,757 | $150,000 | $0 | $213,757 | $213,757 |
| 2014 | $64,837 | $150,000 | $0 | $214,837 | $214,837 |
| 2013 | $65,448 | $119,000 | $0 | $184,448 | $184,448 |
| 2012 | $66,506 | $119,000 | $0 | $185,506 | $185,506 |
| 2011 | $67,562 | $140,000 | $0 | $207,562 | $207,562 |
| 2010 | $78,775 | $140,000 | $0 | $218,775 | $218,775 |
| 2009 | $81,178 | $190,000 | $0 | $271,178 | $271,178 |
| 2008 | $82,383 | $190,000 | $0 | $272,383 | $272,383 |
| 2007 | $70,573 | $190,000 | $0 | $260,573 | $260,573 |
Deed and Sales History
| 1 | 07/25/2025 | QCD | Quit Claim Deed | MARTIN, LEAH JEAN | CLAUDIA'S BEACH HOUSE, LLC | | | $0.00 | 64452 | 4589457 |
| 2 | 12/03/2024 | PRD | Personal Representatives Deed | LEAH JEAN MARTIN PR | MARTIN, LEAH JEAN | | | $0.00 | 62015 | 4580173 |
| 3 | 08/15/2011 | WD | Warranty Deed | CHASE, SCOTT E | LESCHUCK, CLAUDIA | | | $255,000.00 | 5371 | 4300250 |
| 4 | 12/13/2010 | QCD | Quit Claim Deed | CHASE, SCOTT E | CHASE, SCOTT E | | | $0.00 | 5290 | 4299810 |
| 5 | 04/20/2007 | WD | Warranty Deed | ARNHART, EVELYN M | CHASE, SCOTT E | | | $283,000.00 | 71327 | 4200413 |
| 6 | 11/01/1988 | OTHER | Other - Misc. Documents | MCNIVEN, EVELYN | ARNHART, EVELYN M | | | $0.00 | 62945 | 0 |
| 7 | 01/01/1900 | OTHER | Other - Misc. Documents | Unknown | MCNIVEN, EVELYN | | | $0.00 | 0 | 0 |
Payout Agreement
| No payout information available.. |