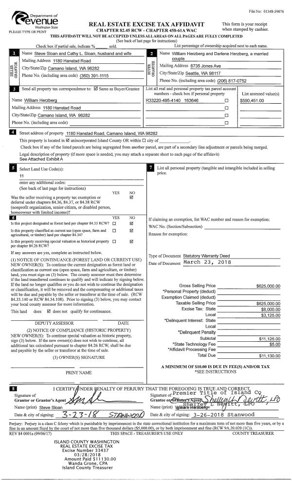
Property
Account |
| Property ID: | 304646 | Abbreviated Legal Description: | Lighthouse Shores - 1,s Lot 7,s Blk 2;s LOT B BLA 352-16 AF#4413595s |
| Geographic ID: | S7375-00-02007-0 | Agent Code: | |
| Type: | Real | | |
| Tax Area: | 710 - APPRAISER-S Whid Schl Dist, outside Langley, improved & 1 acre or less | Land Use Code | 11 |
| Open Space: | N | DFL | N |
| Historic Property: | N | Remodel Property: | N |
| Multi-Family Redevelopment: | N | | |
| Township: | | Section: | |
| Range: | |
Location |
| Address: | 221 LIGHTHOUSE WAY FREELAND, WA 98249 | Mapsco: | |
| Neighborhood: | Cycle 3 | Map ID: | 300 |
| Neighborhood CD: | 3 |
Owner |
| Name: | SHOUP, DAVID EDWARD | Owner ID: | 283995 |
| Mailing Address: | MOLLY SUE SHOUP 900 UNIVERSITY ST #1901 SEATTLE, WA 98101 | % Ownership: | 100.0000000000% |
| | | Exemptions: | |
Taxes and Assessment Details
Values
| (+) Improvement Homesite Value: | + | $0 | |
| (+) Improvement Non-Homesite Value: | + | $56,886 | |
| (+) Land Homesite Value: | + | $0 | |
| (+) Land Non-Homesite Value: | + | $290,000 | |
| (+) Curr Use (HS): | + | $0 | $0 |
| (+) Curr Use (NHS): | + | $0 | $0 |
| | | -------------------------- | |
| (=) Market Value: | = | $346,886 | |
| (–) Productivity Loss: | – | $0 | |
| | | -------------------------- | |
| (=) Subtotal: | = | $346,886 | |
| (+) Senior Appraised Value: | + | $0 | |
| (+) Non-Senior Appraised Value: | + | $346,886 | |
| | | -------------------------- | |
| (=) Total Appraised Value: | = | $346,886 | |
| (–) Senior Exemption Loss: | – | $0 | |
| (–) Exemption Loss: | – | $0 | |
| | | -------------------------- | |
| (=) Taxable Value: | = | $346,886 | |
Taxing Jurisdiction
| Owner: | SHOUP, DAVID EDWARD | | |
| % Ownership: | 100.0000000000% | | |
| Total Value: | $346,886 | | |
| Tax Area: | 710 - APPRAISER-S Whid Schl Dist, outside Langley, improved & 1 acre or less |
| CF | Conservation Futures | 0.0316035091 | $346,886 | $346,886 | $10.96 | | |
| FIRE3 | Fire & Rescue Dist #3 S Whidbey GEN | 1.2004855531 | $346,886 | $346,886 | $416.43 | | |
| HOBOND | Hospital BOND | 0.1910887512 | $346,886 | $346,886 | $66.29 | | |
| HOGEN | Hospital GEN | 0.3902502903 | $346,886 | $346,886 | $135.37 | | |
| CE | County Current Expense | 0.3708482477 | $346,886 | $346,886 | $128.64 | | |
| CR | County Roads | 0.4584763726 | $346,886 | $346,886 | $159.04 | | |
| ISLANDEMS | Hospital GEN (EMS) | 0.5000000000 | $346,886 | $346,886 | $173.44 | | |
| LIB | Library Sno-Isle GEN | 0.3153421757 | $346,886 | $346,886 | $109.39 | | |
| PORTWHID | Port of S Whidbey GEN | 0.1094540357 | $346,886 | $346,886 | $37.97 | | |
| SCH206BOND | School 206 BOND | 0.3161759235 | $346,886 | $346,886 | $109.68 | | |
| SCH206MO | School 206 Enrichment | 0.4547169547 | $346,886 | $346,886 | $157.73 | | |
| ST | State School | 1.3035497053 | $346,886 | $346,886 | $452.18 | | |
| ST2 | State School Part 2 | 0.8169543533 | $346,886 | $346,886 | $283.39 | | |
| SWHIDPRBD | P & R S Whidbey BOND | 0.0152817568 | $346,886 | $346,886 | $5.30 | | |
| SWHIDPRBD2 | P & R S Whidbey BOND2 | 0.0138911264 | $346,886 | $346,886 | $4.82 | | |
| SWHIDPRMT | P & R S Whidbey GEN | 0.2053334452 | $346,886 | $346,886 | $71.23 | | |
| | Total Tax Rate: | 6.6934522006 | | | | | |
| | | | | Taxes w/Current Exemptions: | $2,321.86 | | |
| | | | | Taxes w/o Exemptions: | $2,321.86 | | |
Improvement / Building
| Improvement #1: | MANUFACTURED HOME | State Code: | Y | 1152.0 sqft | Value: | $56,886 |
| Bathrooms: | 0 | Bedrooms: | 0 | | Ceiling: | PLASTER PAINTED | Cooling: | EVAP NO DUCT | | Exterior Wall/Cover: | PLY/HARDBOARD T-111 | Floor Covering: | CARPET 100% | | Floor Structure: | WOOD W/SUBFLOOR | Foundation: | CONCRETE | | Heating: | FHA ELECTRIC | Interior Finish: | PLASTER | | Plumbing Fixture Cnt: | 1 | Roof Slope: | 3" IN 12" | | Roof Structure/Cover: | CJ ASPHALT |   |   |
|
| | Type | Description | Class CD | Sub Class CD | Year Built | Area |
| | BAS | BASE/MAIN FLOOR | 3 | 0 | 1978 | 1152.0 |
| | OWP | OPEN WOOD PORCH W/STEPS | 3 | 0 | 1978 | 446.0 |
| | UTY | STORAGE/UTILITY | 3 | 0 | 1978 | 252.0 |
| | OCP | OPEN CARPORT | 3 | 0 | 1978 | 360.0 |
Sketch
Property Image
Land
| 1 | 13 | SQ (06001-08000) | 0.1700 | 7405.20 | 0.00 | 0.00 | 1.00 | $290,000 | $0 |
Roll Value History
| 2026 | N/A | N/A | N/A | N/A | N/A |
| 2025 | $56,886 | $290,000 | $0 | $346,886 | $346,886 |
| 2024 | $59,360 | $260,000 | $0 | $319,360 | $319,360 |
| 2023 | $63,069 | $260,000 | $0 | $323,069 | $323,069 |
| 2022 | $59,352 | $210,000 | $0 | $269,352 | $269,352 |
| 2021 | $53,553 | $170,000 | $0 | $223,553 | $223,553 |
| 2020 | $53,890 | $170,000 | $0 | $223,890 | $223,890 |
| 2019 | $44,677 | $200,000 | $0 | $244,677 | $244,677 |
| 2018 | $46,166 | $130,000 | $0 | $176,166 | $176,166 |
| 2017 | $32,424 | $120,000 | $0 | $152,424 | $152,424 |
| 2016 | $33,510 | $100,000 | $0 | $133,510 | $133,510 |
| 2015 | $34,596 | $100,000 | $0 | $134,596 | $134,596 |
| 2014 | $36,225 | $85,000 | $0 | $121,225 | $121,225 |
| 2013 | $51,133 | $85,000 | $0 | $136,133 | $136,133 |
| 2012 | $52,219 | $85,000 | $0 | $137,219 | $137,219 |
| 2011 | $53,305 | $100,000 | $0 | $153,305 | $153,305 |
| 2010 | $50,388 | $100,000 | $0 | $150,388 | $150,388 |
| 2009 | $52,531 | $149,511 | $0 | $202,042 | $202,042 |
| 2008 | $37,286 | $150,000 | $0 | $187,286 | $187,286 |
| 2007 | $38,504 | $150,000 | $0 | $188,504 | $188,504 |
Deed and Sales History
| 1 | 02/07/2018 | WD | Warranty Deed | JOHNSON, JANE T | SHOUP, DAVID EDWARD | | | $249,000.00 | 32921 | 4439084 |
| 2 | 02/08/2018 | QCD | Quit Claim Deed | SHOUP, DAVID EDWARD | | | | | 32920 | 4439083 |
| 3 | 07/24/2008 | WD | Warranty Deed | BOYD, PATRICIA A | JOHNSON, JANE T | | | $210,000.00 | 81958 | 4233659 |
| 4 | 09/10/1999 | EXECUTORD | Executor Deed | BOYD, RALPH E | BOYD, PATRICIA A | | | $0.00 | 93956 | 99021962 |
| 5 | 09/01/1992 | OTHER | Other - Misc. Documents | FRANK, WILMA M | BOYD, RALPH E | | | $0.00 | 23795 | 0 |
| 6 | 09/01/1988 | OTHER | Other - Misc. Documents | BOYD, RALPH E | FRANK, WILMA M | | | $0.00 | 62878 | 0 |
| 7 | 09/01/1988 | WD | Warranty Deed | FRANK, LLOYD | BOYD, RALPH E | | | $0.00 | 82626 | 88009911 |
| 8 | 01/01/1900 | OTHER | Other - Misc. Documents | Unknown | FRANK, LLOYD | | | $20,800.00 | 0 | 0 |
| 9 | 01/01/1900 | OTHER | Other - Misc. Documents | FRANK, LLOYD | FRANK, LLOYD | | | $0.00 | 0 | 0 |
Payout Agreement
| No payout information available.. |