Property
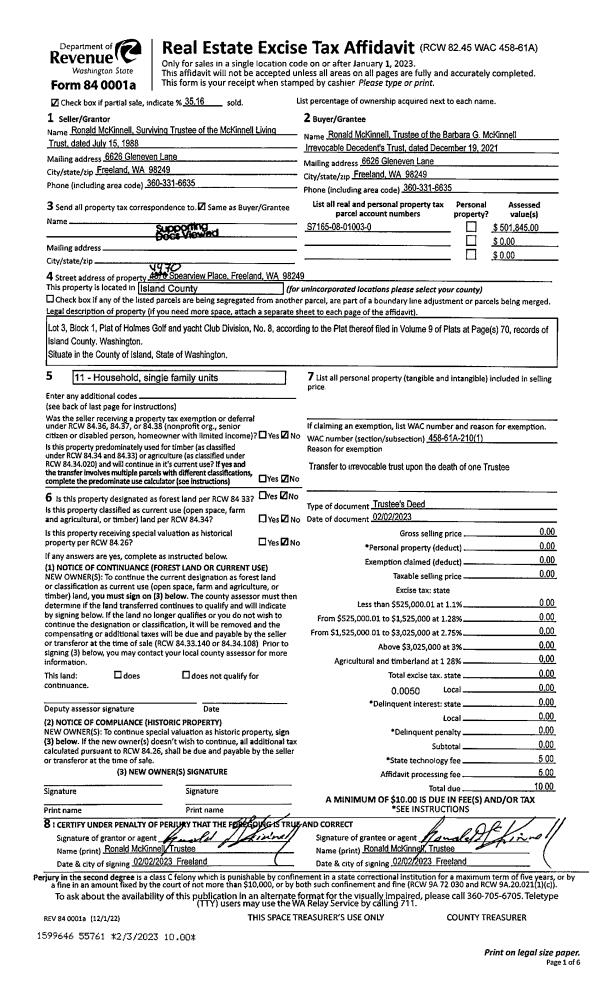
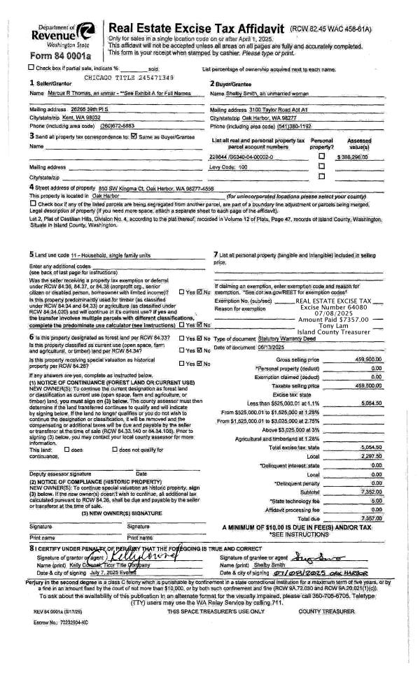
Account |
| Property ID: | 30497 | Abbreviated Legal Description: | 16 - IN GL5: BG SECR SEC 36 N1*E465.35' TPB S83*W603.73 N16*W70' N61*E TO NE LN GL5 SELY ALG NE LN TO ELN SEC 36 S1*W TPB TGW SUB EZ INCL ADJ TIDES (TR 34 UNREC PHEASANT FARM ACRES) SP 75-62 LOT 34 |
| Geographic ID: | R13236-050-4990 | Agent Code: | |
| Type: | Real | | |
| Tax Area: | 312 - APPRAISER-Cpvl Schl Dist, outside Cpvl, improved, greater than 1 acre | Land Use Code | 11 |
| Open Space: | N | DFL | N |
| Historic Property: | N | Remodel Property: | N |
| Multi-Family Redevelopment: | N | | |
| Township: | 32 | Section: | 36 |
| Range: | R1 |
Location |
| Address: | 38 FAWN RUN PLACE COUPEVILLE, WA 98239 | Mapsco: | |
| Neighborhood: | Area 2 Waterfront Eastside Res | Map ID: | 186 |
| Neighborhood CD: | 2WFTE01R |
Owner |
| Name: | THOM TTEE, RICHARD D | Owner ID: | 305785 |
| Mailing Address: | PO BOX 326 COUPEVILLE, WA 98239 | % Ownership: | 100.0000000000% |
| | | Exemptions: | |
Taxes and Assessment Details
Values
| (+) Improvement Homesite Value: | + | $0 | |
| (+) Improvement Non-Homesite Value: | + | $475,342 | |
| (+) Land Homesite Value: | + | $0 | |
| (+) Land Non-Homesite Value: | + | $576,200 | |
| (+) Curr Use (HS): | + | $0 | $0 |
| (+) Curr Use (NHS): | + | $0 | $0 |
| | | -------------------------- | |
| (=) Market Value: | = | $1,051,542 | |
| (–) Productivity Loss: | – | $0 | |
| | | -------------------------- | |
| (=) Subtotal: | = | $1,051,542 | |
| (+) Senior Appraised Value: | + | $0 | |
| (+) Non-Senior Appraised Value: | + | $1,051,542 | |
| | | -------------------------- | |
| (=) Total Appraised Value: | = | $1,051,542 | |
| (–) Senior Exemption Loss: | – | $0 | |
| (–) Exemption Loss: | – | $0 | |
| | | -------------------------- | |
| (=) Taxable Value: | = | $1,051,542 | |
Taxing Jurisdiction
| Owner: | THOM TTEE, RICHARD D | | |
| % Ownership: | 100.0000000000% | | |
| Total Value: | $1,051,542 | | |
| Tax Area: | 312 - APPRAISER-Cpvl Schl Dist, outside Cpvl, improved, greater than 1 acre |
| CF | Conservation Futures | 0.0316035091 | $1,051,542 | $1,051,542 | $33.23 | | |
| CEM2 | Cemetery #2 | 0.0095056933 | $1,051,542 | $1,051,542 | $10.00 | | |
| FIRE5 | Fire & Rescue Dist #5 C Whidbey GEN | 1.2008080668 | $1,051,542 | $1,051,542 | $1,262.70 | | |
| FIRE5BOND | Fire & Rescue Dist #5 C Whidbey BOND | 0.1400090713 | $1,051,542 | $1,051,542 | $147.23 | | |
| HOBOND | Hospital BOND | 0.1910887512 | $1,051,542 | $1,051,542 | $200.94 | | |
| HOGEN | Hospital GEN | 0.3902502903 | $1,051,542 | $1,051,542 | $410.36 | | |
| CE | County Current Expense | 0.3708482477 | $1,051,542 | $1,051,542 | $389.96 | | |
| CR | County Roads | 0.4584763726 | $1,051,542 | $1,051,542 | $482.11 | | |
| ISLANDEMS | Hospital GEN (EMS) | 0.5000000000 | $1,051,542 | $1,051,542 | $525.77 | | |
| LIB | Library Sno-Isle GEN | 0.3153421757 | $1,051,542 | $1,051,542 | $331.60 | | |
| LIBCAP | Library Sno-Isle BOND (Cap Fac Imp Area) | 0.0543427938 | $1,051,542 | $1,051,542 | $57.14 | | |
| POCOUP | Port of Coupeville GEN | 0.1093371703 | $1,051,542 | $1,051,542 | $114.97 | | |
| POCOUPIDD | Port of Coupeville IDD | 0.3409740022 | $1,051,542 | $1,051,542 | $358.55 | | |
| COUPSDTECH | School 204 CP (TECH) | 0.7545480007 | $1,051,542 | $1,051,542 | $793.44 | | |
| SCH204MO | School 204 Enrichment | 0.6716186034 | $1,051,542 | $1,051,542 | $706.24 | | |
| ST | State School | 1.3035497053 | $1,051,542 | $1,051,542 | $1,370.74 | | |
| ST2 | State School Part 2 | 0.8169543533 | $1,051,542 | $1,051,542 | $859.06 | | |
| | Total Tax Rate: | 7.6592568070 | | | | | |
| | | | | Taxes w/Current Exemptions: | $8,054.04 | | |
| | | | | Taxes w/o Exemptions: | $8,054.04 | | |
Improvement / Building
| Improvement #1: | RESIDENTIAL | State Code: | Y | 2805.5 sqft | Value: | $475,342 |
| Bathrooms: | 2.5 | Bedrooms: | 3 | | Ceiling: | BEAM PAINTED | Exterior Wall/Cover: | WOOD SIDING | | Floor Covering: | CERAMIC TILE/CPT 40-60 | Floor Structure: | WOOD W/SUBFLOOR | | Foundation: | CONCRETE | Heating: | FHA ELECTRIC | | Interior Finish: | DRYWALL PAINT | Plumbing Fixture Cnt: | 11 | | Roof Slope: | FLAT | Roof Structure/Cover: | BEAM BUILT-UP ROCK |
|
| | Type | Description | Class CD | Sub Class CD | Year Built | Area |
| | BAS | BASE/MAIN FLOOR | 4 | 0 | 1980 | 1057.6 |
| | OP4 | OPEN PORCH W/CEILING-ROOF | 4 | 0 | 1980 | 69.1 |
| | AGR | ATTACHED GARAGE | 4 | 0 | 1980 | 519.2 |
| | UPS | UPPER STORY | 4 | 0 | 1980 | 690.3 |
| | BAW | BALCONY WOOD RAIL | 4 | 0 | 1980 | 100.6 |
| | OWP | OPEN WOOD PORCH W/STEPS | 4 | 0 | 1980 | 335.5 |
| | OWP | OPEN WOOD PORCH W/STEPS | 4 | 0 | 1980 | 125.8 |
| | DWN | DOWNSTAIRS LIVING AREA | 4 | 0 | 1980 | 1057.6 |
Sketch
Property Image
Land
| 1 | 55 | TIDES | 1.5900 | 69260.40 | 120.00 | 0.00 | 1.00 | $1,200 | $0 |
| 2 | HB | HIGH BLUFF | 0.0000 | 0.00 | 191.00 | 0.00 | 1.00 | $575,000 | $0 |
Roll Value History
| 2026 | N/A | N/A | N/A | N/A | N/A |
| 2025 | $475,342 | $576,200 | $0 | $1,051,542 | $1,051,542 |
| 2024 | $455,011 | $526,200 | $0 | $981,211 | $981,211 |
| 2023 | $461,398 | $526,200 | $0 | $987,598 | $987,598 |
| 2022 | $423,585 | $481,200 | $0 | $904,785 | $904,785 |
| 2021 | $373,379 | $401,200 | $0 | $774,579 | $774,579 |
| 2020 | $365,187 | $376,200 | $0 | $741,387 | $741,387 |
| 2019 | $285,163 | $401,200 | $0 | $686,363 | $686,363 |
| 2018 | $256,181 | $401,200 | $0 | $657,381 | $657,381 |
| 2017 | $257,937 | $351,200 | $0 | $609,137 | $609,137 |
| 2016 | $261,676 | $351,200 | $0 | $612,876 | $612,876 |
| 2015 | $265,415 | $351,200 | $0 | $616,615 | $616,615 |
| 2014 | $269,152 | $351,200 | $0 | $620,352 | $620,352 |
| 2013 | $272,890 | $352,391 | $0 | $625,281 | $625,281 |
| 2012 | $269,152 | $352,391 | $0 | $621,543 | $621,543 |
| 2011 | $272,890 | $352,391 | $0 | $625,281 | $625,281 |
| 2010 | $286,498 | $352,391 | $0 | $638,889 | $638,889 |
| 2009 | $295,258 | $409,703 | $0 | $704,961 | $704,961 |
| 2008 | $299,003 | $409,703 | $0 | $708,706 | $708,706 |
| 2007 | $302,749 | $408,863 | $0 | $711,612 | $711,612 |
Deed and Sales History
| 1 | 09/06/2022 | QCD | Quit Claim Deed | THOM TTEE, RICHARD D | THOM TTEE, RICHARD D | | | $0.00 | 54458 | 4550885 |
| 2 | 09/06/2022 | PRD | Personal Representatives Deed | THOM, RICHARD D | THOM TTEE, RICHARD D | | | $0.00 | 54457 | 4550882 |
| 3 | 07/26/2000 | WD | Warranty Deed | NICKLIN, CHARLES P | THOM, RICHARD D | | | $380,525.00 | 2954 | 2001809 |
| 4 | 07/01/1990 | WD | Warranty Deed | NOBLE, RICHARD R | NICKLIN, CHARLES P | | | $230,000.00 | 4343 | 90014372 |
| 5 | 01/01/1988 | WD | Warranty Deed | PETO, SYLVIA | NOBLE, RICHARD R | | | $140,000.00 | 80189 | 88000897 |
| 6 | 08/01/1985 | QCD | Quit Claim Deed | YOUNG, JAMES P | PETO, SYLVIA | | | $0.00 | 52448 | 85009640 |
| 7 | 01/01/1985 | QCD | Quit Claim Deed | YOUNG, JAMES P | YOUNG, JAMES P | | | $0.00 | 50151 | 85000732 |
| 8 | 03/01/1980 | CD | DNU - Correction Deed | YOUNG, JAMES P | YOUNG, JAMES P | | | $0.00 | 1037 | 366941 |
| 9 | 02/01/1980 | TRUSTEED | Trustee's Deed | YOUNG, JAMES P | YOUNG, JAMES P | | | $35,000.00 | 726 | 365899 |
| 10 | 02/01/1980 | TRUSTEED | Trustee's Deed | COWELL, GEOFFREY B | YOUNG, JAMES P | | | $35,000.00 | 726 | 365899 |
| 11 | 01/01/1900 | OTHER | Other - Misc. Documents | Unknown | COWELL, GEOFFREY B | | | $0.00 | 0 | 0 |
Payout Agreement
| No payout information available.. |