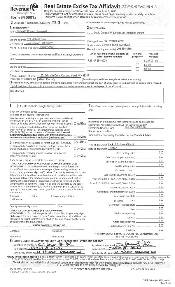
Property
Account |
| Property ID: | 305002 | Abbreviated Legal Description: | LIGHTHSE SH 3 LOT 3 INCL ADJ TIDES TGW 1/124TH INT IN RES A LHS 2 & 3 |
| Geographic ID: | S7375-03-00003-0 | Agent Code: | |
| Type: | Real | | |
| Tax Area: | 710 - APPRAISER-S Whid Schl Dist, outside Langley, improved & 1 acre or less | Land Use Code | 11 |
| Open Space: | N | DFL | N |
| Historic Property: | N | Remodel Property: | N |
| Multi-Family Redevelopment: | N | | |
| Township: | | Section: | |
| Range: | |
Location |
| Address: | 232 LAKE AVE FREELAND, WA 98249 | Mapsco: | |
| Neighborhood: | Cycle 3 | Map ID: | 300 |
| Neighborhood CD: | 3 |
Owner |
| Name: | SKAHEN, MICHAEL E | Owner ID: | 98756 |
| Mailing Address: | 6530 16TH AVE NE SEATTLE, WA 98115-6839 | % Ownership: | 100.0000000000% |
| | | Exemptions: | |
Taxes and Assessment Details
Values
| (+) Improvement Homesite Value: | + | $0 | |
| (+) Improvement Non-Homesite Value: | + | $294,350 | |
| (+) Land Homesite Value: | + | $0 | |
| (+) Land Non-Homesite Value: | + | $945,640 | |
| (+) Curr Use (HS): | + | $0 | $0 |
| (+) Curr Use (NHS): | + | $0 | $0 |
| | | -------------------------- | |
| (=) Market Value: | = | $1,239,990 | |
| (–) Productivity Loss: | – | $0 | |
| | | -------------------------- | |
| (=) Subtotal: | = | $1,239,990 | |
| (+) Senior Appraised Value: | + | $0 | |
| (+) Non-Senior Appraised Value: | + | $1,239,990 | |
| | | -------------------------- | |
| (=) Total Appraised Value: | = | $1,239,990 | |
| (–) Senior Exemption Loss: | – | $0 | |
| (–) Exemption Loss: | – | $0 | |
| | | -------------------------- | |
| (=) Taxable Value: | = | $1,239,990 | |
Taxing Jurisdiction
| Owner: | SKAHEN, MICHAEL E | | |
| % Ownership: | 100.0000000000% | | |
| Total Value: | $1,239,990 | | |
| Tax Area: | 710 - APPRAISER-S Whid Schl Dist, outside Langley, improved & 1 acre or less |
| CF | Conservation Futures | 0.0316035091 | $1,239,990 | $1,239,990 | $39.19 | | |
| FIRE3 | Fire & Rescue Dist #3 S Whidbey GEN | 1.2004855531 | $1,239,990 | $1,239,990 | $1,488.59 | | |
| HOBOND | Hospital BOND | 0.1910887512 | $1,239,990 | $1,239,990 | $236.95 | | |
| HOGEN | Hospital GEN | 0.3902502903 | $1,239,990 | $1,239,990 | $483.91 | | |
| CE | County Current Expense | 0.3708482477 | $1,239,990 | $1,239,990 | $459.85 | | |
| CR | County Roads | 0.4584763726 | $1,239,990 | $1,239,990 | $568.51 | | |
| ISLANDEMS | Hospital GEN (EMS) | 0.5000000000 | $1,239,990 | $1,239,990 | $620.00 | | |
| LIB | Library Sno-Isle GEN | 0.3153421757 | $1,239,990 | $1,239,990 | $391.02 | | |
| PORTWHID | Port of S Whidbey GEN | 0.1094540357 | $1,239,990 | $1,239,990 | $135.72 | | |
| SCH206BOND | School 206 BOND | 0.3161759235 | $1,239,990 | $1,239,990 | $392.05 | | |
| SCH206MO | School 206 Enrichment | 0.4547169547 | $1,239,990 | $1,239,990 | $563.84 | | |
| ST | State School | 1.3035497053 | $1,239,990 | $1,239,990 | $1,616.39 | | |
| ST2 | State School Part 2 | 0.8169543533 | $1,239,990 | $1,239,990 | $1,013.02 | | |
| SWHIDPRBD | P & R S Whidbey BOND | 0.0152817568 | $1,239,990 | $1,239,990 | $18.95 | | |
| SWHIDPRBD2 | P & R S Whidbey BOND2 | 0.0138911264 | $1,239,990 | $1,239,990 | $17.22 | | |
| SWHIDPRMT | P & R S Whidbey GEN | 0.2053334452 | $1,239,990 | $1,239,990 | $254.61 | | |
| | Total Tax Rate: | 6.6934522006 | | | | | |
| | | | | Taxes w/Current Exemptions: | $8,299.82 | | |
| | | | | Taxes w/o Exemptions: | $8,299.82 | | |
Improvement / Building
| Improvement #1: | RESIDENTIAL | State Code: | Y | 1673.0 sqft | Value: | $294,350 |
| Bathrooms: | 2 | Bedrooms: | 2 | | Ceiling: | BEAM PAINTED | Cooling: | HEAT PUMP/CONV/V | | Exterior Wall/Cover: | WOOD SIDING | Floor Covering: | CARPET/VINYL 80-20 | | Floor Structure: | WOOD W/SUBFLOOR | Foundation: | CONCRETE | | Interior Finish: | DRYWALL PAINT | Plumbing Fixture Cnt: | 9 | | Roof Slope: | 4" IN 12" | Roof Structure/Cover: | CJ ALUMINIUM HEAVY |
|
| | Type | Description | Class CD | Sub Class CD | Year Built | Area |
| | BAS | BASE/MAIN FLOOR | 4 | 0 | 1972 | 1403.0 |
| | AGR | ATTACHED GARAGE | 4 | 0 | 1972 | 420.0 |
| | OWP | OPEN WOOD PORCH W/STEPS | 4 | 0 | 1972 | 565.0 |
| | OWP | OPEN WOOD PORCH W/STEPS | 4 | 0 | 1972 | 371.0 |
| | LOF | LOFT | 4 | 0 | 1972 | 270.0 |
Sketch
Property Image
Land
| 1 | 55 | TIDES | 0.0000 | 0.00 | 64.00 | 0.00 | 1.00 | $640 | $0 |
| 2 | LB | LOW BANK | 0.0000 | 0.00 | 64.00 | 0.00 | 1.00 | $945,000 | $0 |
Roll Value History
| 2026 | N/A | N/A | N/A | N/A | N/A |
| 2025 | $294,350 | $945,640 | $0 | $1,239,990 | $1,239,990 |
| 2024 | $293,979 | $945,640 | $0 | $1,239,619 | $1,239,619 |
| 2023 | $298,164 | $945,640 | $0 | $1,243,804 | $1,243,804 |
| 2022 | $273,781 | $900,640 | $0 | $1,174,421 | $1,174,421 |
| 2021 | $241,370 | $750,640 | $0 | $992,010 | $992,010 |
| 2020 | $235,655 | $600,640 | $0 | $836,295 | $836,295 |
| 2019 | $163,642 | $675,640 | $0 | $839,282 | $839,282 |
| 2018 | $164,268 | $600,640 | $0 | $764,908 | $764,908 |
| 2017 | $165,519 | $600,640 | $0 | $766,159 | $766,159 |
| 2016 | $168,020 | $600,640 | $0 | $768,660 | $768,660 |
| 2015 | $170,524 | $600,640 | $0 | $771,164 | $771,164 |
| 2014 | $173,025 | $500,640 | $0 | $673,665 | $673,665 |
| 2013 | $175,527 | $445,066 | $0 | $620,593 | $620,593 |
| 2012 | $178,030 | $445,066 | $0 | $623,096 | $623,096 |
| 2011 | $180,531 | $445,066 | $0 | $625,597 | $625,597 |
| 2010 | $190,145 | $445,066 | $0 | $635,211 | $635,211 |
| 2009 | $193,424 | $636,933 | $0 | $830,357 | $830,357 |
| 2008 | $202,866 | $490,096 | $0 | $692,962 | $692,962 |
| 2007 | $205,462 | $489,648 | $0 | $695,110 | $695,110 |
Deed and Sales History
| 1 | 08/01/1997 | WD | Warranty Deed | HALWAS, KENNETH A | SKAHEN, MICHAEL E | | | $440,000.00 | 72931 | 97013970 |
| 2 | 02/01/1993 | QCD | Quit Claim Deed | HALWAS, KENNETH A | HALWAS, KENNETH A | | | $0.00 | 30731 | 93003809 |
| 3 | 01/01/1900 | OTHER | Other - Misc. Documents | Unknown | HALWAS, KENNETH A | | | $0.00 | 0 | 0 |
Payout Agreement
| No payout information available.. |