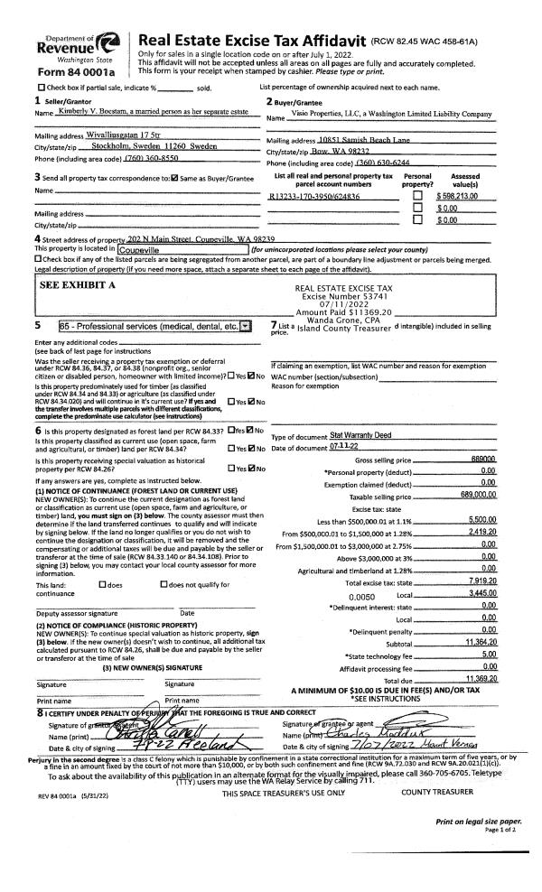
Property
Account |
| Property ID: | 305529 | Abbreviated Legal Description: | LIVINGSTON BAY LOT 13 |
| Geographic ID: | S7380-00-00013-0 | Agent Code: | |
| Type: | Real | | |
| Tax Area: | 510 - APPRAISER-Stan/Cam Schl Dist, improved & 1 acre or less | Land Use Code | 11 |
| Open Space: | N | DFL | N |
| Historic Property: | N | Remodel Property: | N |
| Multi-Family Redevelopment: | N | | |
| Township: | | Section: | |
| Range: | |
Location |
| Address: | 836 LIVINGSTON BAY SHORE DR CAMANO ISLAND, WA 98282 | Mapsco: | |
| Neighborhood: | Cycle 5 | Map ID: | 983 |
| Neighborhood CD: | 5 |
Owner |
| Name: | DAUM, STEVE | Owner ID: | 277230 |
| Mailing Address: | KELLI DAUM 836 LIVINGSTON BAY SHORE DR CAMANO ISLAND, WA 98282-8806 | % Ownership: | 100.0000000000% |
| | | Exemptions: | |
Taxes and Assessment Details
Values
| (+) Improvement Homesite Value: | + | $0 | |
| (+) Improvement Non-Homesite Value: | + | $342,181 | |
| (+) Land Homesite Value: | + | $0 | |
| (+) Land Non-Homesite Value: | + | $550,000 | |
| (+) Curr Use (HS): | + | $0 | $0 |
| (+) Curr Use (NHS): | + | $0 | $0 |
| | | -------------------------- | |
| (=) Market Value: | = | $892,181 | |
| (–) Productivity Loss: | – | $0 | |
| | | -------------------------- | |
| (=) Subtotal: | = | $892,181 | |
| (+) Senior Appraised Value: | + | $0 | |
| (+) Non-Senior Appraised Value: | + | $892,181 | |
| | | -------------------------- | |
| (=) Total Appraised Value: | = | $892,181 | |
| (–) Senior Exemption Loss: | – | $0 | |
| (–) Exemption Loss: | – | $0 | |
| | | -------------------------- | |
| (=) Taxable Value: | = | $892,181 | |
Taxing Jurisdiction
| Owner: | DAUM, STEVE | | |
| % Ownership: | 100.0000000000% | | |
| Total Value: | $892,181 | | |
| Tax Area: | 510 - APPRAISER-Stan/Cam Schl Dist, improved & 1 acre or less |
| CF | Conservation Futures | 0.0316035091 | $892,181 | $892,181 | $28.20 | | |
| EMS1 | Fire & Rescue Dist #1 Camano GEN (EMS) | 0.3677864386 | $892,181 | $892,181 | $328.13 | | |
| FIRE1 | Fire & Rescue Dist #1 Camano GEN | 1.2502910536 | $892,181 | $892,181 | $1,115.49 | | |
| FIRE1BOND | Fire & Rescue Dist #1 Camano BOND | 0.1570001679 | $892,181 | $892,181 | $140.07 | | |
| CE | County Current Expense | 0.3708482477 | $892,181 | $892,181 | $330.86 | | |
| CR | County Roads | 0.4584763726 | $892,181 | $892,181 | $409.04 | | |
| LCIB | Library Sno-Isle BOND (Camano Island) | 0.0396325772 | $892,181 | $892,181 | $35.36 | | |
| LIB | Library Sno-Isle GEN | 0.3153421757 | $892,181 | $892,181 | $281.34 | | |
| SCH205_401 | School 205-401 Enrichment | 1.2698420524 | $892,181 | $892,181 | $1,132.93 | | |
| SCH205BOND | School 205-401 BOND | 0.9396497583 | $892,181 | $892,181 | $838.34 | | |
| ST | State School | 1.3035497053 | $892,181 | $892,181 | $1,163.00 | | |
| ST2 | State School Part 2 | 0.8169543533 | $892,181 | $892,181 | $728.87 | | |
| | Total Tax Rate: | 7.3209764117 | | | | | |
| | | | | Taxes w/Current Exemptions: | $6,531.63 | | |
| | | | | Taxes w/o Exemptions: | $6,531.63 | | |
Improvement / Building
| Improvement #1: | RESIDENTIAL | State Code: | Y | 1524.0 sqft | Value: | $342,181 |
| Bathrooms: | 1.5 | Bedrooms: | 2 | | Ceiling: | DRYWALL PAINTED | Cooling: | HEAT PUMP/CONV/V | | Exterior Wall/Cover: | CEMENT FIBER | Floor Covering: | HARDWOOD 100% | | Floor Structure: | WOOD W/SUBFLOOR | Foundation: | CONCRETE | | Interior Finish: | DRYWALL PAINT | Plumbing Fixture Cnt: | 9 | | Roof Slope: | 6" IN 12" | Roof Structure/Cover: | CJ ASPHALT |
|
| | Type | Description | Class CD | Sub Class CD | Year Built | Area |
| | BAS | BASE/MAIN FLOOR | 3 | 0 | 1974 | 1524.0 |
| | AGR | ATTACHED GARAGE | 3 | 0 | 1974 | 632.0 |
| | OWP | OPEN WOOD PORCH W/STEPS | 3 | 0 | 1974 | 264.0 |
Sketch
Property Image
Land
| 1 | LB | LOW BANK | 0.0000 | 0.00 | 60.00 | 0.00 | 1.00 | $550,000 | $0 |
Roll Value History
| 2026 | N/A | N/A | N/A | N/A | N/A |
| 2025 | $342,181 | $550,000 | $0 | $892,181 | $892,181 |
| 2024 | $345,057 | $550,000 | $0 | $895,057 | $895,057 |
| 2023 | $348,124 | $550,000 | $0 | $898,124 | $898,124 |
| 2022 | $317,670 | $460,000 | $0 | $777,670 | $777,670 |
| 2021 | $271,974 | $375,000 | $0 | $646,974 | $646,974 |
| 2020 | $264,015 | $350,000 | $0 | $614,015 | $614,015 |
| 2019 | $194,370 | $400,000 | $0 | $594,370 | $594,370 |
| 2018 | $194,892 | $375,000 | $0 | $569,892 | $569,892 |
| 2017 | $195,934 | $275,000 | $0 | $470,934 | $470,934 |
| 2016 | $191,441 | $250,000 | $0 | $441,441 | $441,441 |
| 2015 | $183,629 | $250,000 | $0 | $433,629 | $433,629 |
| 2014 | $185,668 | $250,000 | $0 | $435,668 | $435,668 |
| 2013 | $187,707 | $250,000 | $0 | $437,707 | $437,707 |
| 2012 | $189,750 | $257,150 | $0 | $446,900 | $446,900 |
| 2011 | $191,789 | $270,684 | $0 | $462,473 | $462,473 |
| 2010 | $188,994 | $270,684 | $0 | $459,678 | $459,678 |
| 2009 | $141,447 | $299,977 | $0 | $441,424 | $441,424 |
| 2008 | $143,459 | $299,977 | $0 | $443,436 | $443,436 |
| 2007 | $145,487 | $299,977 | $0 | $445,464 | $445,464 |
Deed and Sales History
| 1 | 10/11/2016 | WD | Warranty Deed | MACOMBER, FORREST G | DAUM, STEVE | | | $516,000.00 | 26598 | 4409640 |
| 2 | 08/01/1985 | WD | Warranty Deed | BUCHANAN, ELLIS H | MACOMBER, FORREST G | | | $70,000.00 | 52605 | 85010314 |
Payout Agreement
| No payout information available.. |