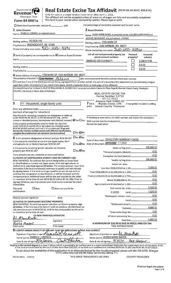
Property
Account |
| Property ID: | 305538 | Abbreviated Legal Description: | LIVINGSTON BAY LOT 14 |
| Geographic ID: | S7380-00-00014-0 | Agent Code: | |
| Type: | Real | | |
| Tax Area: | 510 - APPRAISER-Stan/Cam Schl Dist, improved & 1 acre or less | Land Use Code | 11 |
| Open Space: | N | DFL | N |
| Historic Property: | N | Remodel Property: | N |
| Multi-Family Redevelopment: | N | | |
| Township: | | Section: | |
| Range: | |
Location |
| Address: | 832 LIVINGSTON BAY SHORE DR CAMANO ISLAND, WA 98282 | Mapsco: | |
| Neighborhood: | Cycle 5 | Map ID: | 983 |
| Neighborhood CD: | 5 |
Owner |
| Name: | GABLEHOUSE, JOHN A JR | Owner ID: | 65183 |
| Mailing Address: | 832 LIVINGSTON BAY SHORE DR CAMANO ISLAND, WA 98282-8806 | % Ownership: | 100.0000000000% |
| | | Exemptions: | |
Taxes and Assessment Details
Values
| (+) Improvement Homesite Value: | + | $0 | |
| (+) Improvement Non-Homesite Value: | + | $225,440 | |
| (+) Land Homesite Value: | + | $0 | |
| (+) Land Non-Homesite Value: | + | $550,000 | |
| (+) Curr Use (HS): | + | $0 | $0 |
| (+) Curr Use (NHS): | + | $0 | $0 |
| | | -------------------------- | |
| (=) Market Value: | = | $775,440 | |
| (–) Productivity Loss: | – | $0 | |
| | | -------------------------- | |
| (=) Subtotal: | = | $775,440 | |
| (+) Senior Appraised Value: | + | $0 | |
| (+) Non-Senior Appraised Value: | + | $775,440 | |
| | | -------------------------- | |
| (=) Total Appraised Value: | = | $775,440 | |
| (–) Senior Exemption Loss: | – | $0 | |
| (–) Exemption Loss: | – | $0 | |
| | | -------------------------- | |
| (=) Taxable Value: | = | $775,440 | |
Taxing Jurisdiction
| Owner: | GABLEHOUSE, JOHN A JR | | |
| % Ownership: | 100.0000000000% | | |
| Total Value: | $775,440 | | |
| Tax Area: | 510 - APPRAISER-Stan/Cam Schl Dist, improved & 1 acre or less |
| CF | Conservation Futures | 0.0316035091 | $775,440 | $775,440 | $24.51 | | |
| EMS1 | Fire & Rescue Dist #1 Camano GEN (EMS) | 0.3677864386 | $775,440 | $775,440 | $285.20 | | |
| FIRE1 | Fire & Rescue Dist #1 Camano GEN | 1.2502910536 | $775,440 | $775,440 | $969.53 | | |
| FIRE1BOND | Fire & Rescue Dist #1 Camano BOND | 0.1570001679 | $775,440 | $775,440 | $121.74 | | |
| CE | County Current Expense | 0.3708482477 | $775,440 | $775,440 | $287.57 | | |
| CR | County Roads | 0.4584763726 | $775,440 | $775,440 | $355.52 | | |
| LCIB | Library Sno-Isle BOND (Camano Island) | 0.0396325772 | $775,440 | $775,440 | $30.73 | | |
| LIB | Library Sno-Isle GEN | 0.3153421757 | $775,440 | $775,440 | $244.53 | | |
| SCH205_401 | School 205-401 Enrichment | 1.2698420524 | $775,440 | $775,440 | $984.69 | | |
| SCH205BOND | School 205-401 BOND | 0.9396497583 | $775,440 | $775,440 | $728.64 | | |
| ST | State School | 1.3035497053 | $775,440 | $775,440 | $1,010.82 | | |
| ST2 | State School Part 2 | 0.8169543533 | $775,440 | $775,440 | $633.50 | | |
| | Total Tax Rate: | 7.3209764117 | | | | | |
| | | | | Taxes w/Current Exemptions: | $5,676.98 | | |
| | | | | Taxes w/o Exemptions: | $5,676.98 | | |
Improvement / Building
| Improvement #1: | RESIDENTIAL | State Code: | Y | 1220.0 sqft | Value: | $225,440 |
| Bathrooms: | 2 | Bedrooms: | 3 | | Ceiling: | DRYWALL PAINTED | Exterior Wall/Cover: | PLY/HARDBOARD T-111 | | Floor Covering: | CARPET/VINYL 80-20 | Floor Structure: | WOOD W/SUBFLOOR | | Foundation: | CONCRETE | Heating: | BASEBOARD ELECTRIC | | Interior Finish: | DRYWALL PAINT | Plumbing Fixture Cnt: | 9 | | Roof Slope: | 4" IN 12" | Roof Structure/Cover: | CJ ASPHALT |
|
| | Type | Description | Class CD | Sub Class CD | Year Built | Area |
| | BAS | BASE/MAIN FLOOR | 3 | 0 | 1989 | 1220.0 |
| | OP4 | OPEN PORCH W/CEILING-ROOF | 3 | 0 | 1989 | 156.0 |
| | AGR | ATTACHED GARAGE | 3 | 0 | 1989 | 484.0 |
| | OWP | OPEN WOOD PORCH W/STEPS | 3 | 0 | 1989 | 156.0 |
| | OWC | OPEN WOOD PORCH W/STEPS/ROOF/C | 3 | 0 | 1989 | 80.0 |
Sketch
Property Image
Land
| 1 | LB | LOW BANK | 0.0000 | 0.00 | 62.00 | 0.00 | 1.00 | $550,000 | $0 |
Roll Value History
| 2026 | N/A | N/A | N/A | N/A | N/A |
| 2025 | $225,440 | $550,000 | $0 | $775,440 | $775,440 |
| 2024 | $233,113 | $550,000 | $0 | $783,113 | $783,113 |
| 2023 | $236,092 | $550,000 | $0 | $786,092 | $786,092 |
| 2022 | $216,479 | $460,000 | $0 | $676,479 | $676,479 |
| 2021 | $181,209 | $375,000 | $0 | $556,209 | $556,209 |
| 2020 | $176,391 | $350,000 | $0 | $526,391 | $526,391 |
| 2019 | $125,315 | $400,000 | $0 | $525,315 | $525,315 |
| 2018 | $125,709 | $375,000 | $0 | $500,709 | $500,709 |
| 2017 | $126,500 | $275,000 | $0 | $401,500 | $401,500 |
| 2016 | $128,082 | $250,000 | $0 | $378,082 | $378,082 |
| 2015 | $126,500 | $250,000 | $0 | $376,500 | $376,500 |
| 2014 | $128,082 | $250,000 | $0 | $378,082 | $378,082 |
| 2013 | $129,663 | $250,000 | $0 | $379,663 | $379,663 |
| 2012 | $131,244 | $265,722 | $0 | $396,966 | $396,966 |
| 2011 | $132,825 | $279,707 | $0 | $412,532 | $412,532 |
| 2010 | $136,055 | $279,707 | $0 | $415,762 | $415,762 |
| 2009 | $139,248 | $309,976 | $0 | $449,224 | $449,224 |
| 2008 | $140,897 | $309,976 | $0 | $450,873 | $450,873 |
| 2007 | $142,546 | $309,976 | $0 | $452,522 | $452,522 |
Deed and Sales History
| 1 | 10/01/1990 | WD | Warranty Deed | LORANGER, THOMAS J | GABLEHOUSE, JOHN A | | | $144,000.00 | 5802 | 90019514 |
| 2 | 03/01/1989 | WD | Warranty Deed | ARHART, VINCENT H | LORANGER, THOMAS J | | | $27,000.00 | 91255 | 89004404 |
| 3 | 01/01/1900 | OTHER | Other - Misc. Documents | Unknown | ARHART, VINCENT H | | | $0.00 | 0 | 0 |
Payout Agreement
| No payout information available.. |