Property
Account |
| Property ID: | 305565 | Abbreviated Legal Description: | LIVINGSTON BAY LOT 17 |
| Geographic ID: | S7380-00-00017-0 | Agent Code: | |
| Type: | Real | | |
| Tax Area: | 510 - APPRAISER-Stan/Cam Schl Dist, improved & 1 acre or less | Land Use Code | 11 |
| Open Space: | N | DFL | N |
| Historic Property: | N | Remodel Property: | N |
| Multi-Family Redevelopment: | N | | |
| Township: | | Section: | |
| Range: | |
Location |
| Address: | 816 LIVINGSTON BAY SHORE DR CAMANO ISLAND, WA 98282 | Mapsco: | |
| Neighborhood: | Cycle 5 | Map ID: | 983 |
| Neighborhood CD: | 5 |
Owner |
| Name: | MICHELSON, BETH | Owner ID: | 316791 |
| Mailing Address: | 816 LIVINGSTON BAY SHORE DR CAMANO ISLAND, WA 98282 | % Ownership: | 100.0000000000% |
| | | Exemptions: | |
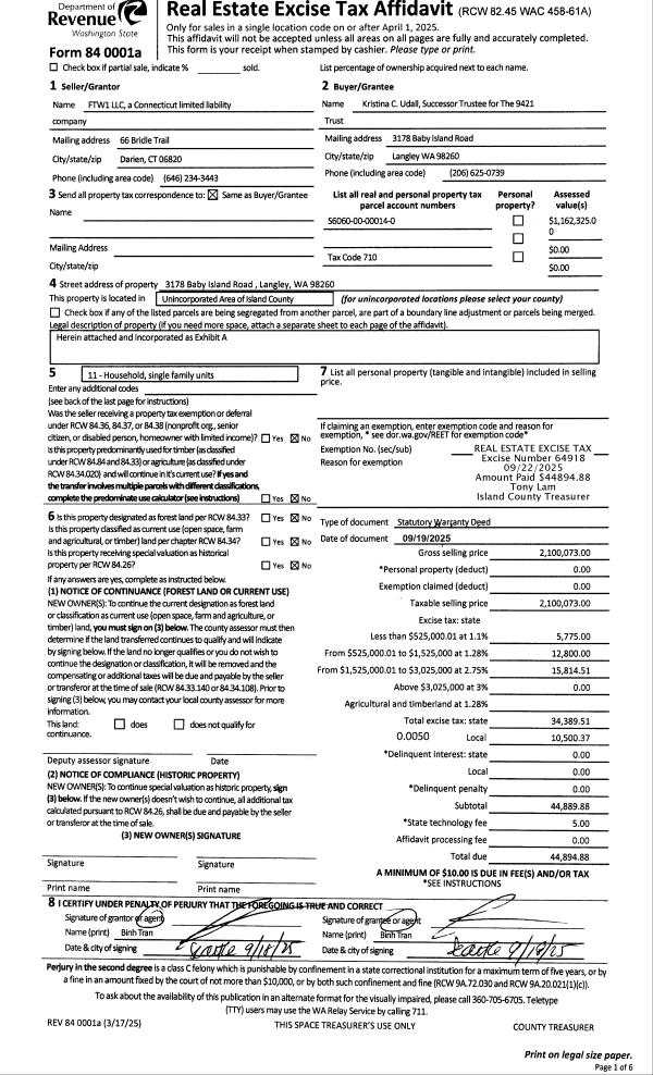
Taxes and Assessment Details
Values
| (+) Improvement Homesite Value: | + | $0 | |
| (+) Improvement Non-Homesite Value: | + | $484,678 | |
| (+) Land Homesite Value: | + | $0 | |
| (+) Land Non-Homesite Value: | + | $550,000 | |
| (+) Curr Use (HS): | + | $0 | $0 |
| (+) Curr Use (NHS): | + | $0 | $0 |
| | | -------------------------- | |
| (=) Market Value: | = | $1,034,678 | |
| (–) Productivity Loss: | – | $0 | |
| | | -------------------------- | |
| (=) Subtotal: | = | $1,034,678 | |
| (+) Senior Appraised Value: | + | $0 | |
| (+) Non-Senior Appraised Value: | + | $1,034,678 | |
| | | -------------------------- | |
| (=) Total Appraised Value: | = | $1,034,678 | |
| (–) Senior Exemption Loss: | – | $0 | |
| (–) Exemption Loss: | – | $0 | |
| | | -------------------------- | |
| (=) Taxable Value: | = | $1,034,678 | |
Taxing Jurisdiction
| Owner: | MICHELSON, BETH | | |
| % Ownership: | 100.0000000000% | | |
| Total Value: | $1,034,678 | | |
| Tax Area: | 510 - APPRAISER-Stan/Cam Schl Dist, improved & 1 acre or less |
| CF | Conservation Futures | 0.0316035091 | $1,034,678 | $1,034,678 | $32.70 | | |
| EMS1 | Fire & Rescue Dist #1 Camano GEN (EMS) | 0.3677864386 | $1,034,678 | $1,034,678 | $380.54 | | |
| FIRE1 | Fire & Rescue Dist #1 Camano GEN | 1.2502910536 | $1,034,678 | $1,034,678 | $1,293.65 | | |
| FIRE1BOND | Fire & Rescue Dist #1 Camano BOND | 0.1570001679 | $1,034,678 | $1,034,678 | $162.44 | | |
| CE | County Current Expense | 0.3708482477 | $1,034,678 | $1,034,678 | $383.71 | | |
| CR | County Roads | 0.4584763726 | $1,034,678 | $1,034,678 | $474.38 | | |
| LCIB | Library Sno-Isle BOND (Camano Island) | 0.0396325772 | $1,034,678 | $1,034,678 | $41.01 | | |
| LIB | Library Sno-Isle GEN | 0.3153421757 | $1,034,678 | $1,034,678 | $326.28 | | |
| SCH205_401 | School 205-401 Enrichment | 1.2698420524 | $1,034,678 | $1,034,678 | $1,313.88 | | |
| SCH205BOND | School 205-401 BOND | 0.9396497583 | $1,034,678 | $1,034,678 | $972.23 | | |
| ST | State School | 1.3035497053 | $1,034,678 | $1,034,678 | $1,348.75 | | |
| ST2 | State School Part 2 | 0.8169543533 | $1,034,678 | $1,034,678 | $845.28 | | |
| | Total Tax Rate: | 7.3209764117 | | | | | |
| | | | | Taxes w/Current Exemptions: | $7,574.85 | | |
| | | | | Taxes w/o Exemptions: | $7,574.85 | | |
Improvement / Building
| Improvement #1: | RESIDENTIAL | State Code: | Y | 1668.0 sqft | Value: | $484,678 |
| Bathrooms: | 1.75 | Bedrooms: | 3 | | Ceiling: | DRYWALL PAINTED | Exterior Wall/Cover: | CEMENT FIBER | | Floor Covering: | CERAMIC TILE/HWD 40/60 | Floor Structure: | WOOD W/SUBFLOOR | | Foundation: | CONCRETE | Heating: | RADIANT FLOOR | | Interior Finish: | DRYWALL PAINT | Plumbing Fixture Cnt: | 11 | | Roof Slope: | 6" IN 12" | Roof Structure/Cover: | CJ ASPHALT |
|
| | Type | Description | Class CD | Sub Class CD | Year Built | Area |
| | BAS | BASE/MAIN FLOOR | 4 | 0 | 1976 | 1668.0 |
| | AGR | ATTACHED GARAGE | 4 | 0 | 1976 | 480.0 |
| | OWP | OPEN WOOD PORCH W/STEPS | 4 | 0 | 1976 | 608.0 |
| | OWC | OPEN WOOD PORCH W/STEPS/ROOF/C | 4 | 0 | 1976 | 54.0 |
| | UTY | STORAGE/UTILITY | 4 | 0 | 1976 | 144.0 |
Sketch
Property Image
Land
| 1 | LB | LOW BANK | 0.0000 | 0.00 | 60.00 | 0.00 | 1.00 | $550,000 | $0 |
Roll Value History
| 2026 | N/A | N/A | N/A | N/A | N/A |
| 2025 | $484,678 | $550,000 | $0 | $1,034,678 | $1,034,678 |
| 2024 | $488,987 | $550,000 | $0 | $1,038,987 | $1,038,987 |
| 2023 | $492,756 | $550,000 | $0 | $1,042,756 | $1,042,756 |
| 2022 | $449,844 | $460,000 | $0 | $909,844 | $909,844 |
| 2021 | $394,355 | $375,000 | $0 | $769,355 | $769,355 |
| 2020 | $382,568 | $350,000 | $0 | $732,568 | $732,568 |
| 2019 | $286,559 | $400,000 | $0 | $686,559 | $686,559 |
| 2018 | $282,039 | $375,000 | $0 | $657,039 | $657,039 |
| 2017 | $242,425 | $275,000 | $0 | $517,425 | $517,425 |
| 2016 | $244,925 | $250,000 | $0 | $494,925 | $494,925 |
| 2015 | $188,213 | $250,000 | $0 | $438,213 | $438,213 |
| 2014 | $74,228 | $250,000 | $0 | $324,228 | $324,228 |
| 2013 | $72,413 | $250,000 | $0 | $322,413 | $322,413 |
| 2012 | $73,539 | $257,150 | $0 | $330,689 | $330,689 |
| 2011 | $74,664 | $270,684 | $0 | $345,348 | $345,348 |
| 2010 | $80,935 | $270,684 | $0 | $351,619 | $351,619 |
| 2009 | $84,472 | $299,977 | $0 | $384,449 | $384,449 |
| 2008 | $85,603 | $299,977 | $0 | $385,580 | $385,580 |
| 2007 | $86,735 | $299,977 | $0 | $386,712 | $386,712 |
Deed and Sales History
| 1 | 05/29/2025 | WD | Warranty Deed | FERRESE, VINCENT J | MICHELSON, BETH | | | $1,200,000.00 | 63661 | 4586522 |
| 2 | 10/16/2017 | WD | Warranty Deed | IVERSON, DON | FERRESE, VINCENT J | | | $777,000.00 | 31560 | 4432334 |
| 3 | 08/23/2013 | WD | Warranty Deed | RISSER, JAMES C / JEAN T | IVERSON, DON | | | $250,000.00 | 12563 | 4347137 |
| 4 | 02/01/1998 | WD | Warranty Deed | FRONTIER, BANK T | RISSER, JAMES C | | | $148,000.00 | 80745 | 98004147 |
| 5 | 12/01/1996 | PRD | Personal Representatives Deed | DICKEY, WILLIAM H | FRONTIER, BANK T | | | $0.00 | 64521 | 96021953 |
| 6 | 12/01/1988 | WD | Warranty Deed | ANDERSON, ROBERT R | DICKEY, WILLIAM H | | | $55,000.00 | 84270 | 88015914 |
| 7 | 01/01/1900 | OTHER | Other - Misc. Documents | Unknown | ANDERSON, ROBERT R | | | $0.00 | 0 | 0 |
Payout Agreement
| No payout information available.. |