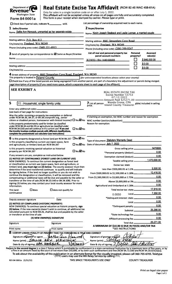
Property
Account |
| Property ID: | 305654 | Abbreviated Legal Description: | LIVINGSTON BAY LOT 26 |
| Geographic ID: | S7380-00-00026-0 | Agent Code: | |
| Type: | Real | | |
| Tax Area: | 590 - APPRAISER-Stan/Cam Schl Dist, Special Dist, improved & less than 1 acre | Land Use Code | 11 |
| Open Space: | N | DFL | N |
| Historic Property: | N | Remodel Property: | N |
| Multi-Family Redevelopment: | N | | |
| Township: | | Section: | |
| Range: | |
Location |
| Address: | 778 LIVINGSTON BAY SHORE DR CAMANO ISLAND, WA 98282 | Mapsco: | |
| Neighborhood: | Cycle 5 | Map ID: | 987 |
| Neighborhood CD: | 5 |
Owner |
| Name: | RONKEN, JULIE M | Owner ID: | 65195 |
| Mailing Address: | 1232 WETMORE AVE EVERETT, WA 98201-1556 | % Ownership: | 100.0000000000% |
| | | Exemptions: | |
Taxes and Assessment Details
Values
| (+) Improvement Homesite Value: | + | $0 | |
| (+) Improvement Non-Homesite Value: | + | $136,397 | |
| (+) Land Homesite Value: | + | $0 | |
| (+) Land Non-Homesite Value: | + | $550,000 | |
| (+) Curr Use (HS): | + | $0 | $0 |
| (+) Curr Use (NHS): | + | $0 | $0 |
| | | -------------------------- | |
| (=) Market Value: | = | $686,397 | |
| (–) Productivity Loss: | – | $0 | |
| | | -------------------------- | |
| (=) Subtotal: | = | $686,397 | |
| (+) Senior Appraised Value: | + | $0 | |
| (+) Non-Senior Appraised Value: | + | $686,397 | |
| | | -------------------------- | |
| (=) Total Appraised Value: | = | $686,397 | |
| (–) Senior Exemption Loss: | – | $0 | |
| (–) Exemption Loss: | – | $0 | |
| | | -------------------------- | |
| (=) Taxable Value: | = | $686,397 | |
Taxing Jurisdiction
| Owner: | RONKEN, JULIE M | | |
| % Ownership: | 100.0000000000% | | |
| Total Value: | $686,397 | | |
| Tax Area: | 590 - APPRAISER-Stan/Cam Schl Dist, Special Dist, improved & less than 1 acre |
| CF | Conservation Futures | 0.0316035091 | $686,397 | $686,397 | $21.69 | | |
| EMS1 | Fire & Rescue Dist #1 Camano GEN (EMS) | 0.3677864386 | $686,397 | $686,397 | $252.45 | | |
| FIRE1 | Fire & Rescue Dist #1 Camano GEN | 1.2502910536 | $686,397 | $686,397 | $858.20 | | |
| FIRE1BOND | Fire & Rescue Dist #1 Camano BOND | 0.1570001679 | $686,397 | $686,397 | $107.76 | | |
| CE | County Current Expense | 0.3708482477 | $686,397 | $686,397 | $254.55 | | |
| CR | County Roads | 0.4584763726 | $686,397 | $686,397 | $314.70 | | |
| LCIB | Library Sno-Isle BOND (Camano Island) | 0.0396325772 | $686,397 | $686,397 | $27.20 | | |
| LIB | Library Sno-Isle GEN | 0.3153421757 | $686,397 | $686,397 | $216.45 | | |
| SCH205_401 | School 205-401 Enrichment | 1.2698420524 | $686,397 | $686,397 | $871.62 | | |
| SCH205BOND | School 205-401 BOND | 0.9396497583 | $686,397 | $686,397 | $644.97 | | |
| ST | State School | 1.3035497053 | $686,397 | $686,397 | $894.75 | | |
| ST2 | State School Part 2 | 0.8169543533 | $686,397 | $686,397 | $560.76 | | |
| | Total Tax Rate: | 7.3209764117 | | | | | |
| | | | | Taxes w/Current Exemptions: | $5,025.10 | | |
| | | | | Taxes w/o Exemptions: | $5,025.10 | | |
Improvement / Building
| Improvement #1: | RESIDENTIAL | State Code: | Y | 1040.0 sqft | Value: | $136,397 |
| Bathrooms: | 1 | Bedrooms: | 2 | | Ceiling: | DRYWALL PAINTED | Exterior Wall/Cover: | PLY/HARDBOARD T-111 | | Floor Covering: | CARPET/VINYL 80-20 | Floor Structure: | WOOD W/SUBFLOOR | | Foundation: | CONCRETE | Heating: | BASEBOARD ELECTRIC | | Interior Finish: | DRYWALL PAINT | Plumbing Fixture Cnt: | 7 | | Roof Slope: | 4" IN 12" | Roof Structure/Cover: | CJ ALUMINIUM HEAVY |
|
| | Type | Description | Class CD | Sub Class CD | Year Built | Area |
| | BAS | BASE/MAIN FLOOR | 3 | 0 | 1977 | 1040.0 |
| | OP3 | OPEN PORCH W/ROOF | 3 | 0 | 1977 | 50.0 |
| | UTY | STORAGE/UTILITY | 3 | 0 | 1977 | 50.0 |
| | OWP | OPEN WOOD PORCH W/STEPS | 3 | 0 | 1977 | 336.0 |
Sketch
Property Image
Land
| 1 | LB | LOW BANK | 0.0000 | 0.00 | 60.00 | 0.00 | 1.00 | $550,000 | $0 |
Roll Value History
| 2026 | N/A | N/A | N/A | N/A | N/A |
| 2025 | $136,397 | $550,000 | $0 | $686,397 | $686,397 |
| 2024 | $141,437 | $550,000 | $0 | $691,437 | $691,437 |
| 2023 | $143,709 | $550,000 | $0 | $693,709 | $693,709 |
| 2022 | $132,191 | $460,000 | $0 | $592,191 | $592,191 |
| 2021 | $114,944 | $375,000 | $0 | $489,944 | $489,944 |
| 2020 | $112,313 | $350,000 | $0 | $462,313 | $462,313 |
| 2019 | $79,769 | $400,000 | $0 | $479,769 | $479,769 |
| 2018 | $80,069 | $375,000 | $0 | $455,069 | $455,069 |
| 2017 | $80,671 | $275,000 | $0 | $355,671 | $355,671 |
| 2016 | $81,876 | $250,000 | $0 | $331,876 | $331,876 |
| 2015 | $81,687 | $250,000 | $0 | $331,687 | $331,687 |
| 2014 | $82,964 | $250,000 | $0 | $332,964 | $332,964 |
| 2013 | $84,239 | $250,000 | $0 | $334,239 | $334,239 |
| 2012 | $85,516 | $257,150 | $0 | $342,666 | $342,666 |
| 2011 | $86,792 | $270,684 | $0 | $357,476 | $357,476 |
| 2010 | $91,736 | $270,684 | $0 | $362,420 | $362,420 |
| 2009 | $101,528 | $299,977 | $0 | $401,505 | $401,505 |
| 2008 | $102,902 | $299,977 | $0 | $402,879 | $402,879 |
| 2007 | $104,275 | $299,977 | $0 | $404,252 | $404,252 |
Deed and Sales History
| 1 | 06/01/1986 | WD | Warranty Deed | LAYNE, GWENDOLYN R | RONKEN, JULIE M | | | $66,500.00 | 61627 | 86007660 |
| 2 | 01/01/1900 | OTHER | Other - Misc. Documents | Unknown | LAYNE, GWENDOLYN R | | | $0.00 | 0 | 0 |
Payout Agreement
| No payout information available.. |