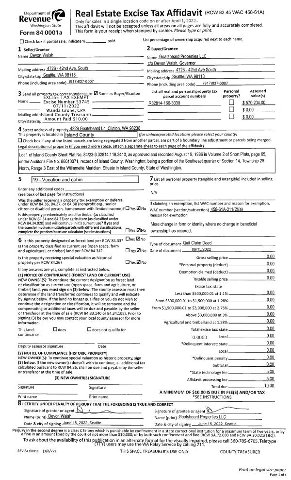
Property
Account |
| Property ID: | 305690 | Abbreviated Legal Description: | LIVINGSTON BAY LOT 30 |
| Geographic ID: | S7380-00-00030-0 | Agent Code: | |
| Type: | Real | | |
| Tax Area: | 590 - APPRAISER-Stan/Cam Schl Dist, Special Dist, improved & less than 1 acre | Land Use Code | 11 |
| Open Space: | N | DFL | N |
| Historic Property: | N | Remodel Property: | N |
| Multi-Family Redevelopment: | N | | |
| Township: | | Section: | |
| Range: | |
Location |
| Address: | 760 LIVINGSTON BAY SHORE DR CAMANO ISLAND, WA 98282 | Mapsco: | |
| Neighborhood: | Cycle 5 | Map ID: | 987 |
| Neighborhood CD: | 5 |
Owner |
| Name: | BREWSTER, GORDON T | Owner ID: | 292178 |
| Mailing Address: | DENA K CHRISTENSEN 760 LIVINGSTON BAY SHORE DR CAMANO ISLAND, WA 98282 | % Ownership: | 100.0000000000% |
| | | Exemptions: | |
Taxes and Assessment Details
Values
| (+) Improvement Homesite Value: | + | $0 | |
| (+) Improvement Non-Homesite Value: | + | $307,881 | |
| (+) Land Homesite Value: | + | $0 | |
| (+) Land Non-Homesite Value: | + | $550,000 | |
| (+) Curr Use (HS): | + | $0 | $0 |
| (+) Curr Use (NHS): | + | $0 | $0 |
| | | -------------------------- | |
| (=) Market Value: | = | $857,881 | |
| (–) Productivity Loss: | – | $0 | |
| | | -------------------------- | |
| (=) Subtotal: | = | $857,881 | |
| (+) Senior Appraised Value: | + | $0 | |
| (+) Non-Senior Appraised Value: | + | $857,881 | |
| | | -------------------------- | |
| (=) Total Appraised Value: | = | $857,881 | |
| (–) Senior Exemption Loss: | – | $0 | |
| (–) Exemption Loss: | – | $0 | |
| | | -------------------------- | |
| (=) Taxable Value: | = | $857,881 | |
Taxing Jurisdiction
| Owner: | BREWSTER, GORDON T | | |
| % Ownership: | 100.0000000000% | | |
| Total Value: | $857,881 | | |
| Tax Area: | 590 - APPRAISER-Stan/Cam Schl Dist, Special Dist, improved & less than 1 acre |
| CF | Conservation Futures | 0.0316035091 | $857,881 | $857,881 | $27.11 | | |
| EMS1 | Fire & Rescue Dist #1 Camano GEN (EMS) | 0.3677864386 | $857,881 | $857,881 | $315.52 | | |
| FIRE1 | Fire & Rescue Dist #1 Camano GEN | 1.2502910536 | $857,881 | $857,881 | $1,072.60 | | |
| FIRE1BOND | Fire & Rescue Dist #1 Camano BOND | 0.1570001679 | $857,881 | $857,881 | $134.69 | | |
| CE | County Current Expense | 0.3708482477 | $857,881 | $857,881 | $318.14 | | |
| CR | County Roads | 0.4584763726 | $857,881 | $857,881 | $393.32 | | |
| LCIB | Library Sno-Isle BOND (Camano Island) | 0.0396325772 | $857,881 | $857,881 | $34.00 | | |
| LIB | Library Sno-Isle GEN | 0.3153421757 | $857,881 | $857,881 | $270.53 | | |
| SCH205_401 | School 205-401 Enrichment | 1.2698420524 | $857,881 | $857,881 | $1,089.37 | | |
| SCH205BOND | School 205-401 BOND | 0.9396497583 | $857,881 | $857,881 | $806.11 | | |
| ST | State School | 1.3035497053 | $857,881 | $857,881 | $1,118.29 | | |
| ST2 | State School Part 2 | 0.8169543533 | $857,881 | $857,881 | $700.85 | | |
| | Total Tax Rate: | 7.3209764117 | | | | | |
| | | | | Taxes w/Current Exemptions: | $6,280.53 | | |
| | | | | Taxes w/o Exemptions: | $6,280.53 | | |
Improvement / Building
| Improvement #1: | RESIDENTIAL | State Code: | Y | 1582.0 sqft | Value: | $307,881 |
| Bathrooms: | 2 | Bedrooms: | 3 | | Ceiling: | DRYWALL PAINTED | Cooling: | HEAT PUMP/CONV/V | | Exterior Wall/Cover: | WOOD SIDING | Floor Covering: | HARDWOOD/CARP 20-80 | | Floor Structure: | WOOD W/SUBFLOOR | Foundation: | CONCRETE | | Interior Finish: | DRYWALL PAINT | Plumbing Fixture Cnt: | 10 | | Roof Slope: | 4" IN 12" | Roof Structure/Cover: | CJ ASPHALT |
|
| | Type | Description | Class CD | Sub Class CD | Year Built | Area |
| | BAS | BASE/MAIN FLOOR | 3 | 0 | 1993 | 1582.0 |
| | OP1 | OPEN PORCH SLAB | 3 | 0 | 1993 | 583.0 |
| | OP4 | OPEN PORCH W/CEILING-ROOF | 3 | 0 | 1993 | 157.1 |
| | AGR | ATTACHED GARAGE | 3 | 0 | 1993 | 490.9 |
Sketch
Property Image
Land
| 1 | LB | LOW BANK | 0.0000 | 0.00 | 60.00 | 0.00 | 1.00 | $550,000 | $0 |
Roll Value History
| 2026 | N/A | N/A | N/A | N/A | N/A |
| 2025 | $307,881 | $550,000 | $0 | $857,881 | $857,881 |
| 2024 | $311,580 | $550,000 | $0 | $861,580 | $861,580 |
| 2023 | $315,279 | $550,000 | $0 | $865,279 | $865,279 |
| 2022 | $288,845 | $460,000 | $0 | $748,845 | $748,845 |
| 2021 | $239,097 | $375,000 | $0 | $614,097 | $614,097 |
| 2020 | $232,766 | $350,000 | $0 | $582,766 | $582,766 |
| 2019 | $152,781 | $400,000 | $0 | $552,781 | $552,781 |
| 2018 | $153,240 | $375,000 | $0 | $528,240 | $528,240 |
| 2017 | $154,158 | $275,000 | $0 | $429,158 | $429,158 |
| 2016 | $155,993 | $250,000 | $0 | $405,993 | $405,993 |
| 2015 | $161,670 | $250,000 | $0 | $411,670 | $411,670 |
| 2014 | $163,630 | $250,000 | $0 | $413,630 | $413,630 |
| 2013 | $165,591 | $250,000 | $0 | $415,591 | $415,591 |
| 2012 | $167,552 | $257,150 | $0 | $424,702 | $424,702 |
| 2011 | $169,512 | $270,684 | $0 | $440,196 | $440,196 |
| 2010 | $176,251 | $270,684 | $0 | $446,935 | $446,935 |
| 2009 | $190,342 | $299,977 | $0 | $490,319 | $490,319 |
| 2008 | $192,536 | $299,977 | $0 | $492,513 | $492,513 |
| 2007 | $194,828 | $299,977 | $0 | $494,805 | $494,805 |
Deed and Sales History
| 1 | 10/09/2019 | WD | Warranty Deed | HUREVITZ TRUSTEE, LINDA B | BREWSTER, GORDON T | | | $585,000.00 | 40655 | 4473190 |
| 2 | 11/17/2009 | WD | Warranty Deed | HUREVITZ, LINDA B | HUREVITZ TRUSTEE, LINDA B | | | $0.00 | 92802 | 4263788 |
| 3 | 02/27/2009 | WD | Warranty Deed | HUREVITZ TRUSTEE, LINDA B | HUREVITZ, LINDA B | | | $0.00 | 90411 | 4245446 |
| 4 | 03/21/2006 | WD | Warranty Deed | HUREVITZ, LINDA B | HUREVITZ TRUSTEE, LINDA B | | | $0.00 | 61185 | 4165363 |
| 5 | 09/26/2003 | WD | Warranty Deed | EPSTEIN, RICHARD L | HUREVITZ, LINDA B | | | $359,950.00 | 34336 | 4077003 |
| 6 | 08/27/1998 | WD | Warranty Deed | HOOPER, BOBBY M | EPSTEIN, RICHARD L | | | $270,000.00 | 83448 | 98018017 |
| 7 | 05/01/1995 | QCD | Quit Claim Deed | HOOPER, BOBBY M | HOOPER, BOBBY M | | | $0.00 | 51647 | 95007807 |
| 8 | 06/01/1993 | QCD | Quit Claim Deed | HOOPER, BOBBY M | HOOPER, BOBBY M | | | $0.00 | 32545 | 93013121 |
| 9 | 01/01/1990 | QCD | Quit Claim Deed | HOOPER, BOBBY M | HOOPER, BOBBY M | | | $0.00 | 539 | 90001722 |
| 10 | 08/01/1989 | WD | Warranty Deed | GREFSRUD, BRIAN A | HOOPER, BOBBY M | | | $25,000.00 | 93365 | 89011287 |
| 11 | 03/01/1981 | EXECUTORD | Executor Deed | TURK, GLENN E | GREFSRUD, BRIAN A | | | $32,000.00 | 10912 | 381116 |
| 12 | 01/01/1900 | OTHER | Other - Misc. Documents | Unknown | EPSTEIN, RICHARD L | | | $0.00 | 83448 | 98018017 |
| 13 | 01/01/1900 | OTHER | Other - Misc. Documents | EPSTEIN, RICHARD L | TURK, GLENN E | | | $0.00 | 0 | 0 |
Payout Agreement
| No payout information available.. |