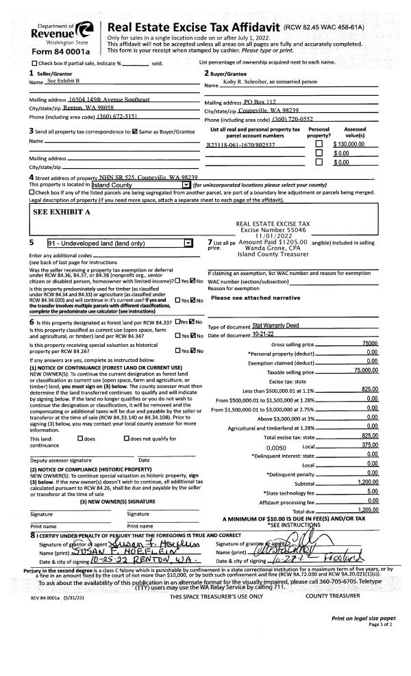
Property
Account |
| Property ID: | 305949 | Abbreviated Legal Description: | LIVINGSTON BAY LOT 55 |
| Geographic ID: | S7380-00-00055-0 | Agent Code: | |
| Type: | Real | | |
| Tax Area: | 510 - APPRAISER-Stan/Cam Schl Dist, improved & 1 acre or less | Land Use Code | 11 |
| Open Space: | N | DFL | N |
| Historic Property: | N | Remodel Property: | N |
| Multi-Family Redevelopment: | N | | |
| Township: | | Section: | |
| Range: | |
Location |
| Address: | 847 LIVINGSTON BAY SHORE DR CAMANO ISLAND, WA 98282 | Mapsco: | |
| Neighborhood: | Cycle 5 | Map ID: | 983 |
| Neighborhood CD: | 5 |
Owner |
| Name: | WESTERFIELD, STEVEN A | Owner ID: | 271318 |
| Mailing Address: | KATHRYN A WESTERFIELD 847 LIVINGSTON BAY SHORE DR CAMANO ISLAND, WA 98282 | % Ownership: | 100.0000000000% |
| | | Exemptions: | |
Taxes and Assessment Details
Values
| (+) Improvement Homesite Value: | + | $0 | |
| (+) Improvement Non-Homesite Value: | + | $583,362 | |
| (+) Land Homesite Value: | + | $0 | |
| (+) Land Non-Homesite Value: | + | $330,000 | |
| (+) Curr Use (HS): | + | $0 | $0 |
| (+) Curr Use (NHS): | + | $0 | $0 |
| | | -------------------------- | |
| (=) Market Value: | = | $913,362 | |
| (–) Productivity Loss: | – | $0 | |
| | | -------------------------- | |
| (=) Subtotal: | = | $913,362 | |
| (+) Senior Appraised Value: | + | $0 | |
| (+) Non-Senior Appraised Value: | + | $913,362 | |
| | | -------------------------- | |
| (=) Total Appraised Value: | = | $913,362 | |
| (–) Senior Exemption Loss: | – | $0 | |
| (–) Exemption Loss: | – | $0 | |
| | | -------------------------- | |
| (=) Taxable Value: | = | $913,362 | |
Taxing Jurisdiction
| Owner: | WESTERFIELD, STEVEN A | | |
| % Ownership: | 100.0000000000% | | |
| Total Value: | $913,362 | | |
| Tax Area: | 510 - APPRAISER-Stan/Cam Schl Dist, improved & 1 acre or less |
| CF | Conservation Futures | 0.0316035091 | $913,362 | $913,362 | $28.87 | | |
| EMS1 | Fire & Rescue Dist #1 Camano GEN (EMS) | 0.3677864386 | $913,362 | $913,362 | $335.92 | | |
| FIRE1 | Fire & Rescue Dist #1 Camano GEN | 1.2502910536 | $913,362 | $913,362 | $1,141.97 | | |
| FIRE1BOND | Fire & Rescue Dist #1 Camano BOND | 0.1570001679 | $913,362 | $913,362 | $143.40 | | |
| CE | County Current Expense | 0.3708482477 | $913,362 | $913,362 | $338.72 | | |
| CR | County Roads | 0.4584763726 | $913,362 | $913,362 | $418.75 | | |
| LCIB | Library Sno-Isle BOND (Camano Island) | 0.0396325772 | $913,362 | $913,362 | $36.20 | | |
| LIB | Library Sno-Isle GEN | 0.3153421757 | $913,362 | $913,362 | $288.02 | | |
| SCH205_401 | School 205-401 Enrichment | 1.2698420524 | $913,362 | $913,362 | $1,159.83 | | |
| SCH205BOND | School 205-401 BOND | 0.9396497583 | $913,362 | $913,362 | $858.24 | | |
| ST | State School | 1.3035497053 | $913,362 | $913,362 | $1,190.61 | | |
| ST2 | State School Part 2 | 0.8169543533 | $913,362 | $913,362 | $746.18 | | |
| | Total Tax Rate: | 7.3209764117 | | | | | |
| | | | | Taxes w/Current Exemptions: | $6,686.71 | | |
| | | | | Taxes w/o Exemptions: | $6,686.71 | | |
Improvement / Building
| Improvement #1: | RESIDENTIAL | State Code: | Y | 3138.5 sqft | Value: | $583,362 |
| Bathrooms: | 3.5 | Bedrooms: | 3 | | Ceiling: | DRYWALL PAINTED | Cooling: | HEAT PUMP/CONV/V | | Exterior Wall/Cover: | CEMENT FIBER | Floor Covering: | CARPET/VINYL 20-80 | | Floor Structure: | WOOD W/SUBFLOOR | Foundation: | CONCRETE | | Interior Finish: | DRYWALL PAINT | Plumbing Fixture Cnt: | 16 | | Roof Slope: | 4" IN 12" | Roof Structure/Cover: | CJ ASPHALT |
|
| | Type | Description | Class CD | Sub Class CD | Year Built | Area |
| | BAS | BASE/MAIN FLOOR | 4 | 0 | 1979 | 1890.5 |
| | BIG | BUILT IN GARAGE | 4 | 0 | 1979 | 1140.0 |
| | UPS | UPPER STORY | 4 | 0 | 1979 | 1248.0 |
| | OWP | OPEN WOOD PORCH W/STEPS | 4 | 0 | 1979 | 102.0 |
| | OWC | OPEN WOOD PORCH W/STEPS/ROOF/C | 4 | 0 | 1979 | 192.0 |
| | OWC | OPEN WOOD PORCH W/STEPS/ROOF/C | 4 | 0 | 1979 | 320.0 |
| | OWC | OPEN WOOD PORCH W/STEPS/ROOF/C | 4 | 0 | 1979 | 234.0 |
Sketch
Property Image
Land
| 1 | 14 | SQ (08001-12000) | 0.0000 | 0.00 | 0.00 | 0.00 | 1.00 | $330,000 | $0 |
Roll Value History
| 2026 | N/A | N/A | N/A | N/A | N/A |
| 2025 | $583,362 | $330,000 | $0 | $913,362 | $913,362 |
| 2024 | $590,368 | $320,000 | $0 | $910,368 | $910,368 |
| 2023 | $597,377 | $300,000 | $0 | $897,377 | $897,377 |
| 2022 | $547,284 | $270,000 | $0 | $817,284 | $817,284 |
| 2021 | $445,423 | $190,000 | $0 | $635,423 | $635,423 |
| 2020 | $434,210 | $170,000 | $0 | $604,210 | $604,210 |
| 2019 | $338,268 | $200,000 | $0 | $538,268 | $538,268 |
| 2018 | $339,249 | $170,000 | $0 | $509,249 | $509,249 |
| 2017 | $339,996 | $130,000 | $0 | $469,996 | $469,996 |
| 2016 | $343,903 | $75,000 | $0 | $418,903 | $418,903 |
| 2015 | $356,991 | $65,000 | $0 | $421,991 | $421,991 |
| 2014 | $361,127 | $65,000 | $0 | $426,127 | $426,127 |
| 2013 | $365,266 | $65,000 | $0 | $430,266 | $430,266 |
| 2012 | $369,404 | $68,000 | $0 | $437,404 | $437,404 |
| 2011 | $373,540 | $85,000 | $0 | $458,540 | $458,540 |
| 2010 | $387,402 | $85,000 | $0 | $472,402 | $472,402 |
| 2009 | $403,890 | $100,000 | $0 | $503,890 | $503,890 |
| 2008 | $366,307 | $100,000 | $0 | $466,307 | $466,307 |
| 2007 | $193,132 | $100,000 | $0 | $293,132 | $293,132 |
Deed and Sales History
| 1 | 07/01/2015 | WD | Warranty Deed | ROCHON, BRADLEY P | WESTERFIELD, STEVEN A | | | $410,000.00 | 20332 | 4381571 |
| 2 | 08/19/2005 | WD | Warranty Deed | MCCOY, CHAD T | ROCHON, BRADLEY P | | | $250,500.00 | 54074 | 4144629 |
| 3 | 03/20/2000 | WD | Warranty Deed | MEDINGER, BRIAN R | MCCOY, CHAD T | | | $145,500.00 | 1099 | 20005449 |
| 4 | 01/01/1996 | WD | Warranty Deed | WINKELMAN, WILLIAM H | MEDINGER, BRIAN R | | | $105,000.00 | 60133 | 96000602 |
| 5 | 10/01/1992 | WD | Warranty Deed | GRANT, FRED G | WINKELMAN, WILLIAM H | | | $85,500.00 | 24225 | 92020675 |
| 6 | 03/01/1984 | QCD | Quit Claim Deed | GRANT, FRED G | GRANT, FRED G | | | $0.00 | 40801 | 422596 |
| 7 | 09/01/1978 | OTHER | Other - Misc. Documents | Unknown | GRANT, FRED G | | | $7,900.00 | 84431 | 339483 |
Payout Agreement
| No payout information available.. |