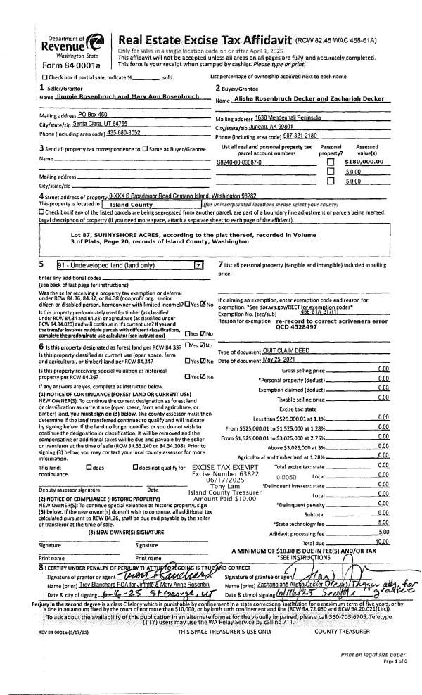
Property
Account |
| Property ID: | 306083 | Abbreviated Legal Description: | LIV BAY HTS LOT 9 |
| Geographic ID: | S7385-00-00009-0 | Agent Code: | |
| Type: | Real | | |
| Tax Area: | 590 - APPRAISER-Stan/Cam Schl Dist, Special Dist, improved & less than 1 acre | Land Use Code | 11 |
| Open Space: | N | DFL | N |
| Historic Property: | N | Remodel Property: | N |
| Multi-Family Redevelopment: | N | | |
| Township: | | Section: | |
| Range: | |
Location |
| Address: | 134 LIVINGSTON BAY RD CAMANO ISLAND, WA 98282 | Mapsco: | |
| Neighborhood: | Cycle 5 | Map ID: | 996 |
| Neighborhood CD: | 5 |
Owner |
| Name: | SCHEERER, ANDREW P | Owner ID: | 314716 |
| Mailing Address: | JUDY SCHEERER 134 LIVINGSTON BAY RD CAMANO ISLAND, WA 98282 | % Ownership: | 100.0000000000% |
| | | Exemptions: | |
Taxes and Assessment Details
Values
| (+) Improvement Homesite Value: | + | $0 | |
| (+) Improvement Non-Homesite Value: | + | $369,212 | |
| (+) Land Homesite Value: | + | $0 | |
| (+) Land Non-Homesite Value: | + | $450,000 | |
| (+) Curr Use (HS): | + | $0 | $0 |
| (+) Curr Use (NHS): | + | $0 | $0 |
| | | -------------------------- | |
| (=) Market Value: | = | $819,212 | |
| (–) Productivity Loss: | – | $0 | |
| | | -------------------------- | |
| (=) Subtotal: | = | $819,212 | |
| (+) Senior Appraised Value: | + | $0 | |
| (+) Non-Senior Appraised Value: | + | $819,212 | |
| | | -------------------------- | |
| (=) Total Appraised Value: | = | $819,212 | |
| (–) Senior Exemption Loss: | – | $0 | |
| (–) Exemption Loss: | – | $0 | |
| | | -------------------------- | |
| (=) Taxable Value: | = | $819,212 | |
Taxing Jurisdiction
| Owner: | SCHEERER, ANDREW P | | |
| % Ownership: | 100.0000000000% | | |
| Total Value: | $819,212 | | |
| Tax Area: | 590 - APPRAISER-Stan/Cam Schl Dist, Special Dist, improved & less than 1 acre |
| CF | Conservation Futures | 0.0316035091 | $819,212 | $819,212 | $25.89 | | |
| EMS1 | Fire & Rescue Dist #1 Camano GEN (EMS) | 0.3677864386 | $819,212 | $819,212 | $301.30 | | |
| FIRE1 | Fire & Rescue Dist #1 Camano GEN | 1.2502910536 | $819,212 | $819,212 | $1,024.25 | | |
| FIRE1BOND | Fire & Rescue Dist #1 Camano BOND | 0.1570001679 | $819,212 | $819,212 | $128.62 | | |
| CE | County Current Expense | 0.3708482477 | $819,212 | $819,212 | $303.80 | | |
| CR | County Roads | 0.4584763726 | $819,212 | $819,212 | $375.59 | | |
| LCIB | Library Sno-Isle BOND (Camano Island) | 0.0396325772 | $819,212 | $819,212 | $32.47 | | |
| LIB | Library Sno-Isle GEN | 0.3153421757 | $819,212 | $819,212 | $258.33 | | |
| SCH205_401 | School 205-401 Enrichment | 1.2698420524 | $819,212 | $819,212 | $1,040.27 | | |
| SCH205BOND | School 205-401 BOND | 0.9396497583 | $819,212 | $819,212 | $769.77 | | |
| ST | State School | 1.3035497053 | $819,212 | $819,212 | $1,067.88 | | |
| ST2 | State School Part 2 | 0.8169543533 | $819,212 | $819,212 | $669.26 | | |
| | Total Tax Rate: | 7.3209764117 | | | | | |
| | | | | Taxes w/Current Exemptions: | $5,997.43 | | |
| | | | | Taxes w/o Exemptions: | $5,997.43 | | |
Improvement / Building
| Improvement #1: | RESIDENTIAL | State Code: | Y | 1712.0 sqft | Value: | $369,212 |
| Bathrooms: | 2 | Bedrooms: | 2 | | Ceiling: | TONGUE & GROOVE | Cooling: | HEAT PUMP/CONV/V | | Exterior Wall/Cover: | LOG TO 10" | Floor Covering: | HARDWOOD 100% | | Floor Structure: | WOOD W/SUBFLOOR | Foundation: | CONCRETE | | Interior Finish: | DRYWALL PAINT | Plumbing Fixture Cnt: | 10 | | Roof Slope: | 8" IN 12" | Roof Structure/Cover: | BEAM ASPHALT |
|
| | Type | Description | Class CD | Sub Class CD | Year Built | Area |
| | BAS | BASE/MAIN FLOOR | 4 | 0 | 1978 | 1712.0 |
| | OP4 | OPEN PORCH W/CEILING-ROOF | 4 | 0 | 1978 | 224.0 |
| | OCP | OPEN CARPORT | 4 | 0 | 1978 | 480.0 |
| | ATU | ATTIC UNFINISHED | 4 | 0 | 1978 | 230.0 |
| | OWP | OPEN WOOD PORCH W/STEPS | 4 | 0 | 1978 | 96.0 |
| | OWP | OPEN WOOD PORCH W/STEPS | 4 | 0 | 1978 | 182.0 |
| | OWR | OPEN WOOD PORCH W/STEPS/ROOF | 4 | 0 | 1978 | 112.0 |
Sketch
Property Image
Land
| 1 | HB | HIGH BLUFF | 1.1583 | 50455.55 | 100.00 | 0.00 | 1.00 | $450,000 | $0 |
Roll Value History
| 2026 | N/A | N/A | N/A | N/A | N/A |
| 2025 | $369,212 | $450,000 | $0 | $819,212 | $819,212 |
| 2024 | $352,391 | $450,000 | $0 | $802,391 | $802,391 |
| 2023 | $347,670 | $450,000 | $0 | $797,670 | $797,670 |
| 2022 | $319,368 | $390,000 | $0 | $709,368 | $709,368 |
| 2021 | $273,762 | $325,000 | $0 | $598,762 | $598,762 |
| 2020 | $267,780 | $275,000 | $0 | $542,780 | $542,780 |
| 2019 | $198,645 | $275,000 | $0 | $473,645 | $473,645 |
| 2018 | $199,342 | $250,000 | $0 | $449,342 | $449,342 |
| 2017 | $200,736 | $250,000 | $0 | $450,736 | $450,736 |
| 2016 | $203,523 | $250,000 | $0 | $453,523 | $453,523 |
| 2015 | $168,076 | $250,000 | $0 | $418,076 | $418,076 |
| 2014 | $170,537 | $250,000 | $0 | $420,537 | $420,537 |
| 2013 | $172,997 | $234,958 | $0 | $407,955 | $407,955 |
| 2012 | $175,457 | $234,958 | $0 | $410,415 | $410,415 |
| 2011 | $177,919 | $247,324 | $0 | $425,243 | $425,243 |
| 2010 | $191,425 | $247,324 | $0 | $438,749 | $438,749 |
| 2009 | $190,514 | $294,315 | $0 | $484,829 | $484,829 |
| 2008 | $193,283 | $294,315 | $0 | $487,598 | $487,598 |
| 2007 | $196,051 | $321,521 | $0 | $517,572 | $517,572 |
Deed and Sales History
| 1 | 11/26/2024 | WD | Warranty Deed | RANONE, ANDREW TYLER | SCHEERER, ANDREW P | | | $825,000.00 | 61965 | 4579944 |
| 2 | 08/02/2023 | WD | Warranty Deed | KUKIELKA, TOMASZ | RANONE, ANDREW TYLER | | | $750,000.00 | 57530 | 4563097 |
| 3 | 04/10/2023 | TRUSTEED | Trustee's Deed | CAMERON, JAMES W | KUKIELKA, TOMASZ | | | $0.00 | 56379 | 4558695 |
| 4 | 02/27/2018 | WD | Warranty Deed | MACLAURIN, BARBARA J | CAMERON, JAMES W | | | $373,700.00 | 33146 | 4440140 |
| 5 | 03/01/1993 | OTHER | Other - Misc. Documents | MACLAURIN, ROBERT E | MACLAURIN, BARBARA J | | | $0.00 | 65307 | 0 |
| 6 | 05/01/1978 | OTHER | Other - Misc. Documents | Unknown | MACLAURIN, ROBERT E | | | $10,700.00 | 82160 | 332690 |
Payout Agreement
| No payout information available.. |