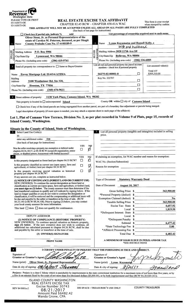
Property
Account |
| Property ID: | 306109 | Abbreviated Legal Description: | LIVINGSTON BAY HTS LOT 11 EX W150' & LOT 12 |
| Geographic ID: | S7385-00-00011-0 | Agent Code: | |
| Type: | Real | | |
| Tax Area: | 590 - APPRAISER-Stan/Cam Schl Dist, Special Dist, improved & less than 1 acre | Land Use Code | 11 |
| Open Space: | N | DFL | N |
| Historic Property: | N | Remodel Property: | N |
| Multi-Family Redevelopment: | N | | |
| Township: | | Section: | |
| Range: | |
Location |
| Address: | 112 LIVINGSTON BAY RD CAMANO ISLAND, WA 98282 | Mapsco: | |
| Neighborhood: | Cycle 5 | Map ID: | 996 |
| Neighborhood CD: | 5 |
Owner |
| Name: | NOCHLIN, MARIA | Owner ID: | 281128 |
| Mailing Address: | 510 W NORTH CAMANO DR CAMANO ISLAND, WA 98282 | % Ownership: | 100.0000000000% |
| | | Exemptions: | |
Taxes and Assessment Details
Values
| (+) Improvement Homesite Value: | + | $0 | |
| (+) Improvement Non-Homesite Value: | + | $565,665 | |
| (+) Land Homesite Value: | + | $0 | |
| (+) Land Non-Homesite Value: | + | $495,000 | |
| (+) Curr Use (HS): | + | $0 | $0 |
| (+) Curr Use (NHS): | + | $0 | $0 |
| | | -------------------------- | |
| (=) Market Value: | = | $1,060,665 | |
| (–) Productivity Loss: | – | $0 | |
| | | -------------------------- | |
| (=) Subtotal: | = | $1,060,665 | |
| (+) Senior Appraised Value: | + | $0 | |
| (+) Non-Senior Appraised Value: | + | $1,060,665 | |
| | | -------------------------- | |
| (=) Total Appraised Value: | = | $1,060,665 | |
| (–) Senior Exemption Loss: | – | $0 | |
| (–) Exemption Loss: | – | $0 | |
| | | -------------------------- | |
| (=) Taxable Value: | = | $1,060,665 | |
Taxing Jurisdiction
| Owner: | NOCHLIN, MARIA | | |
| % Ownership: | 100.0000000000% | | |
| Total Value: | $1,060,665 | | |
| Tax Area: | 590 - APPRAISER-Stan/Cam Schl Dist, Special Dist, improved & less than 1 acre |
| CF | Conservation Futures | 0.0316035091 | $1,060,665 | $1,060,665 | $33.52 | | |
| EMS1 | Fire & Rescue Dist #1 Camano GEN (EMS) | 0.3677864386 | $1,060,665 | $1,060,665 | $390.10 | | |
| FIRE1 | Fire & Rescue Dist #1 Camano GEN | 1.2502910536 | $1,060,665 | $1,060,665 | $1,326.14 | | |
| FIRE1BOND | Fire & Rescue Dist #1 Camano BOND | 0.1570001679 | $1,060,665 | $1,060,665 | $166.52 | | |
| CE | County Current Expense | 0.3708482477 | $1,060,665 | $1,060,665 | $393.35 | | |
| CR | County Roads | 0.4584763726 | $1,060,665 | $1,060,665 | $486.29 | | |
| LCIB | Library Sno-Isle BOND (Camano Island) | 0.0396325772 | $1,060,665 | $1,060,665 | $42.04 | | |
| LIB | Library Sno-Isle GEN | 0.3153421757 | $1,060,665 | $1,060,665 | $334.47 | | |
| SCH205_401 | School 205-401 Enrichment | 1.2698420524 | $1,060,665 | $1,060,665 | $1,346.88 | | |
| SCH205BOND | School 205-401 BOND | 0.9396497583 | $1,060,665 | $1,060,665 | $996.65 | | |
| ST | State School | 1.3035497053 | $1,060,665 | $1,060,665 | $1,382.63 | | |
| ST2 | State School Part 2 | 0.8169543533 | $1,060,665 | $1,060,665 | $866.51 | | |
| | Total Tax Rate: | 7.3209764117 | | | | | |
| | | | | Taxes w/Current Exemptions: | $7,765.10 | | |
| | | | | Taxes w/o Exemptions: | $7,765.10 | | |
Improvement / Building
| Improvement #1: | RESIDENTIAL | State Code: | Y | 2717.9 sqft | Value: | $565,665 |
| Bathrooms: | 2.5 | Bedrooms: | 3 | | Ceiling: | DRYWALL PAINTED | Exterior Wall/Cover: | PLY/HARDBOARD T-111 | | Floor Covering: | HARDWOOD 100% | Floor Structure: | WOOD W/SUBFLOOR | | Foundation: | CONCRETE | Heating: | RADIANT FLOOR | | Interior Finish: | DRYWALL PAINT | Plumbing Fixture Cnt: | 14 | | Roof Slope: | 5" IN 12" | Roof Structure/Cover: | CJ ASPHALT |
|
| | Type | Description | Class CD | Sub Class CD | Year Built | Area |
| | BAS | BASE/MAIN FLOOR | 4 | 0 | 1963 | 2717.9 |
| | OP4 | OPEN PORCH W/CEILING-ROOF | 4 | 0 | 1963 | 238.0 |
| | OP1 | OPEN PORCH SLAB | 4 | 0 | 1963 | 690.0 |
| | OP4 | OPEN PORCH W/CEILING-ROOF | 4 | 0 | 1963 | 165.0 |
| | OWP | OPEN WOOD PORCH W/STEPS | 4 | 0 | 1963 | 200.0 |
| | DGR | DETACHED GARAGE | 4 | 0 | 1963 | 528.0 |
| | UTY | STORAGE/UTILITY | 4 | 0 | 1963 | 242.0 |
| | CPD | OPEN CARPORT DIRT FLOOR | 4 | 0 | 1963 | 220.0 |
Sketch
Property Image
Land
| 1 | HB | HIGH BLUFF | 0.0000 | 0.00 | 150.00 | 0.00 | 1.00 | $495,000 | $0 |
Roll Value History
| 2026 | N/A | N/A | N/A | N/A | N/A |
| 2025 | $565,665 | $495,000 | $0 | $1,060,665 | $1,060,665 |
| 2024 | $572,459 | $495,000 | $0 | $1,067,459 | $1,067,459 |
| 2023 | $579,254 | $495,000 | $0 | $1,074,254 | $1,074,254 |
| 2022 | $530,674 | $450,000 | $0 | $980,674 | $980,674 |
| 2021 | $450,421 | $375,000 | $0 | $825,421 | $825,421 |
| 2020 | $439,315 | $325,000 | $0 | $764,315 | $764,315 |
| 2019 | $333,441 | $350,000 | $0 | $683,441 | $683,441 |
| 2018 | $334,408 | $300,000 | $0 | $634,408 | $634,408 |
| 2017 | $336,170 | $300,000 | $0 | $636,170 | $636,170 |
| 2016 | $340,034 | $300,000 | $0 | $640,034 | $640,034 |
| 2015 | $316,854 | $300,000 | $0 | $616,854 | $616,854 |
| 2014 | $320,401 | $300,000 | $0 | $620,401 | $620,401 |
| 2013 | $323,947 | $333,282 | $0 | $657,229 | $657,229 |
| 2012 | $327,494 | $333,282 | $0 | $660,776 | $660,776 |
| 2011 | $331,040 | $350,823 | $0 | $681,863 | $681,863 |
| 2010 | $347,088 | $350,823 | $0 | $697,911 | $697,911 |
| 2009 | $385,157 | $417,480 | $0 | $802,637 | $802,637 |
| 2008 | $389,646 | $417,480 | $0 | $807,126 | $807,126 |
| 2007 | $390,195 | $456,070 | $0 | $846,265 | $846,265 |
Deed and Sales History
| 1 | 06/26/2017 | WD | Warranty Deed | SCOTT, FRASER T | NOCHLIN, MARIA | | | $650,000.00 | 30347 | 4426955 |
| 2 | 11/02/2001 | QCD | Quit Claim Deed | WIEDRICH-SCOTT, DONNA L | SCOTT, FRASER T | | | $0.00 | 20064 | 4007536 |
| 3 | 11/02/2001 | ESTSEPPROP | Establish Separate Property | SCOTT, FRASER T | WIEDRICH-SCOTT, DONNA L | | | $0.00 | 14331 | 4002549 |
| 4 | 10/04/1999 | WD | Warranty Deed | MILNOR, GRACE J | SCOTT, FRASER T | | | $245,000.00 | 94302 | 99023540 |
| 5 | 09/01/1994 | WD | Warranty Deed | MOE, HAROLD A | MILNOR, GRACE J | | | $200,800.00 | 43935 | 94020391 |
| 6 | 02/01/1989 | QCD | Quit Claim Deed | MOE, NELL E | MOE, HAROLD A | | | $0.00 | 90485 | 89001688 |
| 7 | 07/01/1986 | OTHER | Other - Misc. Documents | MOE, NELL E | MOE, NELL E | | | $0.00 | 61749 | 86005874 |
| 8 | 12/01/1984 | QCD | Quit Claim Deed | MOE, NELL E | MOE, NELL E | | | $0.00 | 50066 | 85000261 |
| 9 | 01/01/1900 | OTHER | Other - Misc. Documents | Unknown | MOE, NELL E | | | $0.00 | 0 | 0 |
Payout Agreement
| No payout information available.. |