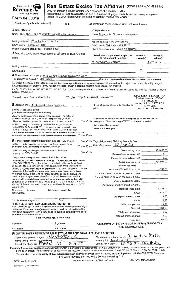
Property
Account |
| Property ID: | 306127 | Abbreviated Legal Description: | LONE LK SH 1 LOT 1 BLK 1 |
| Geographic ID: | S7390-00-01001-0 | Agent Code: | |
| Type: | Real | | |
| Tax Area: | 710 - APPRAISER-S Whid Schl Dist, outside Langley, improved & 1 acre or less | Land Use Code | 11 |
| Open Space: | N | DFL | N |
| Historic Property: | N | Remodel Property: | N |
| Multi-Family Redevelopment: | N | | |
| Township: | | Section: | |
| Range: | |
Location |
| Address: | 5254 APOLLO RD LANGLEY, WA 98260 | Mapsco: | |
| Neighborhood: | Cycle 4 | Map ID: | 748 |
| Neighborhood CD: | 4 |
Owner |
| Name: | LEES, LAURA C | Owner ID: | 317343 |
| Mailing Address: | 7907 207H PL SE EDMONDS, WA 98020 | % Ownership: | 100.0000000000% |
| | | Exemptions: | |
Taxes and Assessment Details
Values
| (+) Improvement Homesite Value: | + | $0 | |
| (+) Improvement Non-Homesite Value: | + | $255,166 | |
| (+) Land Homesite Value: | + | $0 | |
| (+) Land Non-Homesite Value: | + | $360,000 | |
| (+) Curr Use (HS): | + | $0 | $0 |
| (+) Curr Use (NHS): | + | $0 | $0 |
| | | -------------------------- | |
| (=) Market Value: | = | $615,166 | |
| (–) Productivity Loss: | – | $0 | |
| | | -------------------------- | |
| (=) Subtotal: | = | $615,166 | |
| (+) Senior Appraised Value: | + | $0 | |
| (+) Non-Senior Appraised Value: | + | $615,166 | |
| | | -------------------------- | |
| (=) Total Appraised Value: | = | $615,166 | |
| (–) Senior Exemption Loss: | – | $0 | |
| (–) Exemption Loss: | – | $0 | |
| | | -------------------------- | |
| (=) Taxable Value: | = | $615,166 | |
Taxing Jurisdiction
| Owner: | LEES, LAURA C | | |
| % Ownership: | 100.0000000000% | | |
| Total Value: | $615,166 | | |
| Tax Area: | 710 - APPRAISER-S Whid Schl Dist, outside Langley, improved & 1 acre or less |
| CF | Conservation Futures | 0.0316035091 | $615,166 | $615,166 | $19.44 | | |
| FIRE3 | Fire & Rescue Dist #3 S Whidbey GEN | 1.2004855531 | $615,166 | $615,166 | $738.50 | | |
| HOBOND | Hospital BOND | 0.1910887512 | $615,166 | $615,166 | $117.55 | | |
| HOGEN | Hospital GEN | 0.3902502903 | $615,166 | $615,166 | $240.07 | | |
| CE | County Current Expense | 0.3708482477 | $615,166 | $615,166 | $228.13 | | |
| CR | County Roads | 0.4584763726 | $615,166 | $615,166 | $282.04 | | |
| ISLANDEMS | Hospital GEN (EMS) | 0.5000000000 | $615,166 | $615,166 | $307.58 | | |
| LIB | Library Sno-Isle GEN | 0.3153421757 | $615,166 | $615,166 | $193.99 | | |
| PORTWHID | Port of S Whidbey GEN | 0.1094540357 | $615,166 | $615,166 | $67.33 | | |
| SCH206BOND | School 206 BOND | 0.3161759235 | $615,166 | $615,166 | $194.50 | | |
| SCH206MO | School 206 Enrichment | 0.4547169547 | $615,166 | $615,166 | $279.73 | | |
| ST | State School | 1.3035497053 | $615,166 | $615,166 | $801.90 | | |
| ST2 | State School Part 2 | 0.8169543533 | $615,166 | $615,166 | $502.56 | | |
| SWHIDPRBD | P & R S Whidbey BOND | 0.0152817568 | $615,166 | $615,166 | $9.40 | | |
| SWHIDPRBD2 | P & R S Whidbey BOND2 | 0.0138911264 | $615,166 | $615,166 | $8.55 | | |
| SWHIDPRMT | P & R S Whidbey GEN | 0.2053334452 | $615,166 | $615,166 | $126.31 | | |
| | Total Tax Rate: | 6.6934522006 | | | | | |
| | | | | Taxes w/Current Exemptions: | $4,117.58 | | |
| | | | | Taxes w/o Exemptions: | $4,117.58 | | |
Improvement / Building
| Improvement #1: | RESIDENTIAL | State Code: | Y | 1605.9 sqft | Value: | $255,166 |
| Bathrooms: | 2 | Bedrooms: | 2 | | Ceiling: | BEAM PAINTED | Exterior Wall/Cover: | PLY/HARDBOARD T-111 | | Floor Covering: | CARPET/VINYL 80-20 | Floor Structure: | WOOD W/SUBFLOOR | | Foundation: | CONCRETE | Heating: | WALL HEAT ELECTRIC | | Interior Finish: | DRYWALL PAINT | Plumbing Fixture Cnt: | 9 | | Roof Slope: | 10" IN 12" | Roof Structure/Cover: | BEAM ASPHALT |
|
| | Type | Description | Class CD | Sub Class CD | Year Built | Area |
| | BAS | BASE/MAIN FLOOR | 3 | 0 | 2001 | 1305.9 |
| | OWP | OPEN WOOD PORCH W/STEPS | 3 | 0 | 2001 | 70.0 |
| | UPS | UPPER STORY | 3 | 0 | 2001 | 300.0 |
| | CPD | OPEN CARPORT DIRT FLOOR | 3 | 0 | 2001 | 528.0 |
| | OWP | OPEN WOOD PORCH W/STEPS | 3 | 0 | 2001 | 22.5 |
| | OWP | OPEN WOOD PORCH W/STEPS | 3 | 0 | 2001 | 48.0 |
Sketch
Property Image
Land
| 1 | LB | LOW BANK | 0.0000 | 0.00 | 60.00 | 0.00 | 1.00 | $360,000 | $0 |
Roll Value History
| 2026 | N/A | N/A | N/A | N/A | N/A |
| 2025 | $255,166 | $360,000 | $0 | $615,166 | $615,166 |
| 2024 | $253,690 | $360,000 | $0 | $613,690 | $613,690 |
| 2023 | $256,811 | $360,000 | $0 | $616,811 | $616,811 |
| 2022 | $235,376 | $350,000 | $0 | $585,376 | $585,376 |
| 2021 | $207,131 | $220,000 | $0 | $427,131 | $427,131 |
| 2020 | $201,873 | $170,000 | $0 | $371,873 | $371,873 |
| 2019 | $147,643 | $200,000 | $0 | $347,643 | $347,643 |
| 2018 | $148,072 | $200,000 | $0 | $348,072 | $348,072 |
| 2017 | $148,927 | $200,000 | $0 | $348,927 | $348,927 |
| 2016 | $150,639 | $170,000 | $0 | $320,639 | $320,639 |
| 2015 | $152,350 | $170,000 | $0 | $322,350 | $322,350 |
| 2014 | $159,354 | $159,444 | $0 | $318,798 | $318,798 |
| 2013 | $161,137 | $159,444 | $0 | $320,581 | $320,581 |
| 2012 | $162,920 | $159,444 | $0 | $322,364 | $322,364 |
| 2011 | $164,703 | $159,444 | $0 | $324,147 | $324,147 |
| 2010 | $167,270 | $159,444 | $0 | $326,714 | $326,714 |
| 2009 | $174,224 | $178,355 | $0 | $352,579 | $352,579 |
| 2008 | $177,736 | $178,355 | $0 | $356,091 | $356,091 |
| 2007 | $177,876 | $178,355 | $0 | $356,231 | $356,231 |
Deed and Sales History
| 1 | 07/09/2025 | LACPROBATE | Lack of Probate | LEES, JOHN S | LEES, LAURA C | | | $0.00 | 64114 | 4588078 |
| 2 | 04/28/2000 | WD | Warranty Deed | FUNAI, DWIGHT E | LEES, JOHN S | | | $95,000.00 | 1633 | 20007892 |
| 3 | 11/01/1987 | DECREE | Divorce Decree/Legal Separation | FUNAI, DWIGHT E | FUNAI, DWIGHT E | | | $0.00 | 81047 | 88003986 |
| 4 | 04/01/1982 | TRUSTEED | Trustee's Deed | ATKINS, WATKINS | FUNAI, DWIGHT E | | | $24,000.00 | 20882 | 395297 |
| 5 | 01/01/1900 | OTHER | Other - Misc. Documents | Unknown | ATKINS, WATKINS | | | $0.00 | 0 | 0 |
Payout Agreement
| No payout information available.. |