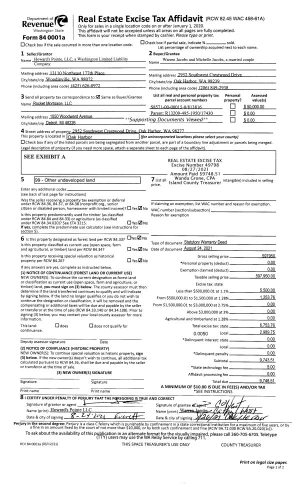
Property
Account |
| Property ID: | 306403 | Abbreviated Legal Description: | LONE LK SH 1 LOT 1 BLK 4 EX: BG SWCR LOT 1 N1*E ALG WLN LOT 1 2.18' N62*E116.83' TO ELN LOT 1 S31*E ALG SD ELN 15.24' TO SECR LOT 1 S68*W ALG SLN LOT 1 119.65' TPB |
| Geographic ID: | S7390-00-04001-0 | Agent Code: | |
| Type: | Real | | |
| Tax Area: | 710 - APPRAISER-S Whid Schl Dist, outside Langley, improved & 1 acre or less | Land Use Code | 11 |
| Open Space: | N | DFL | N |
| Historic Property: | N | Remodel Property: | N |
| Multi-Family Redevelopment: | N | | |
| Township: | | Section: | |
| Range: | |
Location |
| Address: | 5268 DELPHI DR LANGLEY, WA 98260 | Mapsco: | |
| Neighborhood: | Cycle 4 | Map ID: | 748 |
| Neighborhood CD: | 4 |
Owner |
| Name: | SAYKO, NICHOLAS JAMES | Owner ID: | 298025 |
| Mailing Address: | PO BOX 324 CLINTON, WA 98236 | % Ownership: | 100.0000000000% |
| | | Exemptions: | |
Taxes and Assessment Details
Values
| (+) Improvement Homesite Value: | + | $0 | |
| (+) Improvement Non-Homesite Value: | + | $31,967 | |
| (+) Land Homesite Value: | + | $0 | |
| (+) Land Non-Homesite Value: | + | $260,000 | |
| (+) Curr Use (HS): | + | $0 | $0 |
| (+) Curr Use (NHS): | + | $0 | $0 |
| | | -------------------------- | |
| (=) Market Value: | = | $291,967 | |
| (–) Productivity Loss: | – | $0 | |
| | | -------------------------- | |
| (=) Subtotal: | = | $291,967 | |
| (+) Senior Appraised Value: | + | $0 | |
| (+) Non-Senior Appraised Value: | + | $291,967 | |
| | | -------------------------- | |
| (=) Total Appraised Value: | = | $291,967 | |
| (–) Senior Exemption Loss: | – | $0 | |
| (–) Exemption Loss: | – | $0 | |
| | | -------------------------- | |
| (=) Taxable Value: | = | $291,967 | |
Taxing Jurisdiction
| Owner: | SAYKO, NICHOLAS JAMES | | |
| % Ownership: | 100.0000000000% | | |
| Total Value: | $291,967 | | |
| Tax Area: | 710 - APPRAISER-S Whid Schl Dist, outside Langley, improved & 1 acre or less |
| CF | Conservation Futures | 0.0316035091 | $291,967 | $291,967 | $9.23 | | |
| FIRE3 | Fire & Rescue Dist #3 S Whidbey GEN | 1.2004855531 | $291,967 | $291,967 | $350.50 | | |
| HOBOND | Hospital BOND | 0.1910887512 | $291,967 | $291,967 | $55.79 | | |
| HOGEN | Hospital GEN | 0.3902502903 | $291,967 | $291,967 | $113.94 | | |
| CE | County Current Expense | 0.3708482477 | $291,967 | $291,967 | $108.28 | | |
| CR | County Roads | 0.4584763726 | $291,967 | $291,967 | $133.86 | | |
| ISLANDEMS | Hospital GEN (EMS) | 0.5000000000 | $291,967 | $291,967 | $145.98 | | |
| LIB | Library Sno-Isle GEN | 0.3153421757 | $291,967 | $291,967 | $92.07 | | |
| PORTWHID | Port of S Whidbey GEN | 0.1094540357 | $291,967 | $291,967 | $31.96 | | |
| SCH206BOND | School 206 BOND | 0.3161759235 | $291,967 | $291,967 | $92.31 | | |
| SCH206MO | School 206 Enrichment | 0.4547169547 | $291,967 | $291,967 | $132.76 | | |
| ST | State School | 1.3035497053 | $291,967 | $291,967 | $380.59 | | |
| ST2 | State School Part 2 | 0.8169543533 | $291,967 | $291,967 | $238.52 | | |
| SWHIDPRBD | P & R S Whidbey BOND | 0.0152817568 | $291,967 | $291,967 | $4.46 | | |
| SWHIDPRBD2 | P & R S Whidbey BOND2 | 0.0138911264 | $291,967 | $291,967 | $4.06 | | |
| SWHIDPRMT | P & R S Whidbey GEN | 0.2053334452 | $291,967 | $291,967 | $59.95 | | |
| | Total Tax Rate: | 6.6934522006 | | | | | |
| | | | | Taxes w/Current Exemptions: | $1,954.26 | | |
| | | | | Taxes w/o Exemptions: | $1,954.26 | | |
Improvement / Building
| Improvement #1: | MANUFACTURED HOME | State Code: | Y | 1344.0 sqft | Value: | $31,967 |
| Bathrooms: | 0 | Bedrooms: | 0 | | Ceiling: | PLASTER PAINTED | Cooling: | EVAP NO DUCT | | Exterior Wall/Cover: | VINYL | Floor Covering: | CARPET 100% | | Floor Structure: | SLAB ON GRADE | Foundation: | SLAB | | Heating: | FHA ELECTRIC | Interior Finish: | PLASTER | | Plumbing Fixture Cnt: | 1 | Roof Slope: | FLAT | | Roof Structure/Cover: | CJ ALUMINIUM HEAVY |   |   |
|
| | Type | Description | Class CD | Sub Class CD | Year Built | Area |
| | BAS | BASE/MAIN FLOOR | 3 | 0 | 1978 | 1344.0 |
| | OWP | OPEN WOOD PORCH W/STEPS | 3 | 0 | 1978 | 36.0 |
| | OWP | OPEN WOOD PORCH W/STEPS | 3 | 0 | 1978 | 192.0 |
Sketch
Property Image
Land
| 1 | 14 | SQ (08001-12000) | 0.0000 | 0.00 | 0.00 | 0.00 | 1.00 | $260,000 | $0 |
Roll Value History
| 2026 | N/A | N/A | N/A | N/A | N/A |
| 2025 | $31,967 | $260,000 | $0 | $291,967 | $291,967 |
| 2024 | $34,249 | $250,000 | $0 | $284,249 | $284,249 |
| 2023 | $35,392 | $250,000 | $0 | $285,392 | $285,392 |
| 2022 | $34,115 | $230,000 | $0 | $264,115 | $264,115 |
| 2021 | $31,463 | $190,000 | $0 | $221,463 | $221,463 |
| 2020 | $33,159 | $120,000 | $0 | $153,159 | $153,159 |
| 2019 | $27,499 | $150,000 | $0 | $177,499 | $177,499 |
| 2018 | $28,875 | $130,000 | $0 | $158,875 | $158,875 |
| 2017 | $30,249 | $110,000 | $0 | $140,249 | $140,249 |
| 2016 | $31,625 | $90,000 | $0 | $121,625 | $121,625 |
| 2015 | $32,999 | $55,000 | $0 | $87,999 | $87,999 |
| 2014 | $28,488 | $72,250 | $0 | $100,738 | $100,738 |
| 2013 | $30,268 | $72,250 | $0 | $102,518 | $102,518 |
| 2012 | $31,455 | $72,250 | $0 | $103,705 | $103,705 |
| 2011 | $32,642 | $85,000 | $0 | $117,642 | $117,642 |
| 2010 | $29,977 | $85,000 | $0 | $114,977 | $114,977 |
| 2009 | $31,509 | $105,000 | $0 | $136,509 | $136,509 |
| 2008 | $30,429 | $120,000 | $0 | $150,429 | $150,429 |
| 2007 | $31,771 | $120,000 | $0 | $151,771 | $151,771 |
Deed and Sales History
| 1 | 02/05/2021 | WD | Warranty Deed | LEHMAN, ERIC M | SAYKO, NICHOLAS JAMES | | | $150,000.00 | 46865 | 4510359 |
| 2 | 05/12/2008 | WD | Warranty Deed | THE LARRY S PIERCE FAMILY TRUS | LEHMAN, ERIC M | | | $142,500.00 | 81208 | 4228536 |
| 3 | 02/25/2005 | WD | Warranty Deed | SAMPSON, BEN ALAN | PIERCE, LARRY S | | | $79,800.00 | 50804 | 4127010 |
| 4 | 04/01/2002 | 5 | DNU - Marriage License/Name Change | PIERCE, LARRY S | THE LARRY S PIERCE FAMILY TRUS | | | $0.00 | 51894 | 4133016 |
| 5 | 08/29/2000 | BLA | DNU - Boundary Line Adjustment | SAMPSON, BEN ALAN | SAMPSON, BEN ALAN | | | $0.00 | 68758 | 20004785 |
| 6 | 05/07/1999 | OTHER | Other - Misc. Documents | SAMPSON, BEN ALAN | SAMPSON, BEN ALAN | | | $23,993.00 | 91745 | 0 |
| 7 | 04/26/1999 | WD | Warranty Deed | DELFEL, MARJORIE M | SAMPSON, BEN ALAN | | | $39,679.00 | 91744 | 99011090 |
| 8 | 02/01/1997 | REC | Real Estate Contract | DELFEL, MARJORIE M | DELFEL, MARJORIE M | | | $0.00 | 70588 | 0 |
| 9 | 02/01/1997 | OTHER | Other - Misc. Documents | DELFEL, ARTHUR | DELFEL, MARJORIE M | | | $0.00 | 67245 | 92000813 |
| 10 | 01/01/1900 | OTHER | Other - Misc. Documents | DELFEL, ARTHUR J | DELFEL, ARTHUR | | | $22,750.00 | 0 | 0 |
| 11 | 01/01/1900 | OTHER | Other - Misc. Documents | Unknown | DELFEL, ARTHUR J | | | $0.00 | 0 | 0 |
Payout Agreement
| No payout information available.. |