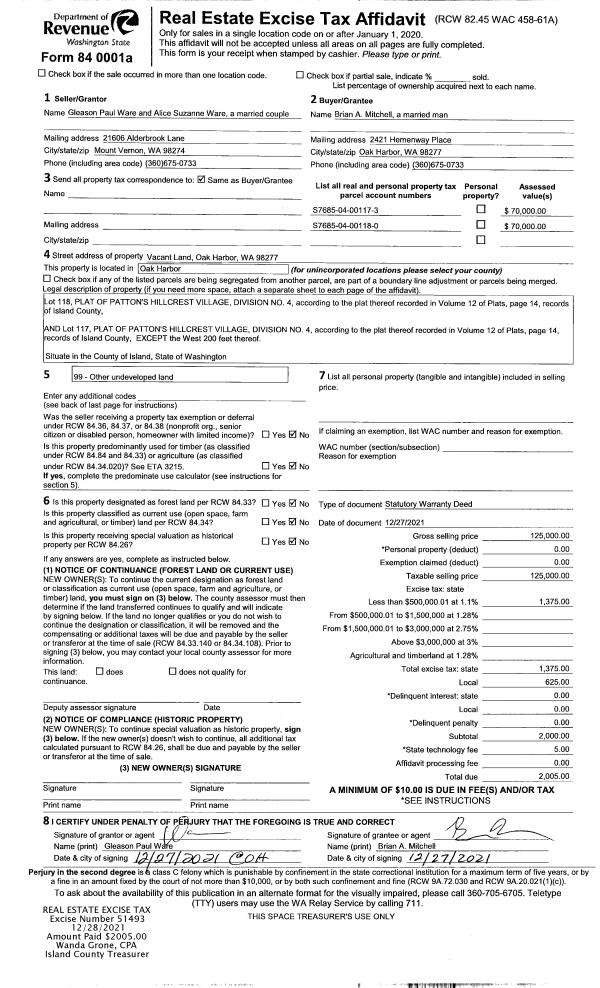
Property
Account |
| Property ID: | 306421 | Abbreviated Legal Description: | LONE LK SH 1 LOT 3 BLK 4 |
| Geographic ID: | S7390-00-04003-0 | Agent Code: | |
| Type: | Real | | |
| Tax Area: | 710 - APPRAISER-S Whid Schl Dist, outside Langley, improved & 1 acre or less | Land Use Code | 11 |
| Open Space: | N | DFL | N |
| Historic Property: | N | Remodel Property: | N |
| Multi-Family Redevelopment: | N | | |
| Township: | | Section: | |
| Range: | |
Location |
| Address: | 5284 DELPHI DR LANGLEY, WA 98260 | Mapsco: | |
| Neighborhood: | Cycle 4 | Map ID: | 748 |
| Neighborhood CD: | 4 |
Owner |
| Name: | KAYE, BEVERLY R | Owner ID: | 22368 |
| Mailing Address: | 5284 DELPHI RD LANGLEY, WA 98260-9709 | % Ownership: | 100.0000000000% |
| | | Exemptions: | SNR/DSBL |
Taxes and Assessment Details
Values
| (+) Improvement Homesite Value: | + | $179,964 | |
| (+) Improvement Non-Homesite Value: | + | $0 | |
| (+) Land Homesite Value: | + | $260,000 | |
| (+) Land Non-Homesite Value: | + | $0 | |
| (+) Curr Use (HS): | + | $0 | $0 |
| (+) Curr Use (NHS): | + | $0 | $0 |
| | | -------------------------- | |
| (=) Market Value: | = | $439,964 | |
| (–) Productivity Loss: | – | $0 | |
| | | -------------------------- | |
| (=) Subtotal: | = | $439,964 | |
| (+) Senior Appraised Value: | + | $184,387 | |
| (+) Non-Senior Appraised Value: | + | $0 | |
| | | -------------------------- | |
| (=) Total Appraised Value: | = | $184,387 | |
| (–) Senior Exemption Loss: | – | $110,632 | |
| (–) Exemption Loss: | – | $0 | |
| | | -------------------------- | |
| (=) Taxable Value: | = | $73,755 | |
Taxing Jurisdiction
| Owner: | KAYE, BEVERLY R | | |
| % Ownership: | 100.0000000000% | | |
| Total Value: | $439,964 | | |
| Tax Area: | 710 - APPRAISER-S Whid Schl Dist, outside Langley, improved & 1 acre or less |
| CF | Conservation Futures | 0.0316035091 | $439,964 | $73,755 | $2.33 | | |
| FIRE3 | Fire & Rescue Dist #3 S Whidbey GEN | 1.2004855531 | $439,964 | $73,755 | $88.54 | | |
| HOBOND | Hospital BOND | 0.0000000000 | $439,964 | $0 | $0.00 | | |
| HOGEN | Hospital GEN | 0.3902502903 | $439,964 | $73,755 | $28.78 | | |
| CE | County Current Expense | 0.3708482477 | $439,964 | $73,755 | $27.35 | | |
| CR | County Roads | 0.4584763726 | $439,964 | $73,755 | $33.81 | | |
| ISLANDEMS | Hospital GEN (EMS) | 0.5000000000 | $439,964 | $73,755 | $36.88 | | |
| LIB | Library Sno-Isle GEN | 0.3153421757 | $439,964 | $73,755 | $23.26 | | |
| PORTWHID | Port of S Whidbey GEN | 0.1094540357 | $439,964 | $73,755 | $8.07 | | |
| SCH206BOND | School 206 BOND | 0.3161759235 | $439,964 | $73,755 | $23.32 | | |
| SCH206MO | School 206 Enrichment | 0.0000000000 | $439,964 | $0 | $0.00 | | |
| ST | State School | 1.3035497053 | $439,964 | $73,755 | $96.14 | | |
| ST2 | State School Part 2 | 0.0000000000 | $439,964 | $0 | $0.00 | | |
| SWHIDPRBD | P & R S Whidbey BOND | 0.0000000000 | $439,964 | $0 | $0.00 | | |
| SWHIDPRBD2 | P & R S Whidbey BOND2 | 0.0000000000 | $439,964 | $0 | $0.00 | | |
| SWHIDPRMT | P & R S Whidbey GEN | 0.2053334452 | $439,964 | $73,755 | $15.14 | | |
| | Total Tax Rate: | 5.2015192582 | | | | | |
| | | | | Taxes w/Current Exemptions: | $383.62 | | |
| | | | | Taxes w/o Exemptions: | $2,944.87 | | |
Improvement / Building
| Improvement #1: | RESIDENTIAL | State Code: | Y | 1200.0 sqft | Value: | $179,964 |
| Bathrooms: | 1 | Bedrooms: | 2 | | Ceiling: | DRY WALL SPRAYED | Exterior Wall/Cover: | WOOD SIDING | | Floor Covering: | HARDWOOD/CARP 20-80 | Floor Structure: | WOOD W/SUBFLOOR | | Foundation: | CONCRETE | Heating: | WALL HEAT ELECTRIC | | Interior Finish: | DRYWALL PAINT | Plumbing Fixture Cnt: | 6 | | Roof Slope: | 12" IN 12" | Roof Structure/Cover: | BEAM ASPHALT |
|
| | Type | Description | Class CD | Sub Class CD | Year Built | Area |
| | BAS | BASE/MAIN FLOOR | 3 | 0 | 1989 | 720.0 |
| | UB8 | BASEMENT UNFINISHED 8" | 3 | 0 | 1989 | 720.0 |
| | OWP | OPEN WOOD PORCH W/STEPS | 3 | 0 | 1989 | 48.0 |
| | OWP | OPEN WOOD PORCH W/STEPS | 3 | 0 | 1989 | 144.0 |
| | LOF | LOFT | 3 | 0 | 1989 | 480.0 |
| | BAW | BALCONY WOOD RAIL | 3 | 0 | 1989 | 32.0 |
| | UTY | STORAGE/UTILITY | 3 | 0 | 1989 | 600.0 |
Sketch
Property Image
Land
| 1 | 15 | SQ (12001-21780) | 0.0000 | 0.00 | 0.00 | 0.00 | 1.00 | $260,000 | $0 |
Roll Value History
| 2026 | N/A | N/A | N/A | N/A | N/A |
| 2025 | $179,964 | $260,000 | $0 | $439,964 | $73,755 |
| 2024 | $182,491 | $250,000 | $0 | $432,491 | $73,755 |
| 2023 | $185,016 | $250,000 | $0 | $435,016 | $73,755 |
| 2022 | $169,816 | $230,000 | $0 | $399,816 | $73,755 |
| 2021 | $149,654 | $190,000 | $0 | $339,654 | $73,755 |
| 2020 | $146,218 | $120,000 | $0 | $266,218 | $73,755 |
| 2019 | $106,161 | $150,000 | $0 | $256,161 | $73,755 |
| 2018 | $106,505 | $130,000 | $0 | $236,505 | $73,755 |
| 2017 | $107,192 | $110,000 | $0 | $217,192 | $73,755 |
| 2016 | $108,567 | $90,000 | $0 | $198,567 | $73,755 |
| 2015 | $109,941 | $55,000 | $0 | $164,941 | $65,976 |
| 2014 | $110,803 | $72,250 | $0 | $183,053 | $73,221 |
| 2013 | $112,137 | $72,250 | $0 | $184,387 | $73,755 |
| 2012 | $113,467 | $72,250 | $0 | $185,717 | $185,717 |
| 2011 | $114,798 | $85,000 | $0 | $199,798 | $199,798 |
| 2010 | $118,926 | $85,000 | $0 | $203,926 | $203,926 |
| 2009 | $123,813 | $105,000 | $0 | $228,813 | $228,813 |
| 2008 | $131,374 | $120,000 | $0 | $251,374 | $251,374 |
| 2007 | $133,114 | $120,000 | $0 | $253,114 | $253,114 |
Deed and Sales History
| 1 | 09/01/1987 | WD | Warranty Deed | POTTENGER, C R | KAYE, BEVERLY R | | | $22,500.00 | 73051 | 87013510 |
| 2 | 01/01/1900 | OTHER | Other - Misc. Documents | Unknown | POTTENGER, C R | | | $0.00 | 0 | 0 |
Payout Agreement
| No payout information available.. |